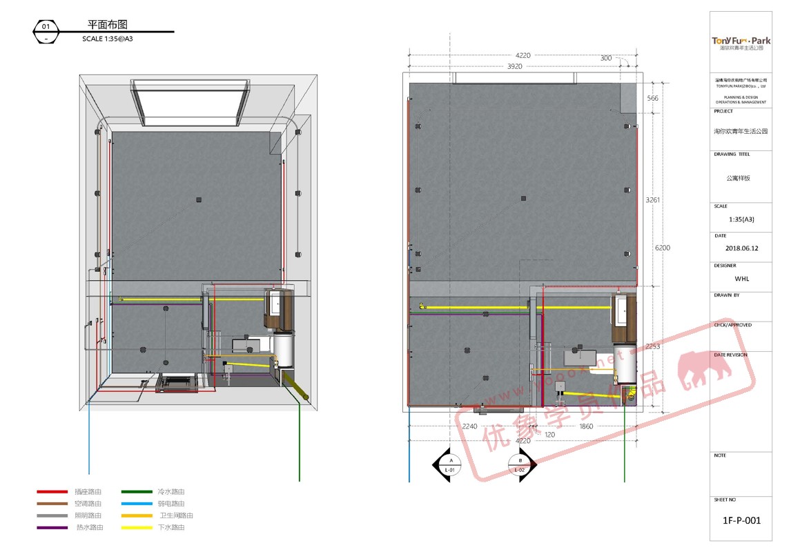
Layout学员案例——公寓样板间水电Bim运用

LayOut学员作品 公寓样板间水电Bim运用 以下LayOut彩色施工图的更多学习资料,有兴趣的同学可以进行 […]

详细介绍

Layout学员案例——公寓样板间水电Bim运用

LayOut学员作品
公寓样板间水电Bim运用

LayOut学员作品

公寓样板间水电Bim运用

以下LayOut彩色施工图的更多学习资料,有兴趣的同学可以进行了解:

用户登录