用草图大师出LayOut施工图的真实案例
下面案例我们采用SketchUp+VFS+LayOut的工作流程来解决设计问题
- 痛点:为了项目能够高质量实施落地,最大程度上从整个设计项目的全生命周得到更好的控制,传统的CAD绘图方法已经不能够满足我们的工作需要。我们需要另辟蹊径,寻需找解决方案。
- 优化流程:其中比较突出的问题在于施工图纸,我们在施工图纸的绘制上做出了全新的变革,使用了SketchUp+LayOut绘制施工图。
- LayOut:并不是说我们对LayOut使用熟悉,无论是CAD还是LayOut都只是一个工具,我们强调的是各个软件工作流程的合理运用。
- 项目特点:全案采用SketchUp模型作为方案推敲和设计,并利用模型结合LayOut出全套施工图纸。
- 用到的软件:
完工效果照片





SketchUp模型



VFS3.4渲染的效果


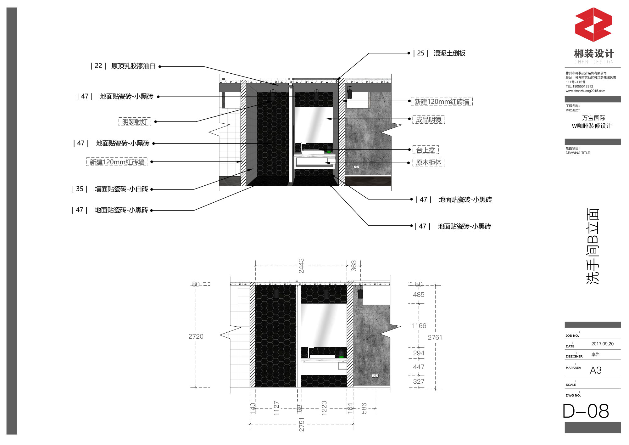
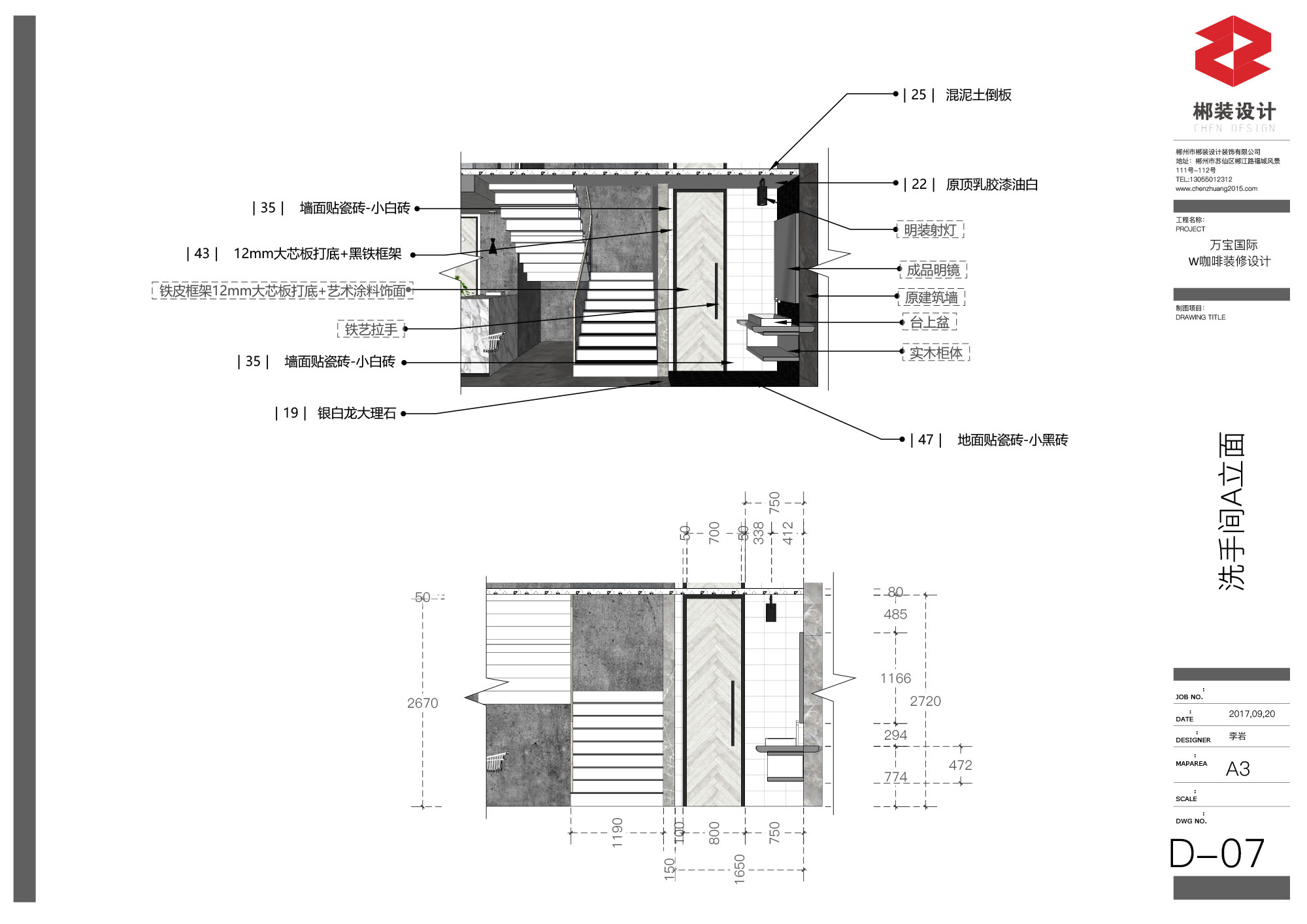
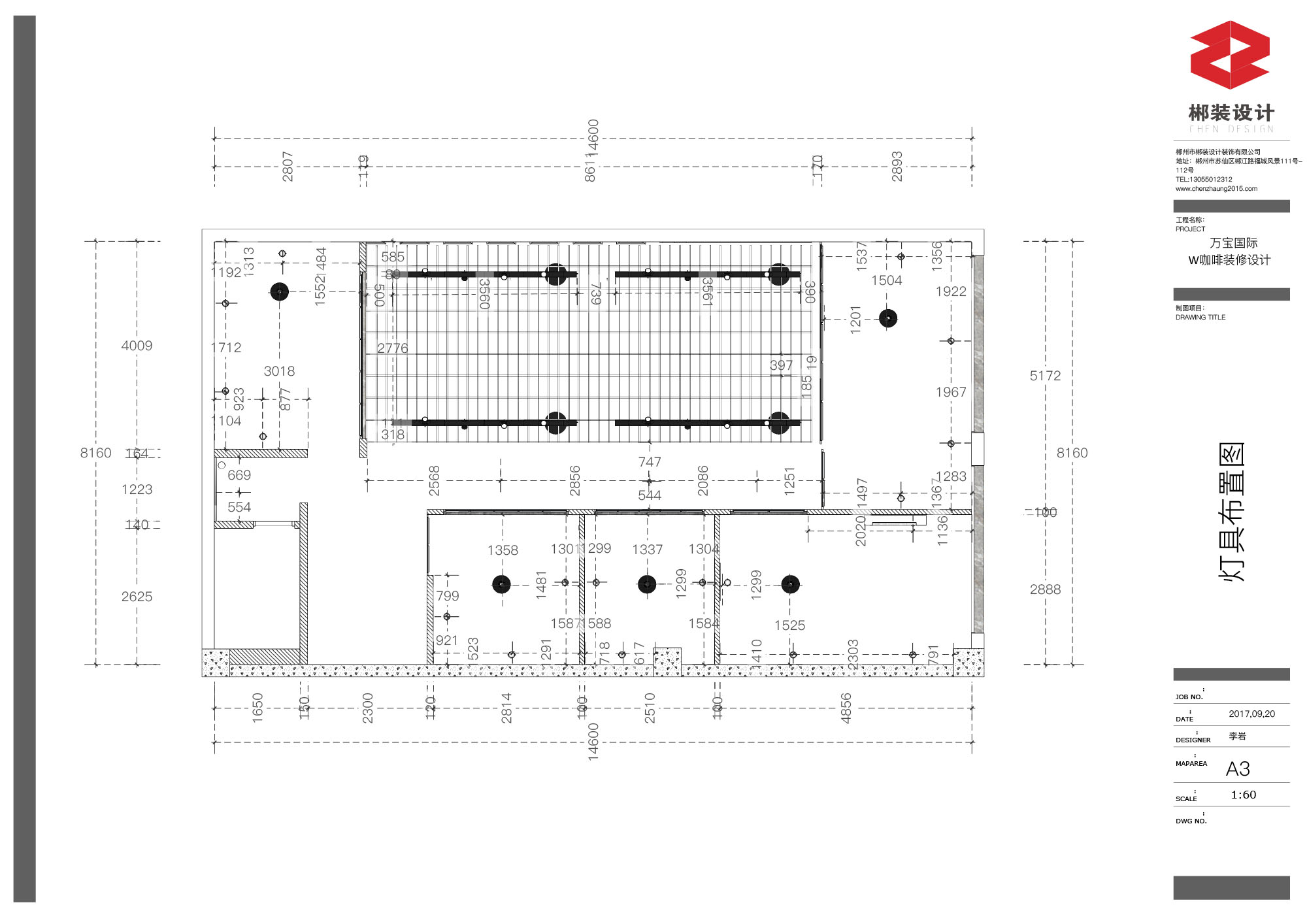
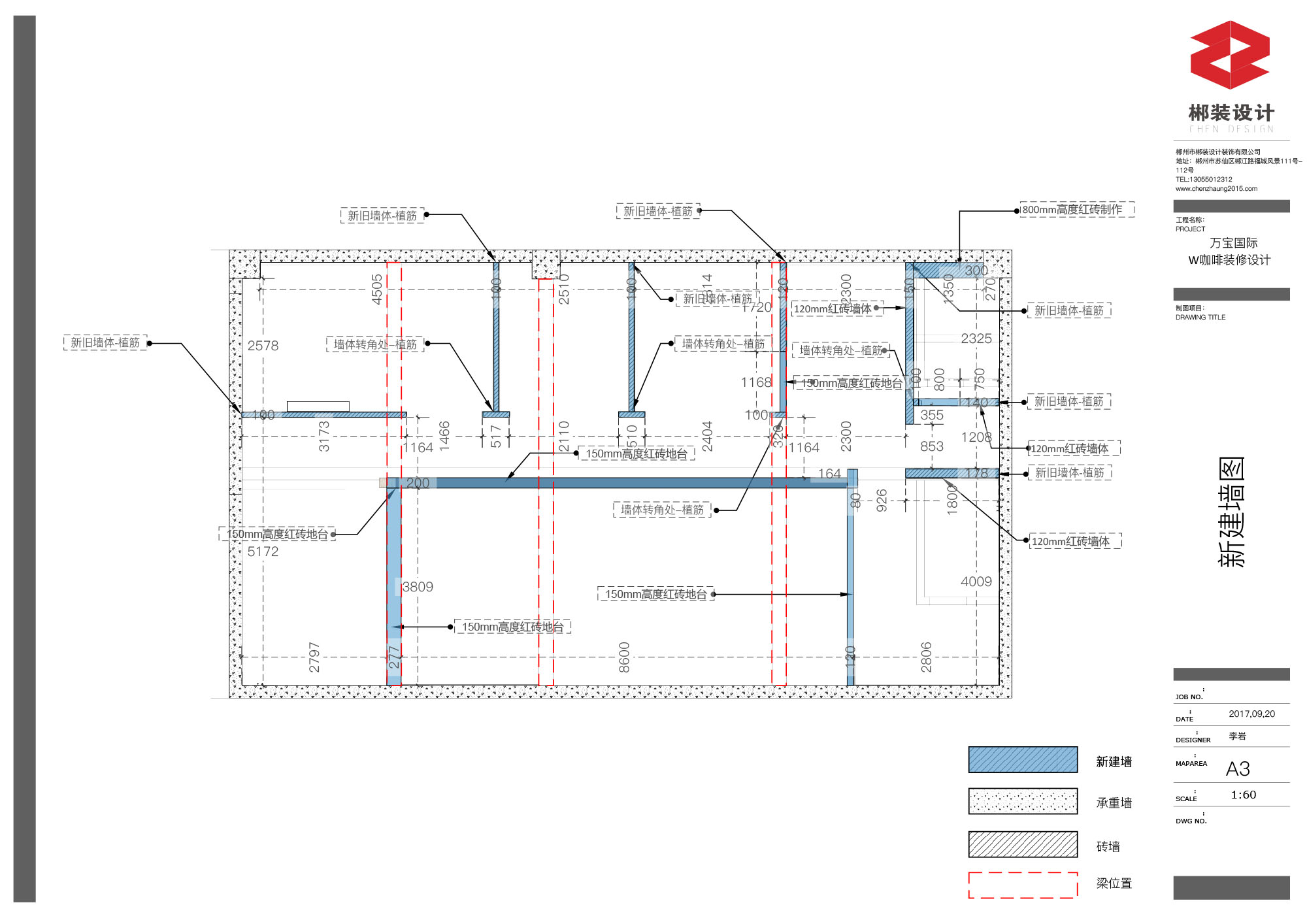
LayOut施工图
































