系统课程 效率插件

DFC室外建筑建模培训

用DFC流程标准驱动SketchUp,从数据到交付的一体化室外建筑/场地建模,快速产出可协同、可渲染、可落地的专业模型。

建筑建模 · 2026-02-24 已更新

详细介绍

DFC室外建筑建模

一体化室外建筑/场地建模

用DFC流程标准驱动SketchUp,从数据到交付的一体化室外建筑/场地建模,快速产出可协同、可渲染、可落地的专业模型

建筑(室外)建模与交付案例

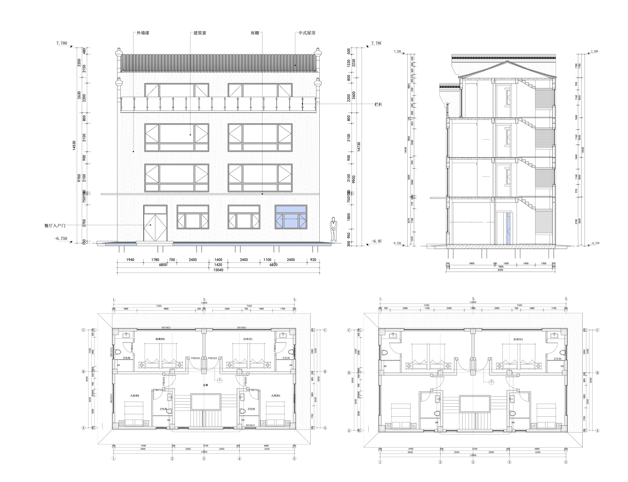
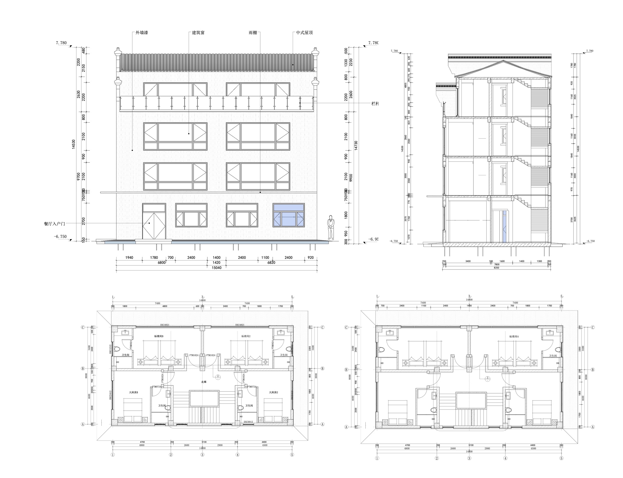
四层民宿案例全流程建模

本案例以一栋四层民宿为对象,模拟真实项目从资料导入到成果交付的完整流程。学员将基于DFC协同规范与SketchUp建模方法,完成建筑体量搭建、外立面细化、场地与道路衔接、构件组件化与轻量化优化,并输出可用于汇报、渲染与协作的标准化模型包。

步骤拆解跟做课

按老师节奏人人可完成

从资料整理与标高/轴网建立,到体量快速搭建、立面细化、门窗栏杆等构件组件化,再到场地衔接、模型轻量化与最终输出。课程采用“边讲边做”的带练方式,强调方法与顺序,帮助你用更简单的建模策略做出更规整、更好改、更易交付的成品模型。适合想系统掌握室外建筑建模流程、提高效率与完成度的学习者。

模型到CAD施工图

无缝衔接施工图课程

完成DFC建筑模型后,如何快速转换并自动输出CAD图纸,用于施工图对接与交付。你将建立“标准化建模 → 出图设置 → CAD导出”的固定流程,让前期建模成果轻松衔接DFC施工图课程,减少重复绘图,提高出图与交付效率。

BIM 建筑结构建模

协同建模第一步

BIM建模首要的步骤是建立建筑结构模型,有了建筑模型,我们才知道柱梁板墙的位置和尺寸,接下来我们使用DFC的建筑模块,帮助我们绘制出建筑结构的模型,并且利用多种方便快捷的BIM建模功能。

内容大纲

用户登录