导航栏 优象设计
  • 每日更新
  • 网络培训
    • 公开课
    • ———————–
    • SketchUp入门到进阶·全流程
    • SketchUp庭院景观设计全流程
    • SketchUp模兔云全屋定制建模培训
    • 全屋定制家具SketchUp全流程
    • SketchUp室内高级建模
    • SketchUp整木家具设计工作流
    • LayOut施工图
    • SketchUp参数化建模
    • SketchUp算量系统流程
    • SketchU太阳能光伏建模·全流程
    • SketchUp动态组件入门到进阶
    • SketchUp家具软装产品建模培训
    • Blender室内入门到进阶
    • 展览展示全流程
    • DFC-BIM机电系统建模培训课程
    • DFC与SketchUp高效施工图培训
    • DFC室外建筑建模培训
    • ———————–
    • SketchUp数字家动图培训
    • D5 for SketchUp室内渲染
    • Enscape室内商业渲染
    • Enscape室外综合渲染
    • Enscape室外建筑渲染
    • Ai室内设计培训
    • SketchUp for iPad建模培训
    • SketchUp插件开发入门
    • ———————–
    • 开课时间安排
    • 学习路线
  • 企业培训
  • 线下培训
    • 花园设计施工训练营
    • SketchUp建模渲染动画-实体线下班
  • 优象课堂
  • 学员作品
    • 渲染学员作品
    • LayOut学员作品
    • Enscape学员作品
    • D5学员作品
    • SU家具建模学员作品
    • 全屋定制学员作品
    • 整木学员作品
    • 室内高效建模学员作品
    • Ens室外综合渲染学员作品
    • VFS学员作品
  • 插件
    • 插件库
    • ———————–
    • SketchUp草图大师软件
    • 巧夺天宫 DFC
    • 智达云管理器
    • AFU全屋定制助手Pro
    • Enscape即时渲染器
    • D5渲染器
    • Skalp剖面填充插件
    • Curic剖面工具
    • 筑木·筑巢全屋定制设计系统
    • Profile Builder 4(PB4)轮廓放样-参数化建模插件
    • Quantifier Pro模型算量插件
    • FlexTools智慧门窗
    • Placemaker自动生成三维城市
    • BoolTools2布尔工具2
    • Artisan 2-艺术细分2
    • skimp模型减面工具
    • transmutr三维模型转换减面工具
    • Mes_MAX转SU插件
    • 速画家-阳光房专业插件
    • SketchPlus
    • Skatter自然散射
    • DIBAC建筑绘图工具
  • 资源库
    • E站-高质量渲染资源
    • S站-海量模型库
  • 其他
    • 了解优象
    • 推荐就业
    • 成为讲师
    • 定制服务
    • 证书《SketchUp官方认证讲师》
    • WUKEN的博客
    • 证书《ICDA高级室内设计师》
    • ATC官方教材
  • 商店
  • 我的帐户

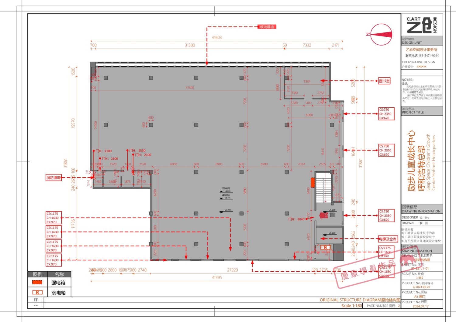
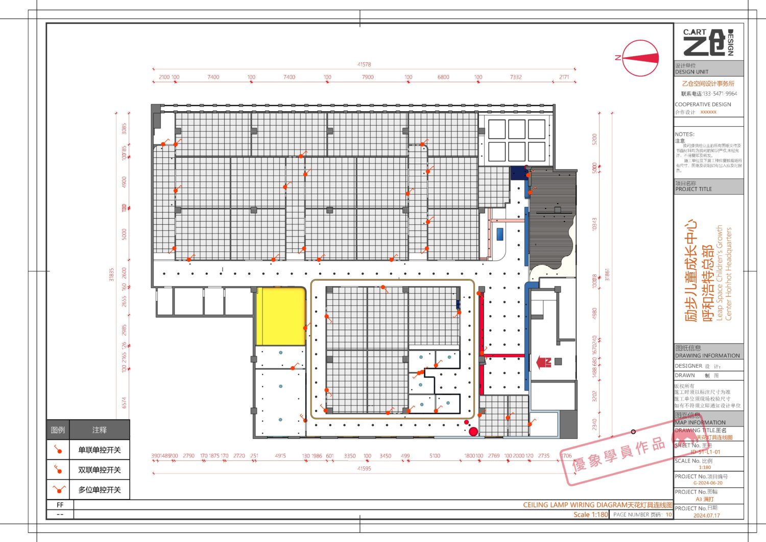
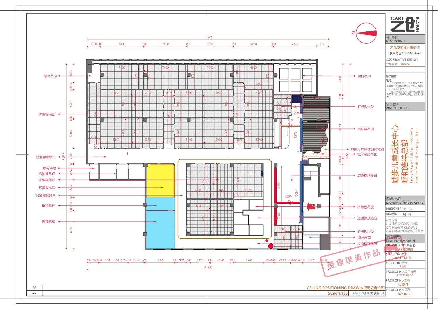
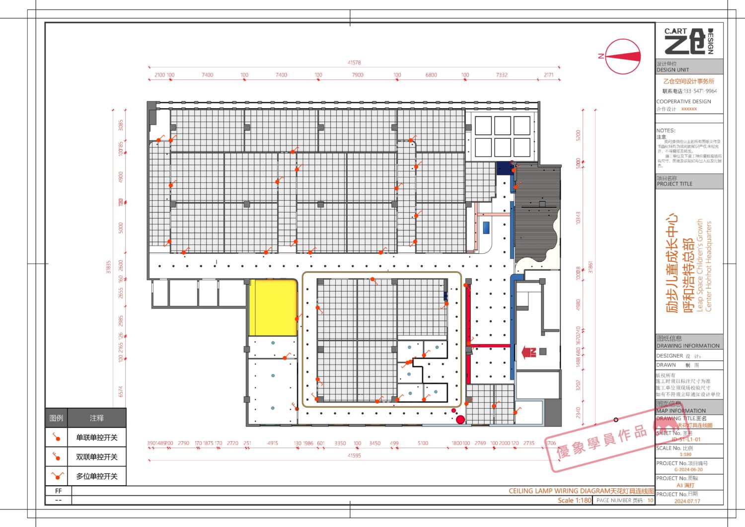
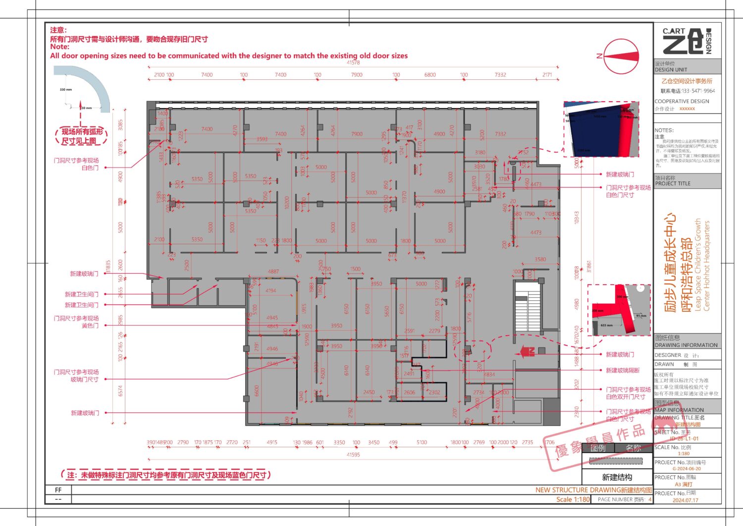
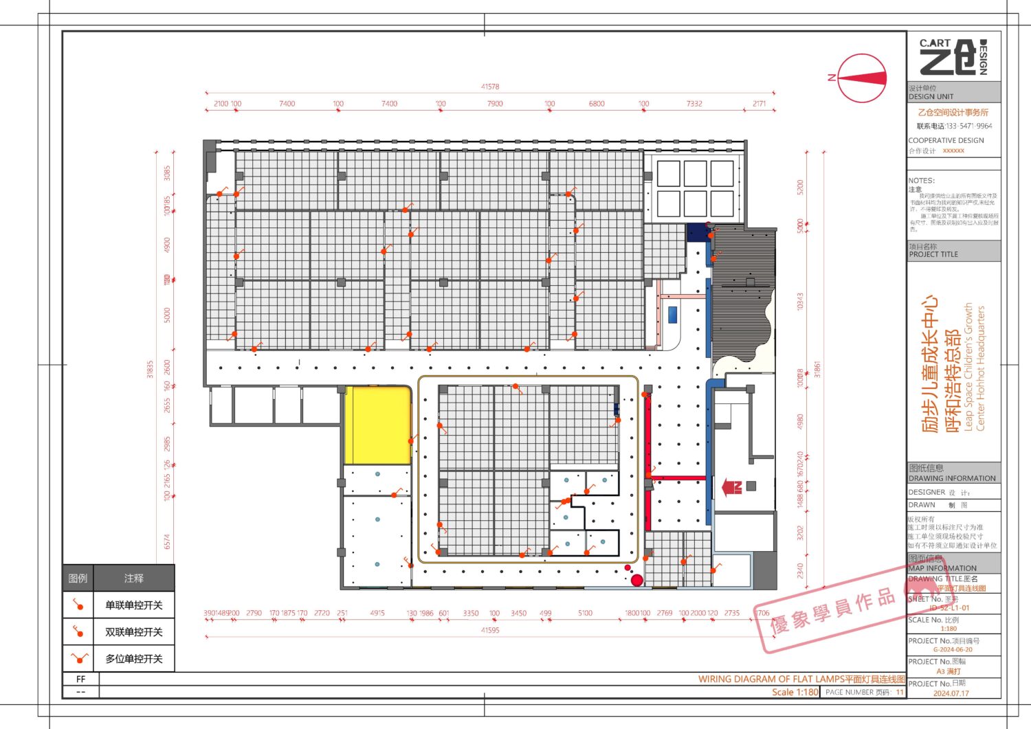
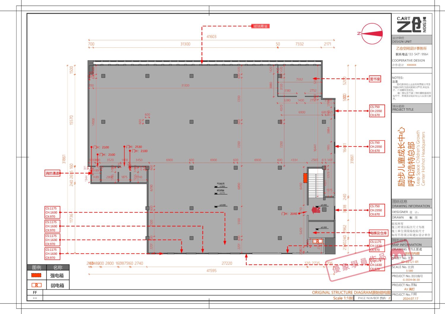
LayOut学员作品:励步儿童成长中心

LayOut学员作品:励步儿童成长中心


使用软件:

SketchUp建模

LayOut出全套施工图纸

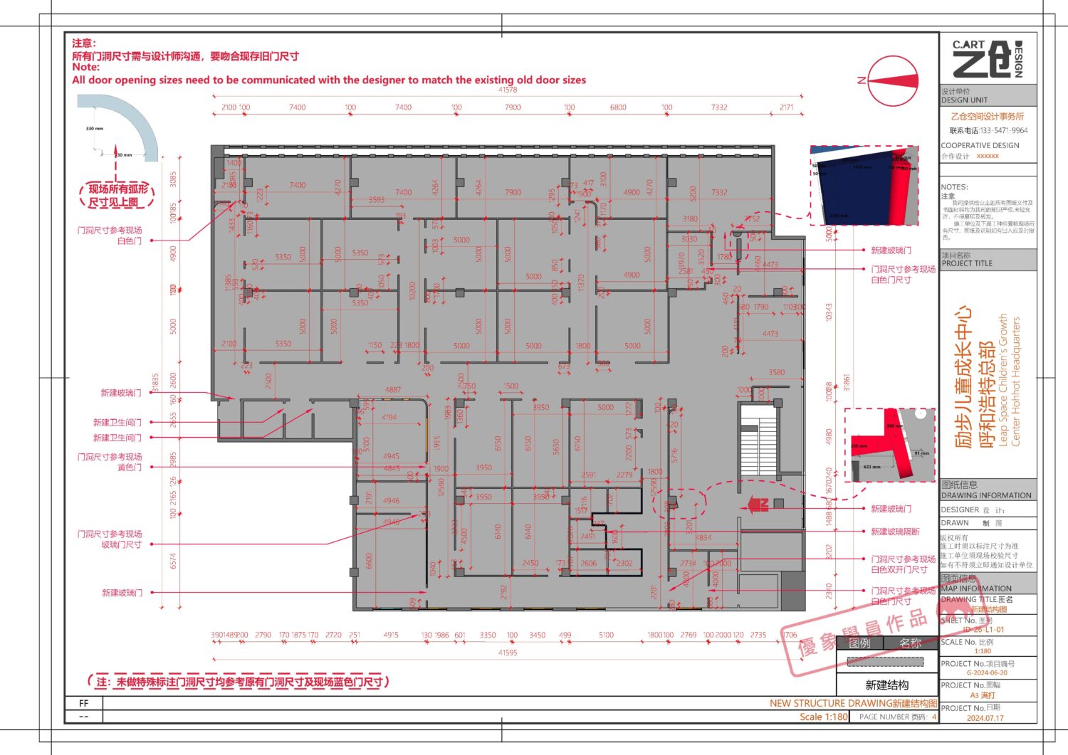
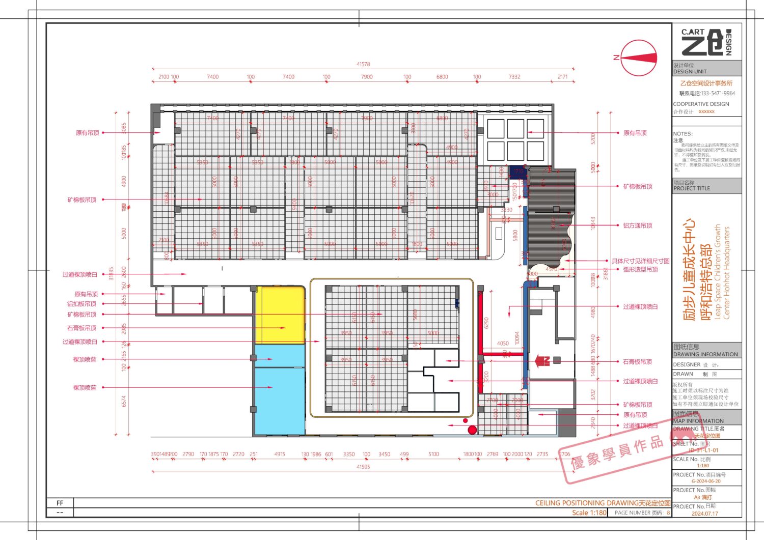
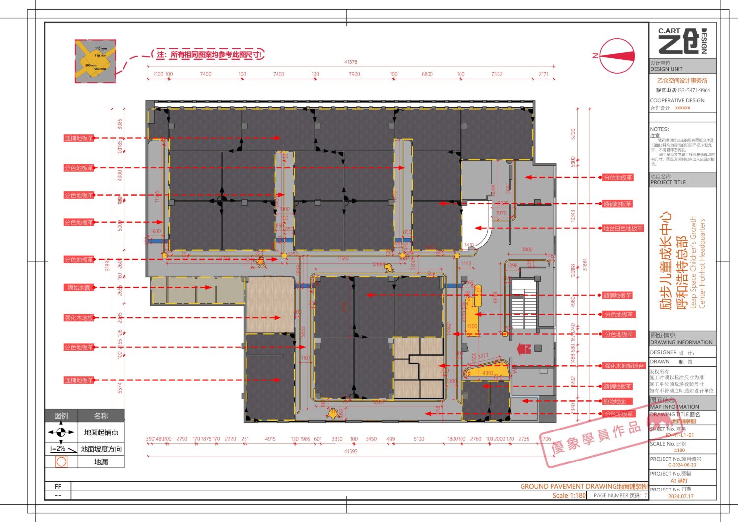
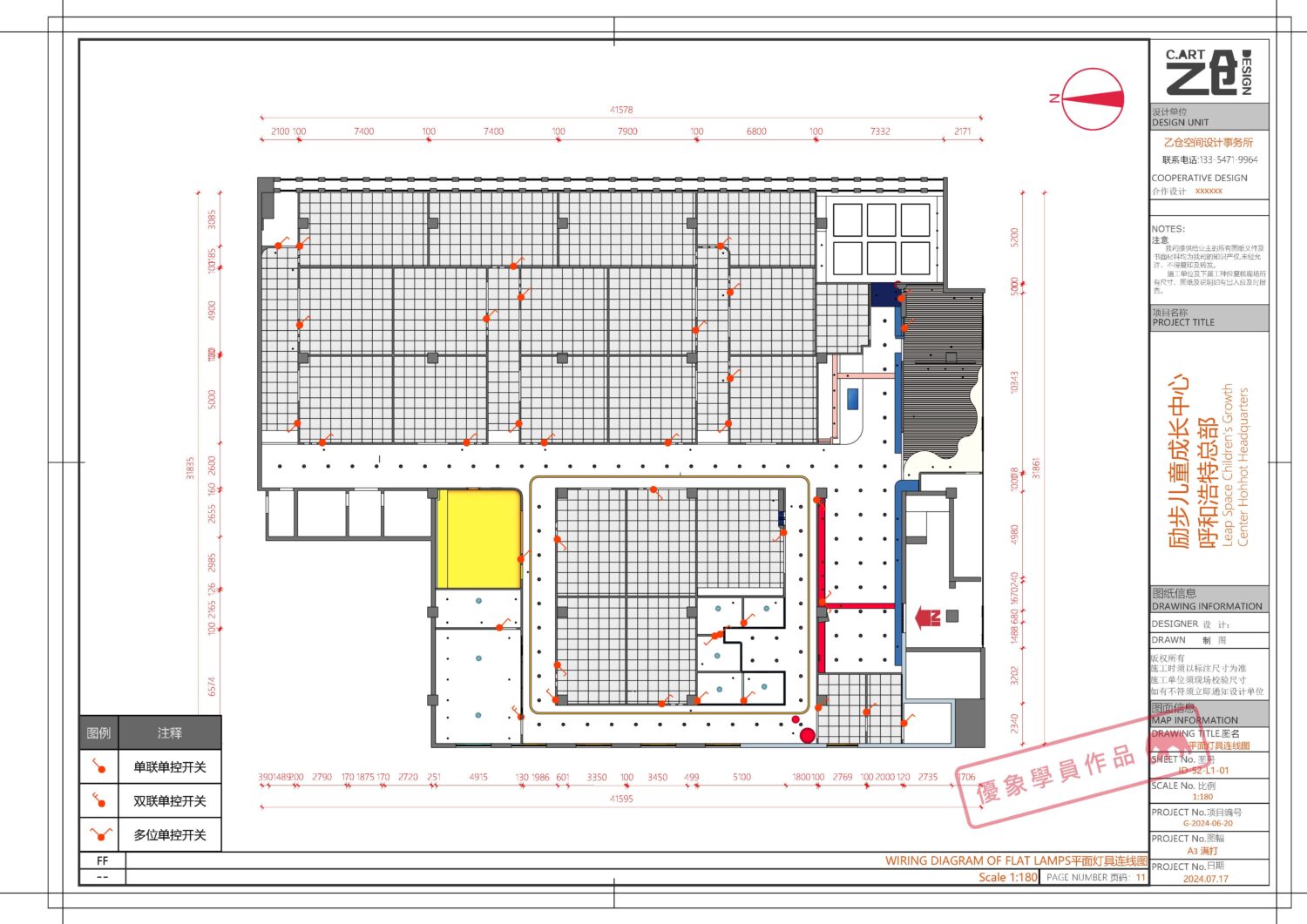
励步施工图_页面_01
励步施工图_页面_02
励步施工图_页面_03
励步施工图_页面_04
励步施工图_页面_05
励步施工图_页面_06
励步施工图_页面_07
励步施工图_页面_08
励步施工图_页面_09
励步施工图_页面_10
励步施工图_页面_11
励步施工图_页面_12
励步施工图_页面_13
励步施工图_页面_14
励步施工图_页面_15
励步施工图_页面_16
励步施工图_页面_17
励步施工图_页面_18
励步施工图_页面_19
励步施工图_页面_20
励步施工图_页面_21
励步施工图_页面_22
励步施工图_页面_23
励步施工图_页面_24
励步施工图_页面_25
励步施工图_页面_26
励步施工图_页面_27
励步施工图_页面_28
励步施工图_页面_29
励步施工图_页面_30
励步施工图_页面_31
励步施工图_页面_32
励步施工图_页面_33
励步施工图_页面_34
励步施工图_页面_35
励步施工图_页面_36
励步施工图_页面_37
励步施工图_页面_38
励步施工图_页面_39
励步施工图_页面_40
励步施工图_页面_41
励步施工图_页面_42
励步施工图_页面_43
励步施工图_页面_44
励步施工图_页面_45
励步施工图_页面_46
励步施工图_页面_47
励步施工图_页面_48
励步施工图_页面_49
励步施工图_页面_50
励步施工图_页面_51

以下LayOut彩色施工图的更多学习资料,有兴趣的同学可以进行了解:

LayOut图纸案例
LayOut公开课
LayOut课程介绍
画板
编组 8备份 5

标签:Layout学员作品

分类:页面

2025-04-12 Comments are off for this post.

友情链接:D5资源库SketchUp ATCS站海量模型库优象官网优象小课堂优象淘宝店智达云草图溜溜网

东莞市秋田设计有限公司 粤ICP备2022000771号-1

优象设计
  • 微信咨询
  • 咨询电话
  • 每日更新
  • 网络培训
    • 公开课
    • ———————–
    • SketchUp入门到进阶·全流程
    • SketchUp庭院景观设计全流程
    • SketchUp模兔云全屋定制建模培训
    • 全屋定制家具SketchUp全流程
    • SketchUp室内高级建模
    • SketchUp整木家具设计工作流
    • LayOut施工图
    • SketchUp参数化建模
    • SketchU太阳能光伏建模·全流程
    • SketchUp算量系统流程
    • SketchUp动态组件入门到进阶
    • SketchUp家具软装产品建模培训
    • Blender室内入门到进阶
    • 展览展示全流程
    • DFC-BIM机电系统培训课程
    • DFC与SketchUp高效施工图培训
    • DFC室外建筑建模培训
    • ———————–
    • SketchUp数字家动图培训
    • D5 for SketchUp室内渲染
    • Enscape室内商业渲染
    • Enscape室外综合渲染
    • Enscape室外建筑渲染
    • Ai室内设计培训
    • SketchUp插件开发入门
    • 设计师iPad手绘
    • ———————–
    • 学习路线
  • 线下培训
    • 花园设计施工训练营
    • SketchUp建模渲染动画-实体线下班
  • 优象课堂
  • 学员作品
    • 渲染作品
    • LayOut学员作品
    • Enscape学员作品
    • D5学员作品
    • Ens室外综合渲染学员作品
    • VFS学员作品
    • 室内高效建模学员作品
    • 全屋定制学员作品
    • 整木学员作品
    • SU家具建模学员作品
  • 插件
    • 插件库
    • ———————–
    • SketchUp草图大师软件
    • 巧夺天宫 DFC
    • 智达云管理器
    • Enscape即时渲染器
    • D5渲染器
    • AFU全屋定制助手Pro
    • Skalp剖面填充插件
    • Curic Section剖面工具
    • 筑木·筑巢全屋定制设计系统
    • Profile Builder 4(PB4)轮廓放样-参数化建模插件
    • Quantifier Pro模型算量插件
    • FlexTools智慧门窗
    • Placemaker自动生成三维城市
    • BoolTools2布尔工具2
    • Artisan 2-艺术细分2
    • skimp模型减面工具
    • transmutr三维模型转换减面工具
    • Mes_MAX转SU插件
    • 速画家-阳光房专业插件
    • SketchPlus
    • Skatter自然散射
    • DIBAC建筑绘图工具
  • 资源库
    • E站-高质量渲染资源
    • S站-海量模型库
  • 其他
    • 了解优象
    • WUKEN的博客
    • 推荐就业
    • 成为讲师
    • 定制服务
    • 找到我们
    • 证书《SketchUp官方认证讲师》
    • ATC官方教材
  • 商店
  • 我的帐户
    • 我的帐户
    • 下载
    • 购物车
    • 订单
优象设计

选择登录方式

微信扫一扫登录

使用邮箱注册 忘记密码?
使用邮箱登录 忘记密码?
使用邮箱登录

用户登录

或
还没有账号?

用户注册

已有账号?

找回密码

  • 登录
    注册/登录
  • 登录
    注册/登录
  • 后退一页
  • 前进一页
  • 返回顶部