详细介绍
LayOut学员作品-办公室平面、里面图
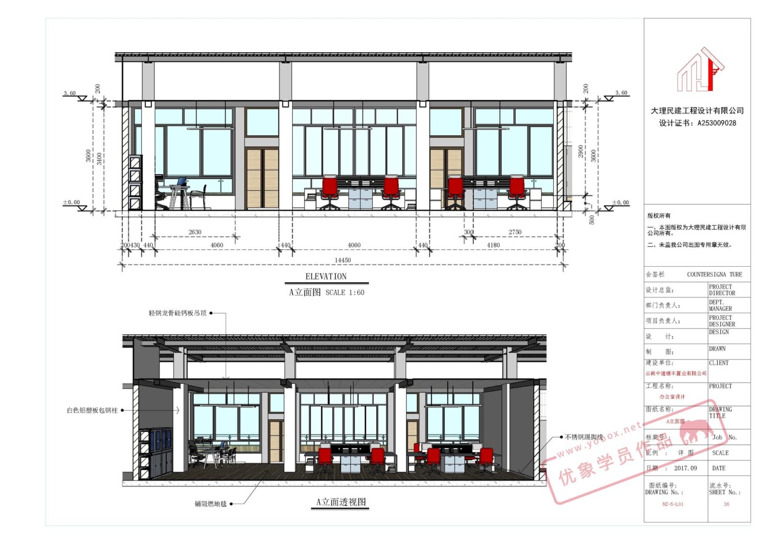
LayOut学员作品
办公室平面、立面图
我们采用Skalp插件对SketchUp中剖切的部分自动填充剖面图案,并且可直接转入到LayOut中输出剖面图,其专业效果已经可以完全与AutoCAD输出的图纸媲美。让我们进一步相信,使用SketchUp代替AutoCAD,完成2D到3D的革命,已经不再只是停留在痴人说梦的阶段,优象会带来更多结合中国国情的应用案例和研究,SketchUp会成为设计的主要工具,并越来越好用。
办公室平面、立面图
我们采用Skalp插件对SketchUp中剖切的部分自动填充剖面图案,并且可直接转入到LayOut中输出剖面图,其专业效果已经可以完全与AutoCAD输出的图纸媲美。让我们进一步相信,使用SketchUp代替AutoCAD,完成2D到3D的革命,已经不再只是停留在痴人说梦的阶段,优象会带来更多结合中国国情的应用案例和研究,SketchUp会成为设计的主要工具,并越来越好用。
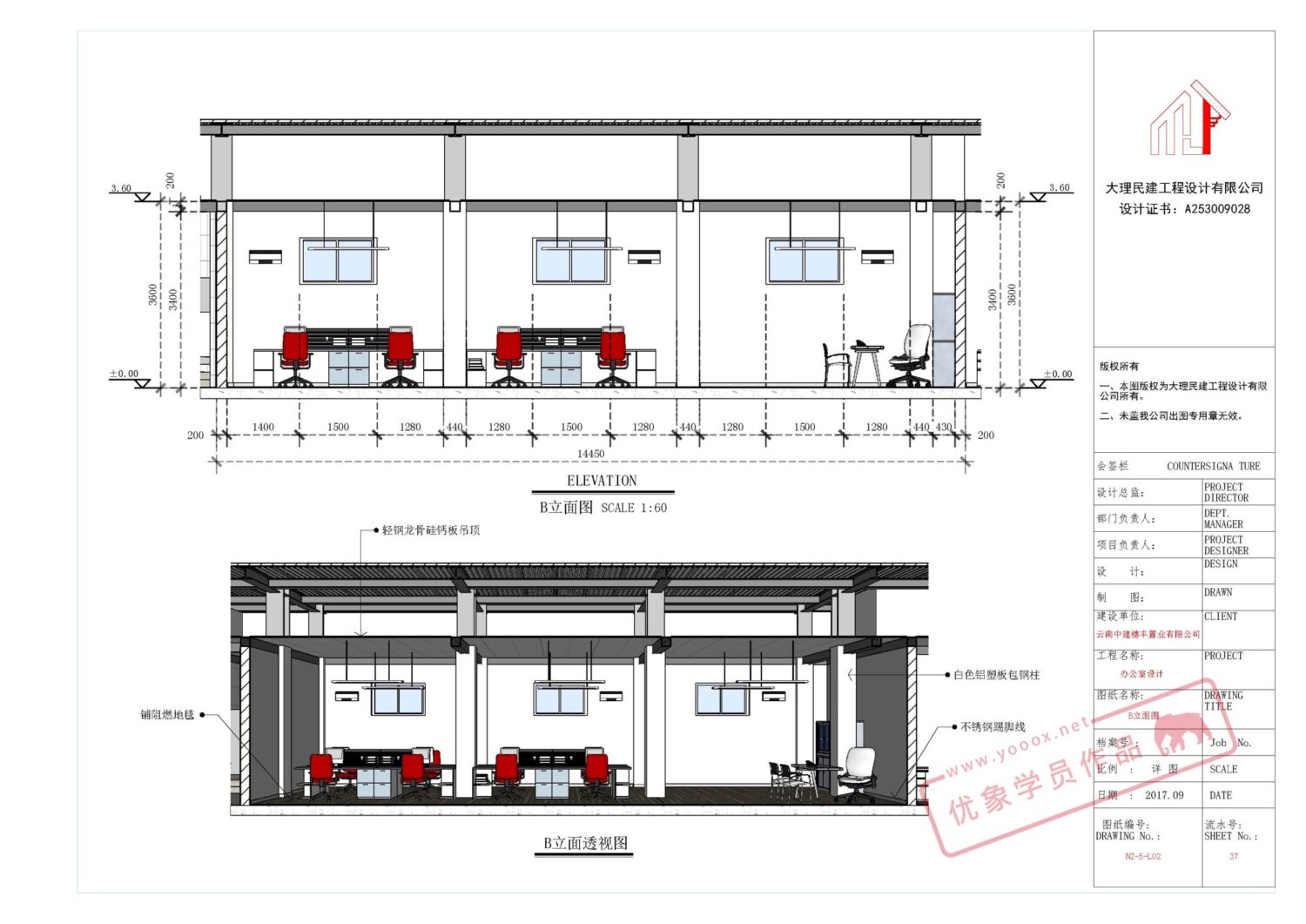
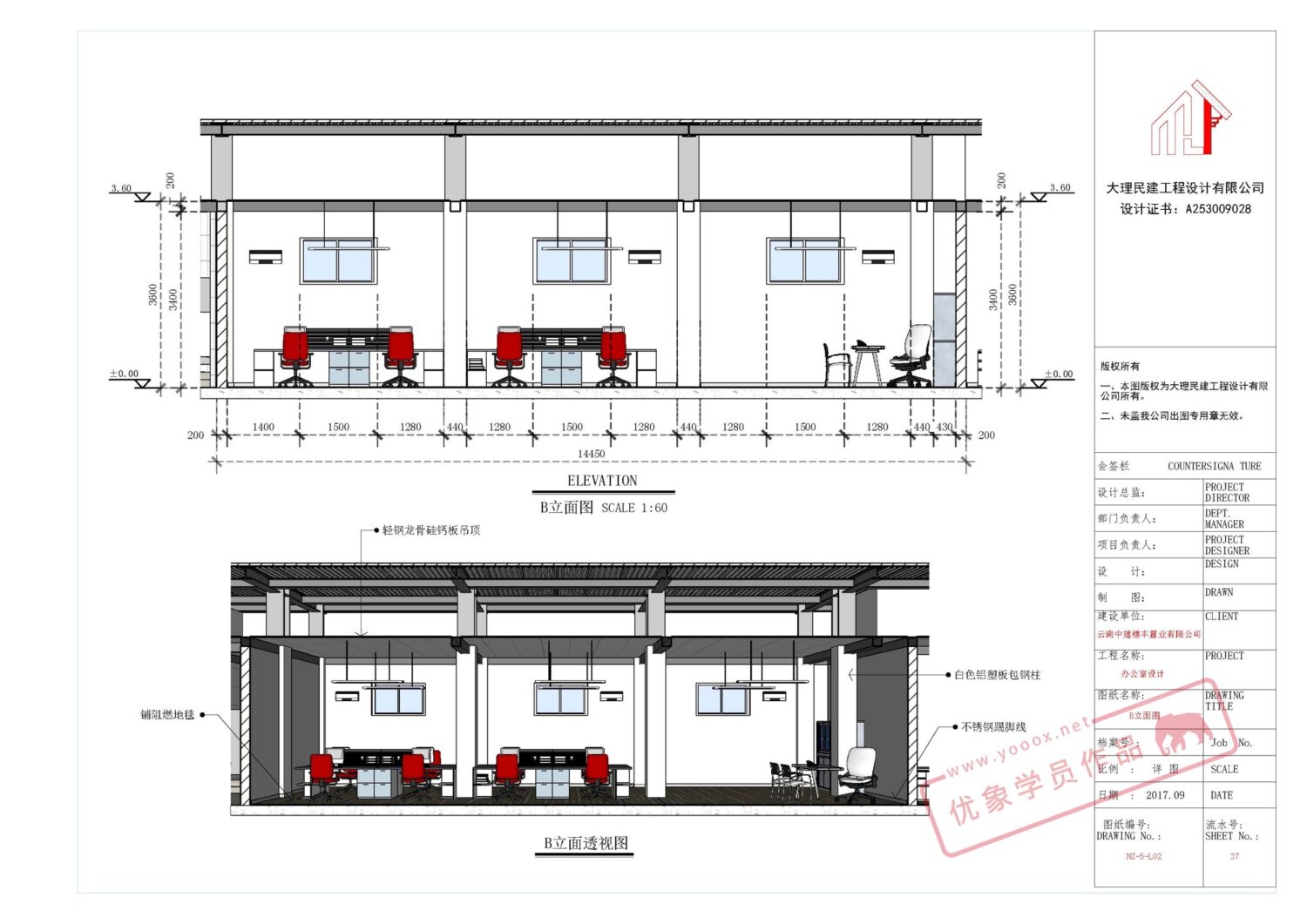
LayOut学员作品
办公室平面、立面图
我们采用Skalp插件对SketchUp中剖切的部分自动填充剖面图案,并且可直接转入到LayOut中输出剖面图,其专业效果已经可以完全与AutoCAD输出的图纸媲美。让我们进一步相信,使用SketchUp代替AutoCAD,完成2D到3D的革命,已经不再只是停留在痴人说梦的阶段,优象会带来更多结合中国国情的应用案例和研究,SketchUp会成为设计的主要工具,并越来越好用。









