详细介绍
SketchUp全屋订制家具工作流程 公开课
板式定制家具公开课
全新流程,更强更专业
自由化建模丨自构建模型库丨出图便捷,修改方便丨实时渲染,所见即所得丨自动量算及报价丨动态组件的引入及应用
进入视频公开课
自由化建模
很多朋友可能都是这个行业中的老司机,有用过很多定制设计/拆单软件(这里我们不讨论定制产品的建模有没有用,答案是肯定有用的,因为在前端,二维的东西客户/市场已经不认了,客户:我看不懂),其中有一部分软件是直接建模软件例如3Dmax,从0开始,从无到有。还有一部分软件是模块化建模软件比如圆方,三维家,都是一个个模组去组合拼接。各有各的优势,那么SU的在建模的优势在哪里?实际上SU是结合了两种类型软件的特点,既可以自己从无到有去创建模型,又可以将做好的模组保存以更加效率地调用。所以从另一个方面说,SU补足了以上两类软件的短板,配合SU众多优秀便捷的插件,实现了既可以自由化,又可以高效化的定制家具解决方案。
模型库
对于方案表达,很重要的一个元素就是模型,不光要看模型的质量如何,而且还要看模型的数量如何。大家都知道3Dmax的用户群体很大,这不光与3Dmax优秀的建模能力有关,还与它丰富的模型资源有关,基本想找什么样的模型都有它的格式。相对于三维家,酷家乐等,本身是缺乏基础建模能力的,模型的来源一是来自于max的模型转化上传,另一部分就来自于后台的建模人员建模再上传,而用户利用他们提供的元件去拼搭一些自定义的模型相对繁琐,虽然可以保存调用,但是修改起来就非常痛苦。那么回看SU,现在流通的模型资源越来越庞大的(搜淘宝SU模型就知道),加之它简单易学和人性化的界面,所以它的用户数量是逐年攀升的,在中国已经几乎与使用3Dmax的用户数量平起平坐。
这里可以与大家分享几个模型优质的模型资源站;排名除了官方不分先后,大家可以记一下
3DWarehouse官方模型库(模型最多):https://3dwarehouse.sketchup.com 检索最好用外文。
优象Store分层模型库:http://store.yooox.net/
全屋定制联盟:https://www.cnwhc.com/
其他站点参考
国外:https://www.sketchuptexture.com/
国外:http://www.sketchupartists.org/resources/
国外:https://sites.google.com/site/sketchupsage/resources/components
国外:https://www.designconnected.com/catalog/3D-Models/all
国外:http://www.yda-online.com/
国外:http://www.formfonts.com/listManufacturers.php
这门课程会教给学员用什么工具,以及如何高效的管理自己的SU模型库及材质库。
出图便捷,修改方便
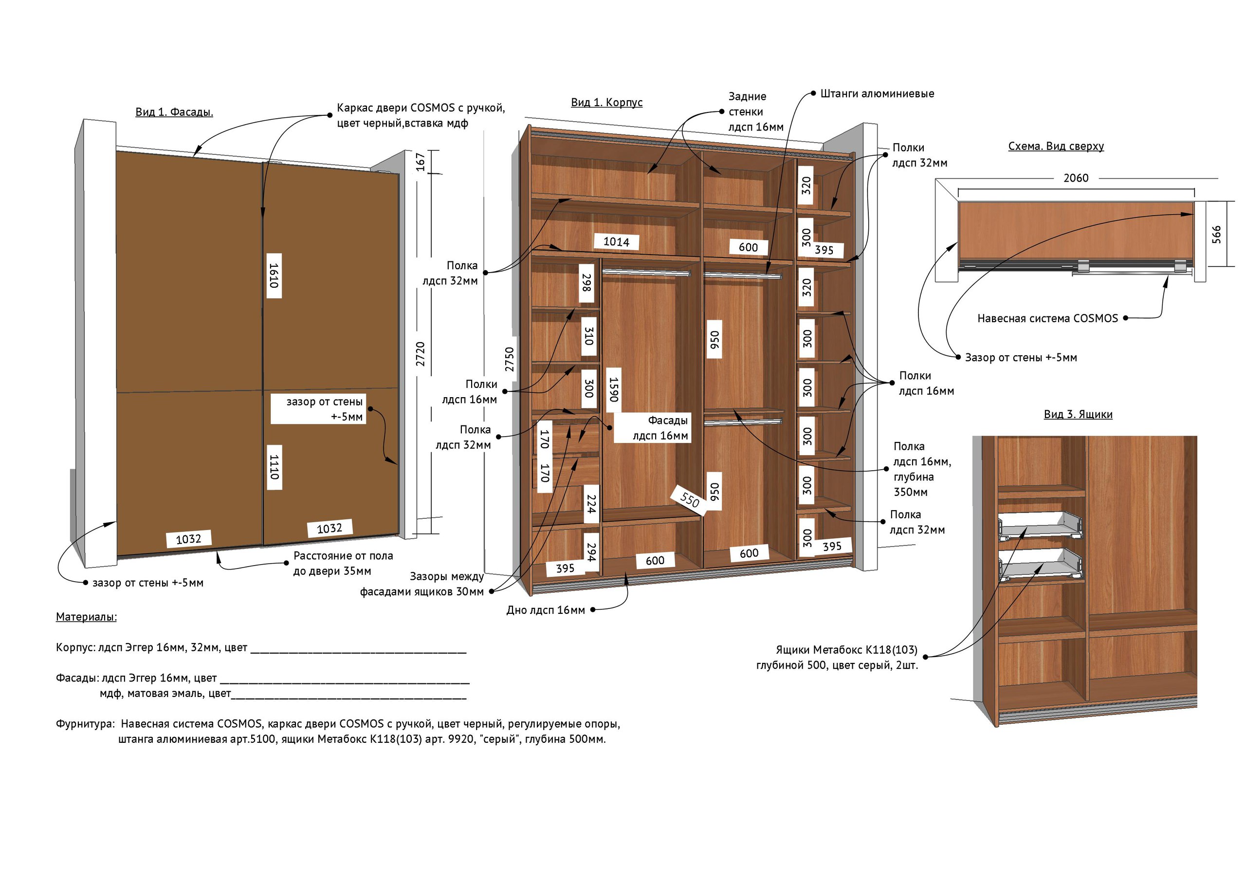
SU的出图分为两种,大家比较熟悉的可能会是CAD,这是课程后面部分会详细展开的,SU出cad的三视图,截面图等非常便捷,而且修改只需更改模型,这也非常方便,对于复杂的柜体结构,SU设计会是非常好的帮助分析结构的工具。另一种SU出图方式Layout大家会比较陌生,Layout是与su配套的软件,国外及港澳台地区的定制家具设计师出图经常会用su+layout来做彩色立体图纸表达。Layout中的图纸会随着SU模型的修改而联动,相对于CAD的导出方式更加清晰直观,而且layout可以用二维+三维的彩色方式去表现图纸,使得图纸的识别度更加高。Layout的出图方式会在课程中段给学员们做一个普及性的教学,简单应用到定制家具的出图,但是Layout本身是一个非常系统,有丰富功能的软件,想深入学习建议从优象layout的施工图专项教程入手。
CAD导出三视图及截面:
Layout导出的立体结构图及平面图
实时渲染,所见即所得
归功于可视化技术的发展,现在的效果图表现越来越快捷,Enscape…
全新流程,更强更专业
自由化建模丨自构建模型库丨出图便捷,修改方便丨实时渲染,所见即所得丨自动量算及报价丨动态组件的引入及应用
进入视频公开课
自由化建模
很多朋友可能都是这个行业中的老司机,有用过很多定制设计/拆单软件(这里我们不讨论定制产品的建模有没有用,答案是肯定有用的,因为在前端,二维的东西客户/市场已经不认了,客户:我看不懂),其中有一部分软件是直接建模软件例如3Dmax,从0开始,从无到有。还有一部分软件是模块化建模软件比如圆方,三维家,都是一个个模组去组合拼接。各有各的优势,那么SU的在建模的优势在哪里?实际上SU是结合了两种类型软件的特点,既可以自己从无到有去创建模型,又可以将做好的模组保存以更加效率地调用。所以从另一个方面说,SU补足了以上两类软件的短板,配合SU众多优秀便捷的插件,实现了既可以自由化,又可以高效化的定制家具解决方案。
模型库
对于方案表达,很重要的一个元素就是模型,不光要看模型的质量如何,而且还要看模型的数量如何。大家都知道3Dmax的用户群体很大,这不光与3Dmax优秀的建模能力有关,还与它丰富的模型资源有关,基本想找什么样的模型都有它的格式。相对于三维家,酷家乐等,本身是缺乏基础建模能力的,模型的来源一是来自于max的模型转化上传,另一部分就来自于后台的建模人员建模再上传,而用户利用他们提供的元件去拼搭一些自定义的模型相对繁琐,虽然可以保存调用,但是修改起来就非常痛苦。那么回看SU,现在流通的模型资源越来越庞大的(搜淘宝SU模型就知道),加之它简单易学和人性化的界面,所以它的用户数量是逐年攀升的,在中国已经几乎与使用3Dmax的用户数量平起平坐。
这里可以与大家分享几个模型优质的模型资源站;排名除了官方不分先后,大家可以记一下
3DWarehouse官方模型库(模型最多):https://3dwarehouse.sketchup.com 检索最好用外文。
优象Store分层模型库:http://store.yooox.net/
全屋定制联盟:https://www.cnwhc.com/
其他站点参考
国外:https://www.sketchuptexture.com/
国外:http://www.sketchupartists.org/resources/
国外:https://sites.google.com/site/sketchupsage/resources/components
国外:https://www.designconnected.com/catalog/3D-Models/all
国外:http://www.yda-online.com/
国外:http://www.formfonts.com/listManufacturers.php
这门课程会教给学员用什么工具,以及如何高效的管理自己的SU模型库及材质库。
出图便捷,修改方便
SU的出图分为两种,大家比较熟悉的可能会是CAD,这是课程后面部分会详细展开的,SU出cad的三视图,截面图等非常便捷,而且修改只需更改模型,这也非常方便,对于复杂的柜体结构,SU设计会是非常好的帮助分析结构的工具。另一种SU出图方式Layout大家会比较陌生,Layout是与su配套的软件,国外及港澳台地区的定制家具设计师出图经常会用su+layout来做彩色立体图纸表达。Layout中的图纸会随着SU模型的修改而联动,相对于CAD的导出方式更加清晰直观,而且layout可以用二维+三维的彩色方式去表现图纸,使得图纸的识别度更加高。Layout的出图方式会在课程中段给学员们做一个普及性的教学,简单应用到定制家具的出图,但是Layout本身是一个非常系统,有丰富功能的软件,想深入学习建议从优象layout的施工图专项教程入手。
CAD导出三视图及截面:
Layout导出的立体结构图及平面图
实时渲染,所见即所得
归功于可视化技术的发展,现在的效果图表现越来越快捷,Enscape…
板式定制家具公开课
全新流程,更强更专业
自由化建模丨自构建模型库丨出图便捷,修改方便丨实时渲染,所见即所得丨自动量算及报价丨动态组件的引入及应用

自由化建模
很多朋友可能都是这个行业中的老司机,有用过很多定制设计/拆单软件(这里我们不讨论定制产品的建模有没有用,答案是肯定有用的,因为在前端,二维的东西客户/市场已经不认了,客户:我看不懂),其中有一部分软件是直接建模软件例如3Dmax,从0开始,从无到有。还有一部分软件是模块化建模软件比如圆方,三维家,都是一个个模组去组合拼接。各有各的优势,那么SU的在建模的优势在哪里?实际上SU是结合了两种类型软件的特点,既可以自己从无到有去创建模型,又可以将做好的模组保存以更加效率地调用。所以从另一个方面说,SU补足了以上两类软件的短板,配合SU众多优秀便捷的插件,实现了既可以自由化,又可以高效化的定制家具解决方案。


模型库
对于方案表达,很重要的一个元素就是模型,不光要看模型的质量如何,而且还要看模型的数量如何。大家都知道3Dmax的用户群体很大,这不光与3Dmax优秀的建模能力有关,还与它丰富的模型资源有关,基本想找什么样的模型都有它的格式。相对于三维家,酷家乐等,本身是缺乏基础建模能力的,模型的来源一是来自于max的模型转化上传,另一部分就来自于后台的建模人员建模再上传,而用户利用他们提供的元件去拼搭一些自定义的模型相对繁琐,虽然可以保存调用,但是修改起来就非常痛苦。那么回看SU,现在流通的模型资源越来越庞大的(搜淘宝SU模型就知道),加之它简单易学和人性化的界面,所以它的用户数量是逐年攀升的,在中国已经几乎与使用3Dmax的用户数量平起平坐。
这里可以与大家分享几个模型优质的模型资源站;排名除了官方不分先后,大家可以记一下
3DWarehouse官方模型库(模型最多):https://3dwarehouse.sketchup.com 检索最好用外文。

优象Store分层模型库:http://store.yooox.net/

出图便捷,修改方便
SU的出图分为两种,大家比较熟悉的可能会是CAD,这是课程后面部分会详细展开的,SU出cad的三视图,截面图等非常便捷,而且修改只需更改模型,这也非常方便,对于复杂的柜体结构,SU设计会是非常好的帮助分析结构的工具。另一种SU出图方式Layout大家会比较陌生,Layout是与su配套的软件,国外及港澳台地区的定制家具设计师出图经常会用su+layout来做彩色立体图纸表达。Layout中的图纸会随着SU模型的修改而联动,相对于CAD的导出方式更加清晰直观,而且layout可以用二维+三维的彩色方式去表现图纸,使得图纸的识别度更加高。Layout的出图方式会在课程中段给学员们做一个普及性的教学,简单应用到定制家具的出图,但是Layout本身是一个非常系统,有丰富功能的软件,想深入学习建议从优象layout的施工图专项教程入手。
CAD导出三视图及截面:

Layout导出的立体结构图及平面图

实时渲染,所见即所得
归功于可视化技术的发展,现在的效果图表现越来越快捷,Enscape的出现,很好的平衡了效果与速度,越来越多的人选择在普通方案中使用En来制作效果图及全景图,这是一款内嵌与su的实时渲染器,可以边建模推敲方案,边预览渲染的效果,就渲染质量来说虽然还无法和Vary的真实度相比,但是4K的高清效果仅需几秒钟出图以及优秀的自动曝光功能也是让人欲罢不能,省了很多布光和渲染的的时间!课程后半段将由优象渲染经验丰富的刘老师带学员入门学习Enscape。

自动量算及报价
这是SU基于自身或者插件来说一个应用于板式定制的天然优势,通过统计组件及组件的自定义属性,可以获得模型的多种信息,如板件的长宽厚,表面积,体积,个数等等,这些都可以在组件中预制出来,当大家用有预制信息的模块做完设计以后,可以通过su或者su的插件制定规则,将需要的信息让软件去处理,自动导出量算结果,报价及统计,不再需要人工计算,做完模型可以很轻松的计算材料数量及价格,而且非常准确。无论怎样修改方案,都可以重新快速生成量算结果。这也是本课程讲着重为学员们讲解的一个内容,相信能为很多在店面任职的设计师解决精确报价的烦恼。

动态组件的引入及应用
动态组件实际上相当于给普通的模型加了属性及函数,通过面板及活动可以控制模型尺寸,结构,及材质等属性,这在一些拆单及设计软件中一般是程序员预先写好的,这样他们为企业定制的时候可以收取相当一部分的定制费用,比如适合XX定制品牌的结构控制及材料库。然而SU中本身自带这种开发功能,用户可以通过自己编写函数,建立属性及模型间的桥梁关系,从而实现参数控制。本课程会有动态组件入门讲解,讲5个常用函数在板式家具中的应用。

控制面板安装(切换常用安装高度,切换面板类型,输入自定义高度)

榻榻米收口框架(尺寸小时自动隐藏立板,自定义立板数量)

自动均分层板(拉伸匹配柜体内空,均分内空层板,自定义均分层板数量)

自动吸附表面(单击调整横竖安装)
第2期 SketchUp板式定制家具培训 现接受报名
优象出品的一套定制家具设计工作流课程,这套工作流基于sketchup,打通定制前端,从设计到渲染,出图到报价的整个前端流程,实现了有别于参数建模的快速设计,急速出效果图,全景图,以及模型修改图纸联动,软件自动量算等功能,非常适合前端定制设计人员。相比于每年花大笔专业定制软件费,这是一套经济且高效的工作流程。
您将会掌握:
- 动态组件入门
- 插件安装管理
- 定制主辅插件详解
- 快捷键快速上手技巧
- 报表清单的运用
- 命名及图层系统
- 定制组件制作详解
- 贴图制作详解
- 户型建模
- 快速利用型录创建定制模型
- SU到CAD的图纸输出详解
- Layout介绍及入门
- SU到Layout的图纸输出介绍
- ——————————————————————
- Enscape模型布光
- Enscape材质系统
- Enscape效果图输出
- Enscape全景图输出
- Enscape视频输出
- Enscape场景EXE输出
学前要求:
- SketchUp进阶用户,有一定的使用基础。
如何上课:
- 上课方式:网络授课 现场提问 线下答疑
- 上课时间:逢星期一晚上8点半
- 课程周期:6节课时
开课时间:
- 开课时间:2018.10.15
- 人数:满50人报名结束
- 学费:¥988元/¥799元(老学员)
联系方式:
- QQ:1014195157
- 电话:13790501381
- 交流群:566255283