详细介绍
LayOut学员作品:SketchUp三维BIM施工图
SketchUp三维BIM施工图
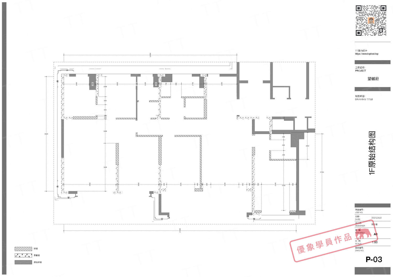
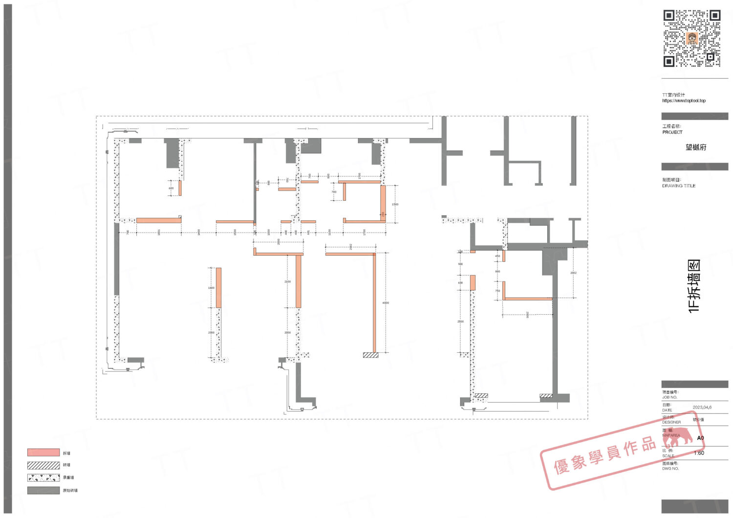
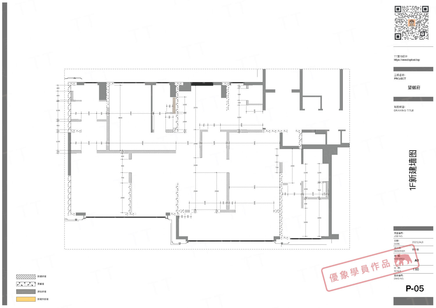
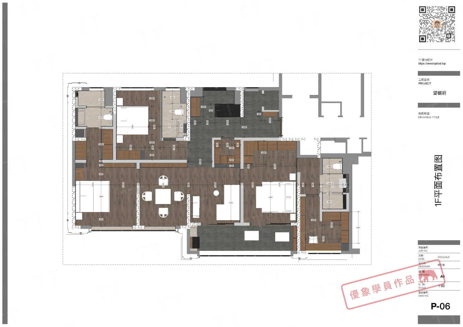
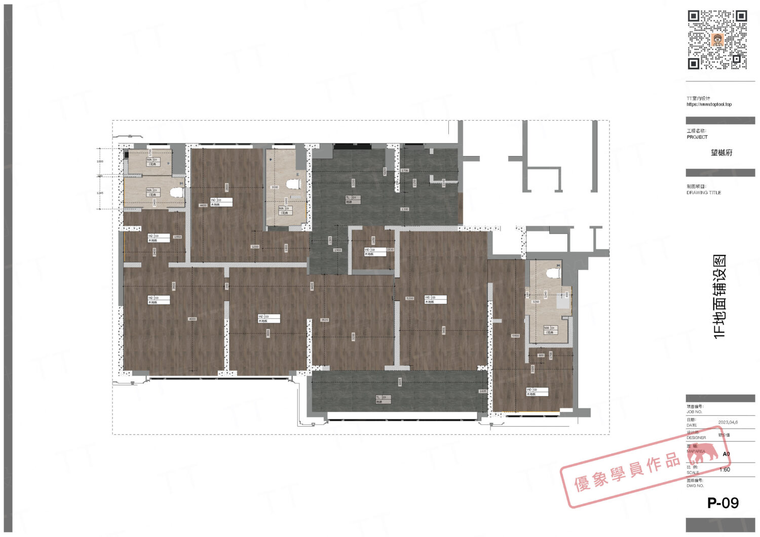
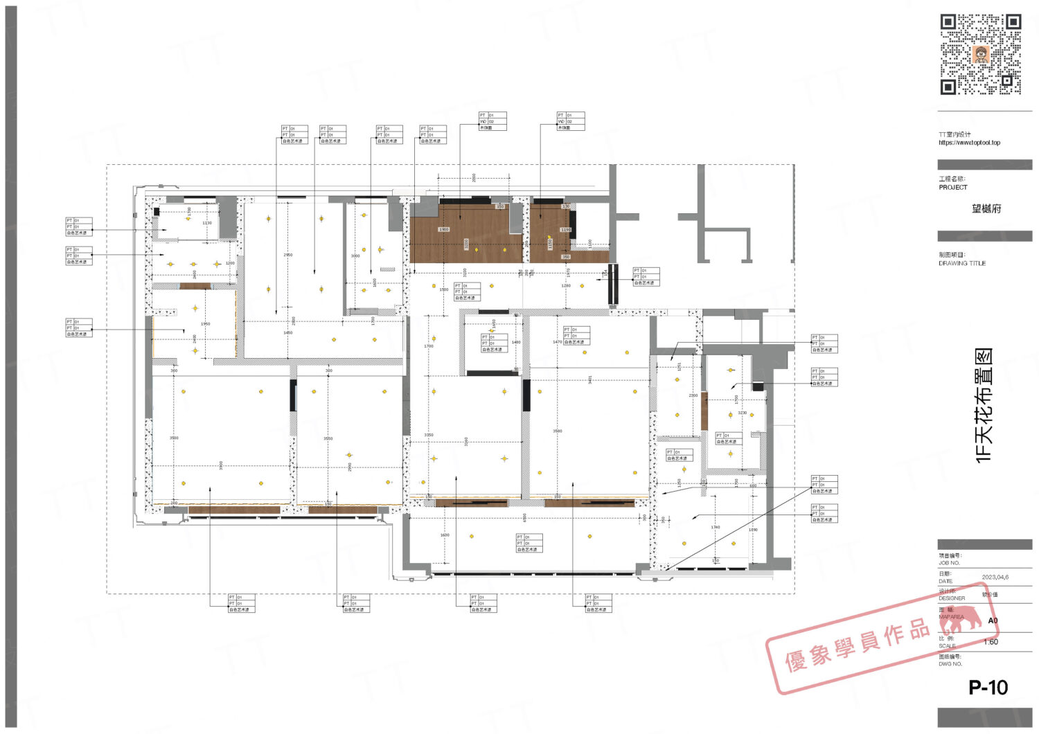
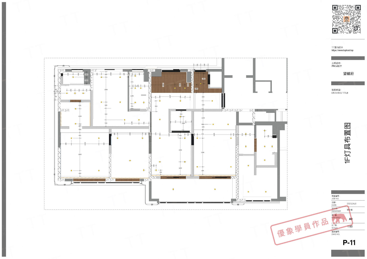
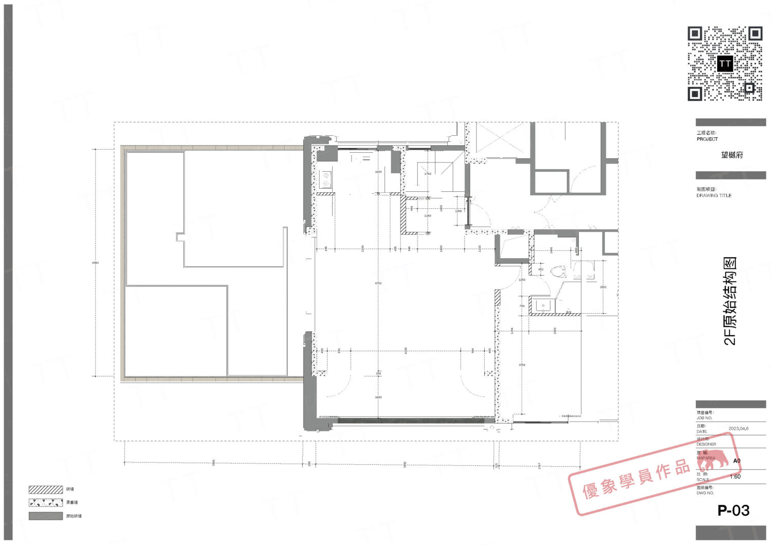
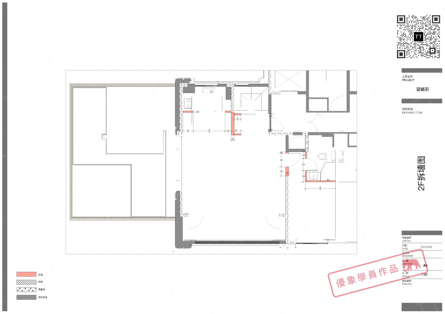
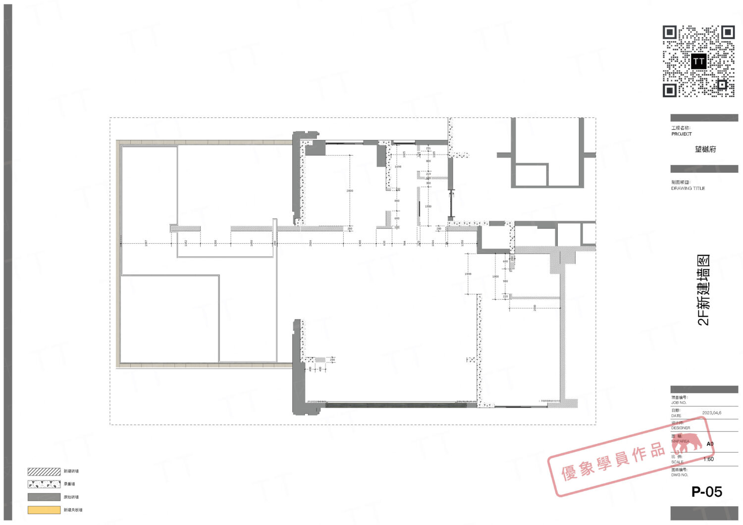
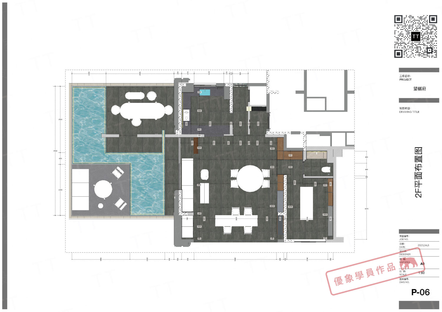
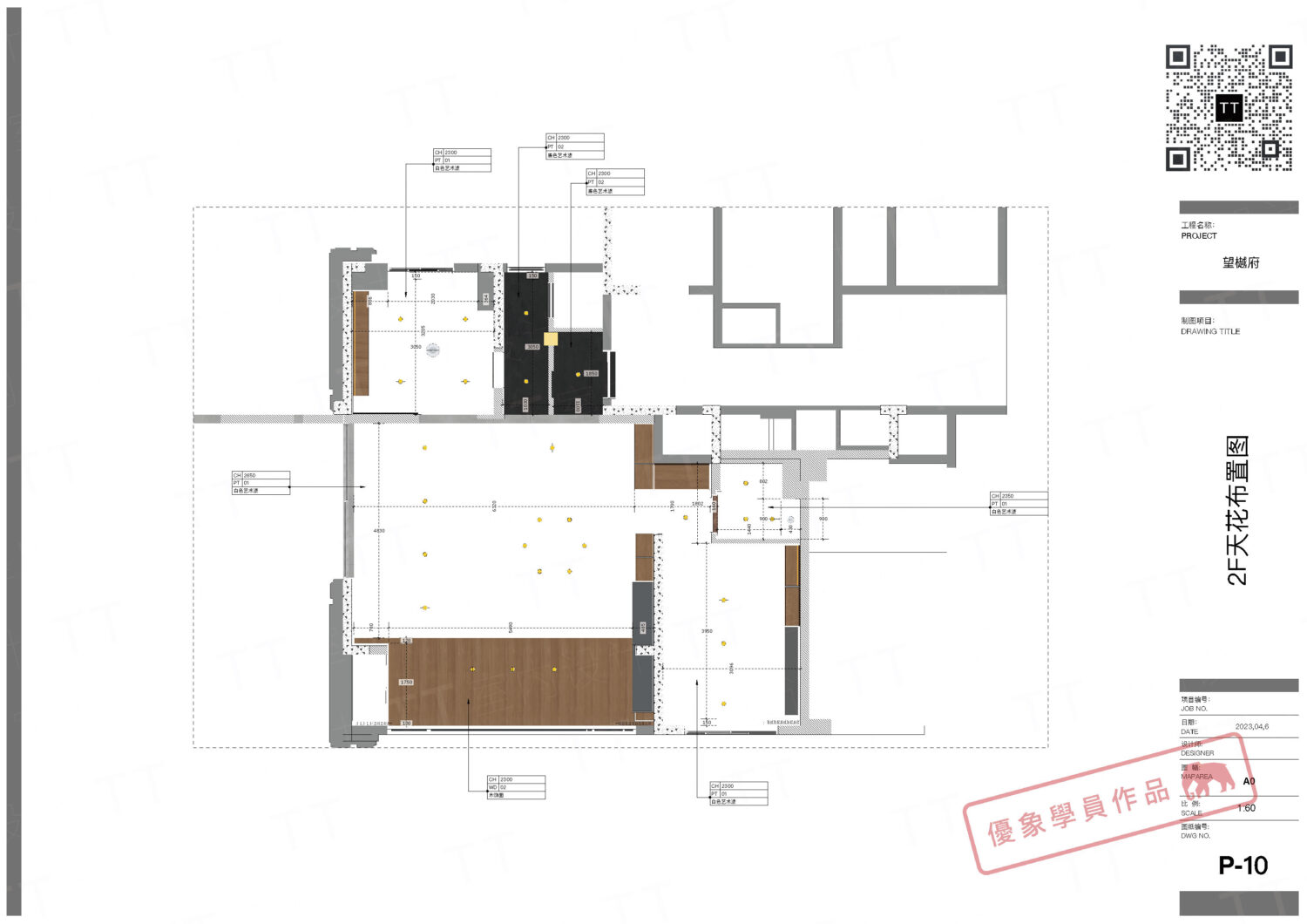
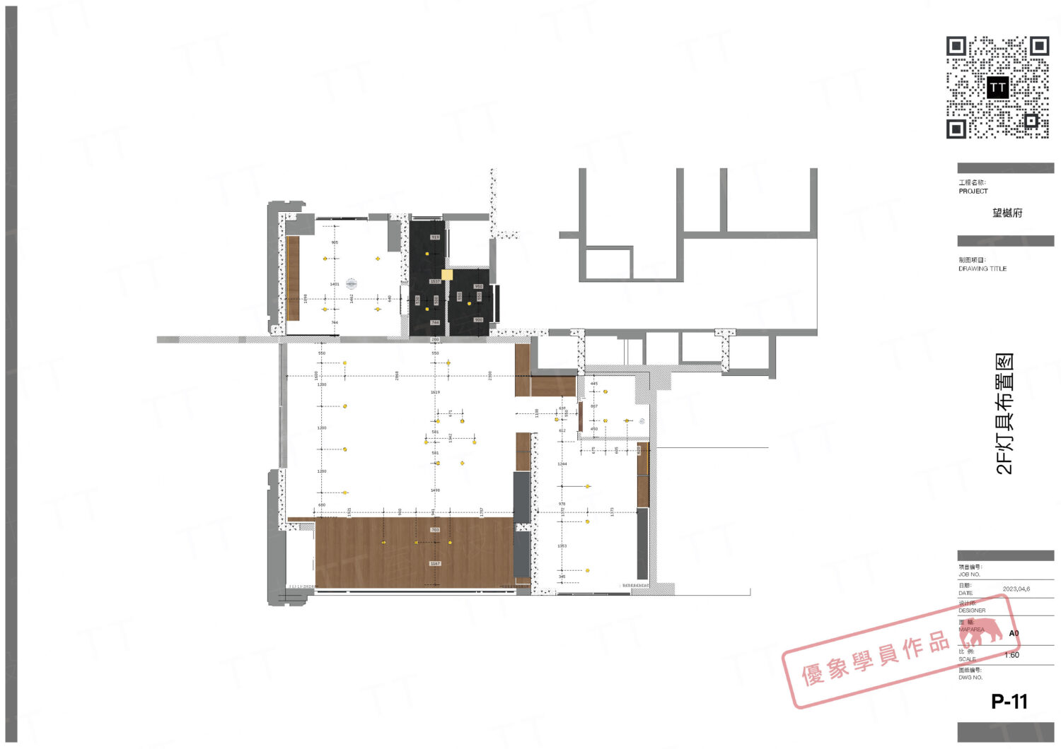
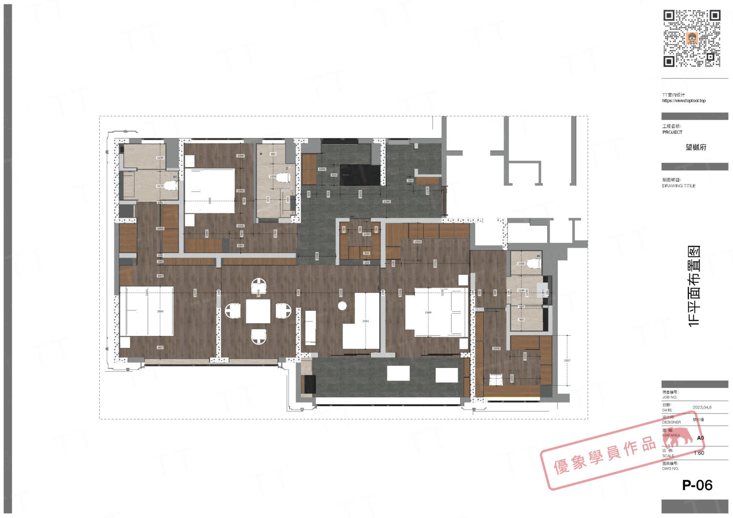
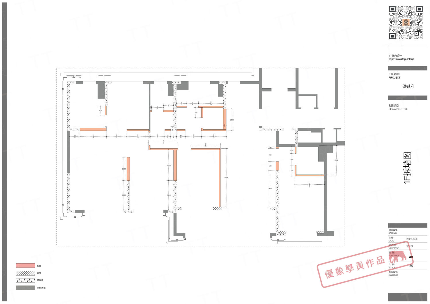
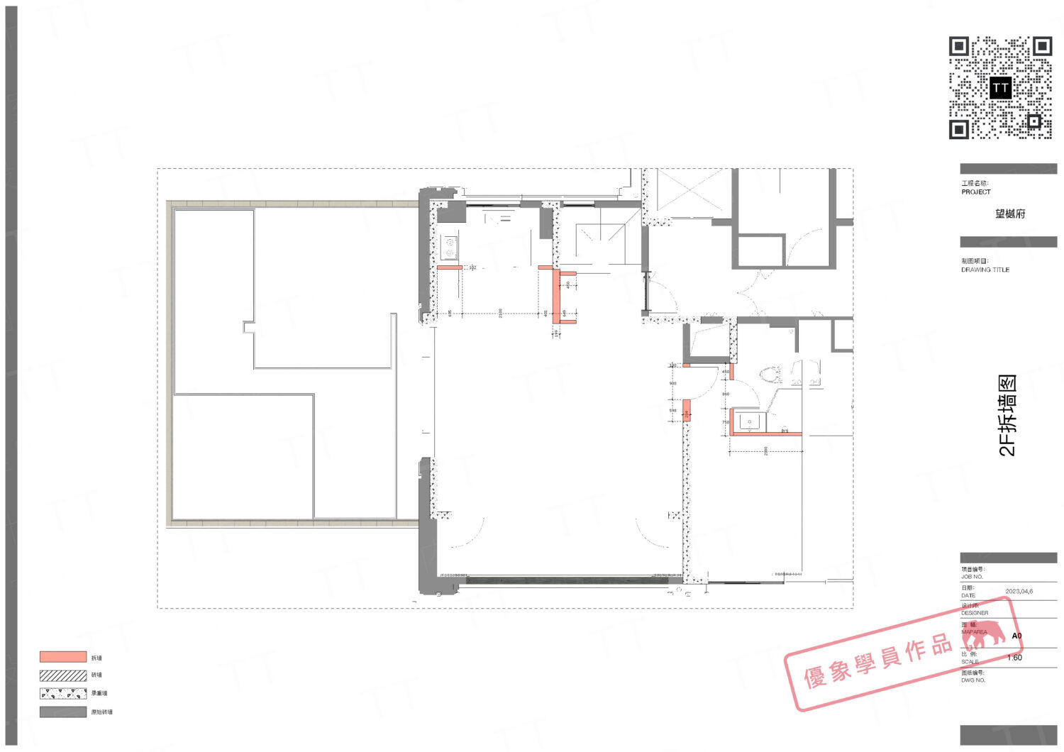
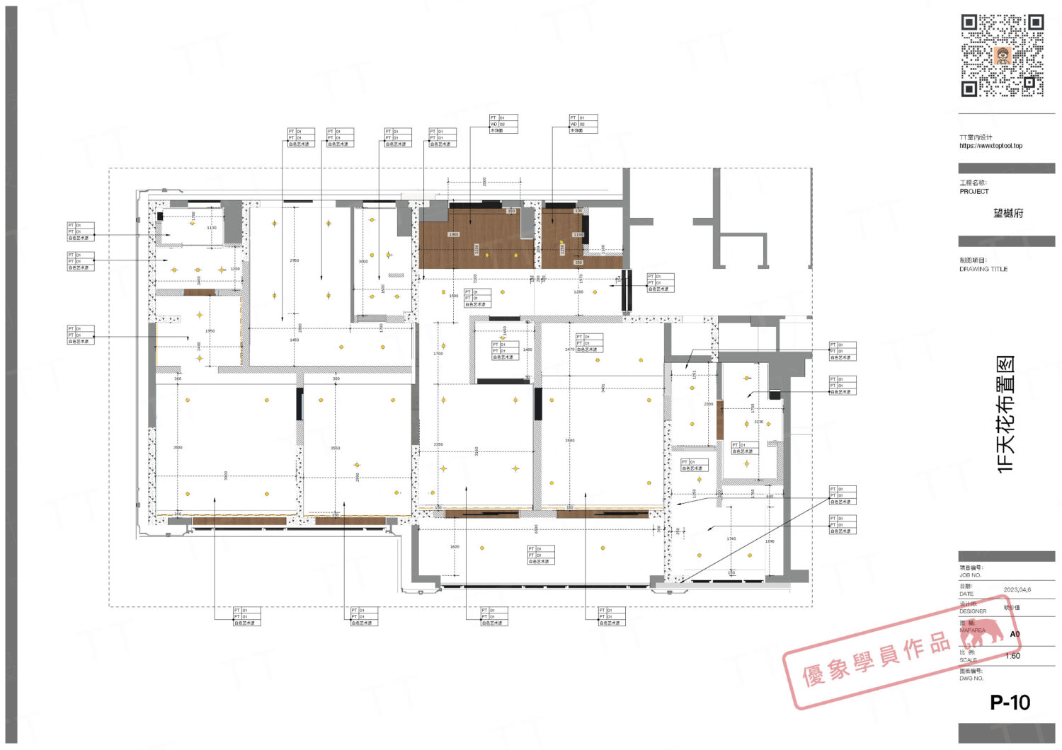
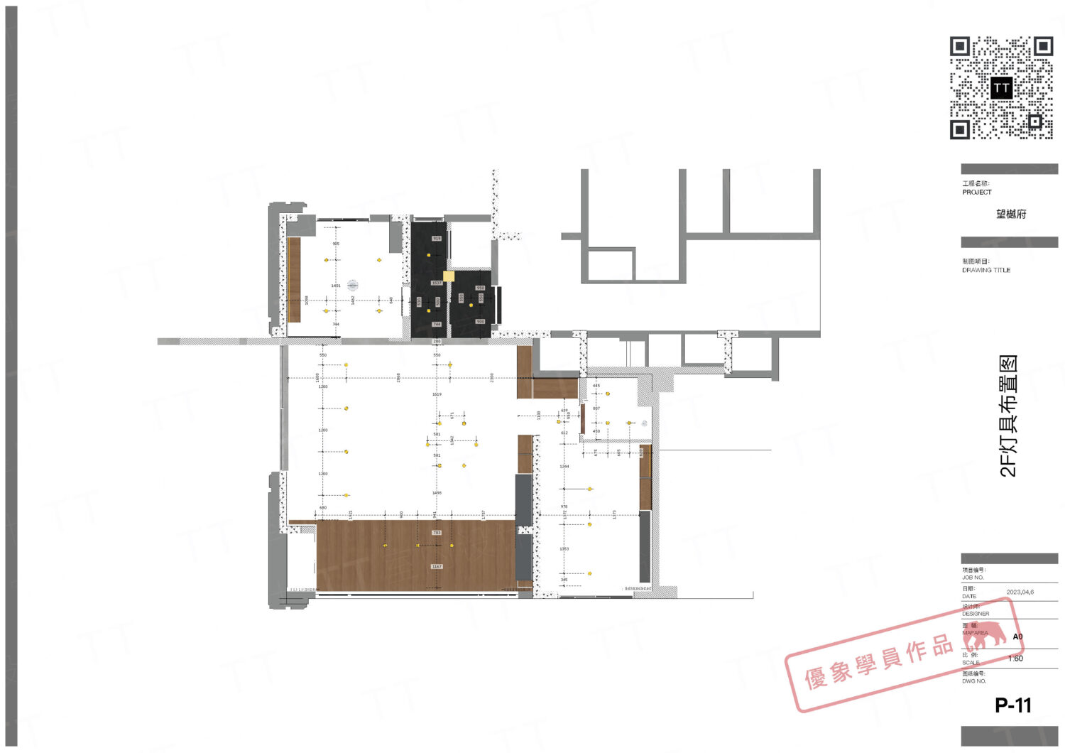
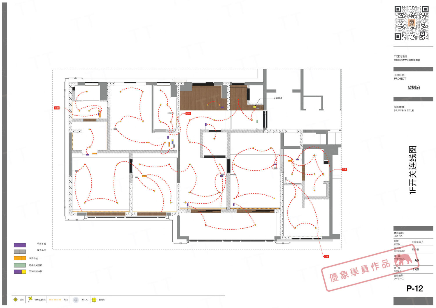
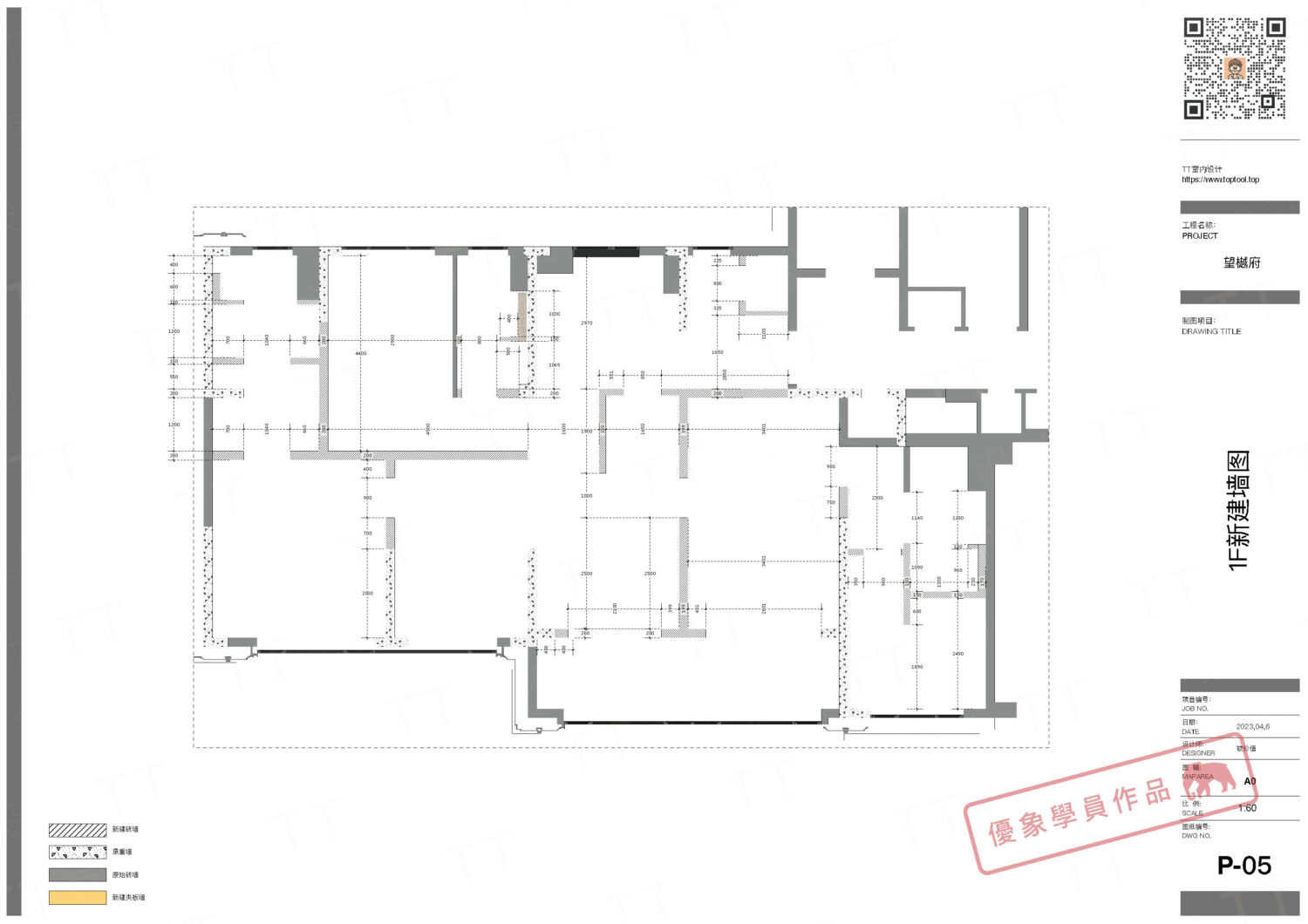
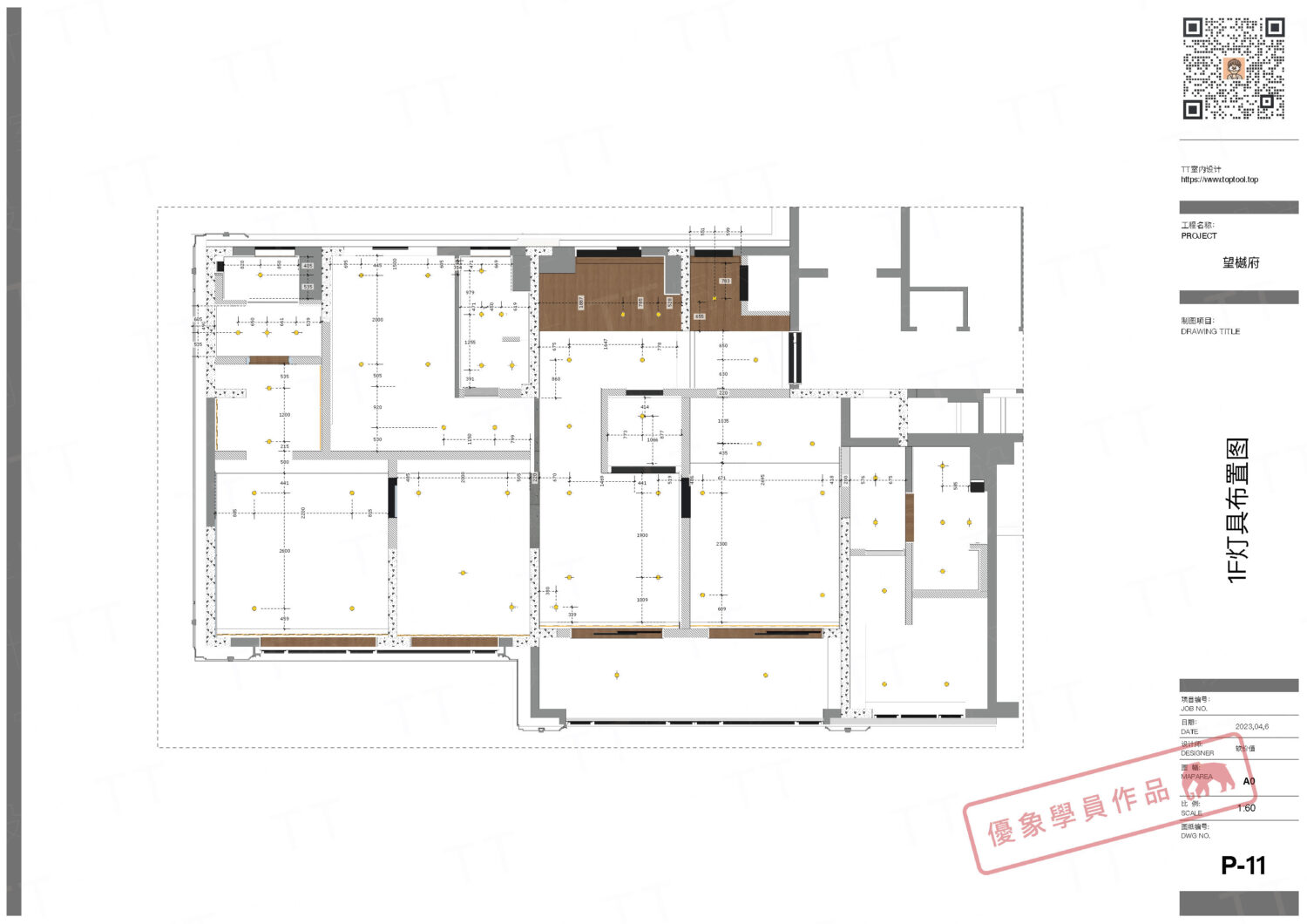
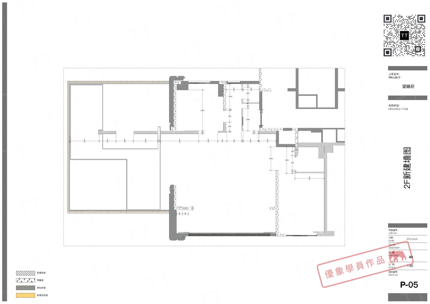
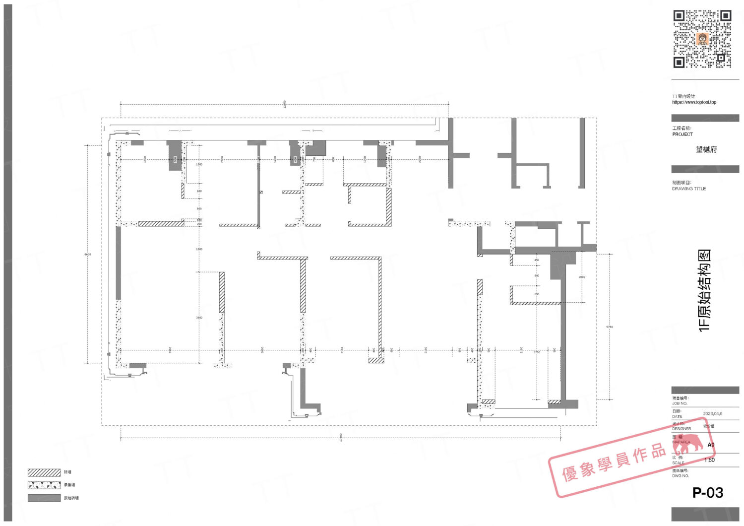
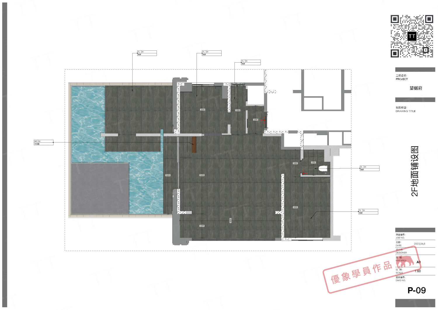
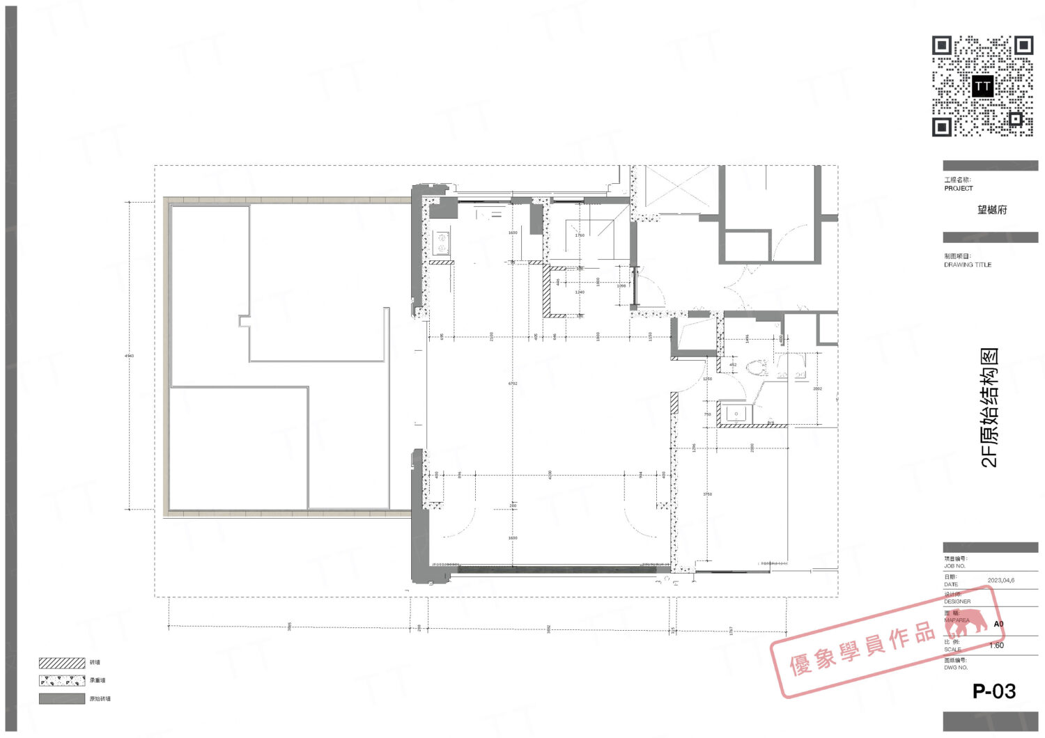
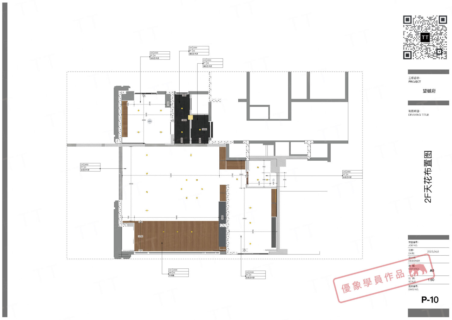
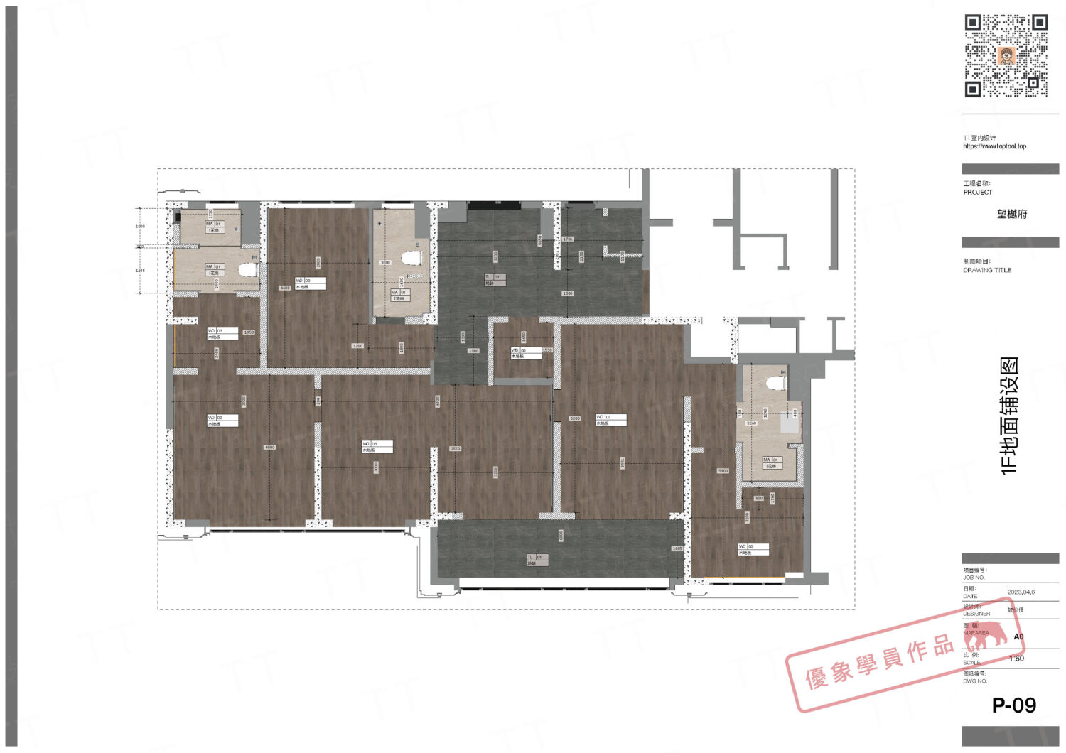
在套房精装设计中,layout施工图也是非常重要的一部分。layout施工图是一种基于CAD技术的二维图纸,可以清晰地展示每个房间的具体布局和装修细节,包括墙面、地面、天花板、家具、电器等。通过layout施工图,施工人员可以清晰地了解每个房间的装修要求,从而更好地进行施工。
建立品牌形象
更好的视觉效果
Layout施工图可以帮助客户更好地理解设计师的想法和设计方案。通过三维图像,客户可以更直观地看到设计的外观和效果。设计师可以展示自己的品牌形象和设计风格,从而建立自己的品牌形象。客户可以通过三维施工图了解设计师的风格和品牌形象,从而更好地选择自己需要的设计师。
签单神器
良好的沟通桥梁
促进设计师和客户之间更好的合作和沟通。通过三维施工图,设计师可以更好地展示设计方案,客户可以更好地理解设计意图和提供反馈。避免误解和错误的发生。这可以加强设计师和客户之间的合作,提高项目签单的成功率。
以客户为中心
重塑客户体验之旅
传统的CAD施工图相对比较复杂,多数客户看不懂,并不能理解其意图。Layout施工图客户可以更直观地看懂设计的效果和细节,从而更好地了解设计方案。客户可以获得更好的体验。提高客户的满意度和忠诚度。
D5渲染利器
让渲染环节高质量、稳定、速度
当今社会,人们对于居住环境的要求越来越高,套房的精装设计也越来越受到人们的关注。在这个过程中,效果图的表现更能表现出设计想法,成为了套房精装设计中不可或…
LayOut学员作品
SketchUp三维BIM施工图
在套房精装设计中,layout施工图也是非常重要的一部分。layout施工图是一种基于CAD技术的二维图纸,可以清晰地展示每个房间的具体布局和装修细节,包括墙面、地面、天花板、家具、电器等。通过layout施工图,施工人员可以清晰地了解每个房间的装修要求,从而更好地进行施工。
建立品牌形象
更好的视觉效果
Layout施工图可以帮助客户更好地理解设计师的想法和设计方案。通过三维图像,客户可以更直观地看到设计的外观和效果。设计师可以展示自己的品牌形象和设计风格,从而建立自己的品牌形象。客户可以通过三维施工图了解设计师的风格和品牌形象,从而更好地选择自己需要的设计师。
签单神器
良好的沟通桥梁
促进设计师和客户之间更好的合作和沟通。通过三维施工图,设计师可以更好地展示设计方案,客户可以更好地理解设计意图和提供反馈。避免误解和错误的发生。这可以加强设计师和客户之间的合作,提高项目签单的成功率。
以客户为中心
重塑客户体验之旅
传统的CAD施工图相对比较复杂,多数客户看不懂,并不能理解其意图。Layout施工图客户可以更直观地看懂设计的效果和细节,从而更好地了解设计方案。客户可以获得更好的体验。提高客户的满意度和忠诚度。
D5渲染利器
让渲染环节高质量、稳定、速度
当今社会,人们对于居住环境的要求越来越高,套房的精装设计也越来越受到人们的关注。在这个过程中,效果图的表现更能表现出设计想法,成为了套房精装设计中不可或缺的一部分。
用D5渲染效果图,稳定真实,可以将设计师的想法转化为逼真的三维图像,让人们可以在未实际装修之前就能够看到房间的真实效果。D5渲染出图效率高效,不仅可以提高设计效率,还可以帮助业主更好地理解设计师的想法,从而更好地参与到装修过程中。
除了效果图,全景图也是套房精装设计中常用的一种展示方式。全景图是一种将多张照片拼接在一起形成的全景效果,可以让人们像身临其境一样感受整个房间的氛围和空间感。全景图的应用可以让业主更好地了解房间的布局和装修风格,从而更好地参与到装修过程中。















































































