LayOut学员作品:套房精裝修設

LayOut学员作品

套房精装修设计


当今社会,人们对于居住环境的要求越来越高,套房的精装设计也越来越受到人们的关注。在这个过程中,效果图的表现更能表现出设计想法,成为了套房精装设计中不可或缺的一部分。

用D5渲染效果图,稳定真实,可以将设计师的想法转化为逼真的三维图像,让人们可以在未实际装修之前就能够看到房间的真实效果。D5渲染出图效率高效,不仅可以提高设计效率,还可以帮助业主更好地理解设计师的想法,从而更好地参与到装修过程中。

除了效果图,全景图也是套房精装设计中常用的一种展示方式。全景图是一种将多张照片拼接在一起形成的全景效果,可以让人们像身临其境一样感受整个房间的氛围和空间感。全景图的应用可以让业主更好地了解房间的布局和装修风格,从而更好地参与到装修过程中。

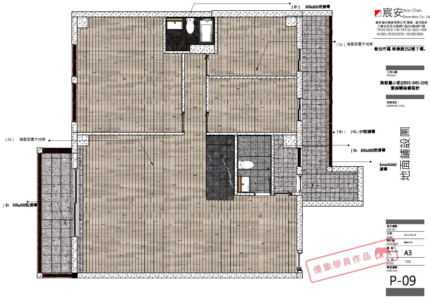
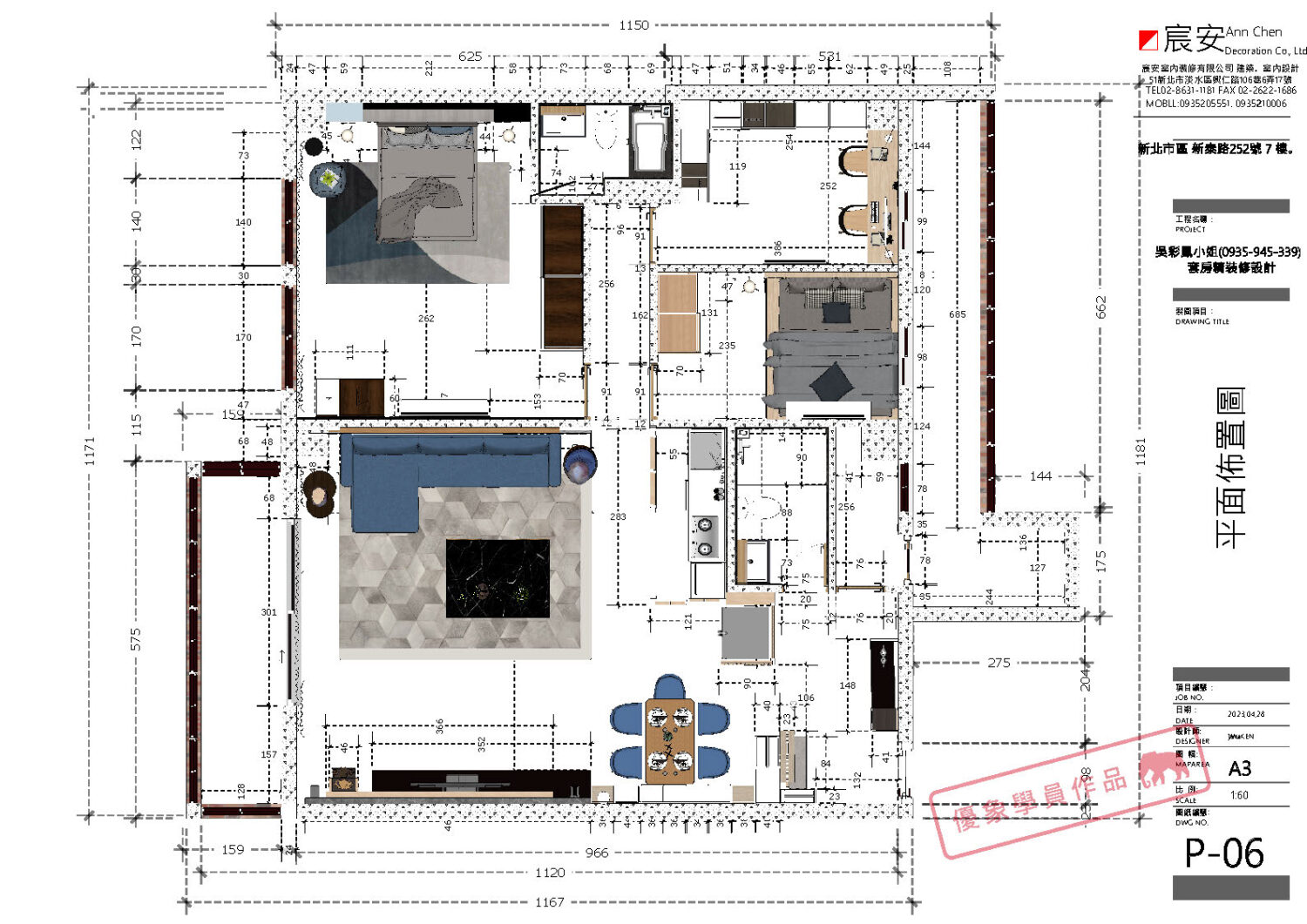
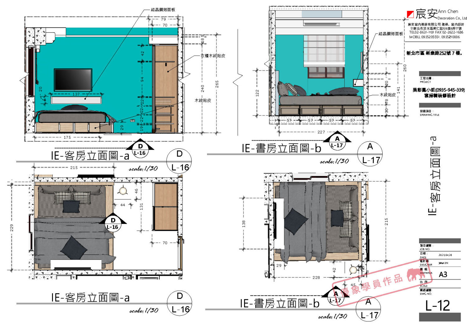
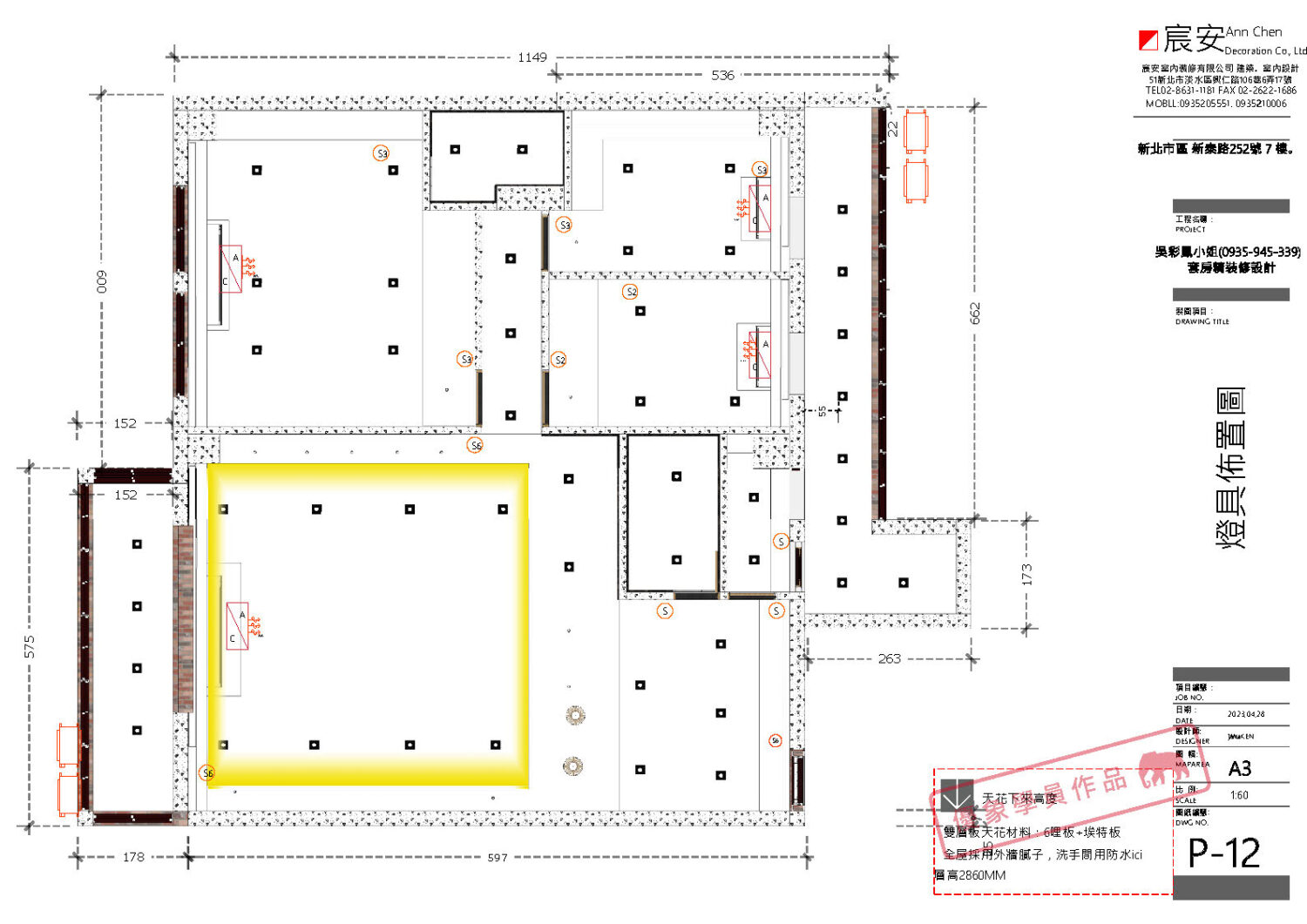
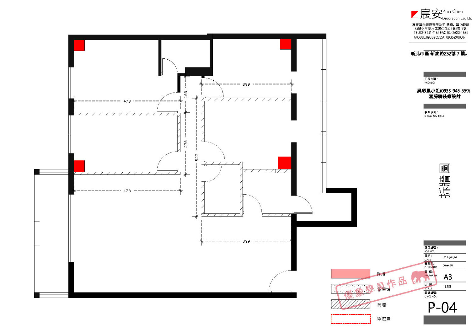
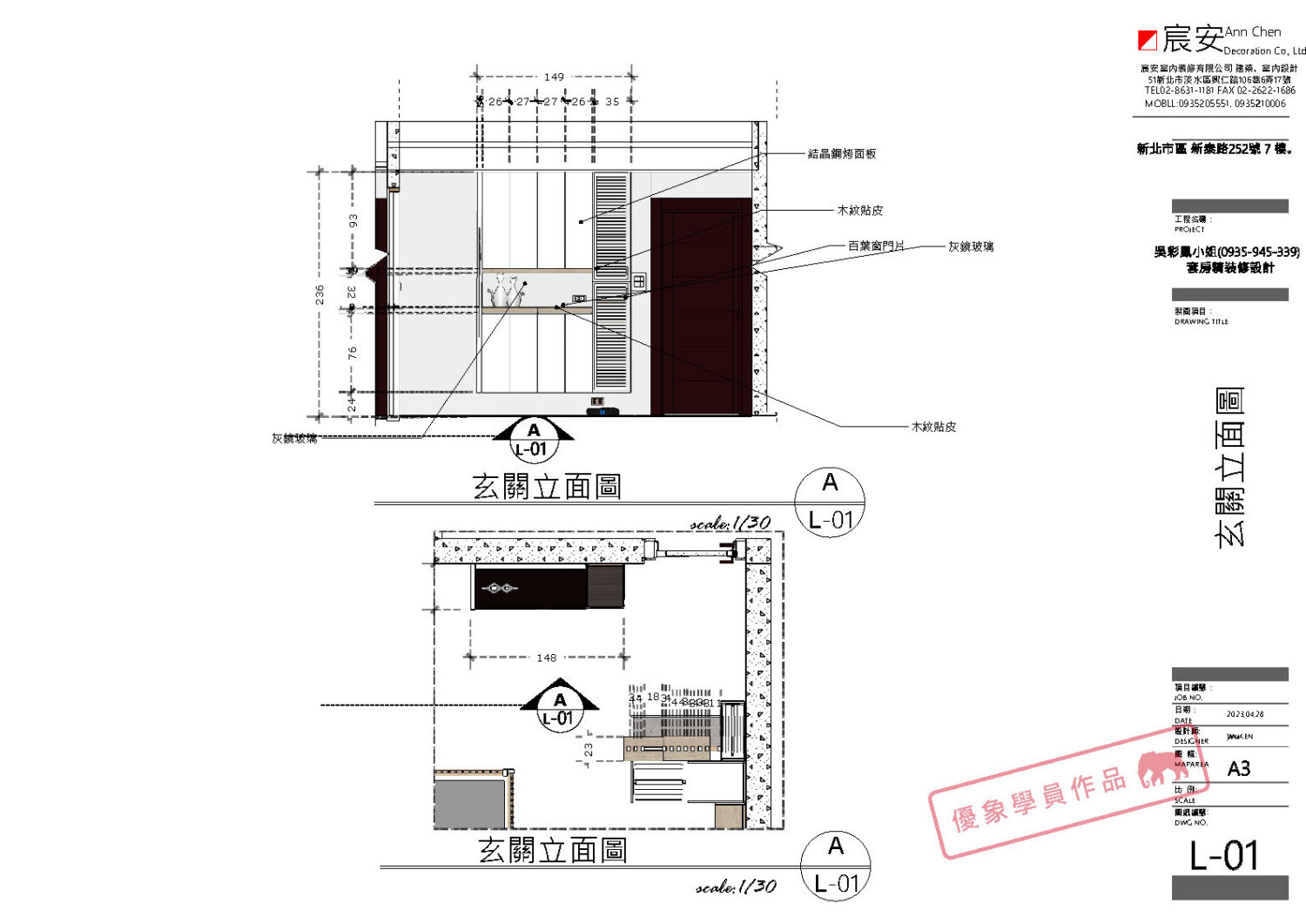
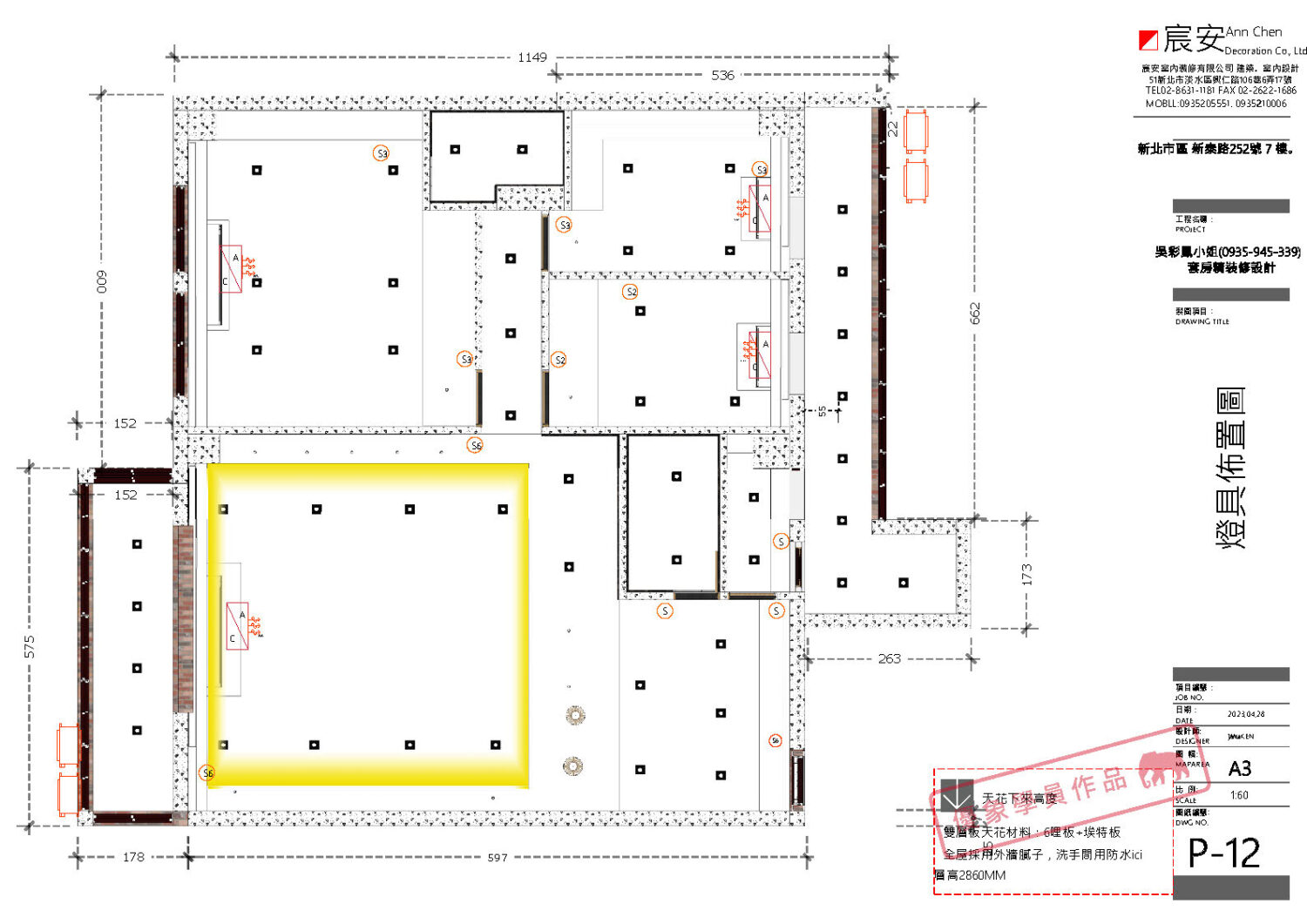
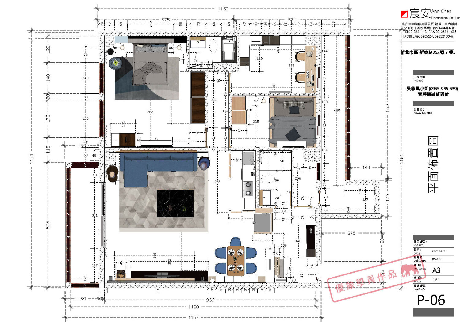
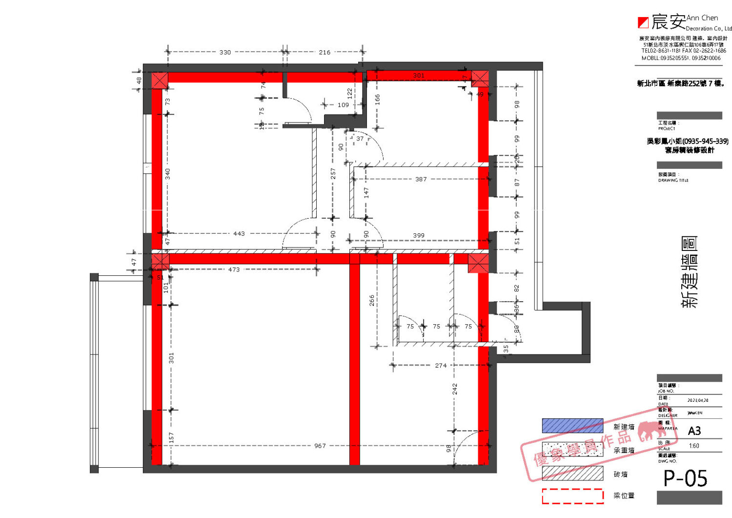
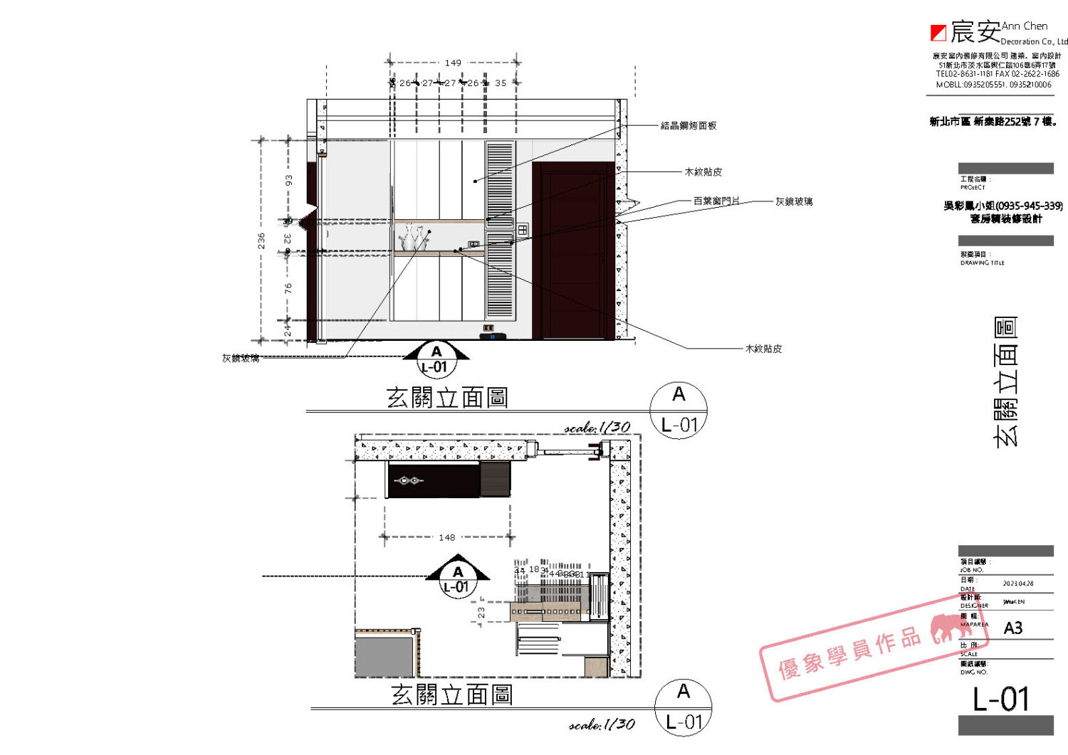
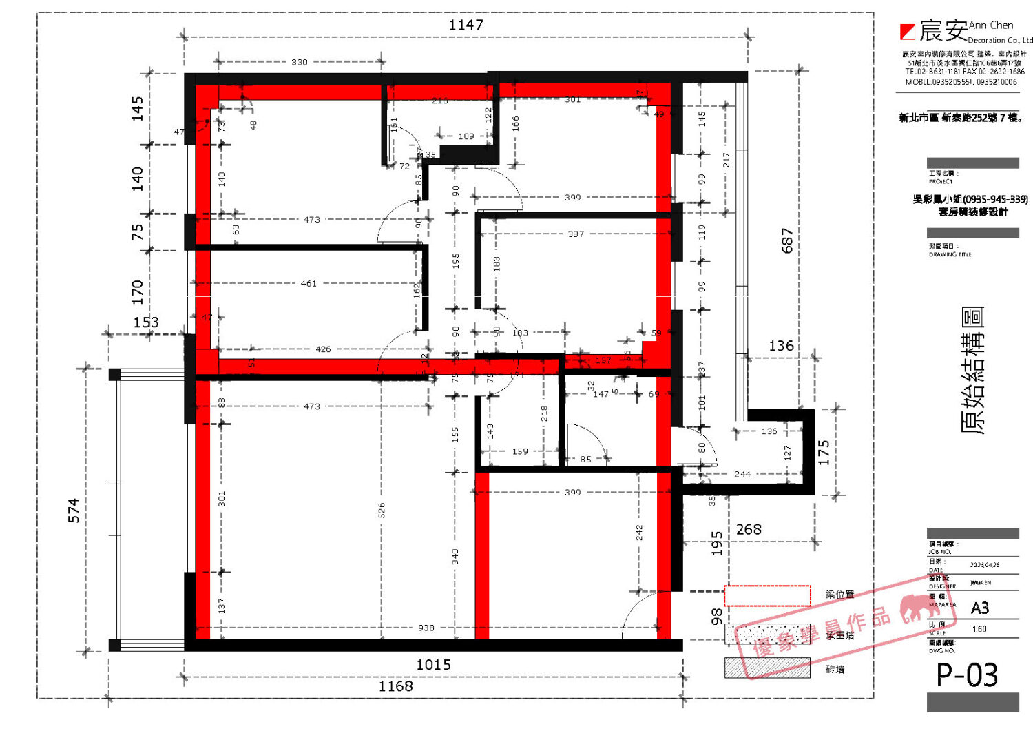
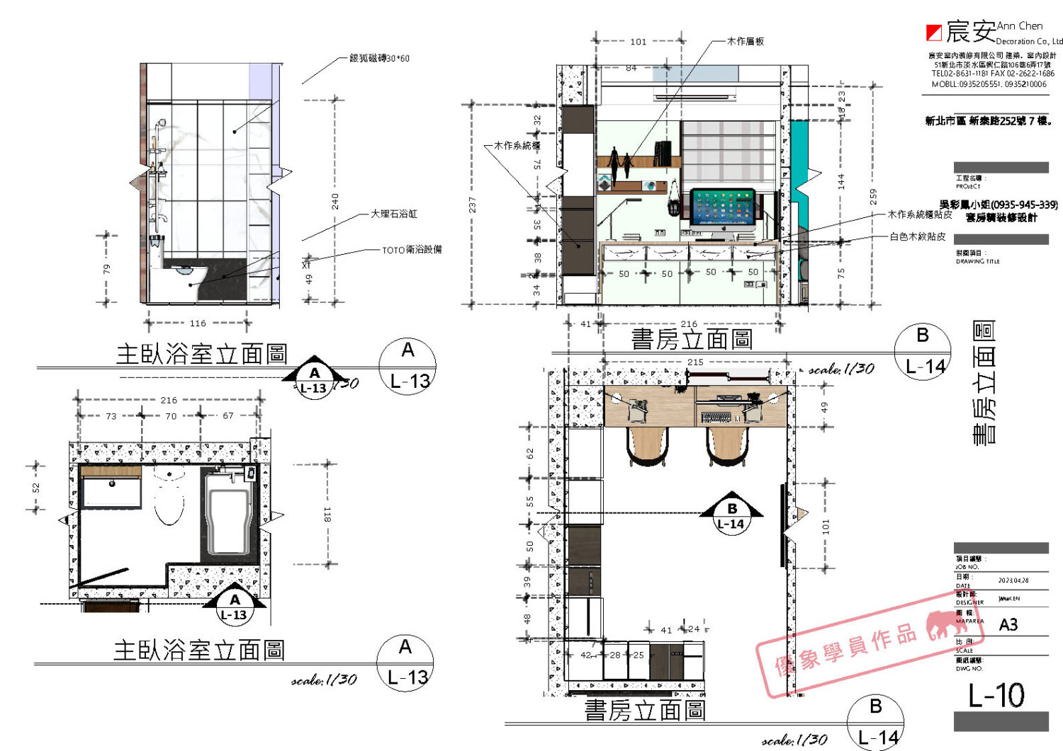
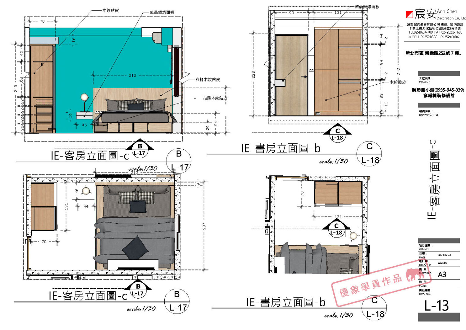
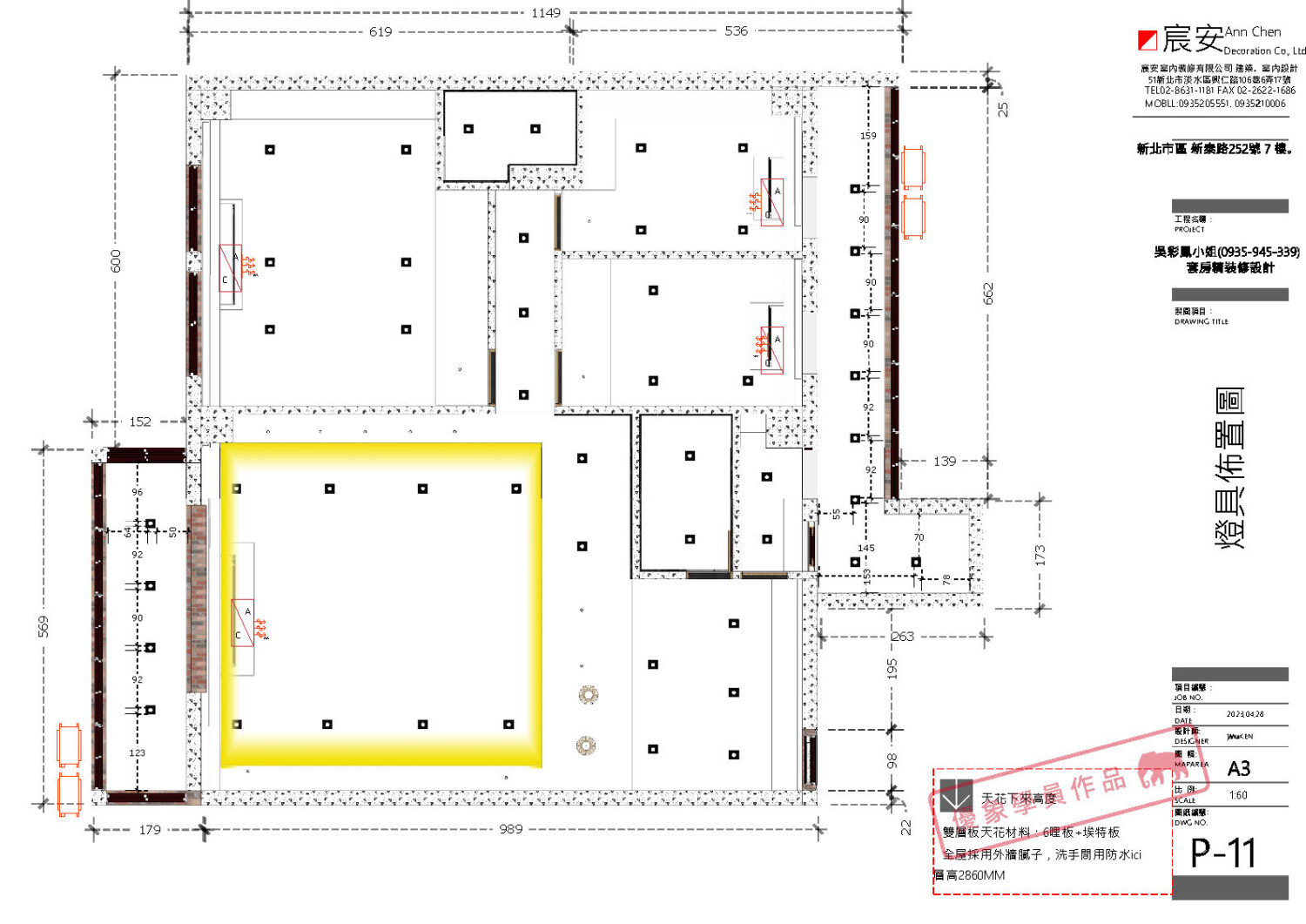
在套房精装设计中,layout施工图也是非常重要的一部分。layout施工图是一种基于CAD技术的二维图纸,可以清晰地展示每个房间的具体布局和装修细节,包括墙面、地面、天花板、家具、电器等。通过layout施工图,施工人员可以清晰地了解每个房间的装修要求,从而更好地进行施工。

模型做好,快速出全套施工图。以往出施工图必须使用CAD才可以解决,我们使用科学的设计工作流程,把做好的Su模型发送到LayOut进行系统出图,建模的过程就是生成图纸的过程,修改了模型,关联的平、立、剖一起同步修改,保证出图效率和图纸准确性。

LayOut 以无法比拟的美观方式,将 SketchUp 的“感觉”带入二维空间。线条、阴影、纹理、文本、尺寸、标题栏。
彻底改变您对施工图的看法,对材质的说明加入颜色和纹理。使用阴和线粗来表达空间感。完成这一切只用SketchUp和Layout里面去完成。
SketchUp出的施工图不仅美观,而且更加容易获取有效信息和方便沟通。你的客户,材料商,以及施工队会对您的图纸是多么的容易理解,这意味着你将减小到工地的几率和降低沟通成本。

以下LayOut彩色施工图的更多学习资料,有兴趣的同学可以进行了解:

发表回复

此站点使用Akismet来减少垃圾评论。了解我们如何处理您的评论数据