详细介绍
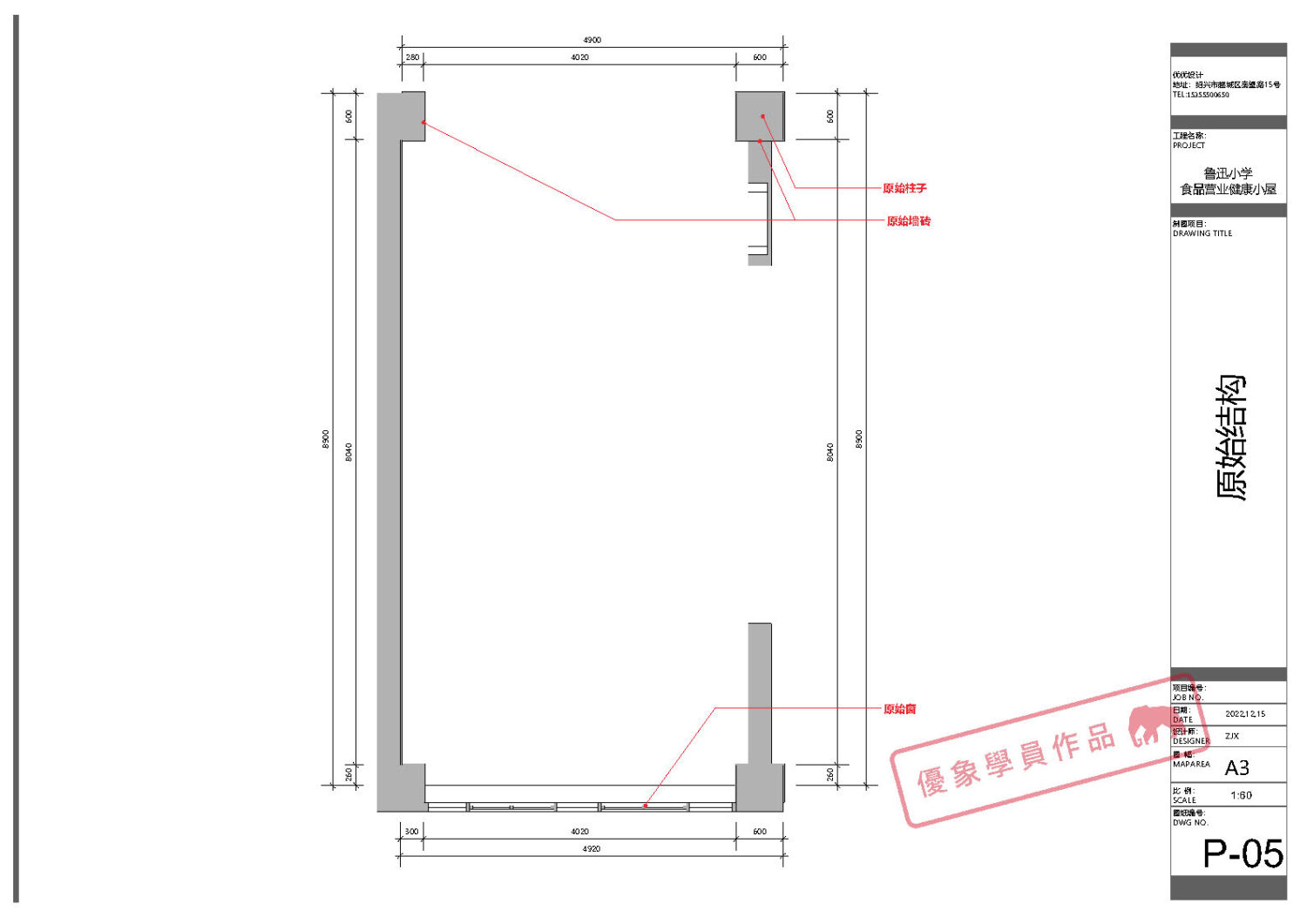
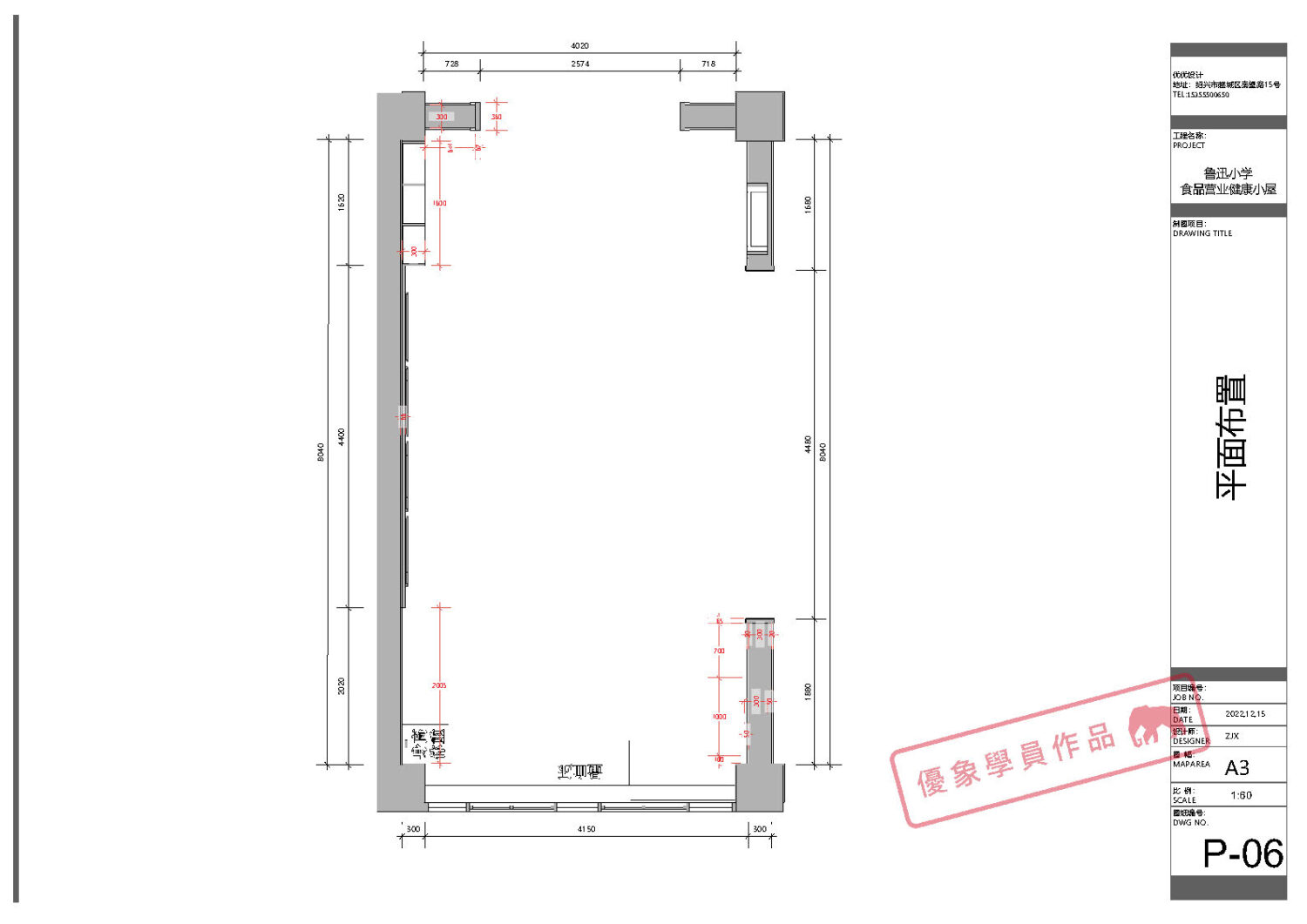
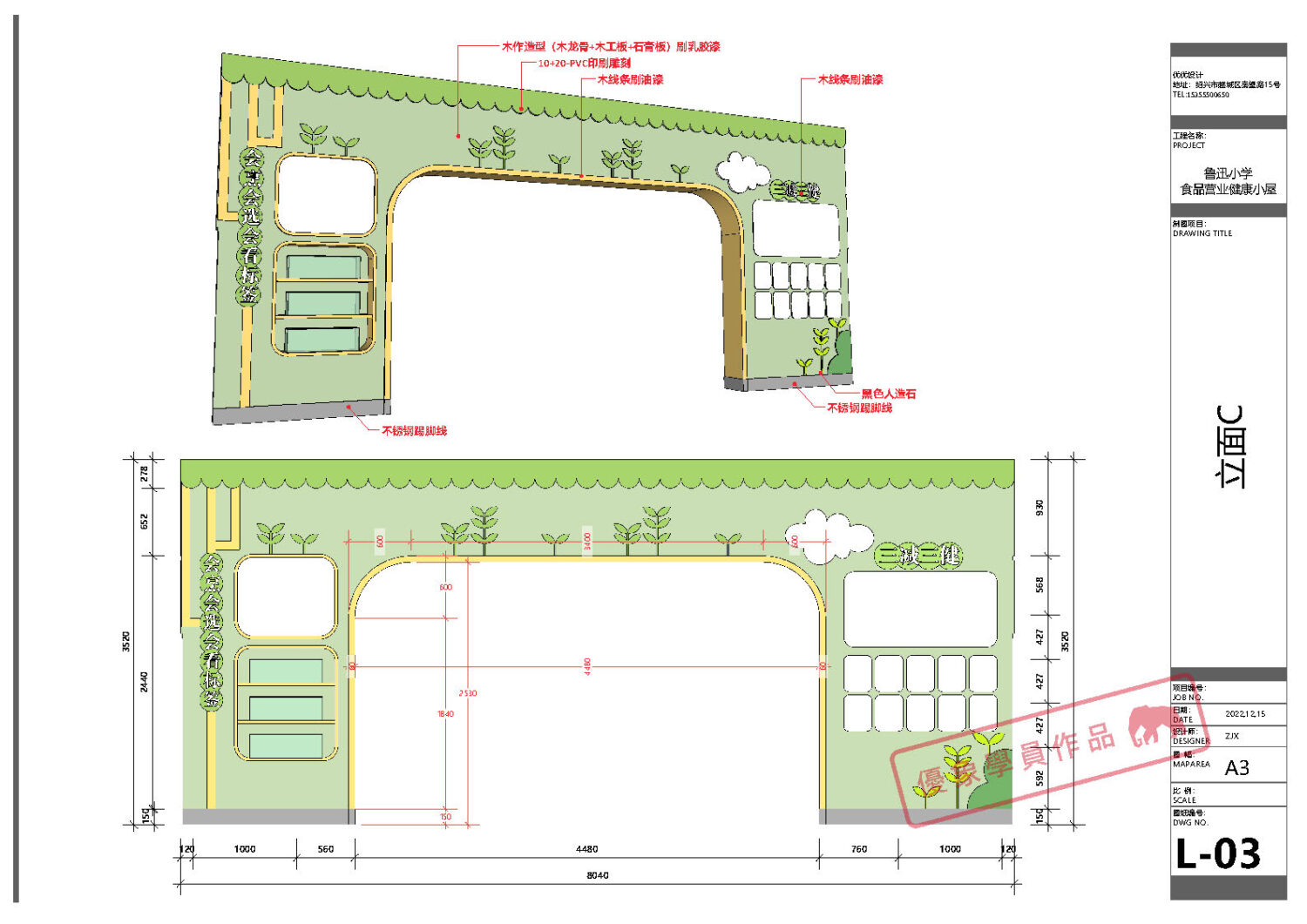
LayOut学员作品:健康小屋施工图
LayOut学员作品:健康小屋施工图
使用軟件:
SketchUp建模
LayOut出全套施工圖紙
Enscape渲染
模型与图纸同步
模型做好,快速出全套施工图。
以往出施工图必须使用CAD才可以解决,我们使用科学的设计工作流程,把做好的Su模型发送到LayOut进行系统出图,建模的过程就是生成图纸的过程,修改了模型,关联的平、立、剖一起同步修改,保证出图效率和图纸准确性。
让渲染环节高效、高质、高产
Enscape即时渲染,分秒出图,全景漫游,从时效上帮助设计师解决工作流中的方案可视化问题,不再烦恼方案修改与展示的紧迫。让渲染不再是专业人员的特殊技能,让设计师和非专业人员也能自由渲染,过审甲方。
使用軟件:
SketchUp建模
LayOut出全套施工圖紙
Enscape渲染
模型与图纸同步
模型做好,快速出全套施工图。
以往出施工图必须使用CAD才可以解决,我们使用科学的设计工作流程,把做好的Su模型发送到LayOut进行系统出图,建模的过程就是生成图纸的过程,修改了模型,关联的平、立、剖一起同步修改,保证出图效率和图纸准确性。
让渲染环节高效、高质、高产
Enscape即时渲染,分秒出图,全景漫游,从时效上帮助设计师解决工作流中的方案可视化问题,不再烦恼方案修改与展示的紧迫。让渲染不再是专业人员的特殊技能,让设计师和非专业人员也能自由渲染,过审甲方。
LayOut学员作品:健康小屋施工图
使用軟件:
SketchUp建模
LayOut出全套施工圖紙
Enscape渲染
模型与图纸同步
模型做好,快速出全套施工图。
以往出施工图必须使用CAD才可以解决,我们使用科学的设计工作流程,把做好的Su模型发送到LayOut进行系统出图,建模的过程就是生成图纸的过程,修改了模型,关联的平、立、剖一起同步修改,保证出图效率和图纸准确性。
让渲染环节高效、高质、高产
Enscape即时渲染,分秒出图,全景漫游,从时效上帮助设计师解决工作流中的方案可视化问题,不再烦恼方案修改与展示的紧迫。让渲染不再是专业人员的特殊技能,让设计师和非专业人员也能自由渲染,过审甲方。




















