详细介绍
【LayOut学员作品】塔斯汀中国汉堡施工图纸
塔斯汀中国汉堡施工图纸 拥有1000多家门店的餐饮品牌
是如何使用LayOut技术解决出图速度和标准?
塔斯汀是主营中国汉堡的餐饮连锁品,
门店超过1000+,
覆盖全国19省份140地市。
CAD流程切换到LayOut工作流程
设计团队面对每天多个的新增店面的设计任务,
使用传统的设计流程无法满足团队产出要求,
无疑给团队带来很大的压力。
团队从以前的CAD流程切换到LayOut工作流程
结合参数化建模、动态组件、可视化渲染等技术,快速解决从设计到出图落地的全生命周期的设计流程,不但可以系统设计,在设计建模的同时已经可以进行出图,这套技术已经得到广泛应用。
所有图纸基于模型进行输出,
通过模型的剖切显示,
我们不但可以出平面图
还有更加立体的三维鸟瞰图
更清楚的了解空间结构关系
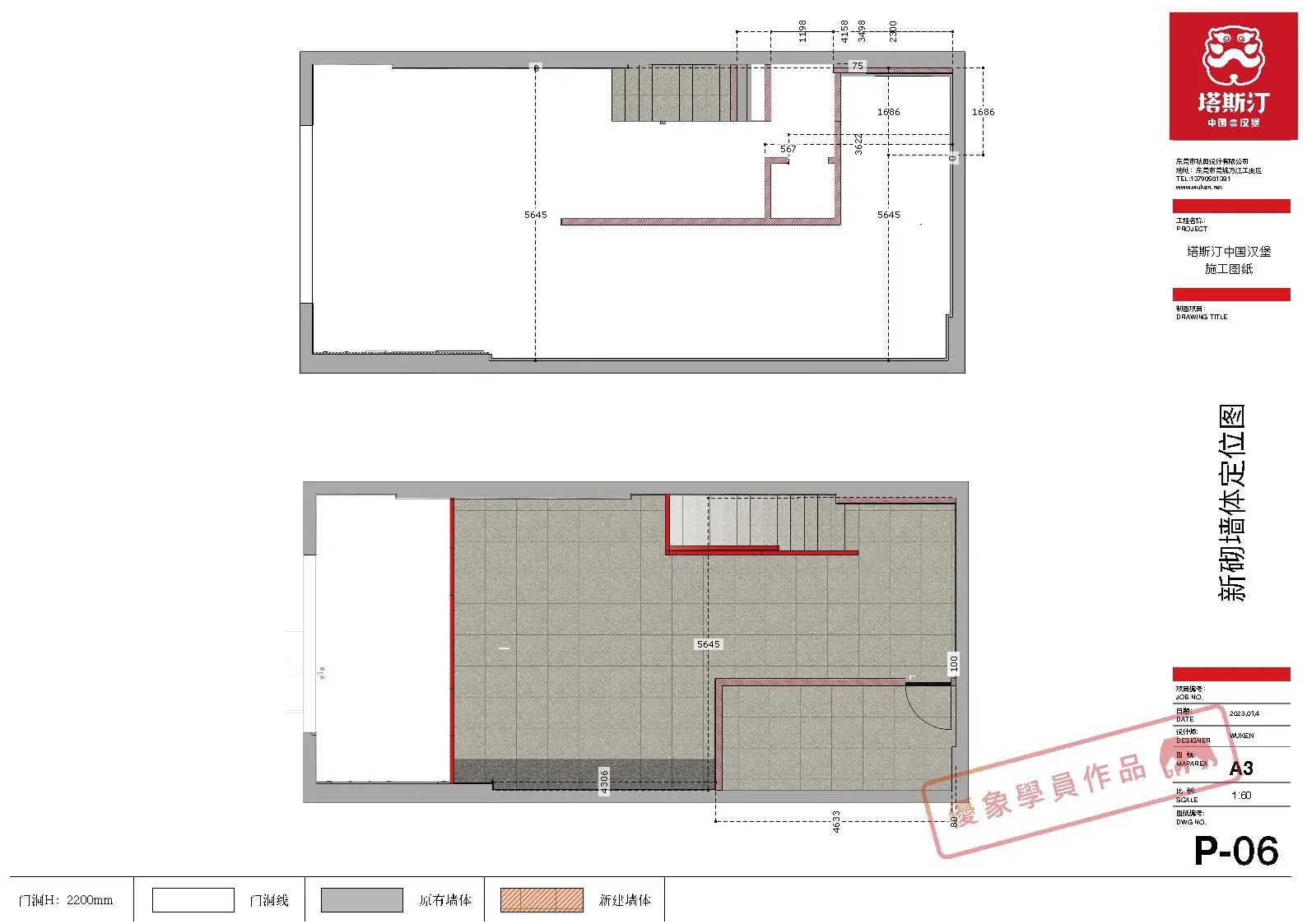
除了常规的新砌墙体定位图外,
借助三维模型的优势,
我们另外出了一个三维的新砌墙体定位图
隐藏掉不需要的内容,地面铺设图就直接出来
因为模型中包含了所有灯具模型,
我们直接通过模型输出吊顶图,
灯具连线图
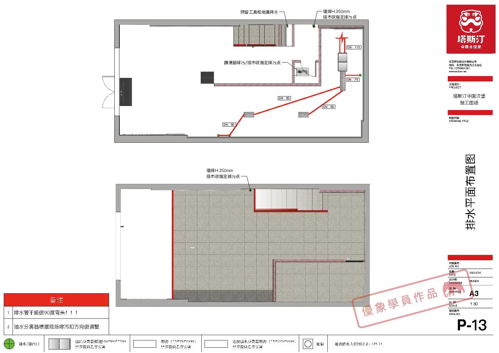
还有给水平面布置图,这个图里面的所有给水口都是和模型联动的。我们在放置模型的时候就自带了这样的模型图块,根据出图需要显示出对应的图块。好处有很多,我们不需要考虑给水口的数量和位置,只需要保证我们的设备设计是合理,就该出什么样的点位。
所有立面绘制十分快速准确,
模型做好,
直接套用模板进行输出
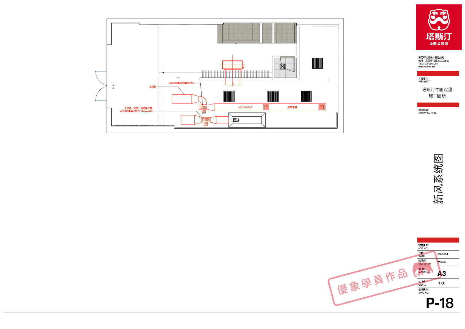
厨房设备最为密集,
通过传统的2D平面比较难以理解。
我们通过三维模型的优势,
快速输出三维的厨房设备图
最后通过模型输出材料清单,
包括所有铺砖数量、灯具、家具数量等数据
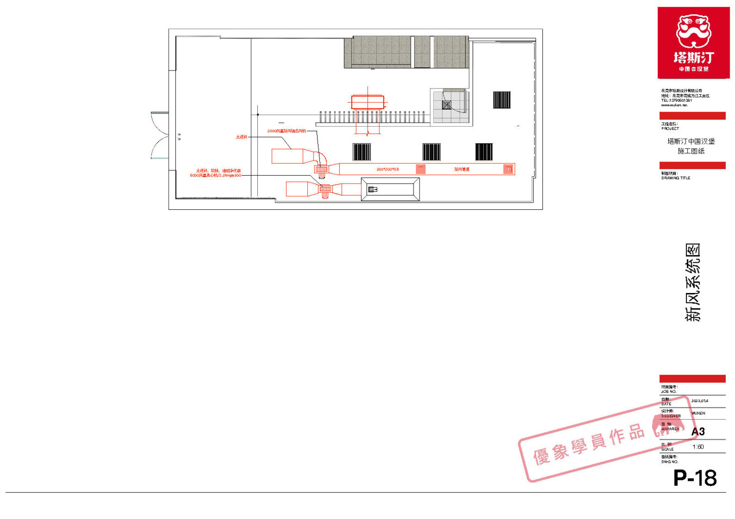
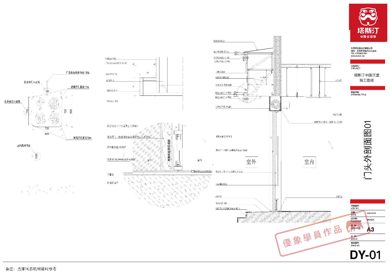
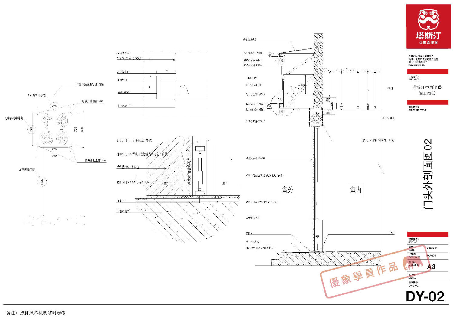
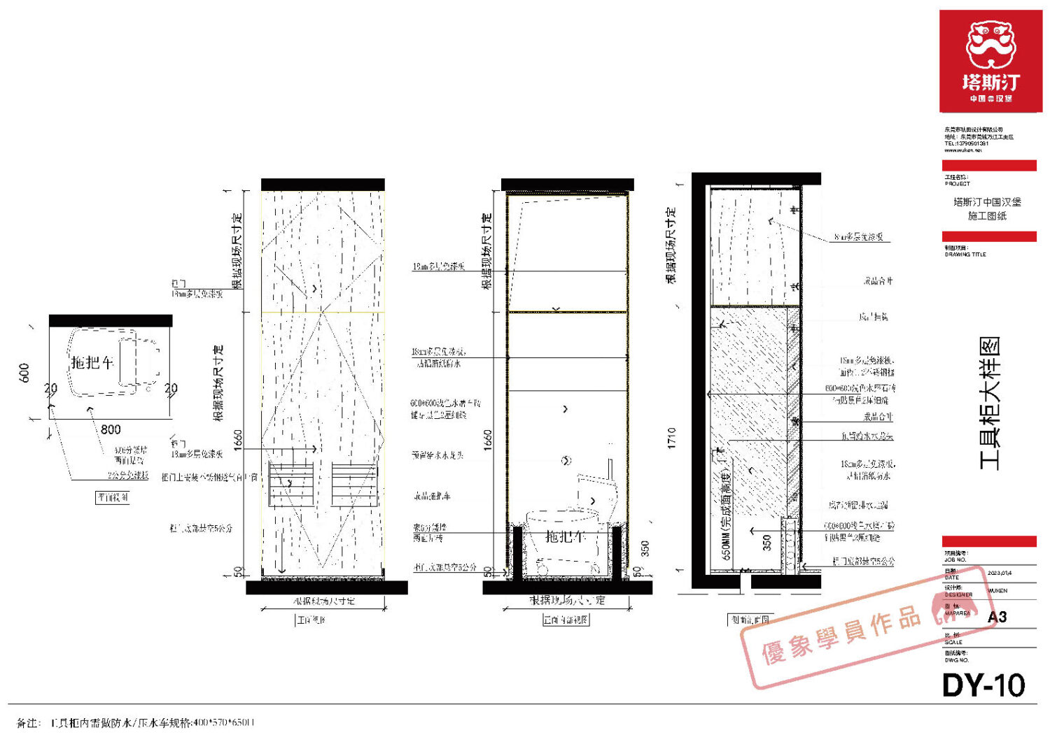
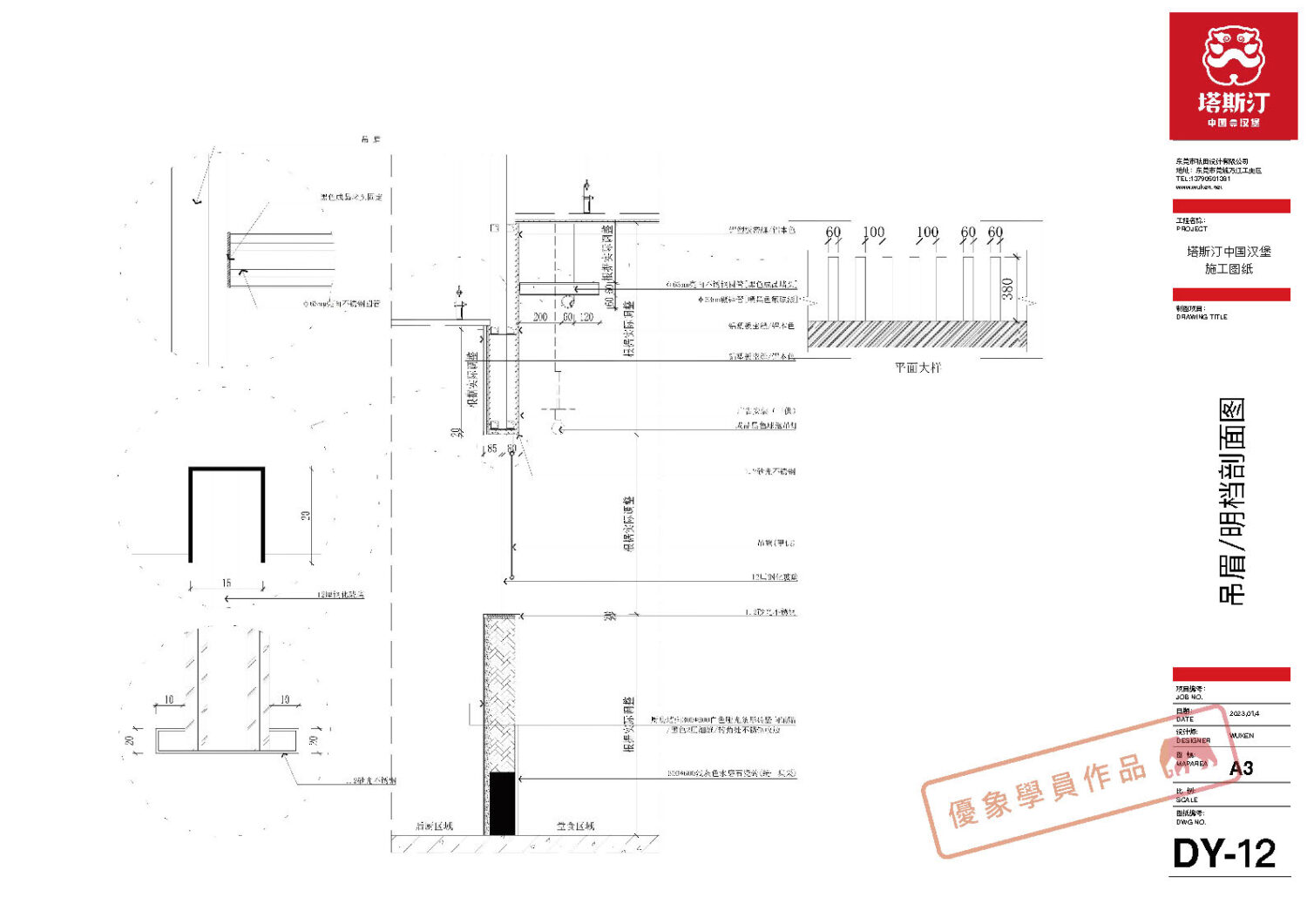
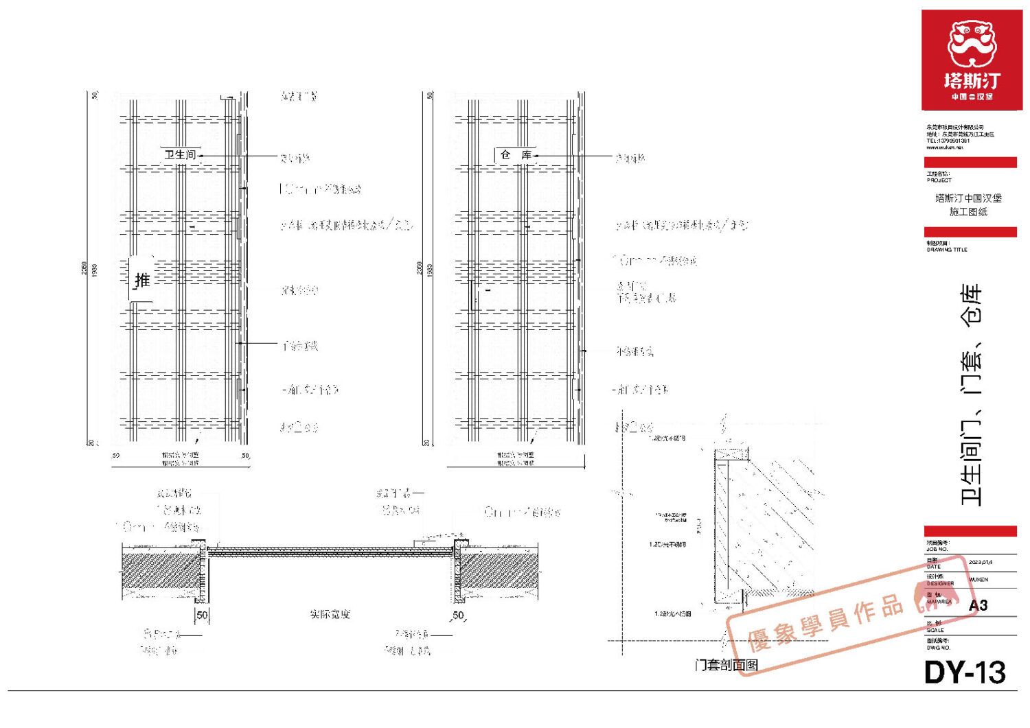
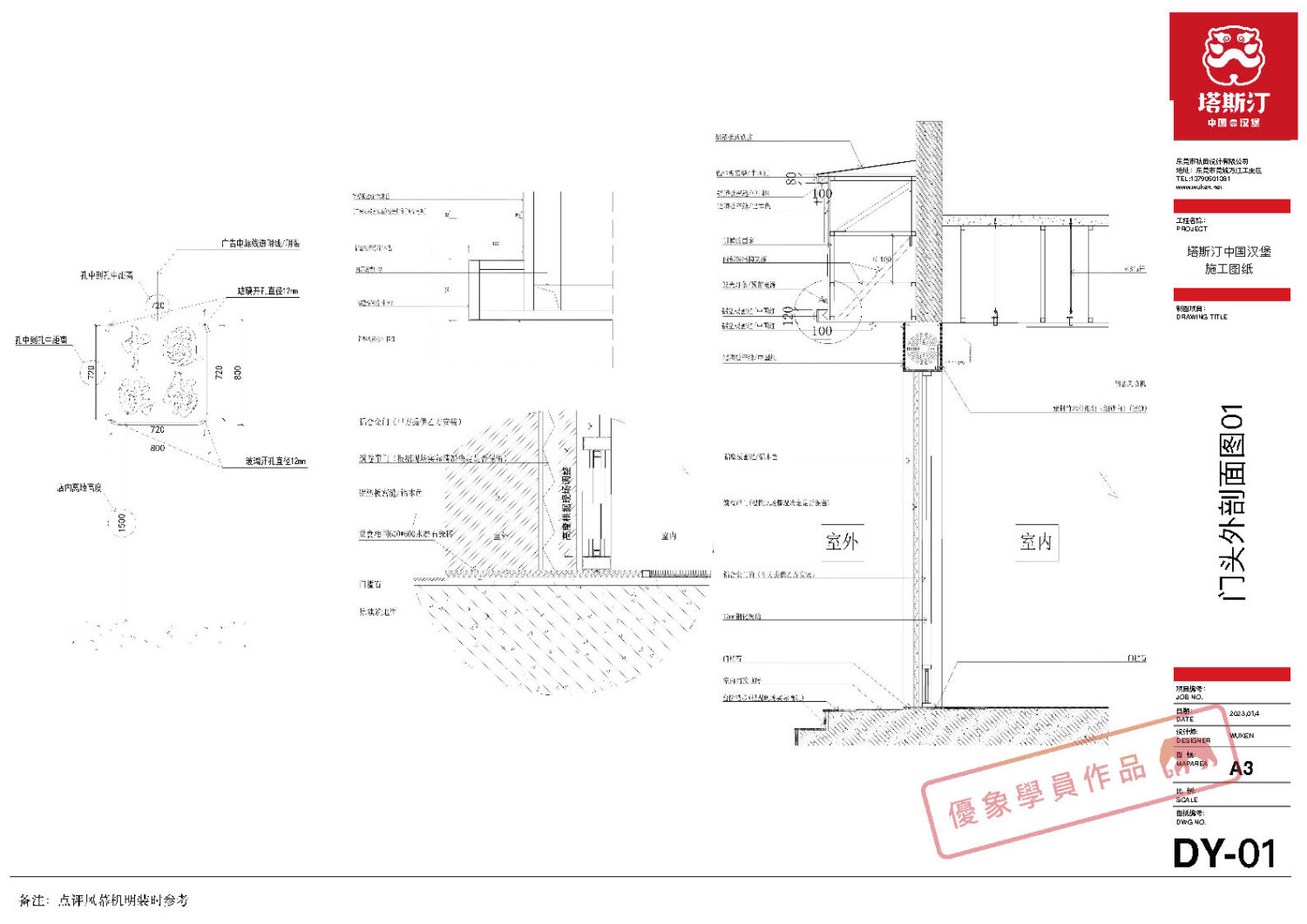
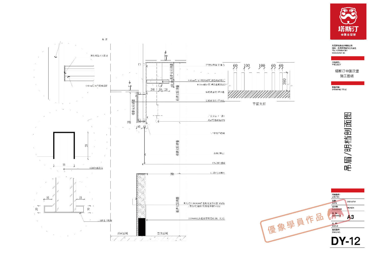
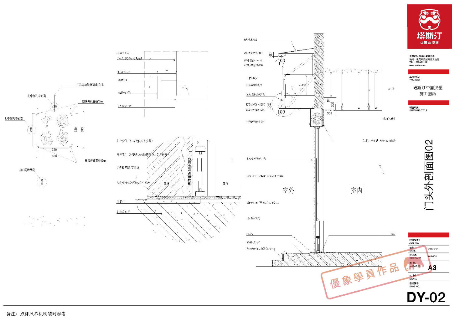
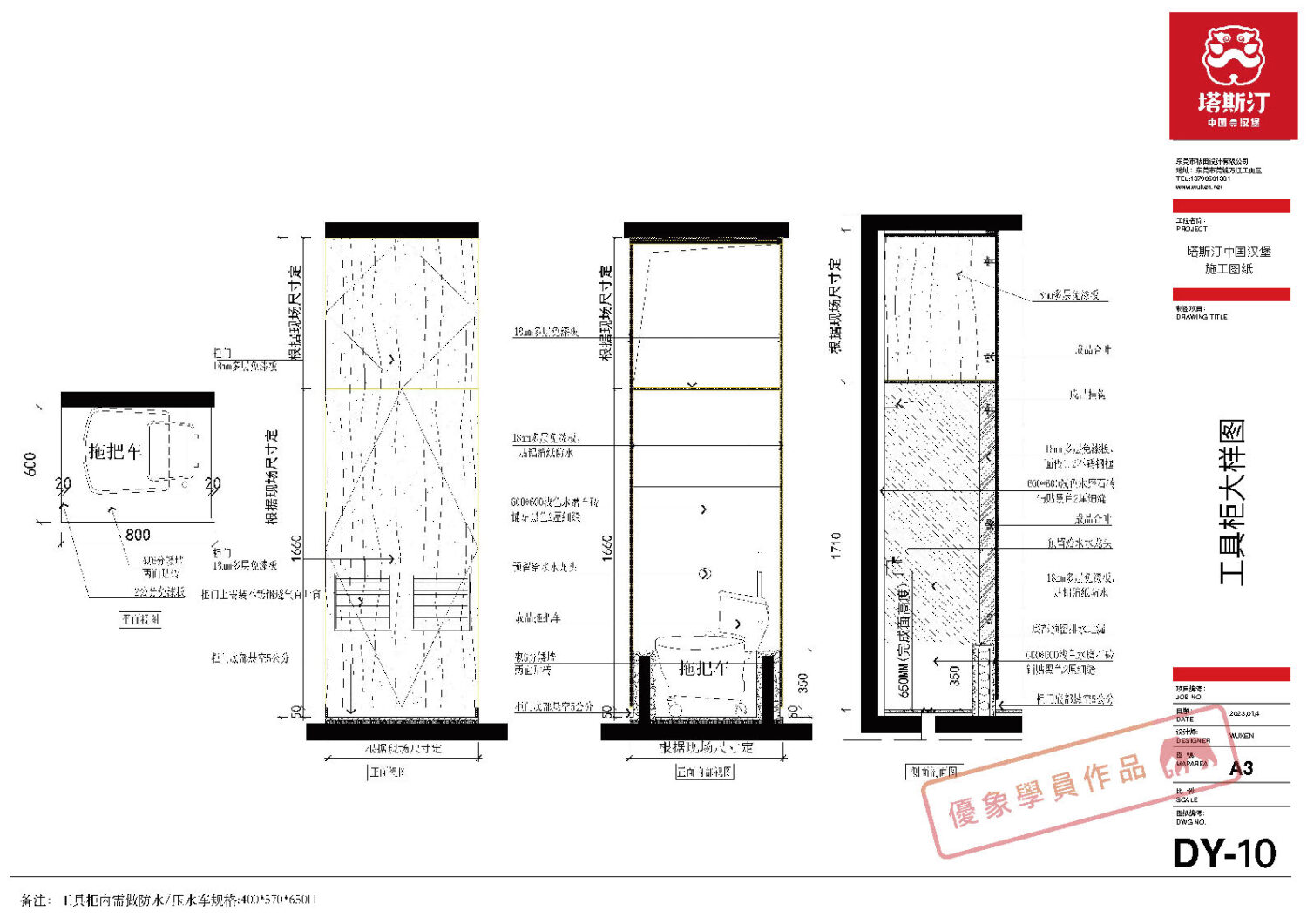
以下是一些施工工艺及大样图
…
LayOut学员作品
塔斯汀中国汉堡施工图纸
拥有1000多家门店的餐饮品牌
是如何使用LayOut技术解决出图速度和标准?
塔斯汀是主营中国汉堡的餐饮连锁品,
门店超过1000+,
覆盖全国19省份140地市。
CAD流程切换到LayOut工作流程
设计团队面对每天多个的新增店面的设计任务,
使用传统的设计流程无法满足团队产出要求,
无疑给团队带来很大的压力。
团队从以前的CAD流程切换到LayOut工作流程
结合参数化建模、动态组件、可视化渲染等技术,快速解决从设计到出图落地的全生命周期的设计流程,不但可以系统设计,在设计建模的同时已经可以进行出图,这套技术已经得到广泛应用。
所有图纸基于模型进行输出,
通过模型的剖切显示,
我们不但可以出平面图
还有更加立体的三维鸟瞰图
更清楚的了解空间结构关系
除了常规的新砌墙体定位图外,
借助三维模型的优势,
我们另外出了一个三维的新砌墙体定位图
隐藏掉不需要的内容,地面铺设图就直接出来
因为模型中包含了所有灯具模型,
我们直接通过模型输出吊顶图,
灯具连线图
还有给水平面布置图,这个图里面的所有给水口都是和模型联动的。我们在放置模型的时候就自带了这样的模型图块,根据出图需要显示出对应的图块。好处有很多,我们不需要考虑给水口的数量和位置,只需要保证我们的设备设计是合理,就该出什么样的点位。
所有立面绘制十分快速准确,
模型做好,
直接套用模板进行输出
厨房设备最为密集,
通过传统的2D平面比较难以理解。
我们通过三维模型的优势,
快速输出三维的厨房设备图
最后通过模型输出材料清单,
包括所有铺砖数量、灯具、家具数量等数据
以下是一些施工工艺及大样图

























































