详细介绍
LayOut学员作品-滨海办公室
LayOut学员作品
滨海办公室
学员使用SketchUp全模型之后,采用SketchUp模型导出3Dsmax中进行渲染,大大简化沟通的成本,一旦效果图方案确定下来,直接利用SketchUp模型转化成LayOut施工图,无需根据模型再做一遍CAD图纸。
…
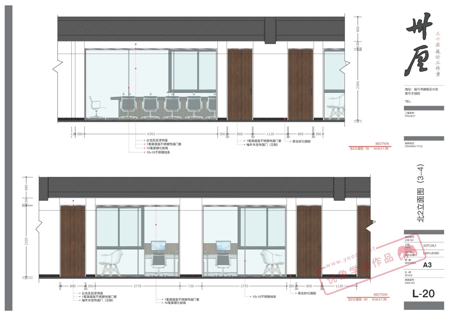
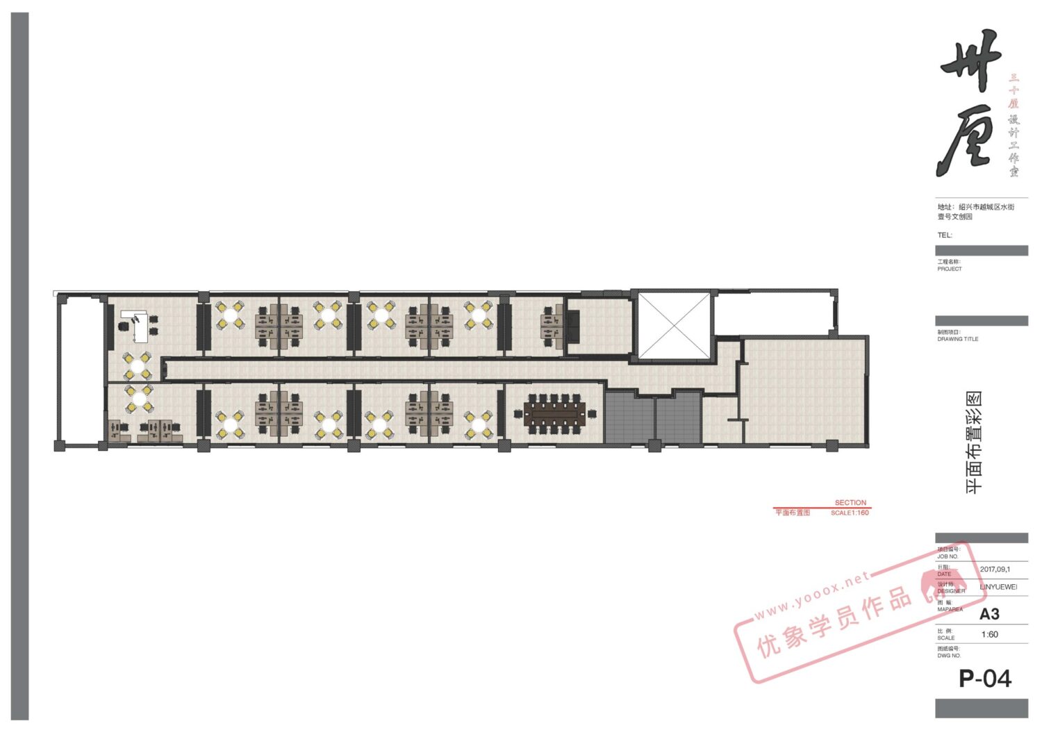
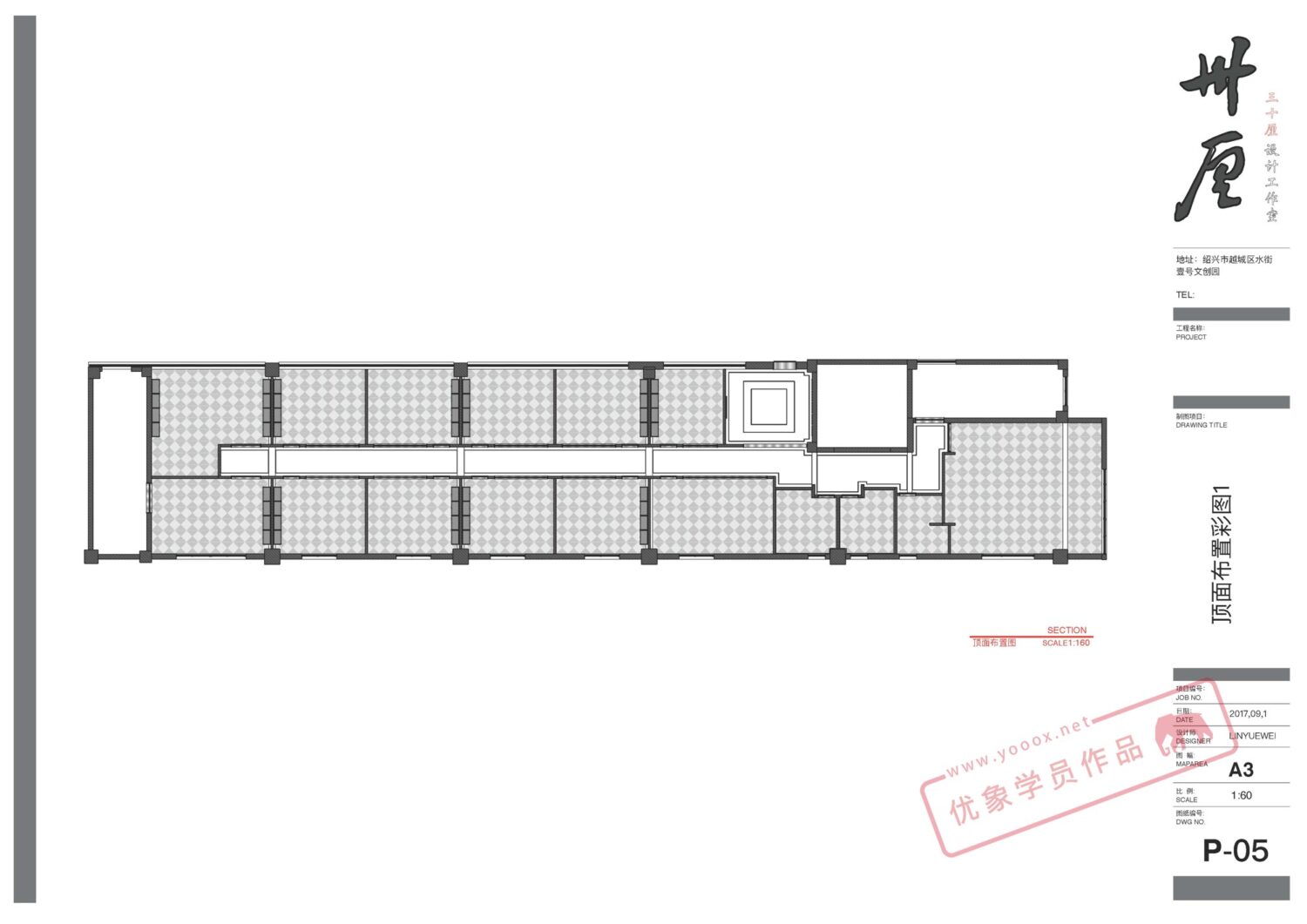
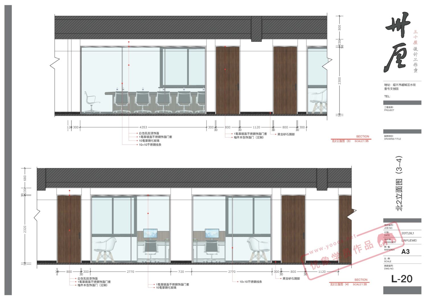
滨海办公室
学员使用SketchUp全模型之后,采用SketchUp模型导出3Dsmax中进行渲染,大大简化沟通的成本,一旦效果图方案确定下来,直接利用SketchUp模型转化成LayOut施工图,无需根据模型再做一遍CAD图纸。
…









































































































