LayOut学员作品:餐厅施工图

LayOut学员作品

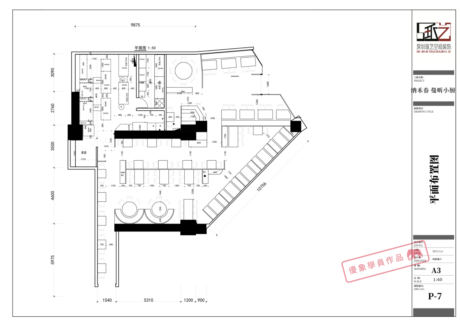
餐厅施工图


建模:SketchUp

施工图:LayOut

项目类型:餐厅

介绍:图纸使用LayOut进行输出,设计中涉及到复杂的镂空调用,使用LayOut可以呈现出更多的施工图信息,包括颜色和镂空情况,同样在CAD中表现将会较为复杂并且没有LayOut的直观表现。 大量的立面图纸直接使用LayOut输出,模型做好图纸就差不多就完成了,出图十分快速,图纸也100%还原了设计,可以更好进行落地。

以下LayOut彩色施工图的更多学习资料,有兴趣的同学可以进行了解:

发表回复

此站点使用Akismet来减少垃圾评论。了解我们如何处理您的评论数据