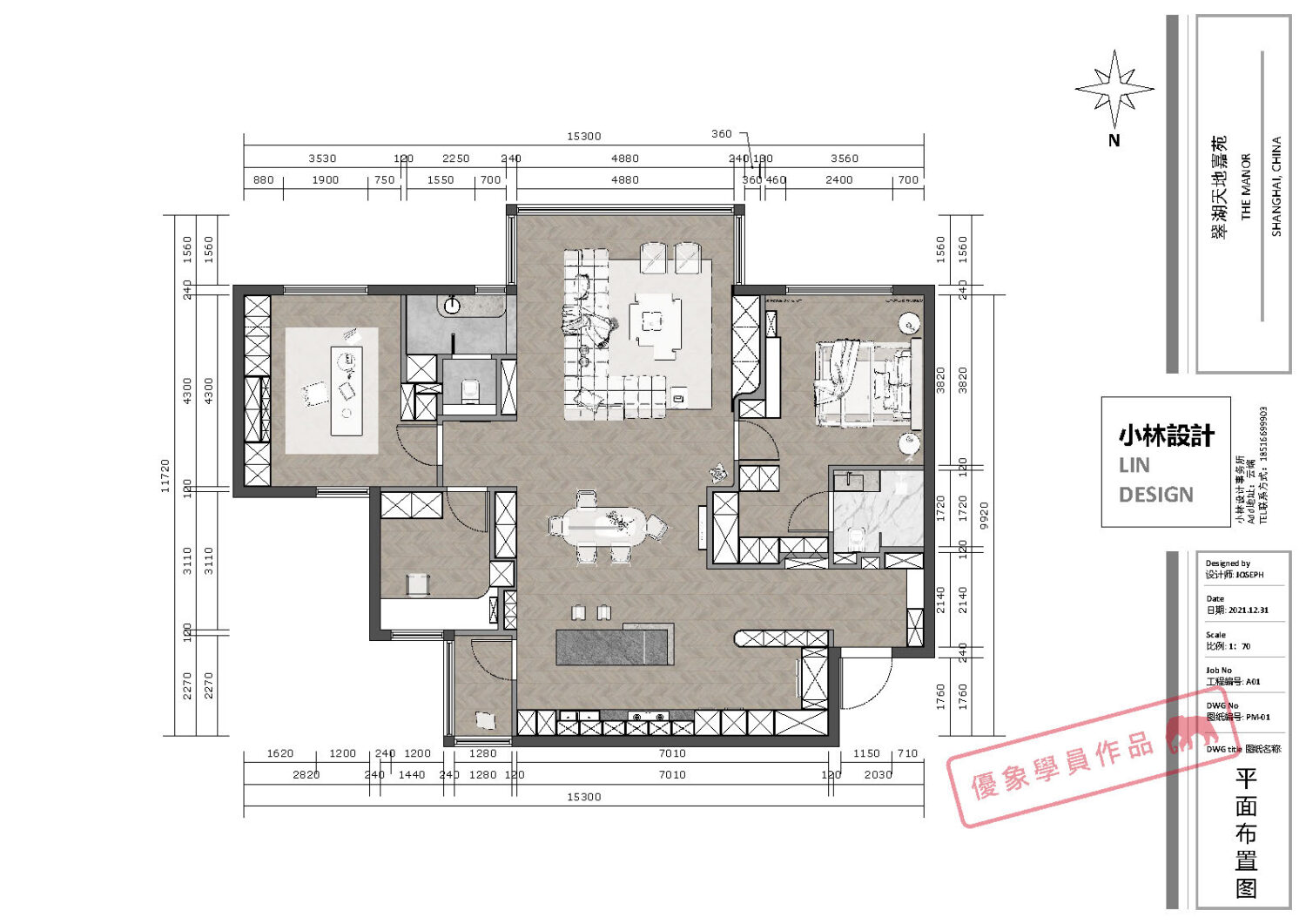
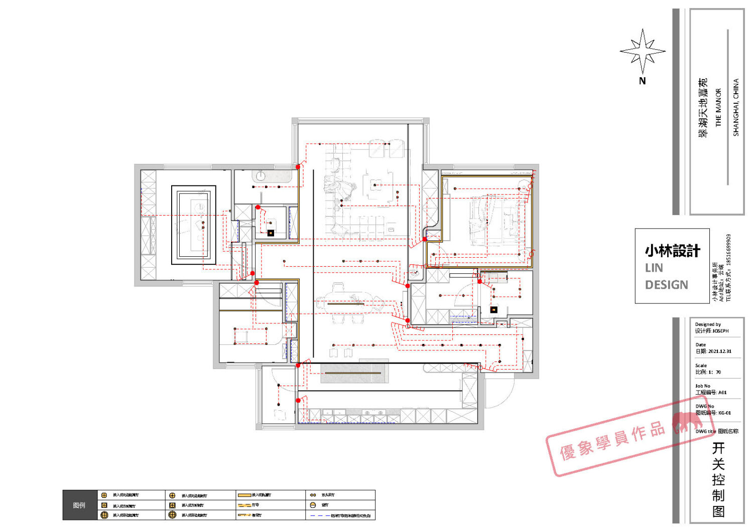
【LayOut作品分享】小林設計-翠湖天地嘉苑

小林設計-翠湖天地嘉苑 优象学员作品分享 ▽ 从sketchup模型建模 到Enscape渲染效果图出动画漫游 […]

详细介绍

【LayOut作品分享】小林設計-翠湖天地嘉苑

小林設計-翠湖天地嘉苑
优象学员作品分享

从sketchup模型建模
到Enscape渲染效果图出动画漫游
再到Layout出施工图纸,
一个模型就可以完成所有的工作流程!

小林設計-翠湖天地嘉苑

优象学员作品分享

从sketchup模型建模

到Enscape渲染效果图出动画漫游

再到Layout出施工图纸,

一个模型就可以完成所有的工作流程!

以下LayOut彩色施工图的更多学习资料,有兴趣的同学可以进行了解:

用户登录