LayOut学员作品

Layout学员作品

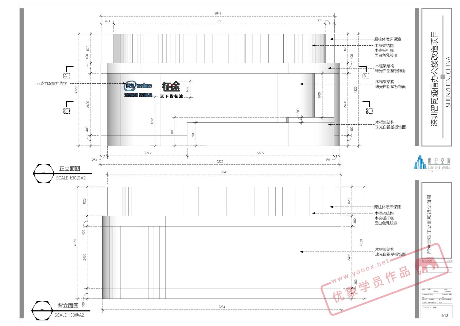
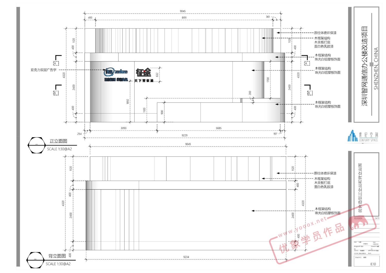
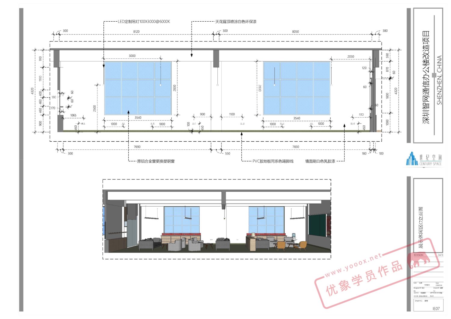
在国内我们很少看到会用 LayOut 绘制项目的整套施工图,但是在国外已经有很多先例。LayOut 不仅可以制作建筑类的图纸、方案汇报文本、结构分析图,还可以做展览设计、家具图纸、工装家装施工图等,整套施工图都可以。

 

以下LayOut彩色施工图的更多学习资料,有兴趣的同学可以进行了解:

发表回复

此站点使用Akismet来减少垃圾评论。了解我们如何处理您的评论数据