详细介绍
测试-LayOut施工图培训
LayOut
一身才华,带您去发掘。
模型与图纸同步
简单易用的类BIM理念出图方法。
BIM概念起始用于建筑建设领域,我们尝试突破SKETCHUP的缺口,大胆地运用BIM于室内设计领域当中,模型即信息,建模的过程就是生成图纸的过程,修改了模型,关联的平、立、剖一起同步修改,保证出图效率和图纸准确性。 适用性广
各行各业,都是专业利器。
室内设计
工装项目
建筑装饰
橱柜设计
衣柜设计
瓷砖施工图
机电管道
装饰立面
细节表达
图纸易读性
生成叹为观止的2.5D图纸,每一张都是作品。
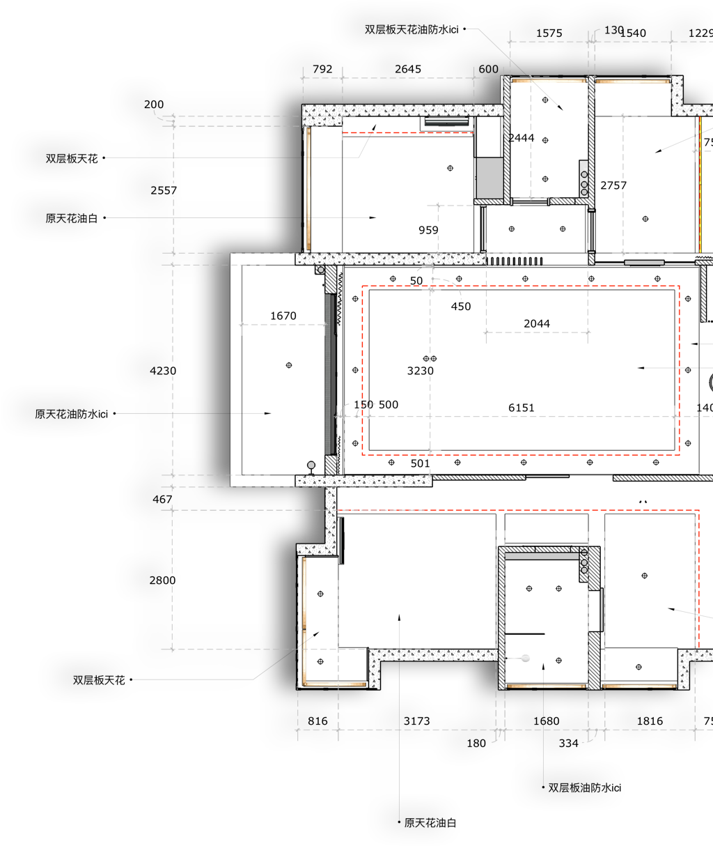
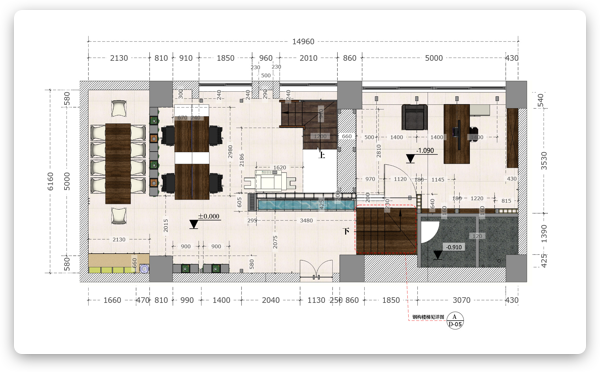
LayOut 以无法比拟的美观方式,将 SketchUp 的“感觉”带入二维空间。线条、阴影、纹理、文本、尺寸、标题栏
彻底改变您对施工图的看法,对材质的说明加入颜色和纹理。使用阴和线粗来表达空间感。完成这一切只用SketchUp和Layout里面去完成。
SketchUp出的施工图不仅美观,而且更加容易获取有效信息和方便沟通。你的客户,材料商,以及施工队会对您的图纸是多么的容易理解,这意味着你将减小到工地的几率和降低沟通成本。
自动图纸目录
同步,不单单是图纸!
独创性的以Excel为图纸目录文件嵌入到LayOut中,实现同步的功能特性。表格信息修改,图纸对应的信息也会被修改,结合模版使用,可以实现表格、图纸、模型三位一体的无缝衔接,大大提高了信息的准确度。
SU通用节点
要细节,更要规范。
让LayOut达到超高精细度的节点大样,并硬性规范您所设计的节点,为一下个项目重复使用。结合多种节点绘制方法,让出图深度更加灵活。
专用剪贴薄
制图,又快又规范。
剪贴薄是LayOut快速绘制图纸的重要组成部分,快速改变图纸的样式、调用尺寸、图例、风格,拖放到LayOut中使你的整个绘图流程变得专业和…
LayOut
一身才华,带您去发掘。
模型与图纸同步
简单易用的类BIM理念出图方法。
BIM概念起始用于建筑建设领域,我们尝试突破SKETCHUP的缺口,大胆地运用BIM于室内设计领域当中,模型即信息,建模的过程就是生成图纸的过程,修改了模型,关联的平、立、剖一起同步修改,保证出图效率和图纸准确性。
适用性广
各行各业,都是专业利器。
室内设计
工装项目
建筑装饰
橱柜设计
衣柜设计
瓷砖施工图
机电管道
装饰立面
细节表达
图纸易读性
生成叹为观止的2.5D图纸,每一张都是作品。
-
LayOut 以无法比拟的美观方式,将 SketchUp 的“感觉”带入二维空间。线条、阴影、纹理、文本、尺寸、标题栏
-
彻底改变您对施工图的看法,对材质的说明加入颜色和纹理。使用阴和线粗来表达空间感。完成这一切只用SketchUp和Layout里面去完成。
-
SketchUp出的施工图不仅美观,而且更加容易获取有效信息和方便沟通。你的客户,材料商,以及施工队会对您的图纸是多么的容易理解,这意味着你将减小到工地的几率和降低沟通成本。
自动图纸目录
同步,不单单是图纸!
独创性的以Excel为图纸目录文件嵌入到LayOut中,实现同步的功能特性。表格信息修改,图纸对应的信息也会被修改,结合模版使用,可以实现表格、图纸、模型三位一体的无缝衔接,大大提高了信息的准确度。
SU通用节点
要细节,更要规范。
让LayOut达到超高精细度的节点大样,并硬性规范您所设计的节点,为一下个项目重复使用。结合多种节点绘制方法,让出图深度更加灵活。
专用剪贴薄
制图,又快又规范。
剪贴薄是LayOut快速绘制图纸的重要组成部分,快速改变图纸的样式、调用尺寸、图例、风格,拖放到LayOut中使你的整个绘图流程变得专业和轻松。
大模型解决方案
小项目,大项目,一样流畅。
模型越大,LayOut的速度就越慢,往往很多初学者卡在这里。我们研发了一套大模型解决方案,不但可以把模型优化80%以上多余容量,使LayOut出图更加快速高效,并可以结合方案展示,渲染,不掉失所有模型细节。
模版系统
每一个案例都从这里开始!
课程设计了一整套su模版和layout模版,如何使用模版实现相同的工作流,以便您可以立即实施的工作流程。而不是从头开始创建您的文件和素材,您只需要更改您的图框,便可以开始下一个项目。在SketchUp的模板,图层和场景的预设可以为您节省了大量的出图时间。
分层模型库
不单单是模型那么简单!
我们从新定义了模型素材,并收集了淘宝、官方网站的优秀模型并进行分类整理并对模型设置了图层,无论我们的项目进行到那个进度或者模型有多么的复杂,带了图层的素材都可以方便地管理我们的项目模型

一致好评
学习成果是验证培训课程质量的标准。
我们相信,只有学习后能够输出学习成果的课程,才是最有价值的课程。我们成功培训过上千名设计师和设计公司,获取一致好评,并自豪地分享出学习成果并用于工作上。
行业先锋
LayOut已进入各大设计机构。
无论是小型设计工作室,还是专业设计事务所,全新的工作流程改变了工作习惯,变得更好。

培训质量保障
行业服务认可
与其他培训课程有很大区别的是,优象培训机构讲师获得SketchUp官方讲师认证,并获得SketchUp认可的培训合作机构。优象帮助上万名学员获得SketchUp应用技能,并能够应用到实际工作中,从中创造了大量的作品。
兼容主流操作系统
无论那个操作系统,都能做得很好。
教程主要使用OSX系统作为操作示范,同时会针对OSX和Windows之间的操作差异分别进行讲解,
所以无论你是苹果的粉丝还是微软的粉丝,都有一样的愉快学习体验。
OSX
Windows
多对一-辅导群
快速解决学习和工作问题
优象对报名课程的每一-位学员, 都要求进入多对一的微信群进行全方位的学习服务和辅导,群内有多位对于的专业老师和客服对接所有的学习事情,将会成为最佳的解决问题的高效途径。
Layout施工圖培訓班 現接受報名
在設計風格和技能上 ,總是當你學會爬的時候,別人在學走,當你在學習走路的時候,別人在學跑!
不要總是後知後覺的慢人一步,LayOut是一個超神技能,讓你這一次,快人一步。
您將會掌握
- 如何對平面方案佈置圖進行LayOut針對性建模
- 建好的SketchUp模型进行快速LayOut图纸输出
- 分層模型庫的使用
- 標準化設計模型的製作
- 簡單的動態組件製作
- 學會繪制案例所有的平面圖和立面圖及其方法原理
- 自動圖文集的應用
- 製作自動化圖紙目錄
- 制定自己的圖紙模版
- 制定自己的su模版
- 使用SU进行原始结构图的绘制
- 使用SU进行平面布置图的绘制
- Curic Section出图系统
學前要求
- su初學者(零基礎建議先學習su入門到進階)
- cad初學者
- 適合室內設計師,獨立設計工作室
如何上課
- 上課方式:錄播+定期在線輔導+線下專家在線答疑
- 課程週期:12節課時












