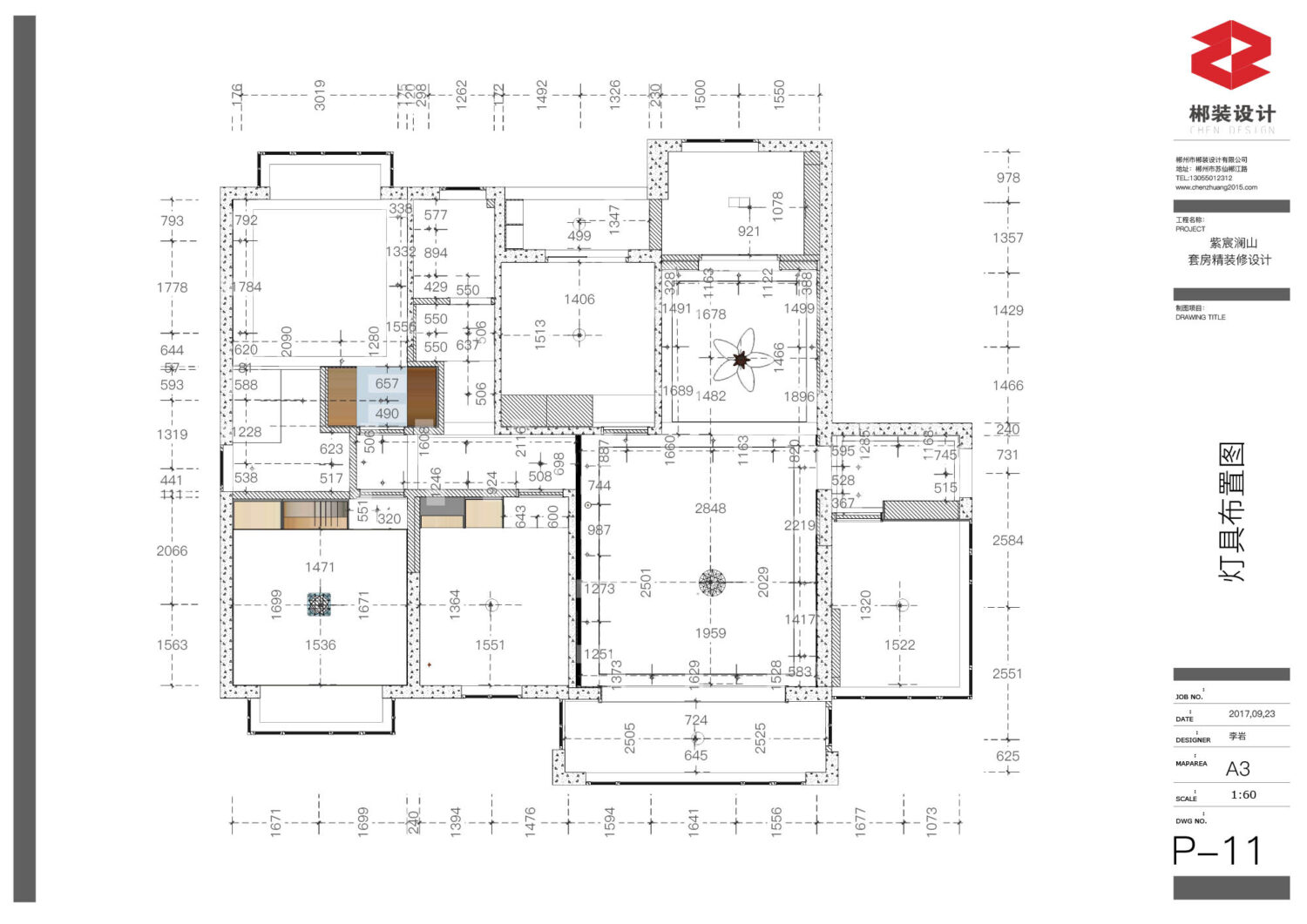
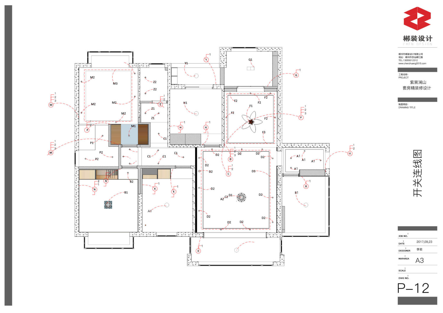
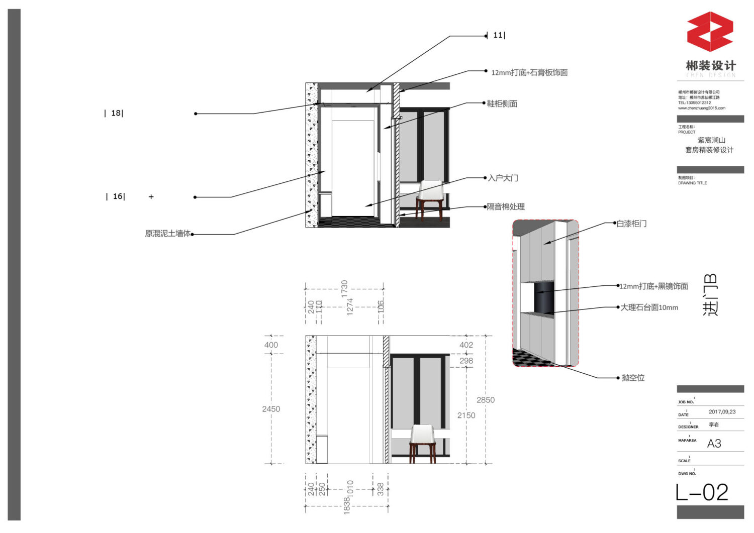
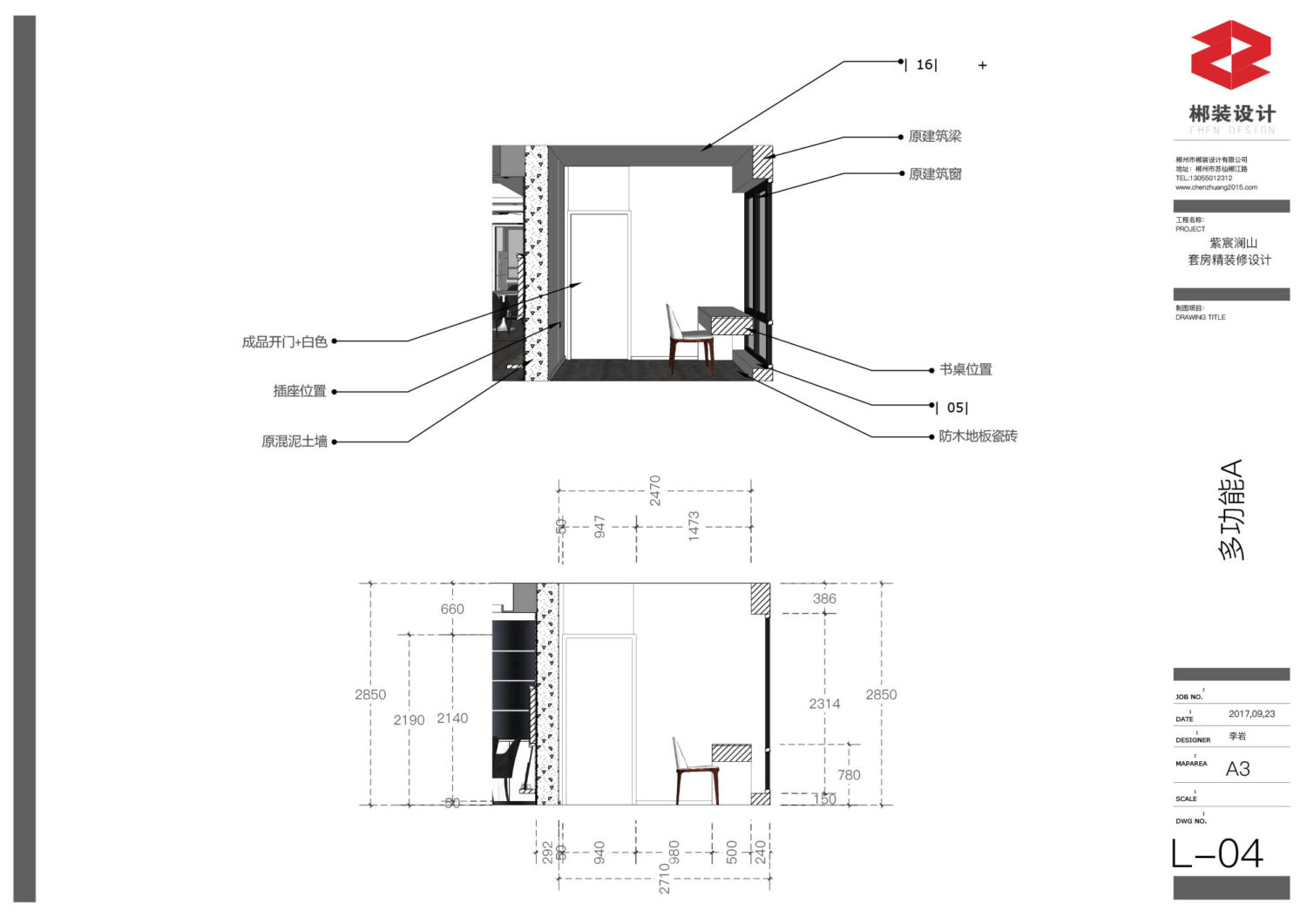
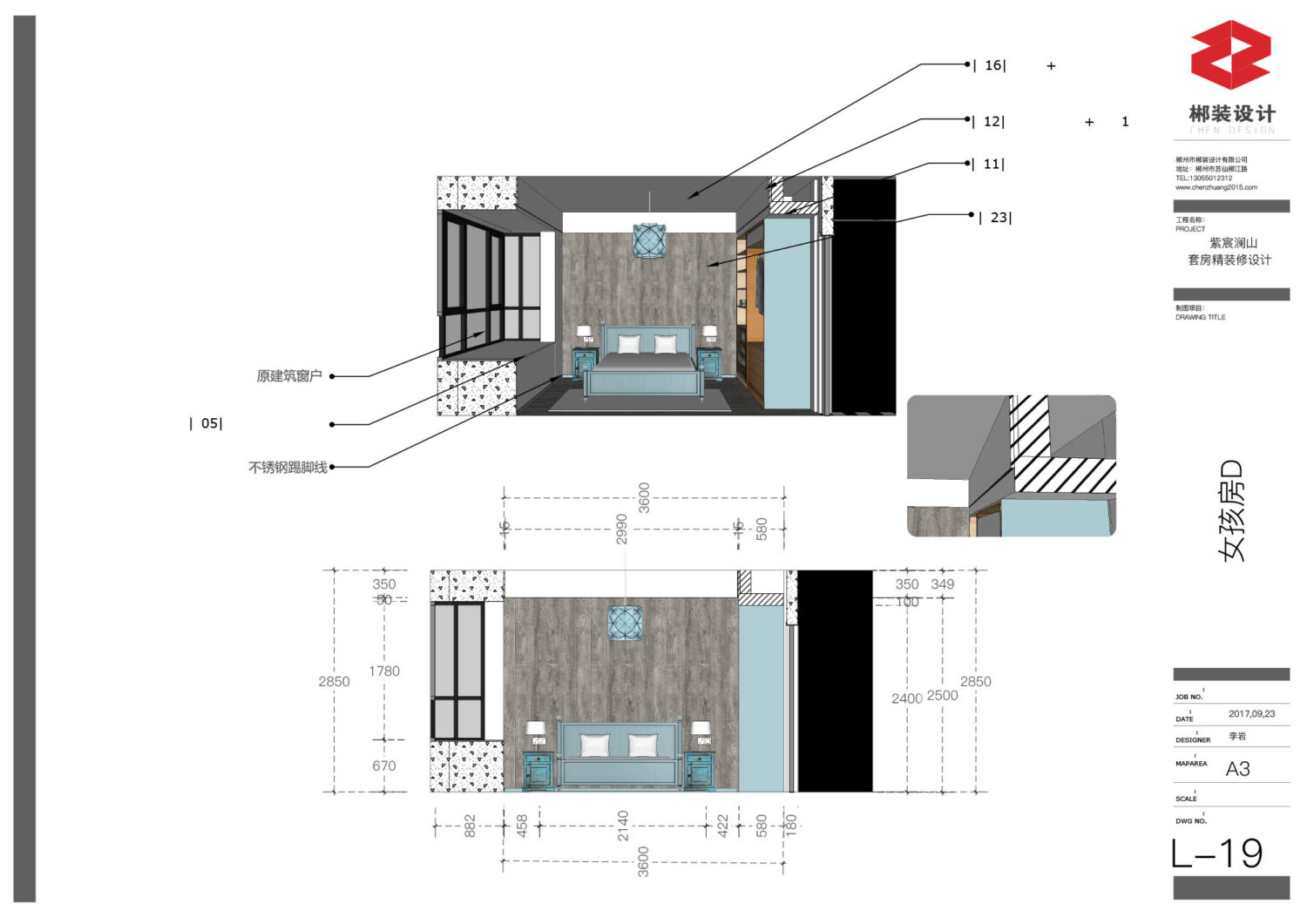
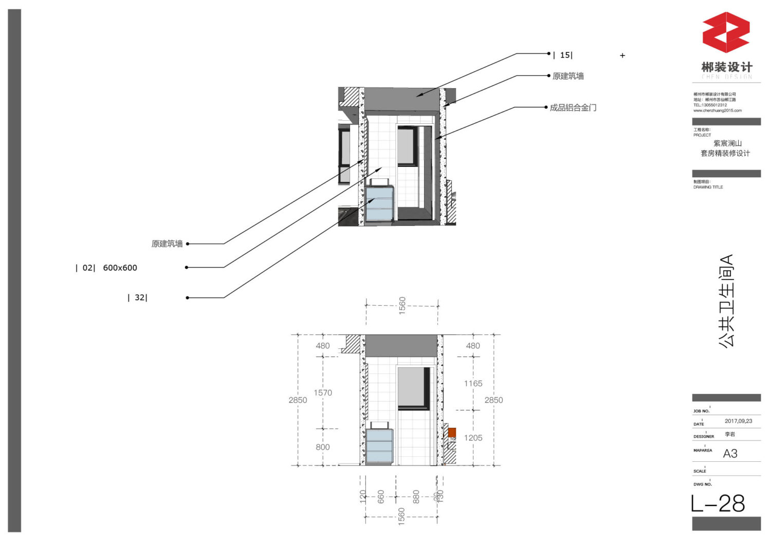
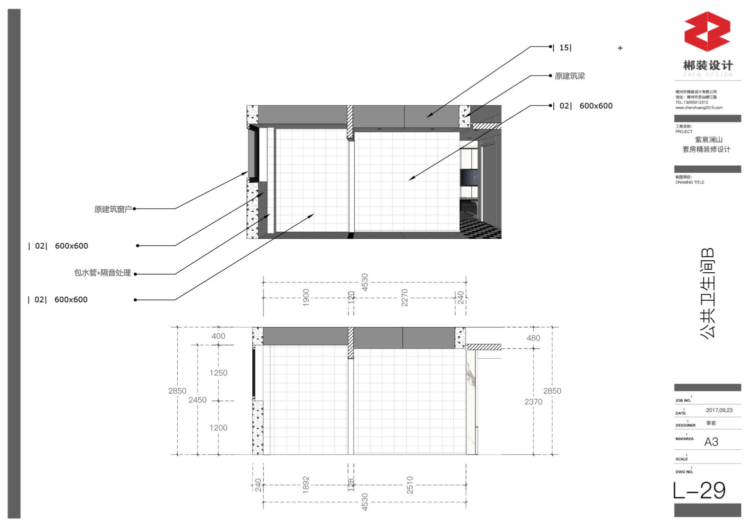
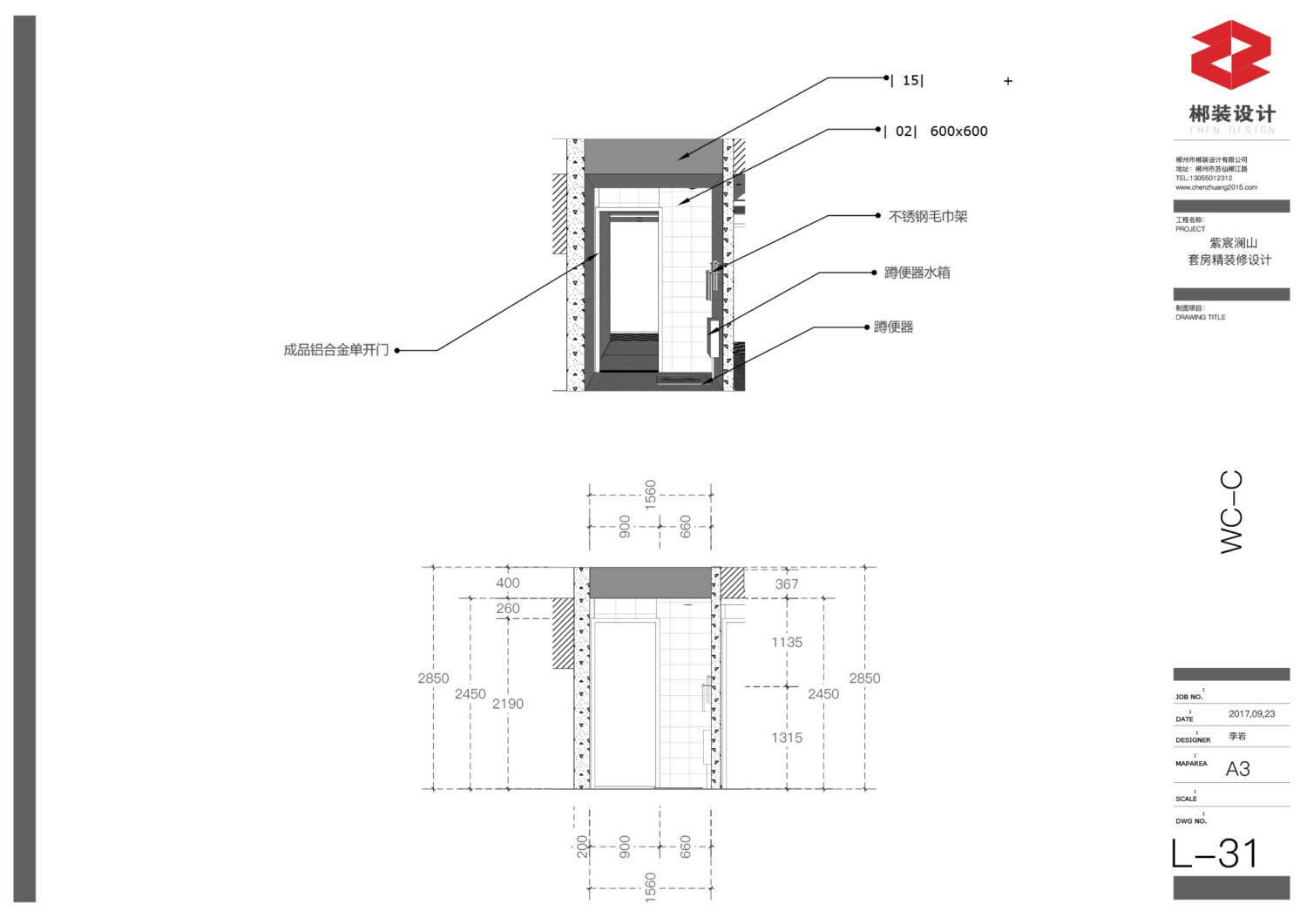
详细介绍
(LayOut学员)家装案例
优象LayOut学员作品
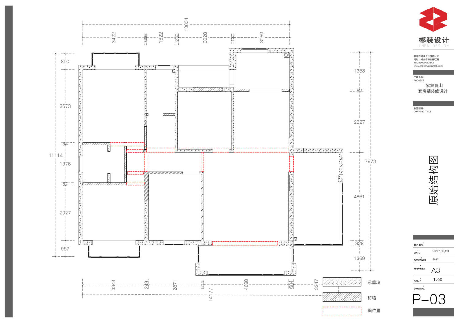
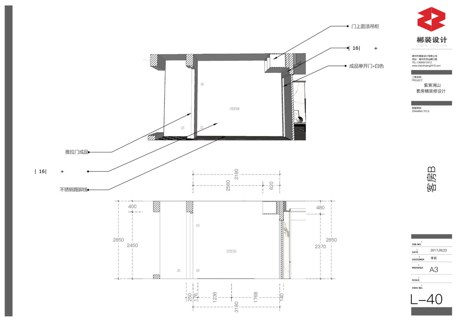
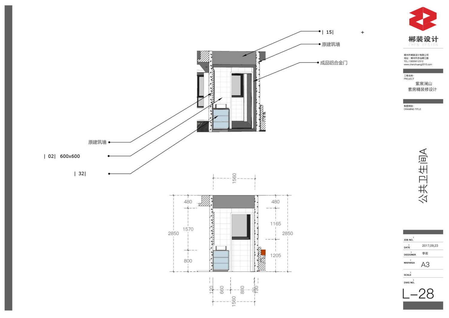
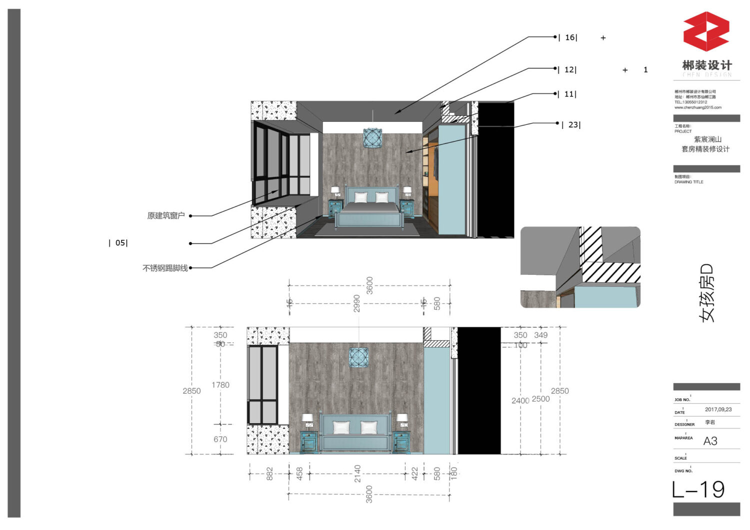
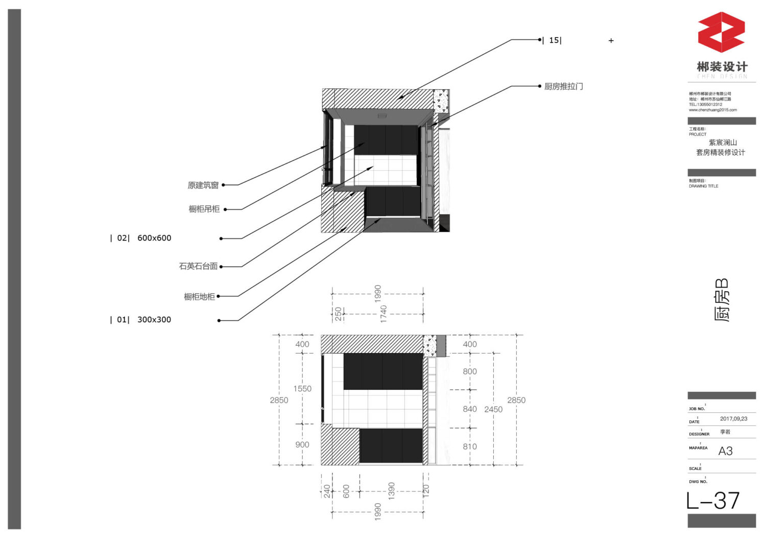
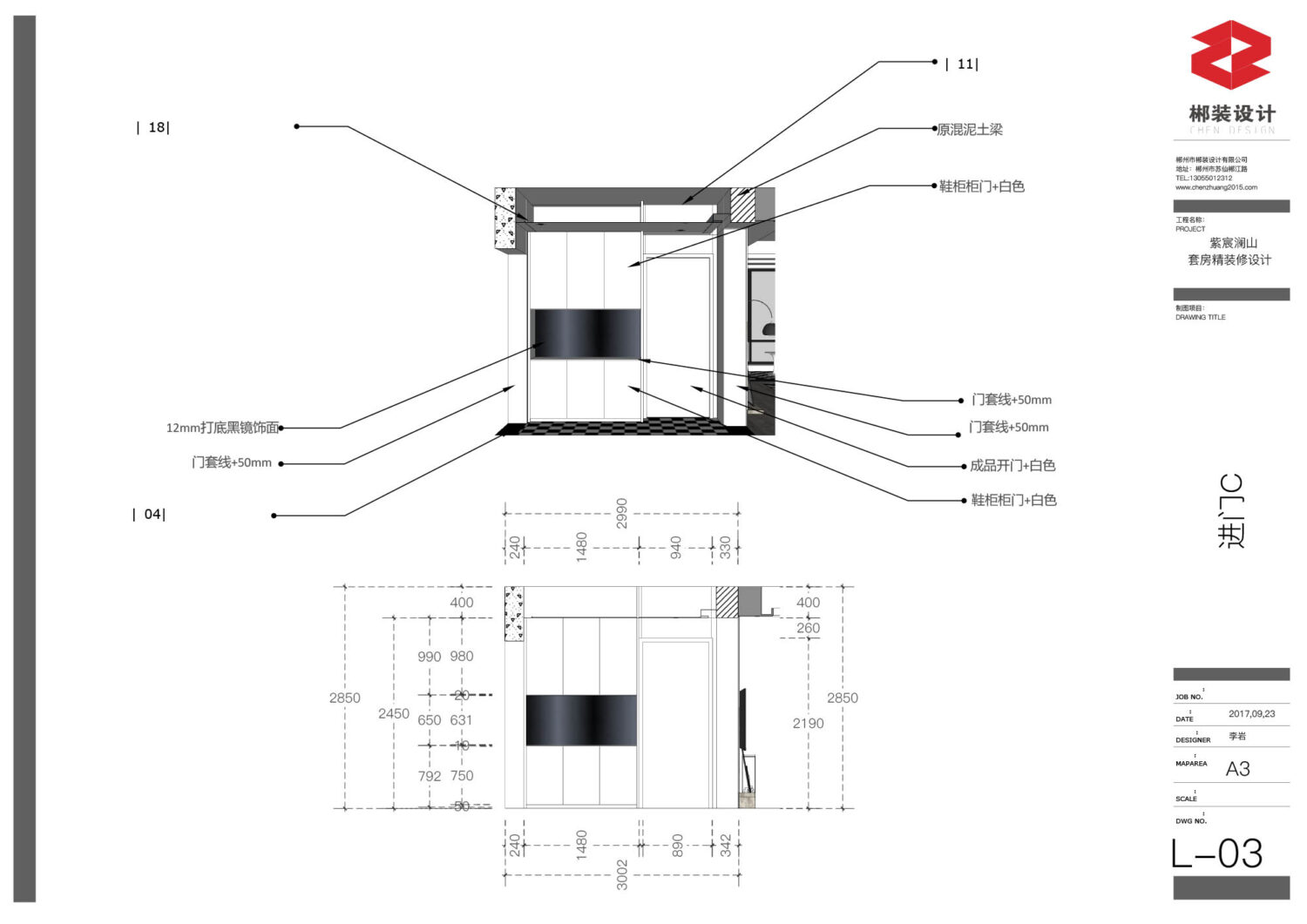
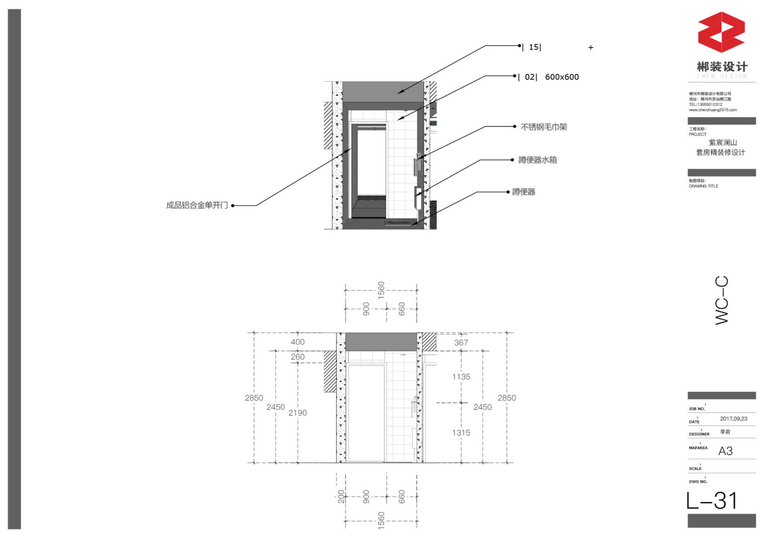
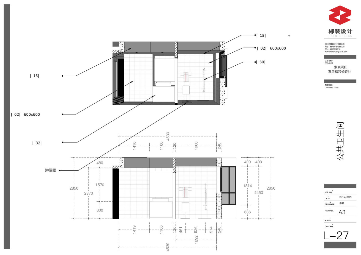
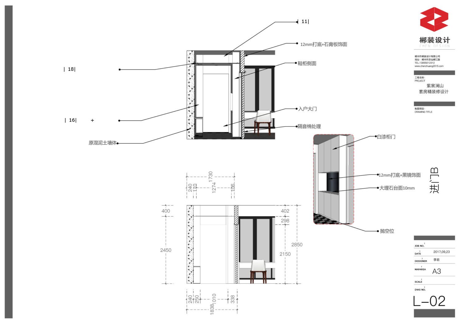
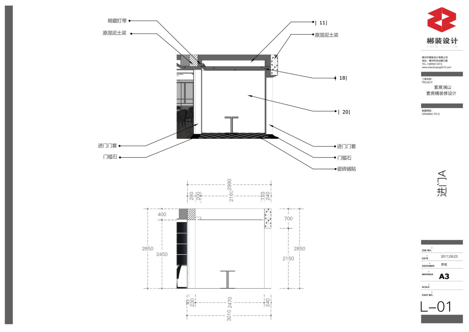
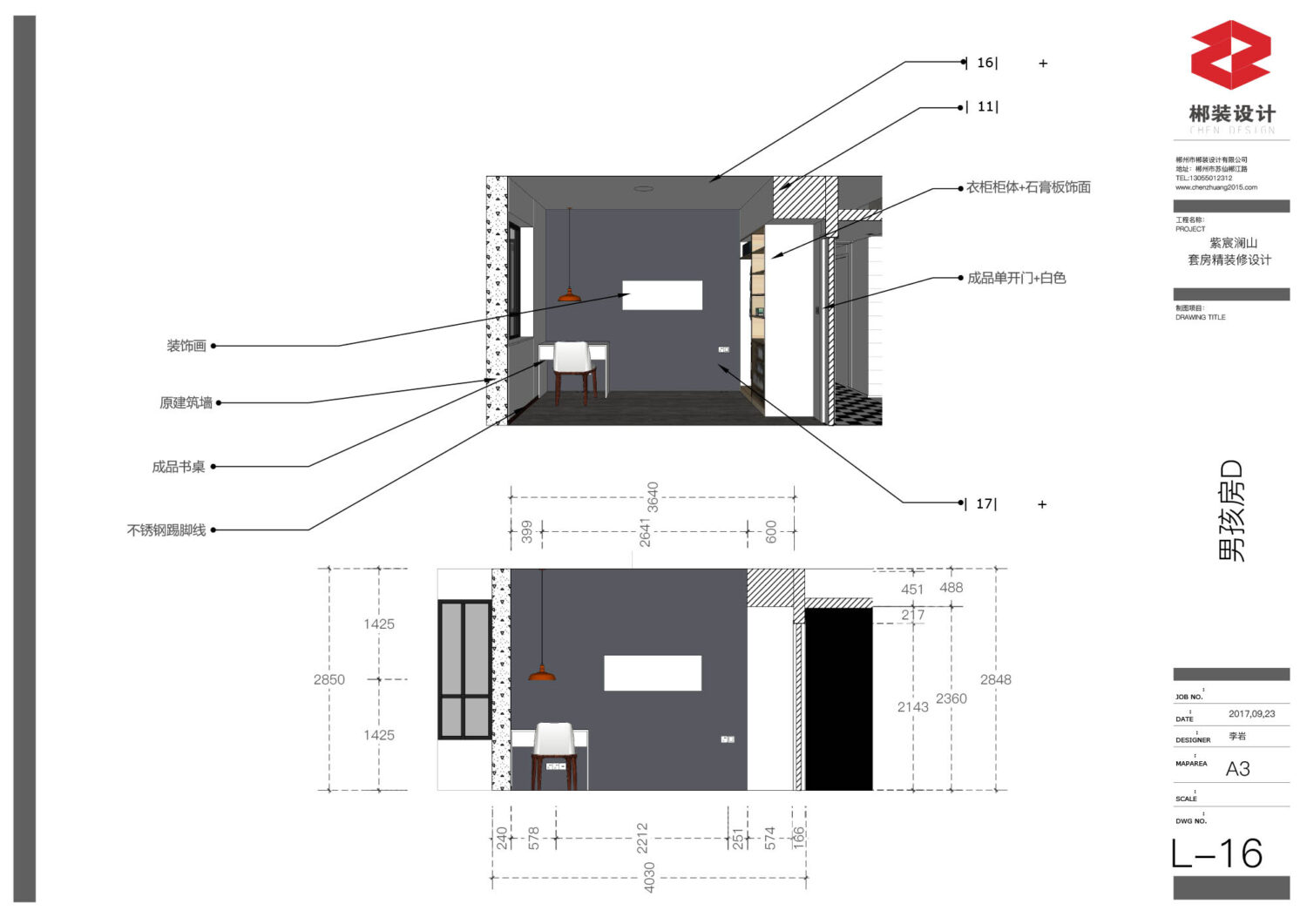
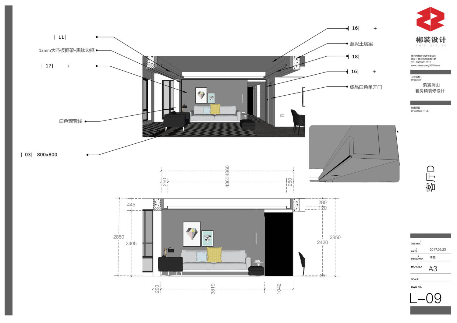
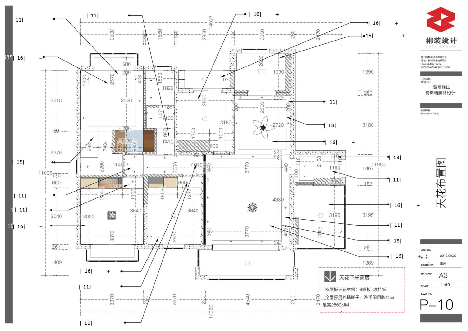
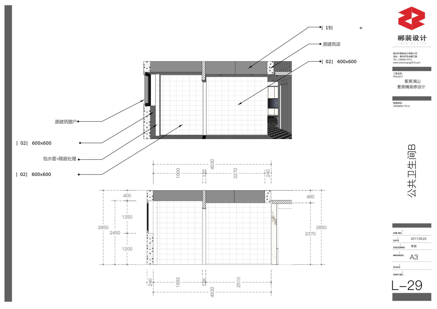
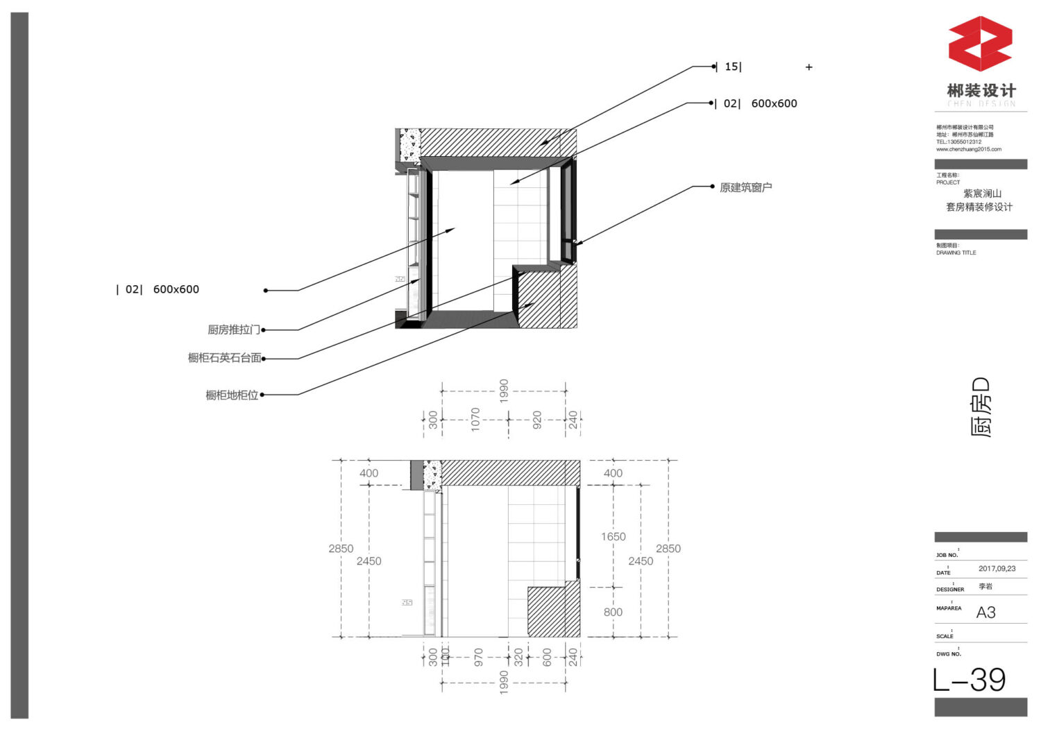
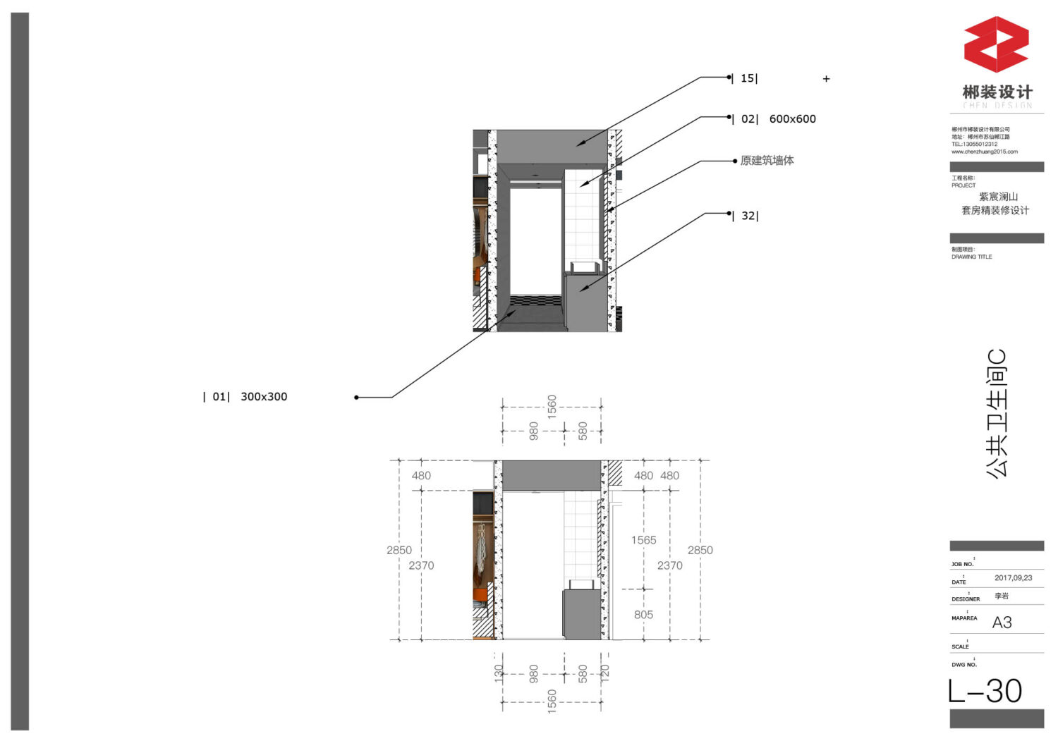
学员录语:以前没用LayOut的时候,我们用SketchUp做设计推敲空间感觉与形体的组合关系,然后又要从头开始用AutoCAD重新开始画施工图,造成了模型的使用效率不高。
现在掌握了LayOut工作流程,做一套施工图只要一天就可以搞定。整个过程,最花时间的是前期做SketchUp设计推敲的阶段,实际上,到输出LayOut施工图的时候是很快的。
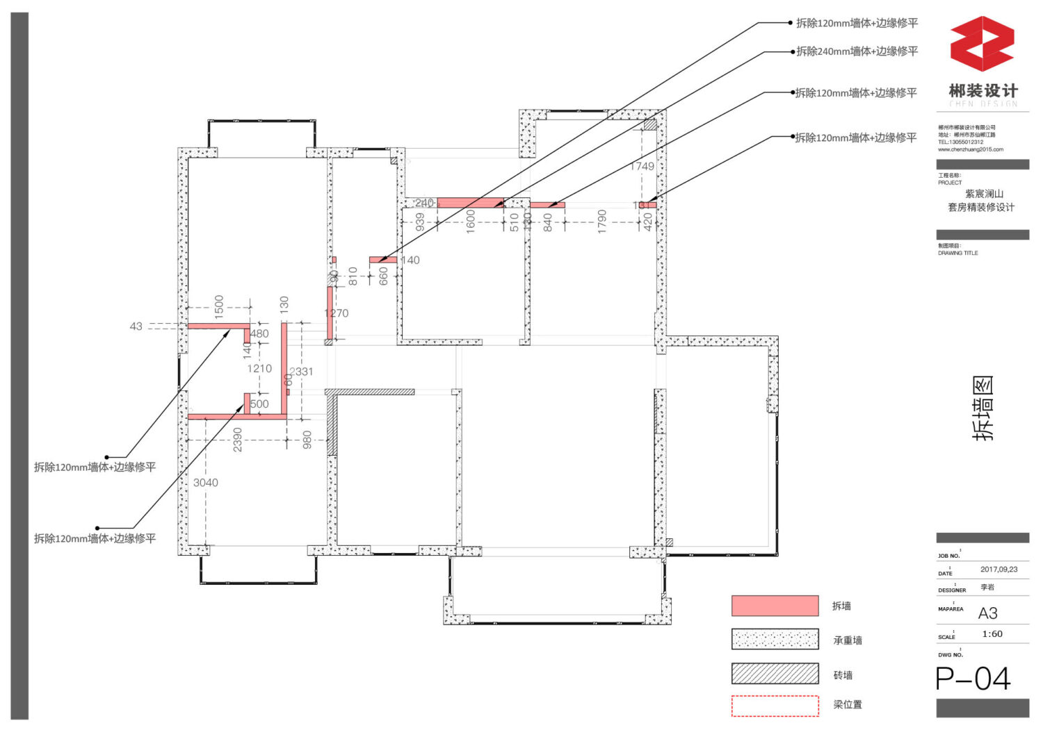
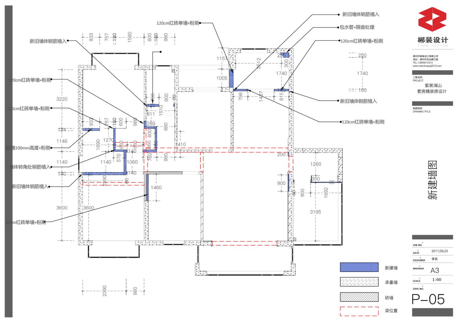
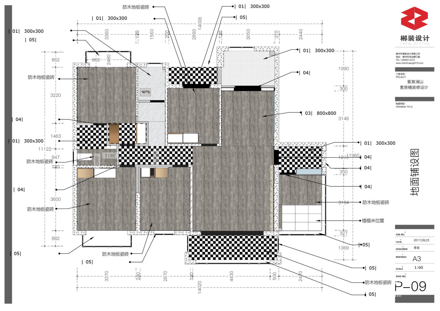
学员录语:以前没用LayOut的时候,我们用SketchUp做设计推敲空间感觉与形体的组合关系,然后又要从头开始用AutoCAD重新开始画施工图,造成了模型的使用效率不高。
现在掌握了LayOut工作流程,做一套施工图只要一天就可以搞定。整个过程,最花时间的是前期做SketchUp设计推敲的阶段,实际上,到输出LayOut施工图的时候是很快的。




























































