系统课程 效率插件 工作台

使用LayOut出施工图,让设计真实还原。

使用LayOut出施工图,让设计真实还原。 国内设计工作室已经用LayOut+SketchUp工作流完全代替了 […]

详细介绍

使用LayOut出施工图,让设计真实还原。

国内设计工作室已经用LayOut+SketchUp工作流完全代替了用AutoCAD输出图纸

能这么设计和出图,我想这是多么有趣的事情,看了这些案例之后,我想能激发你对LayOut探索的好奇心。

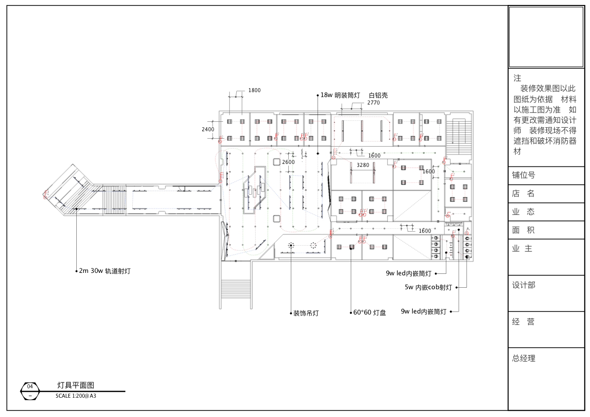
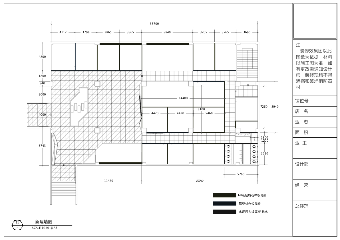
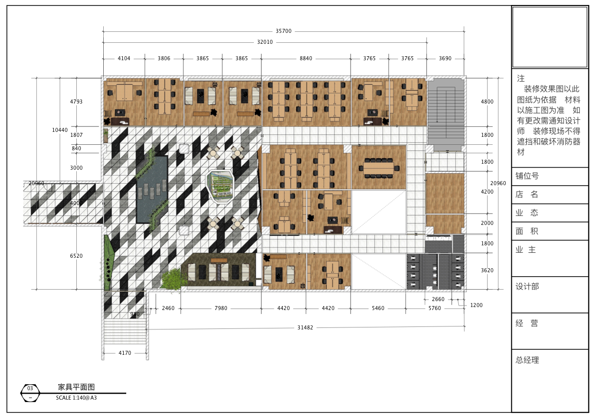
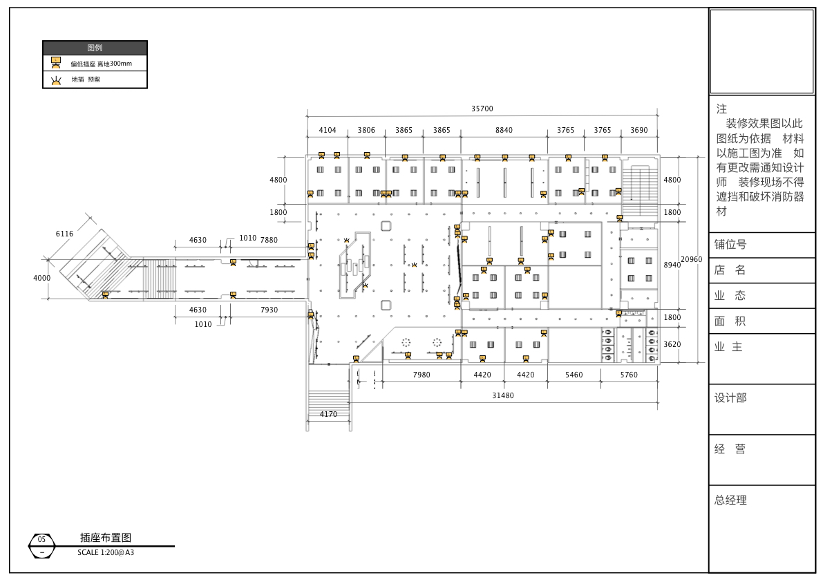
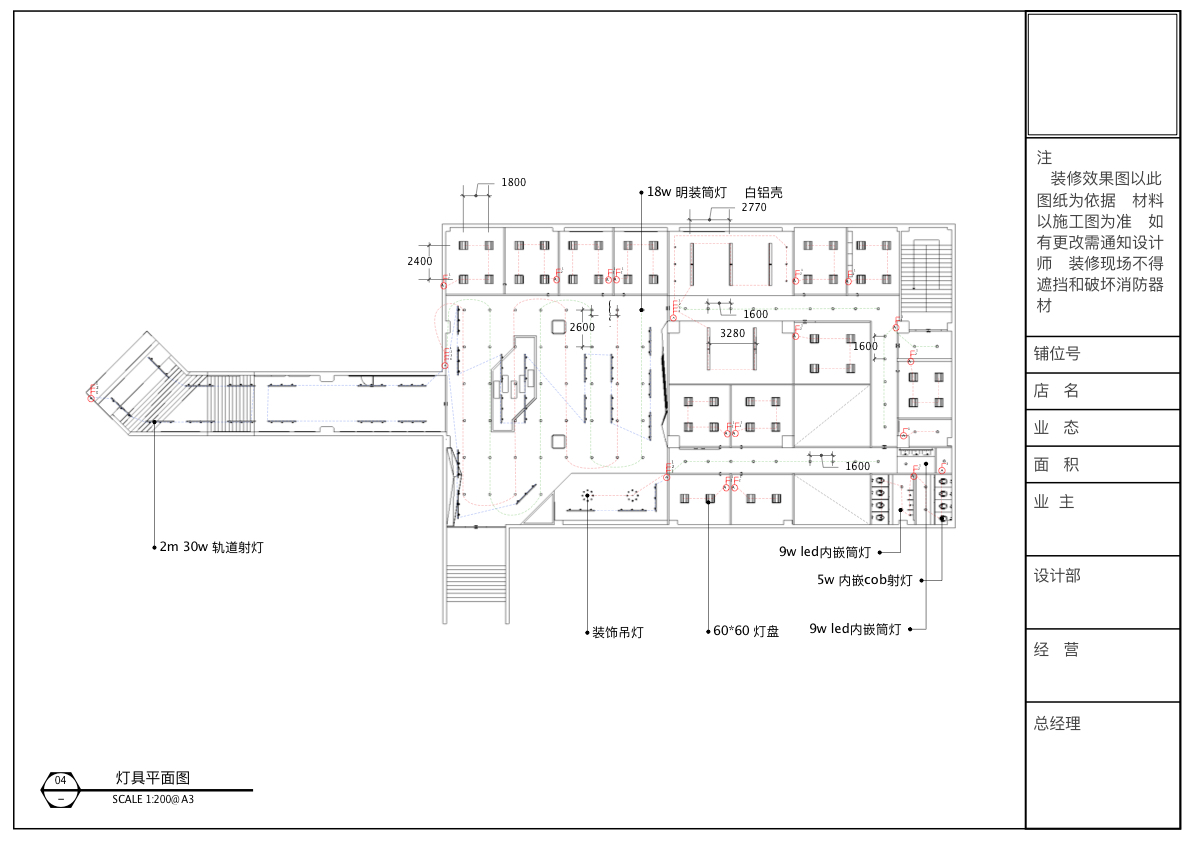
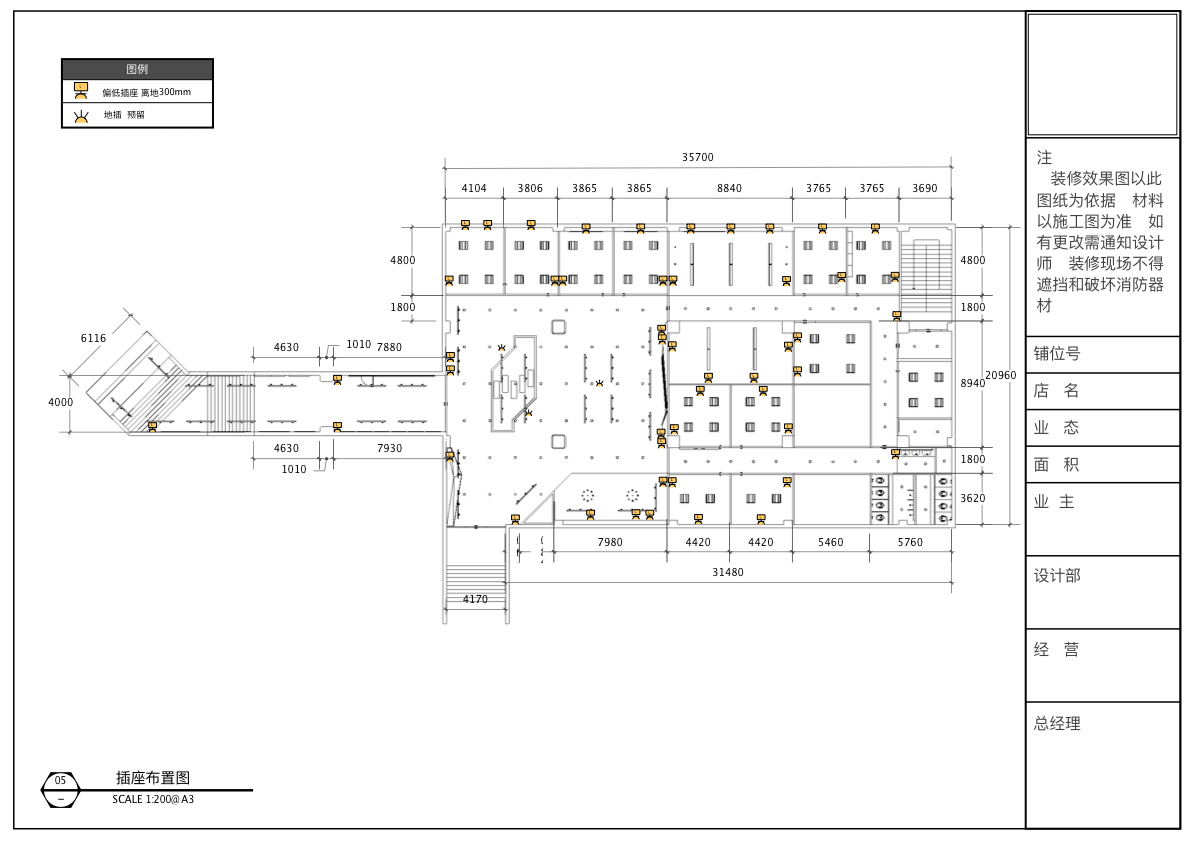
这一些是我们学员的学习成果,并完全已经应用到工作项目上,并回不到CAD时代。


 

 


LayOut是什么?

在安装完草图大师SketchUp之后,桌面上会出现三个app,分别是SKetchUP、LayOut、StyleBuilder,其中LayOut可以获取SketchUp模型来制作施工指导图纸。


LayOut教程

优象推出了国内首套的LayOut施工图系统性案例培训教程,能够把做好的SketchUp模型直接输出LayOut图纸。快速了解LayOut,学习优象的LayOut公开课(链接


LayOut学员案例

LayOut软件下载


 

将图片拖放到这里添加至 Eagle

用户登录