详细介绍
LayOut办公空间案例集
CAD并不是唯一的图纸绘制工具,我们可以用全新的方式和不一样的角度。SketchUp本身可以输出另外惊叹的施工图纸,文章分享近来优象学员的学习成果和实践成果,针对办公空间项目,他们是如何通过LayOut呈现所做的图纸,给到还没使用LayOut的你更多的信心和好奇心。
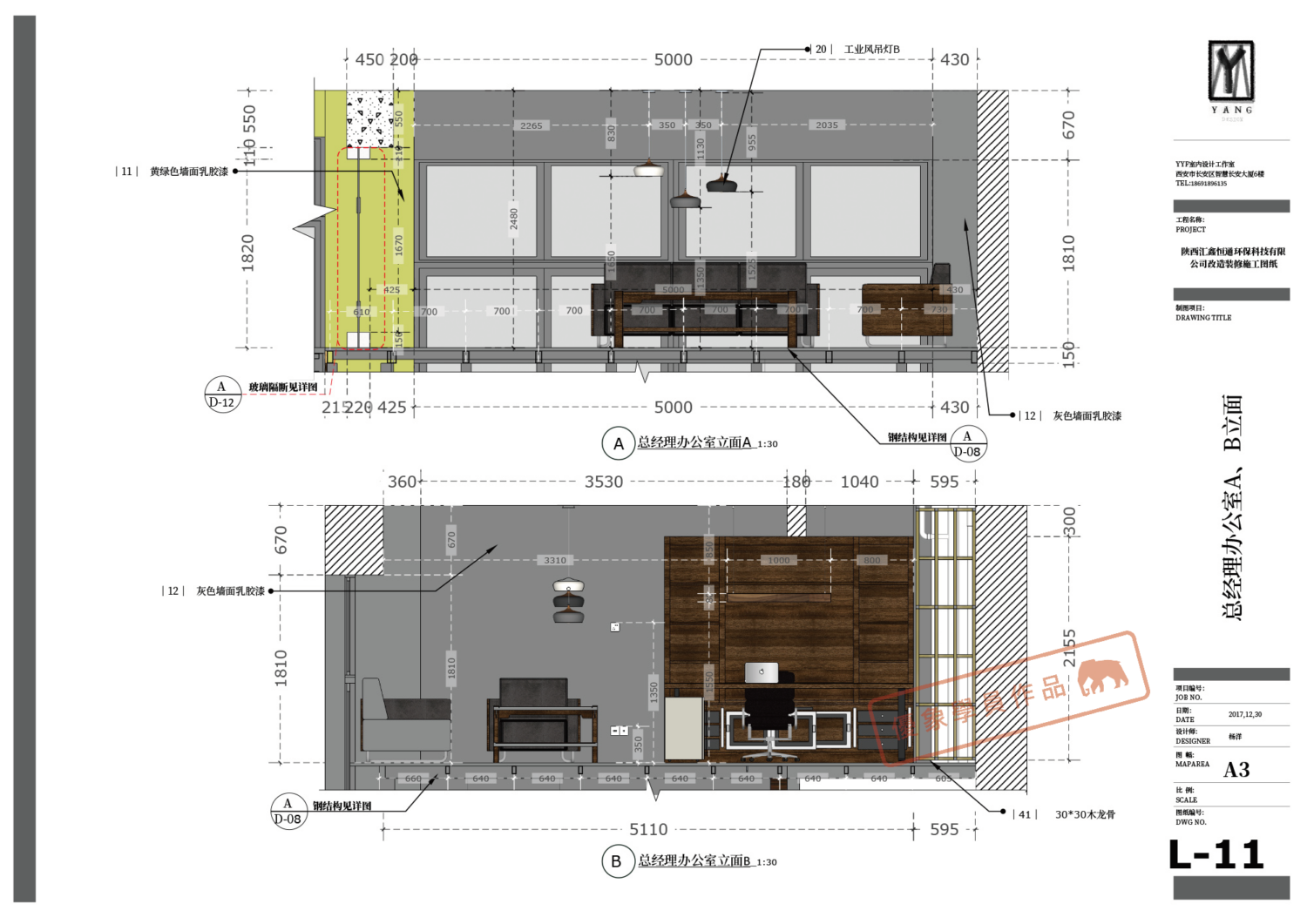
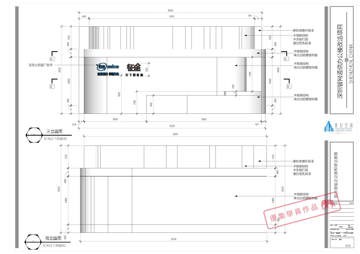
项目一:深圳智网通信办公楼项目改造装修施工图
这套项目学员使用LayOut只制作了立面图,平面类的图纸可能使用了CAD输出,因为项目前期需要提前给CAD的原因,模型全部出来后才能输出Layout整套图纸就无法跟上实际的进度需求,所以就采用了CAD+LayOut的灵活出图方案。
方案确定之后,设计师就有更多的时间去深化SketchUp模型,进而深化设计和完整各个节点收口的合理性,保证最大化能够落地的同时,对后期施工问题出现更少。
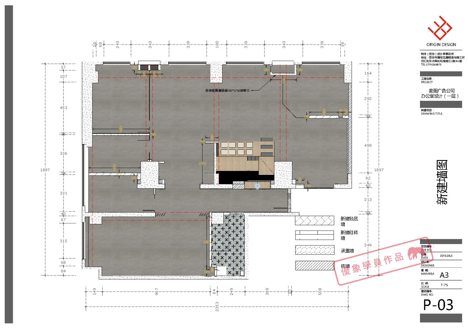
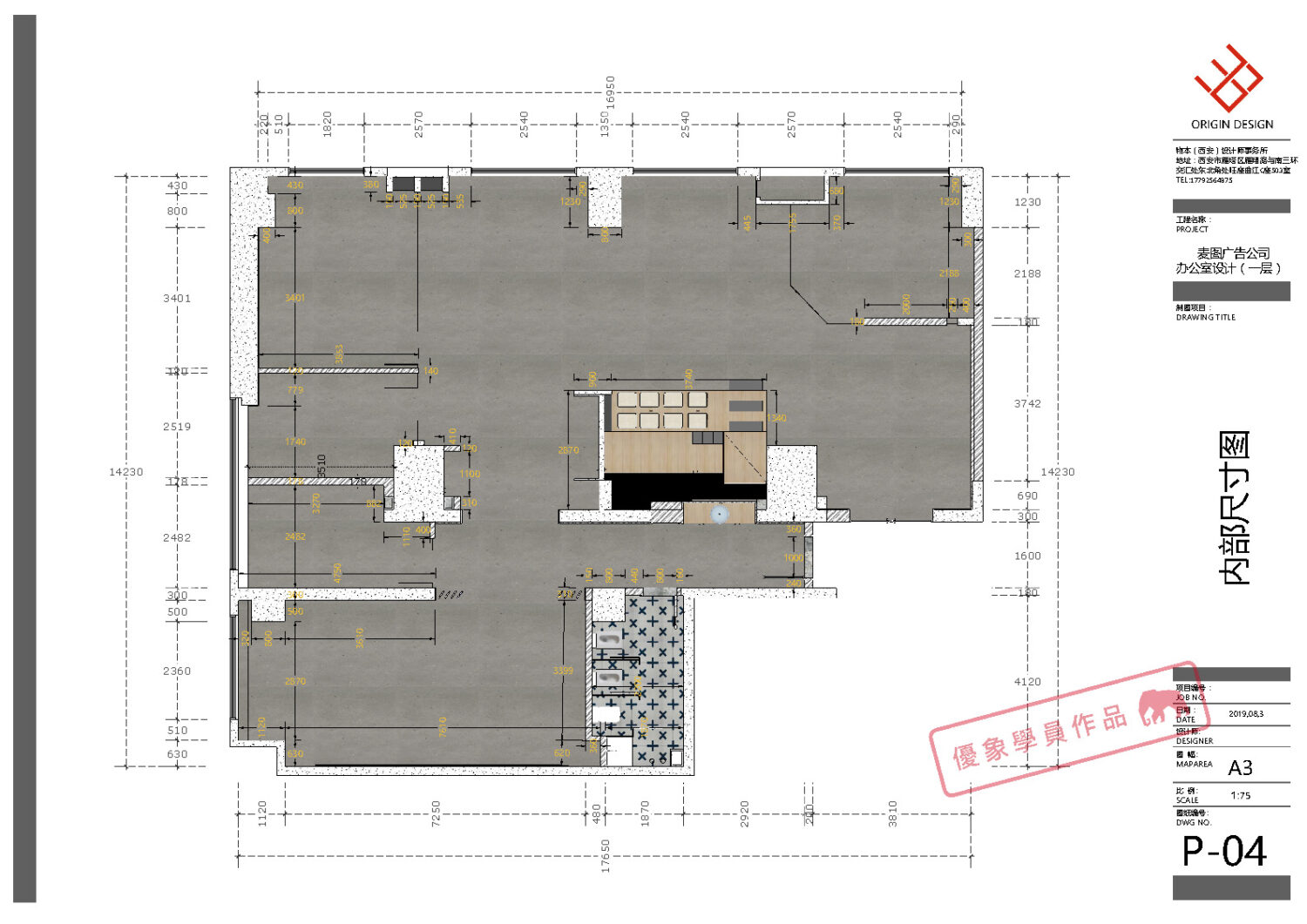
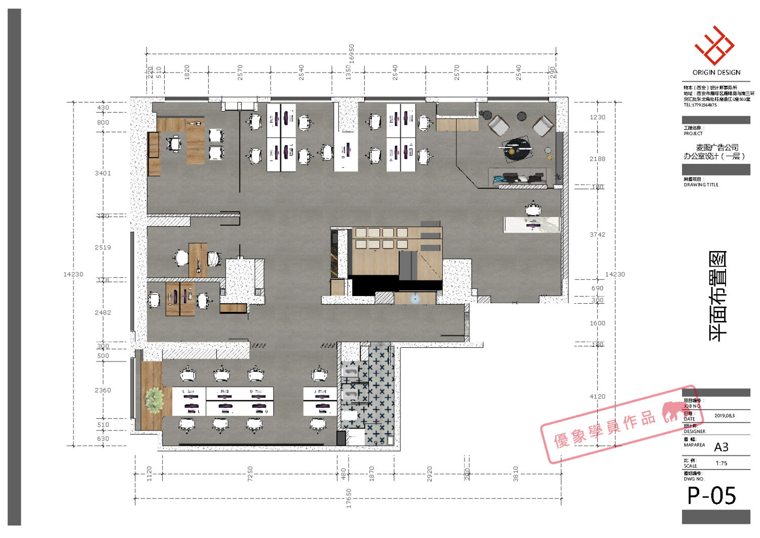
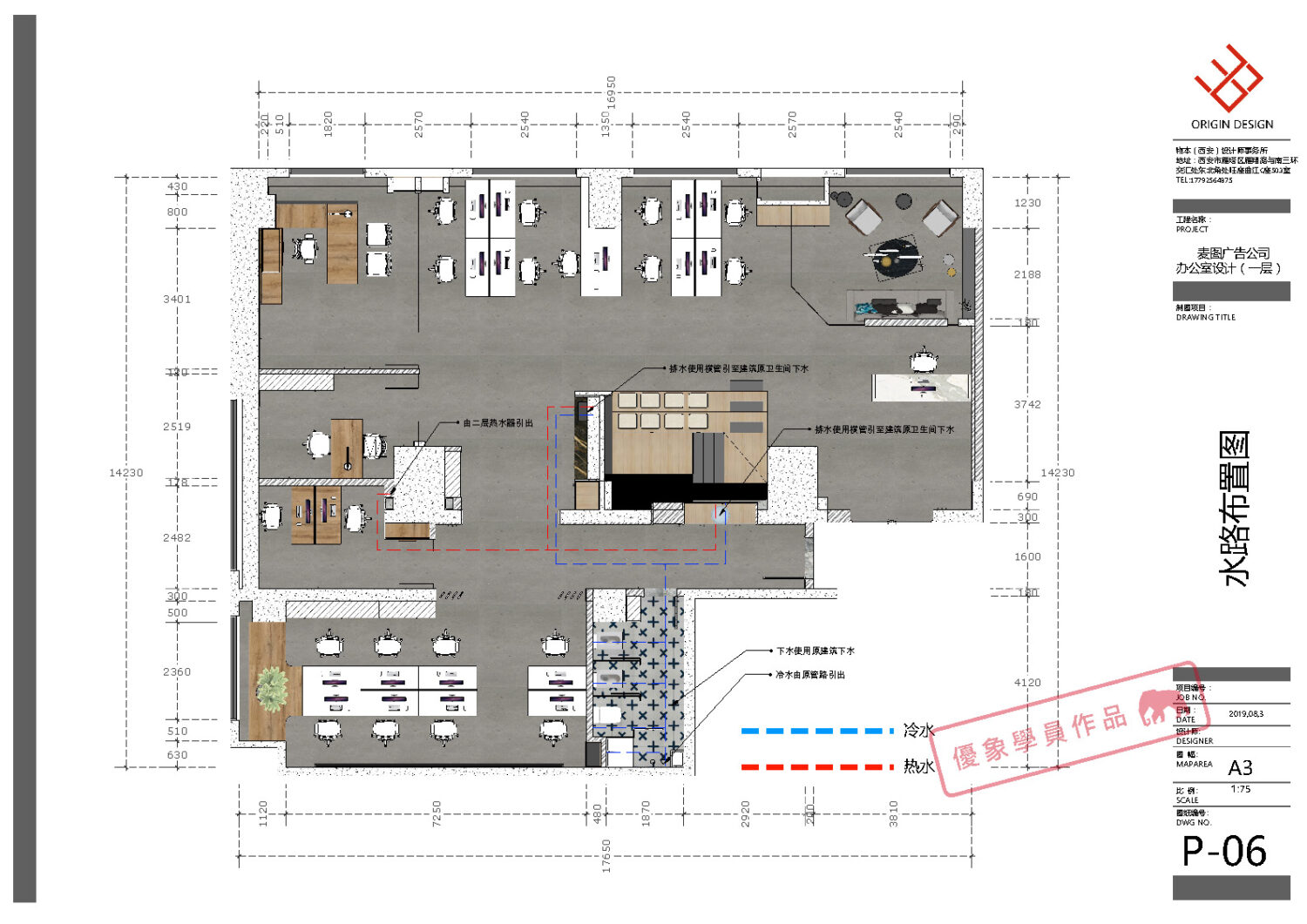
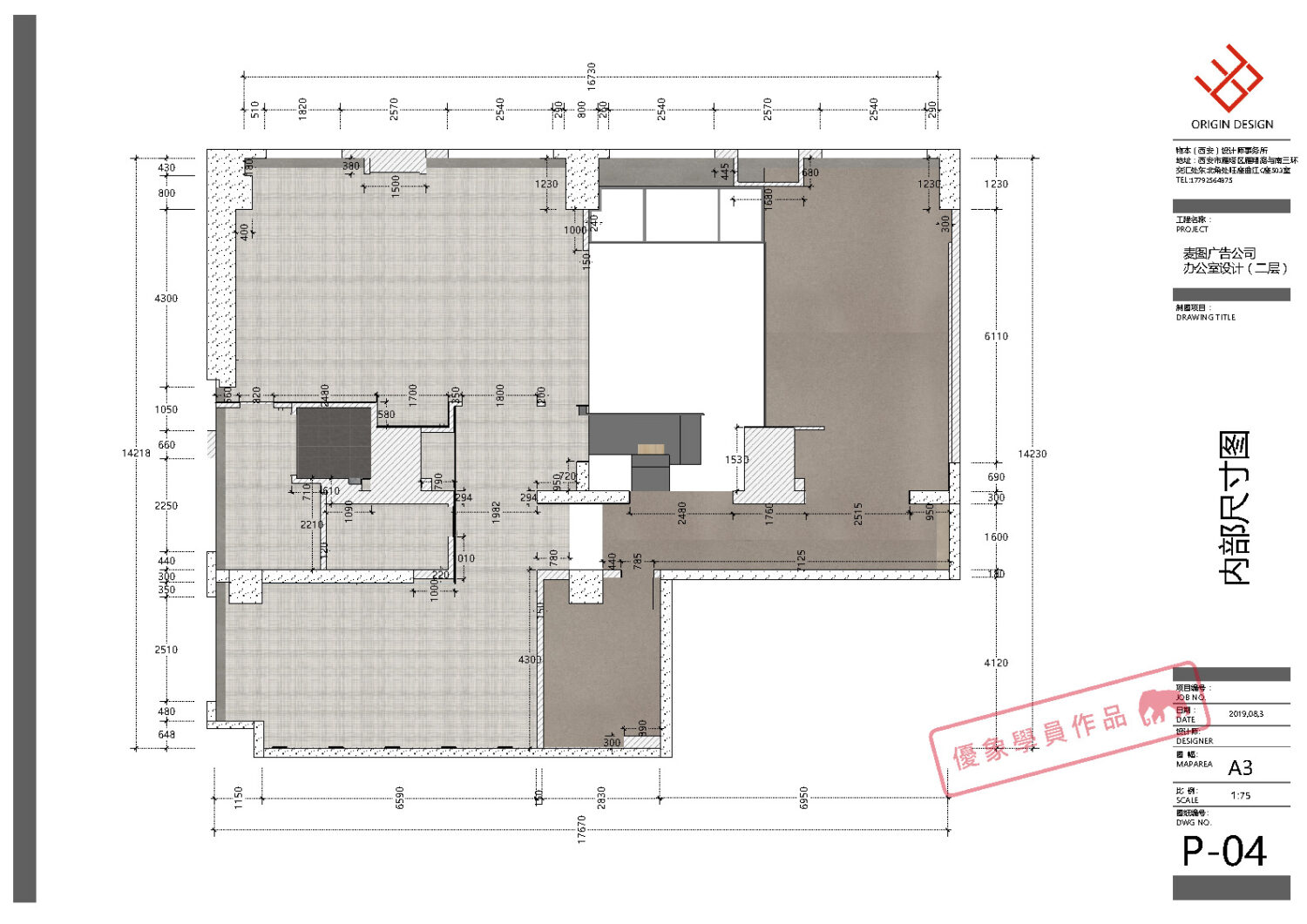
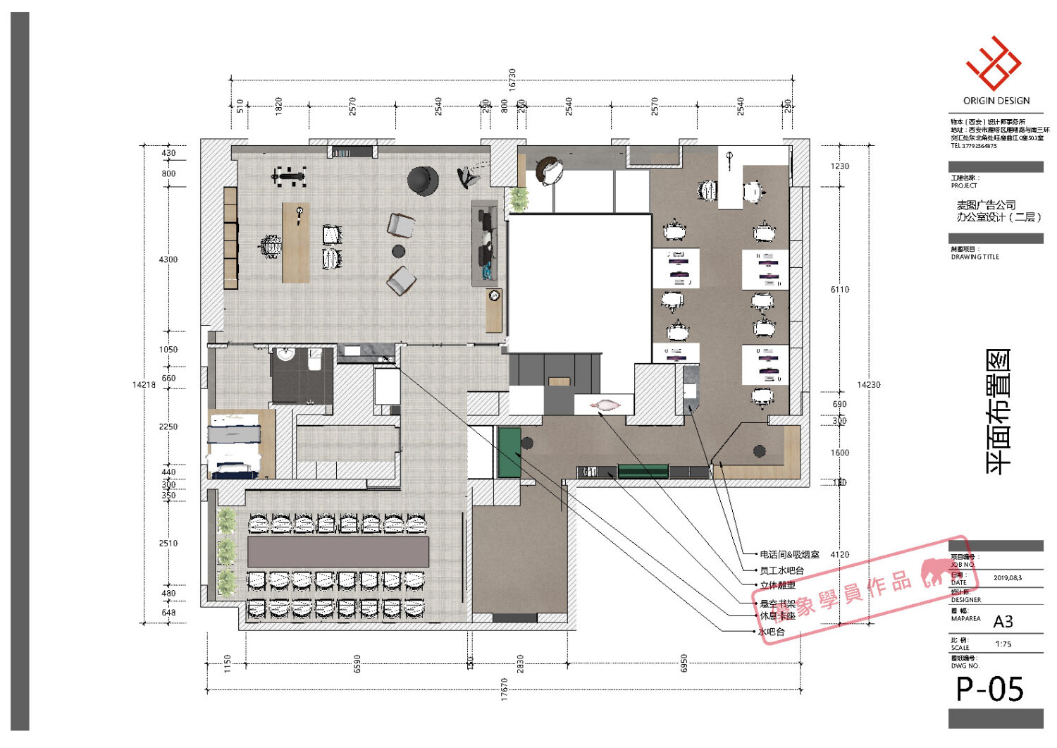
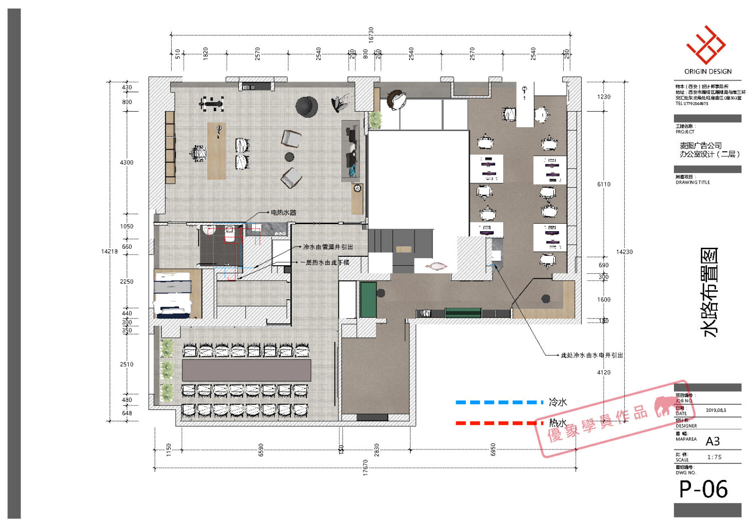
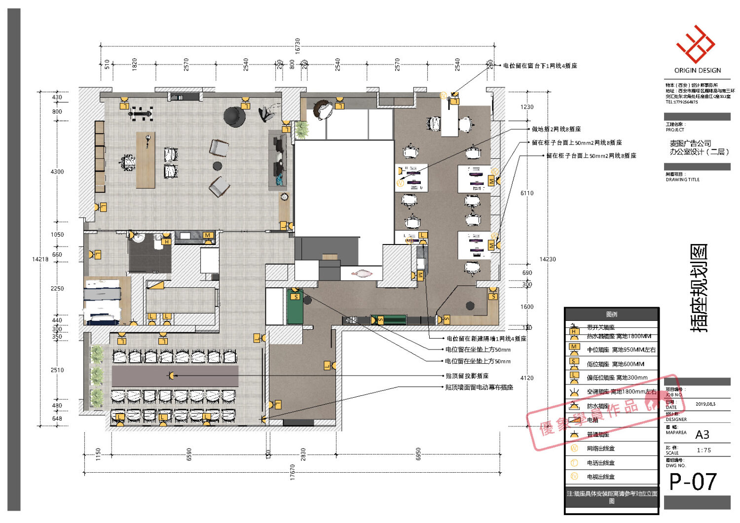
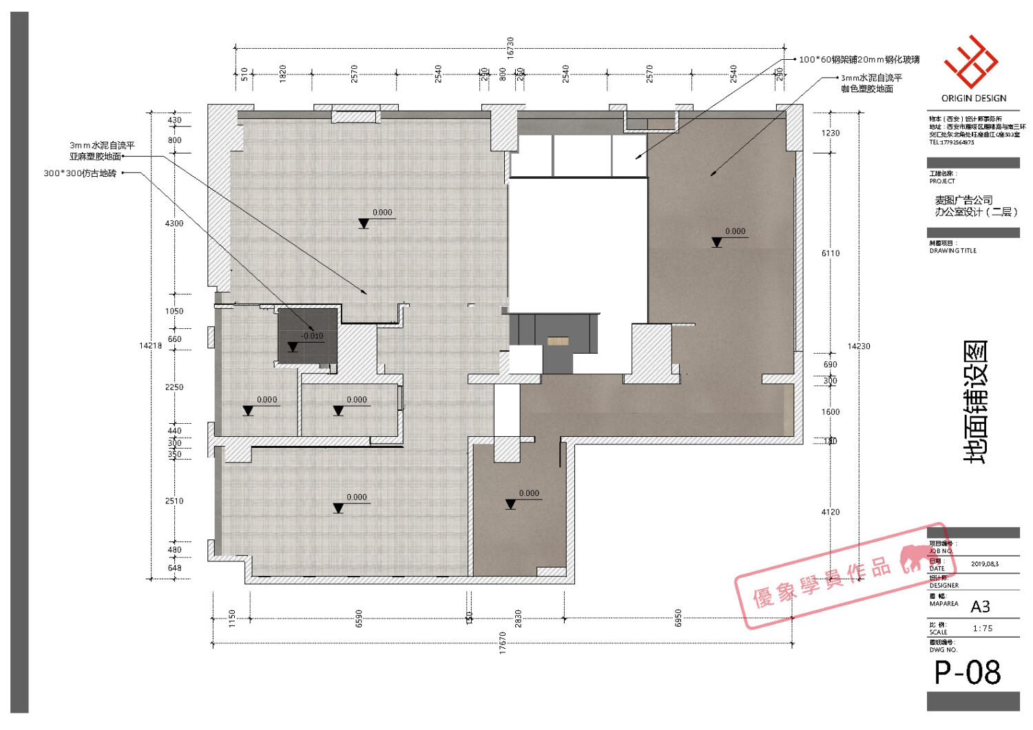
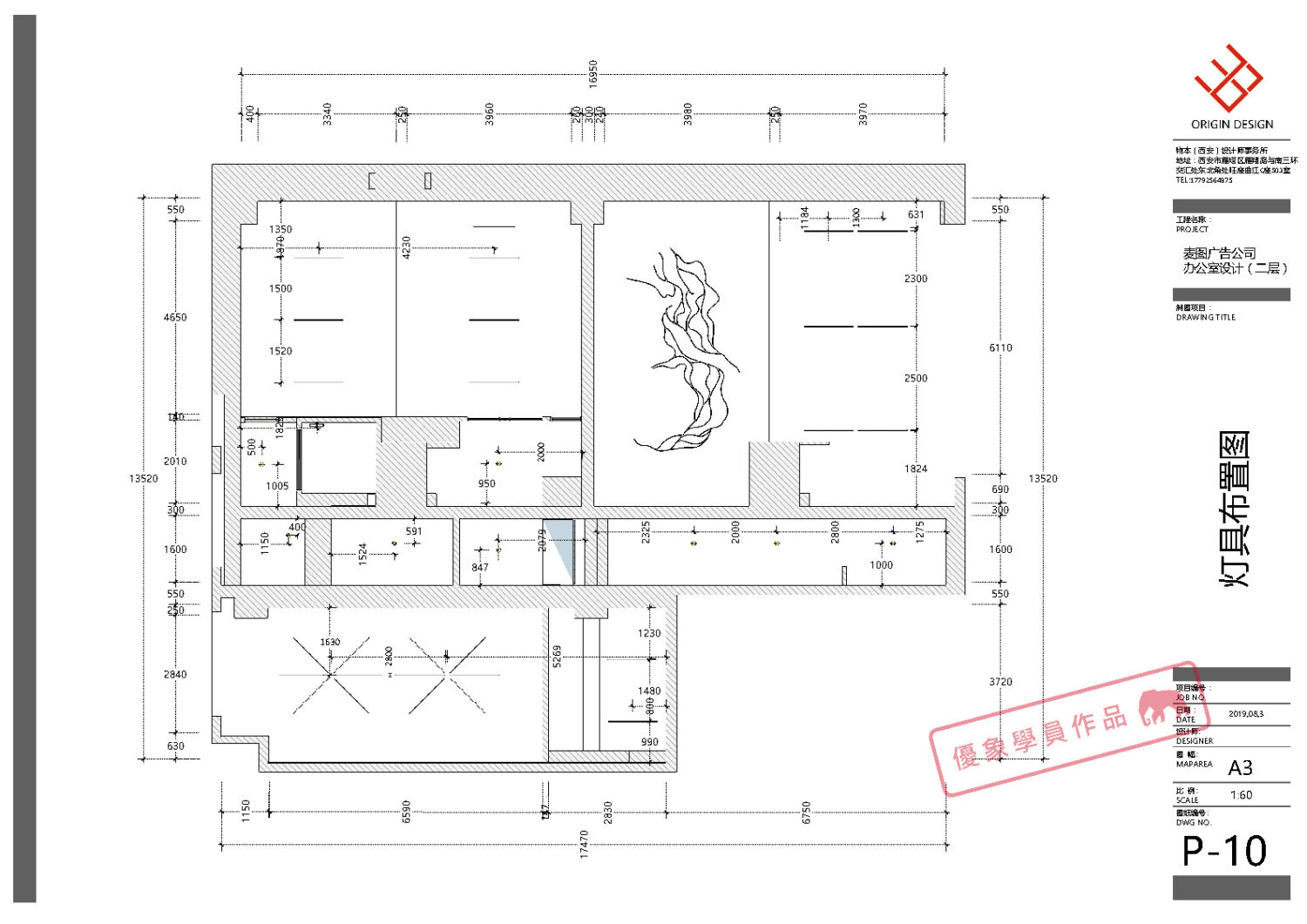
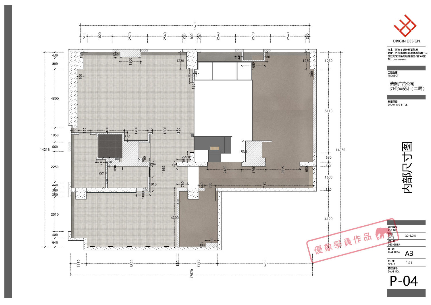
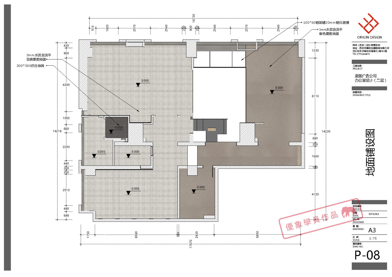
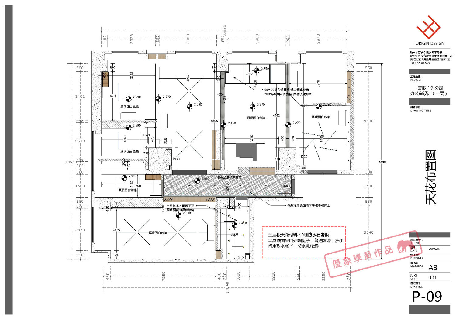
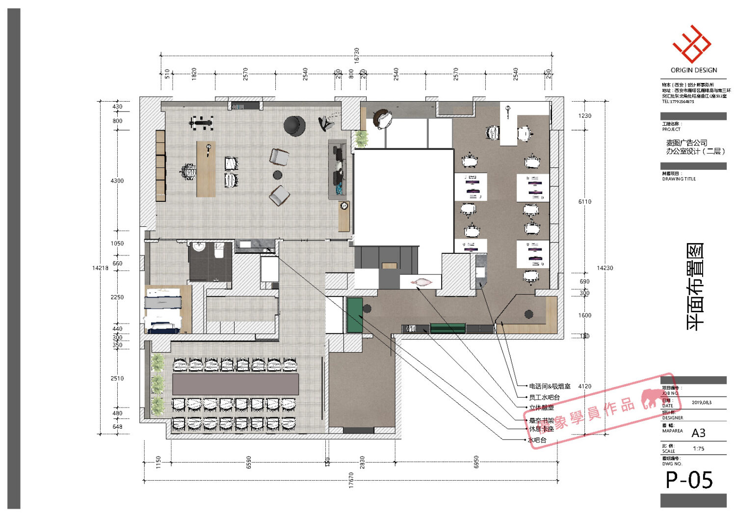
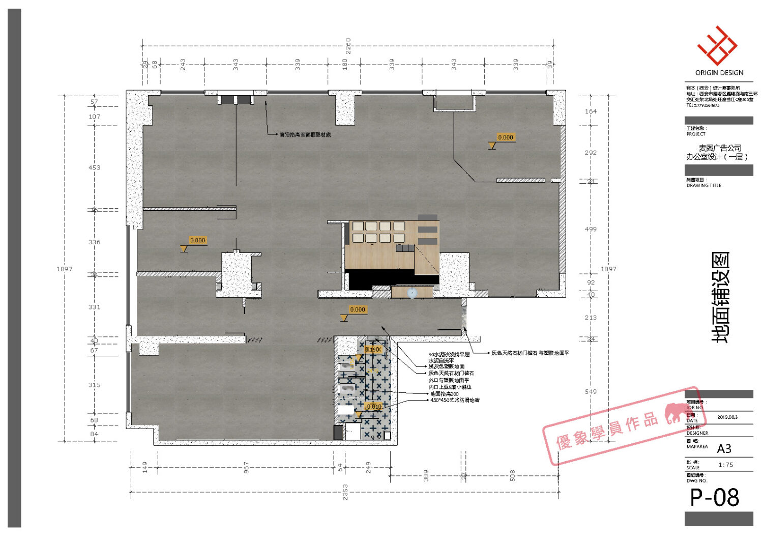
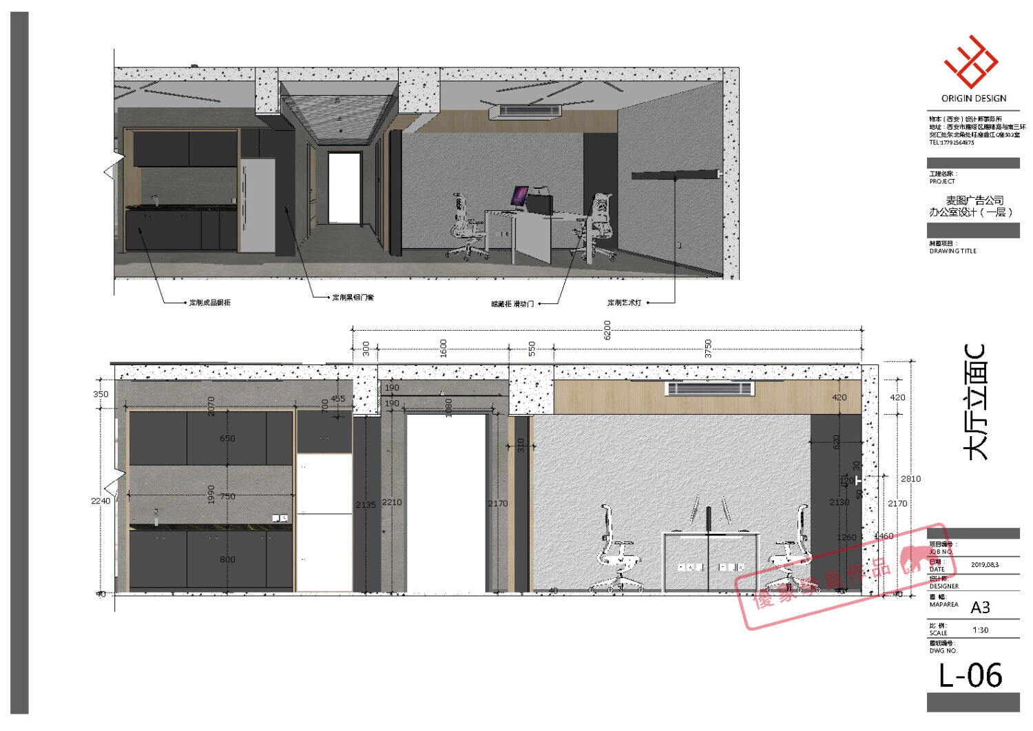
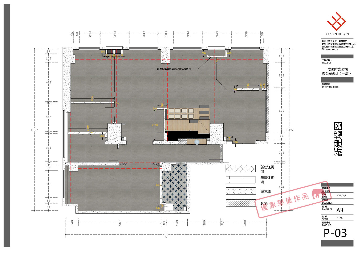
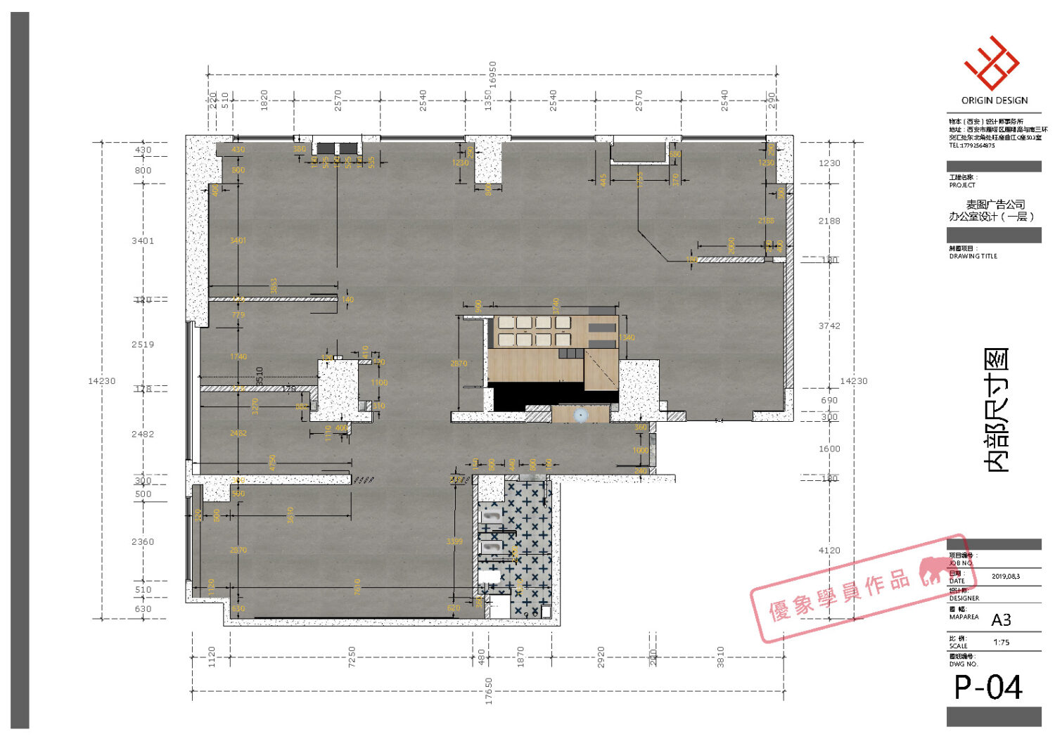
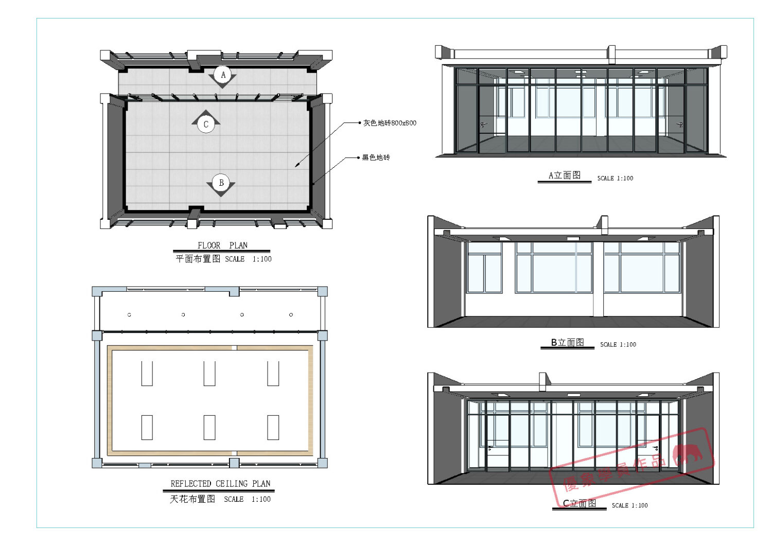
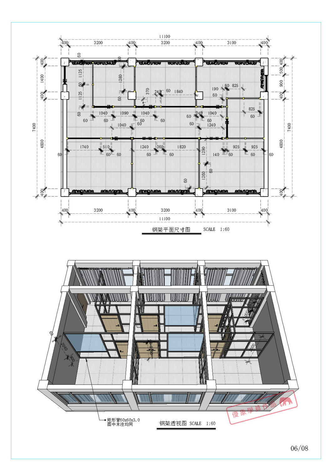
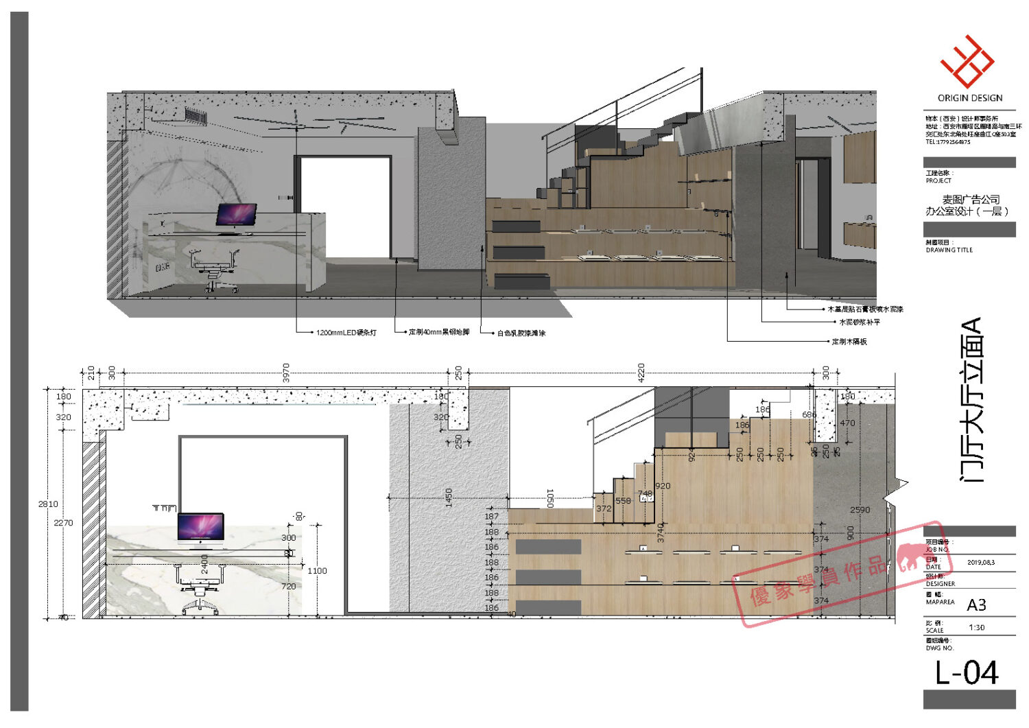
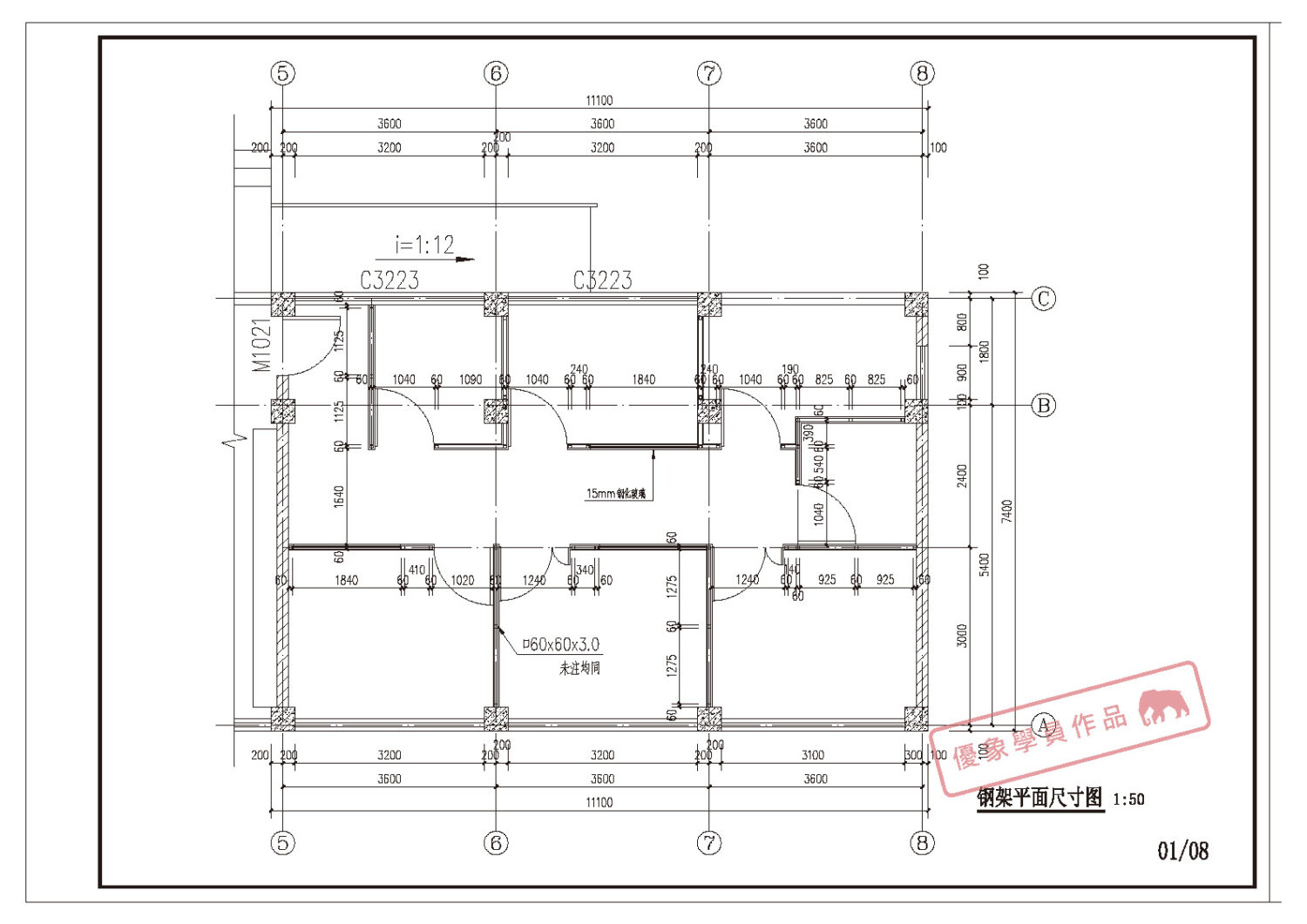
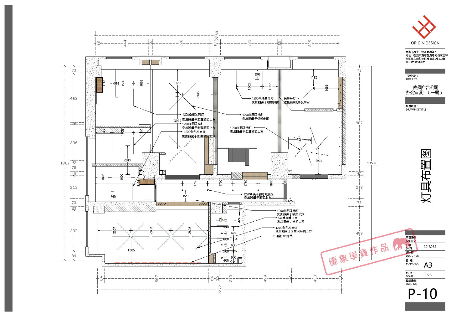
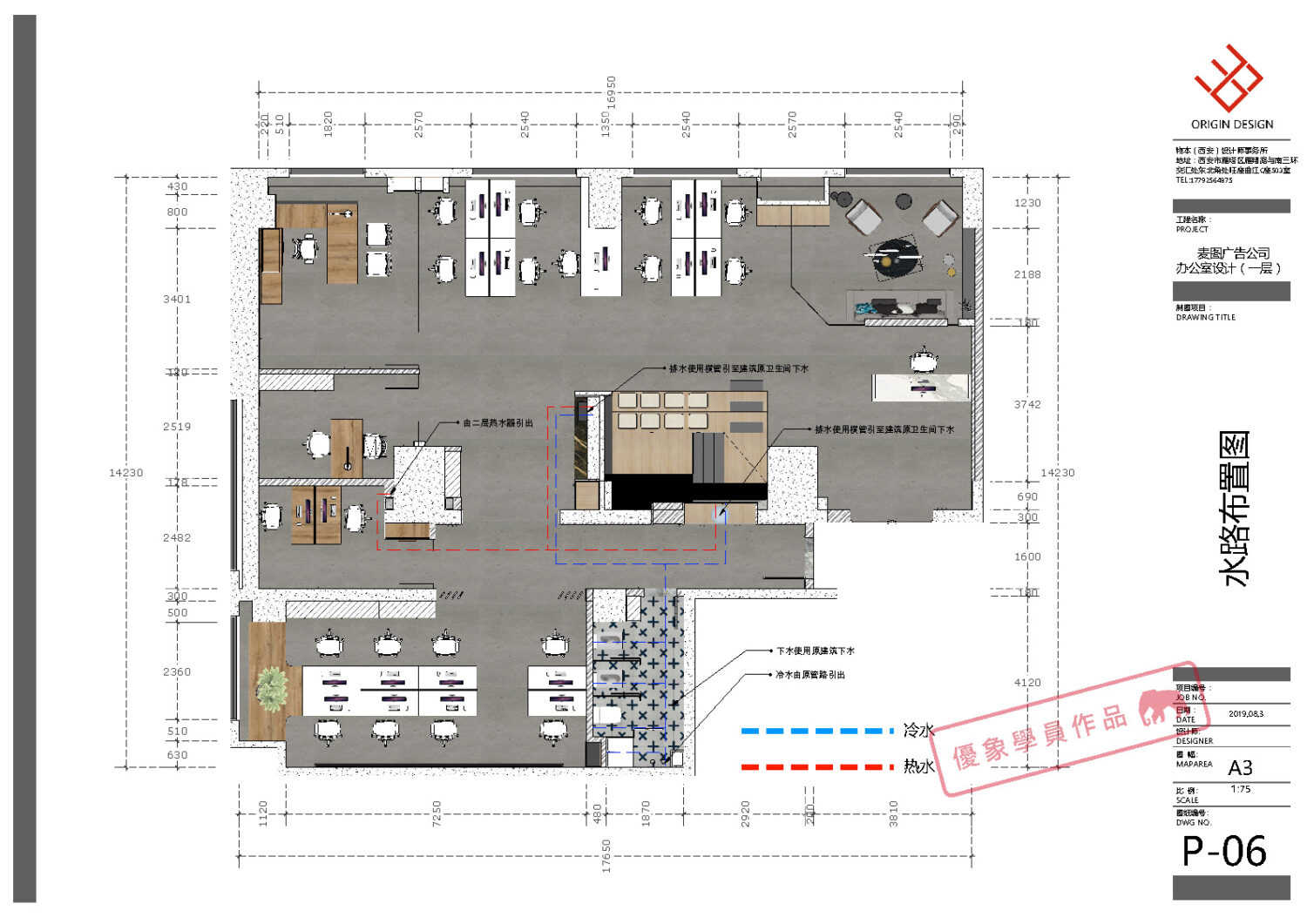
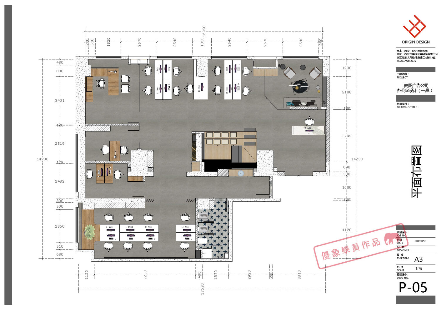
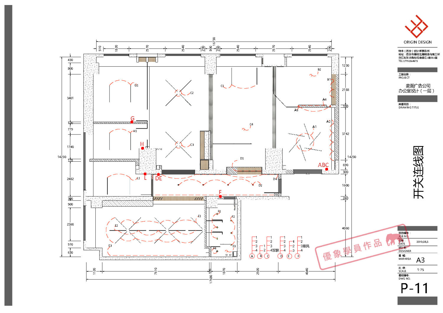
项目二:广告公司办公室
这个项目全套使用LayOut进行图纸表达,套用了LayOut课程所提供的模版,进行了快速的出图。
项目包含了一、二两层,面积不大,但涉及到的图纸数量也很多。使用传统的CAD流畅,工作量和绘图时间是很多设计机构面对的烦恼问题。
但是通过SketchUp所制作好的模型,就可以快速的进行所有平面和立面的输出,并且模型和图纸是无缝联动修改的。
尽管修改了一些结构模型,例如柱子的位置,相关联的里面都是一起被联动修改的,这样后期修改图纸的出错机会就大大减少了。
…
LayOut办公空间案例集
CAD并不是唯一的图纸绘制工具,我们可以用全新的方式和不一样的角度。SketchUp本身可以输出另外惊叹的施工图纸,文章分享近来优象学员的学习成果和实践成果,针对办公空间项目,他们是如何通过LayOut呈现所做的图纸,给到还没使用LayOut的你更多的信心和好奇心。

项目一:深圳智网通信办公楼项目改造装修施工图
这套项目学员使用LayOut只制作了立面图,平面类的图纸可能使用了CAD输出,因为项目前期需要提前给CAD的原因,模型全部出来后才能输出Layout整套图纸就无法跟上实际的进度需求,所以就采用了CAD+LayOut的灵活出图方案。
方案确定之后,设计师就有更多的时间去深化SketchUp模型,进而深化设计和完整各个节点收口的合理性,保证最大化能够落地的同时,对后期施工问题出现更少。
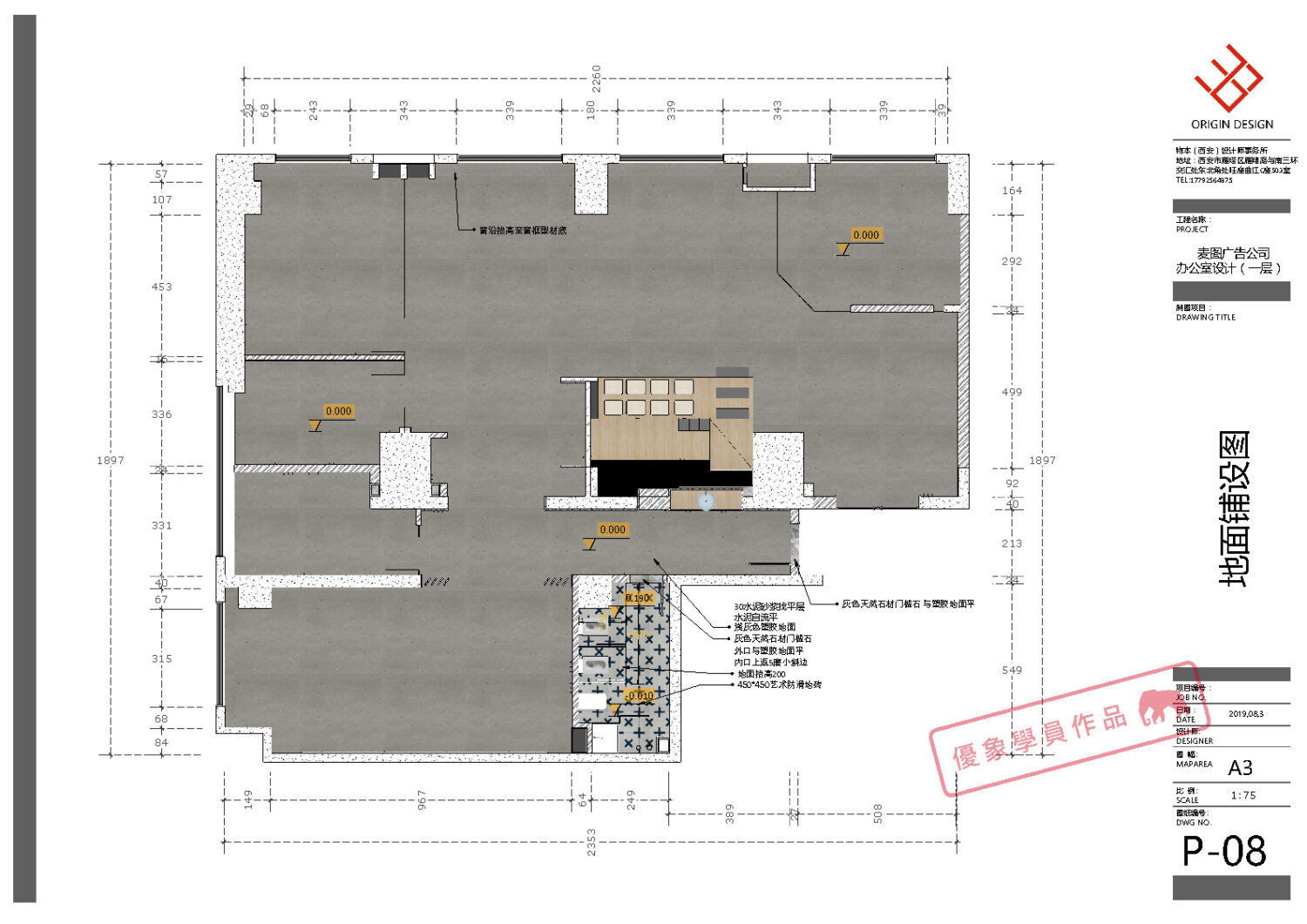
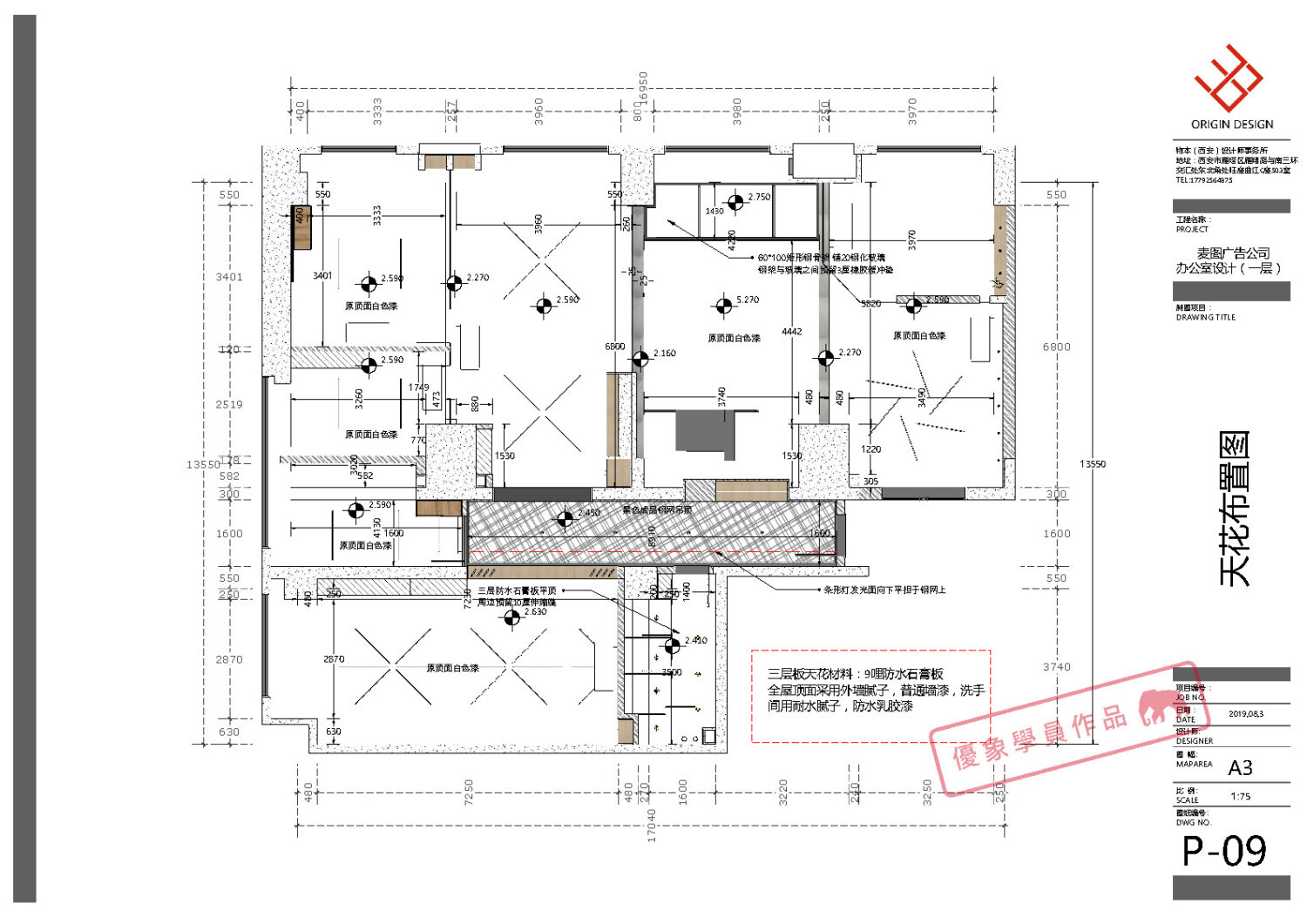
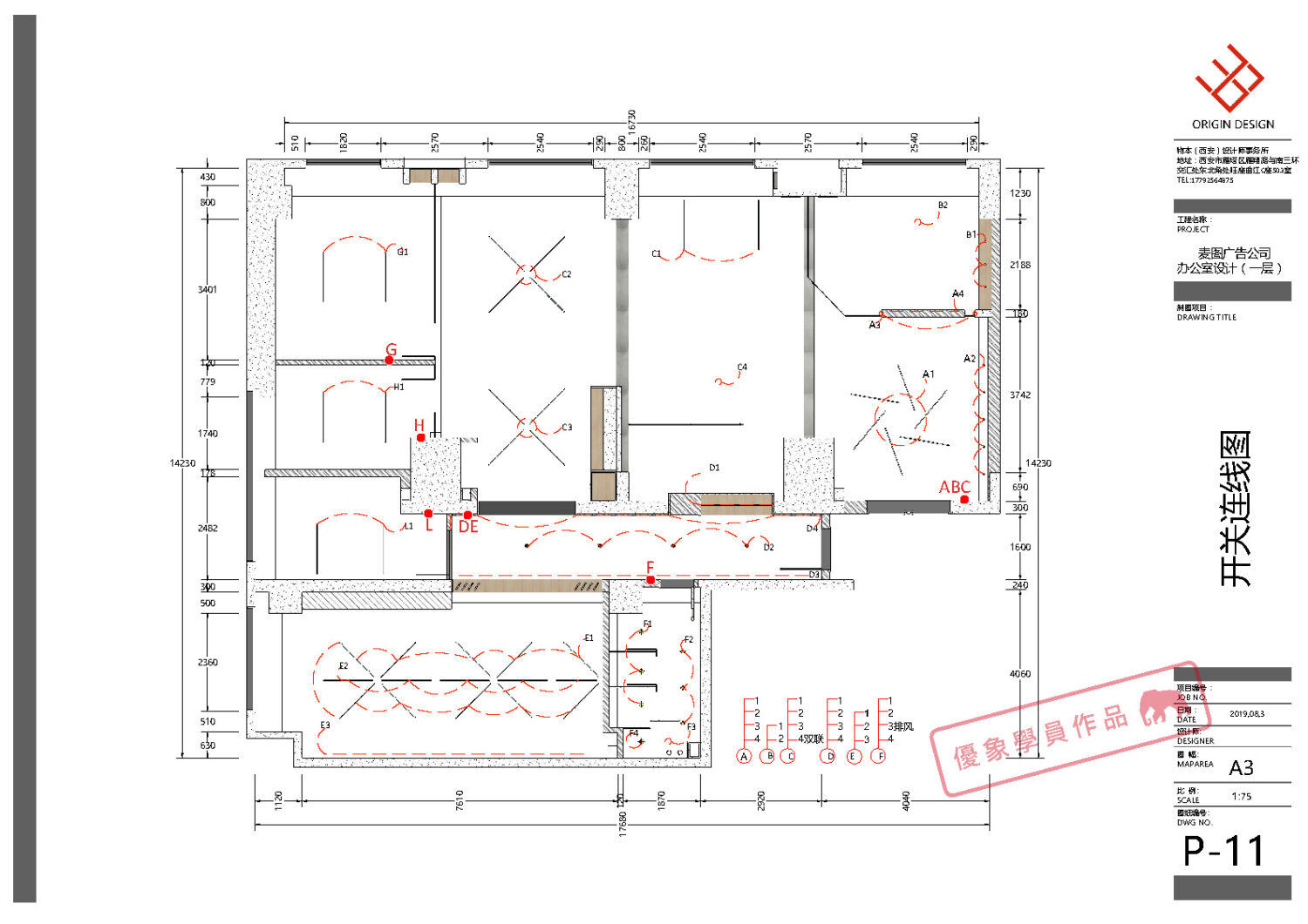
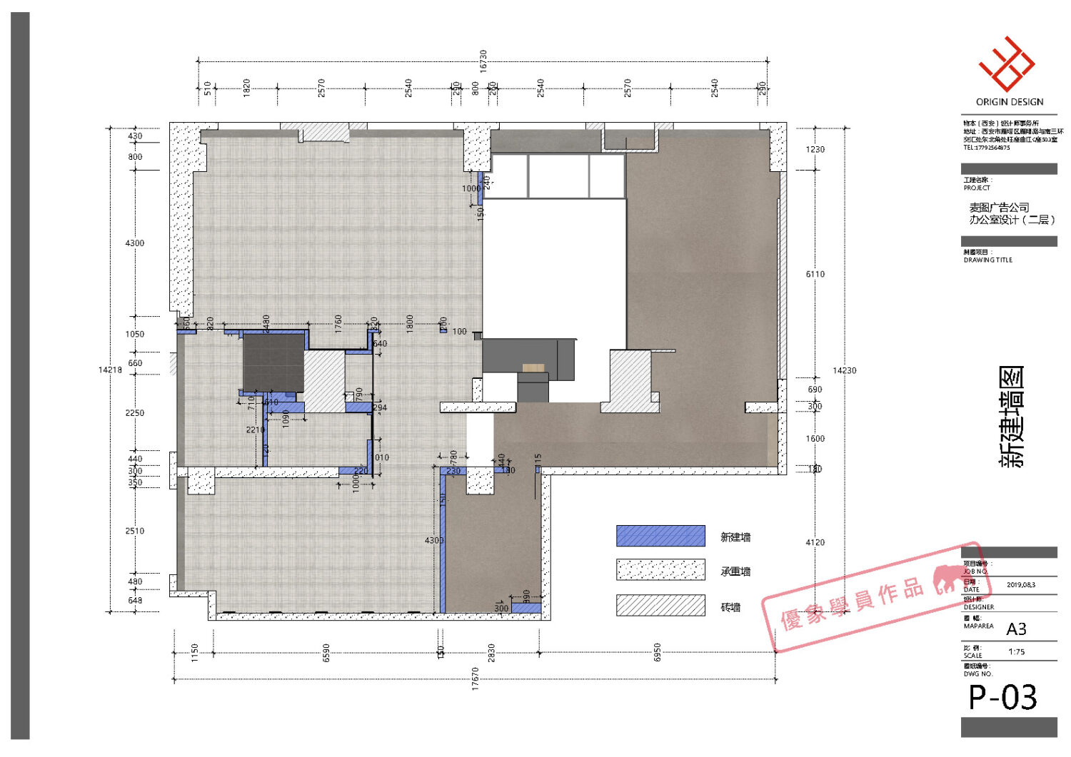
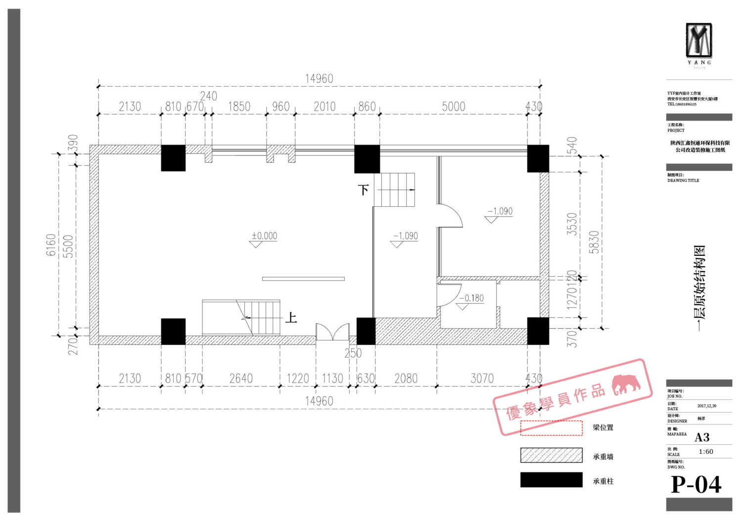
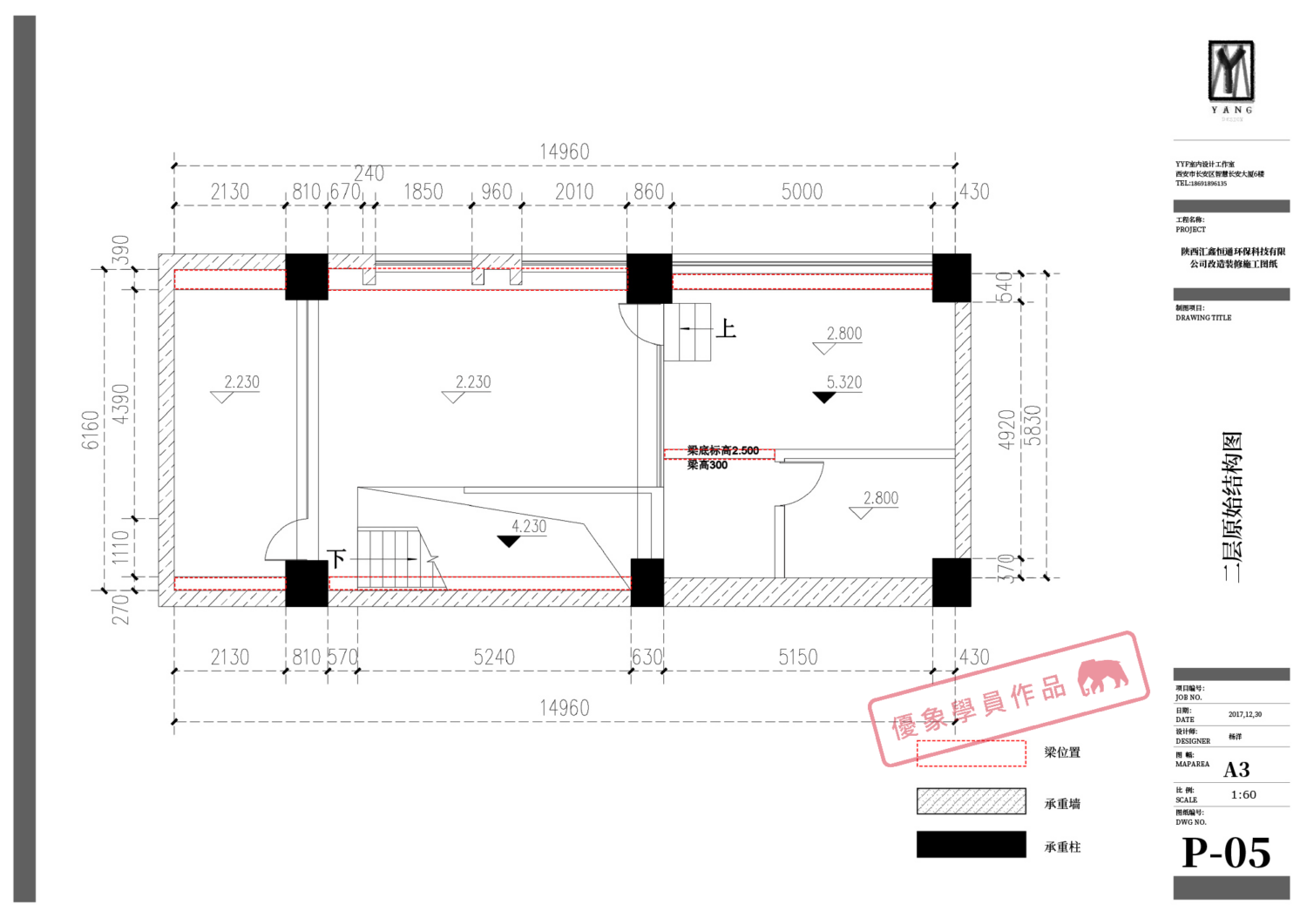
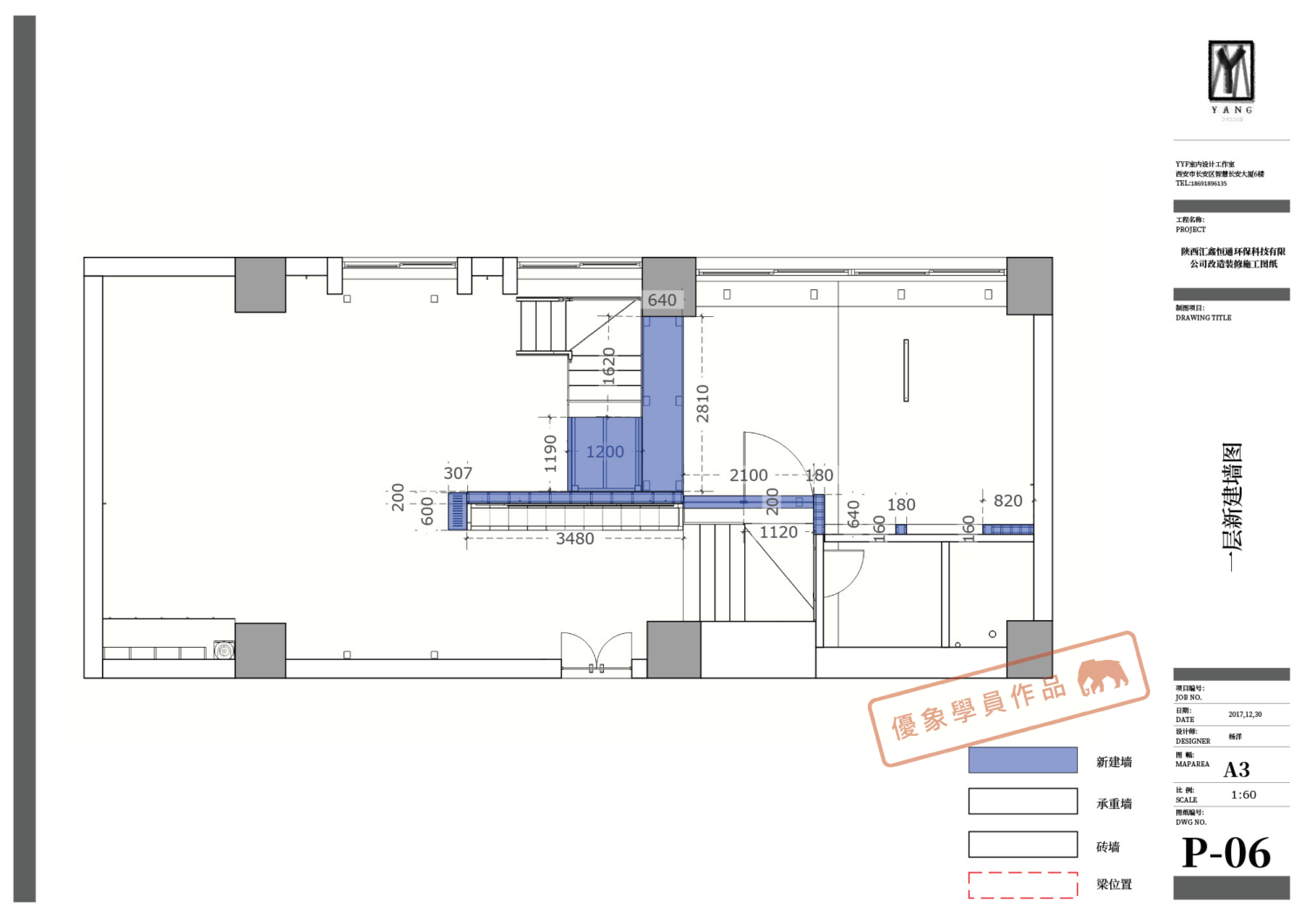
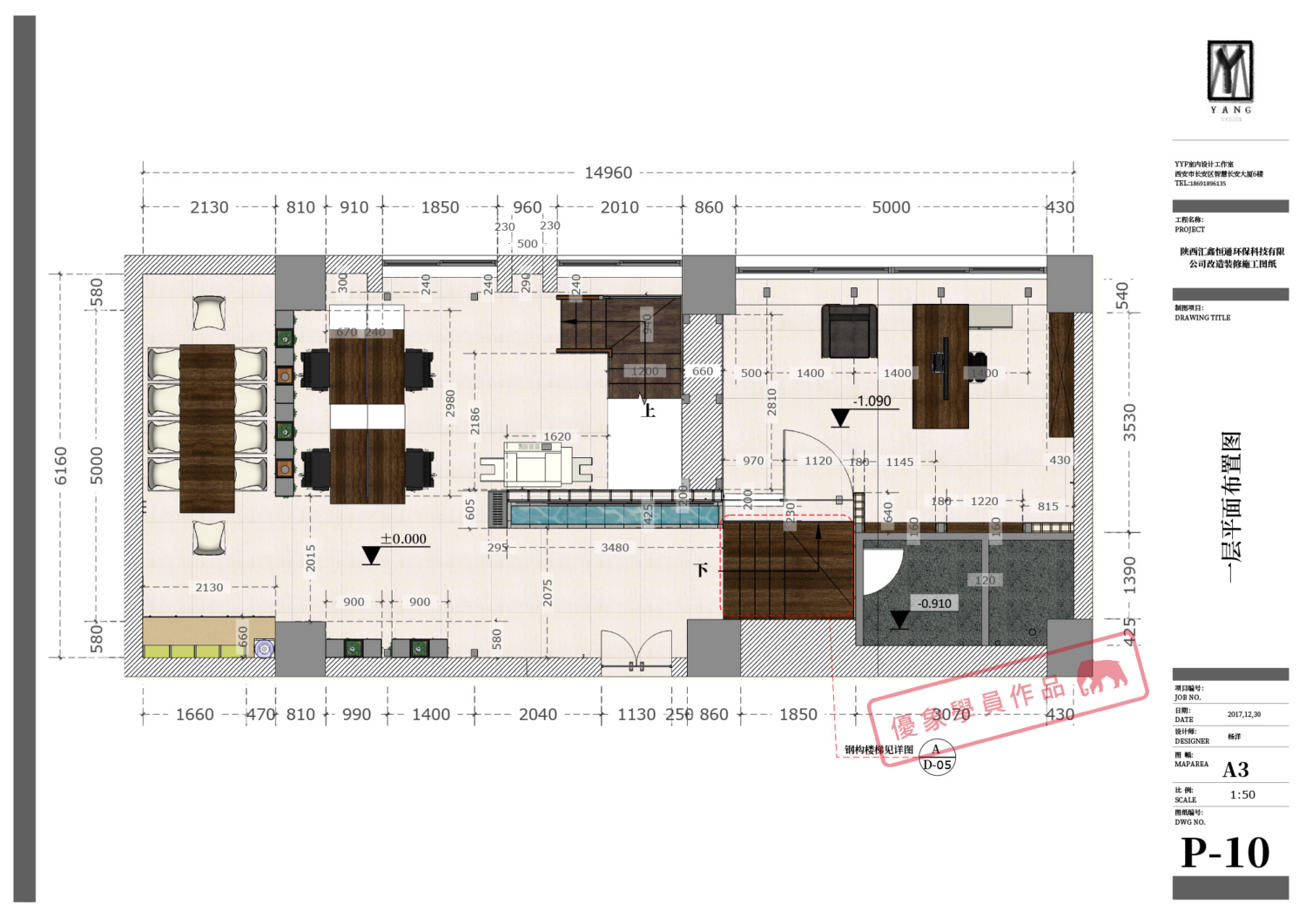
项目二:广告公司办公室
这个项目全套使用LayOut进行图纸表达,套用了LayOut课程所提供的模版,进行了快速的出图。
项目包含了一、二两层,面积不大,但涉及到的图纸数量也很多。使用传统的CAD流畅,工作量和绘图时间是很多设计机构面对的烦恼问题。
但是通过SketchUp所制作好的模型,就可以快速的进行所有平面和立面的输出,并且模型和图纸是无缝联动修改的。
尽管修改了一些结构模型,例如柱子的位置,相关联的里面都是一起被联动修改的,这样后期修改图纸的出错机会就大大减少了。
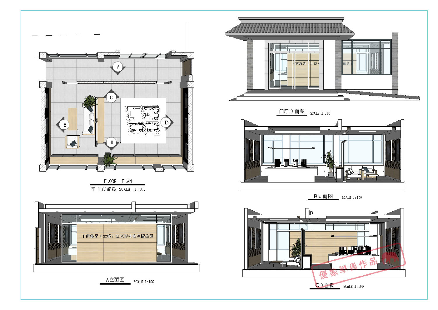
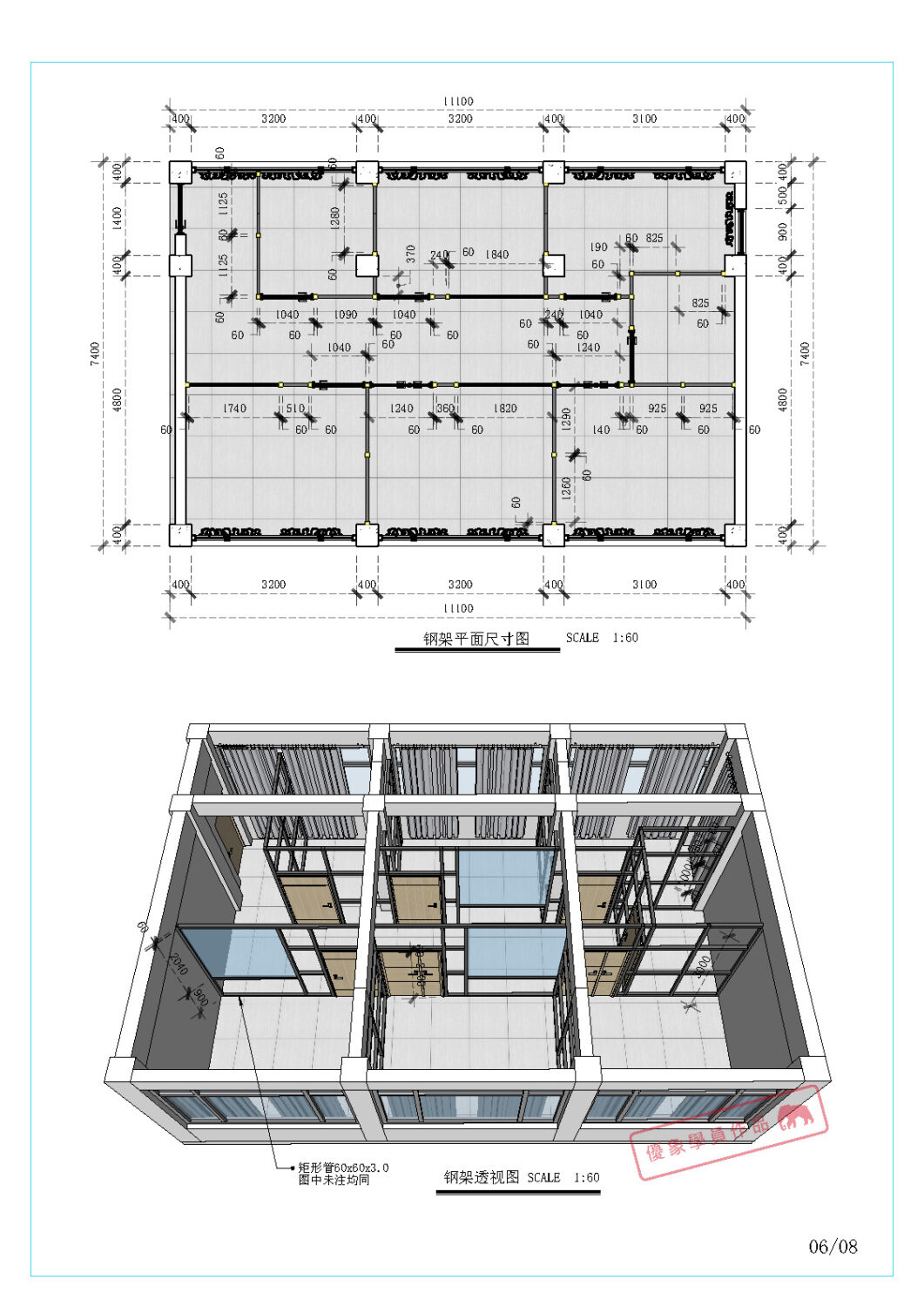
项目三:会议室设计
项目四:外贸公司办公室
施工图中的立面有时候是倾斜的,例如这个模型中的间墙。对于LayOut出图是有有效的解决方案来表现的。
图纸中使用了共享标签材料的功能,这样可以把一个标签材料使用到多个图纸中,一旦名称被修改,所有图纸都是被同步修改的。
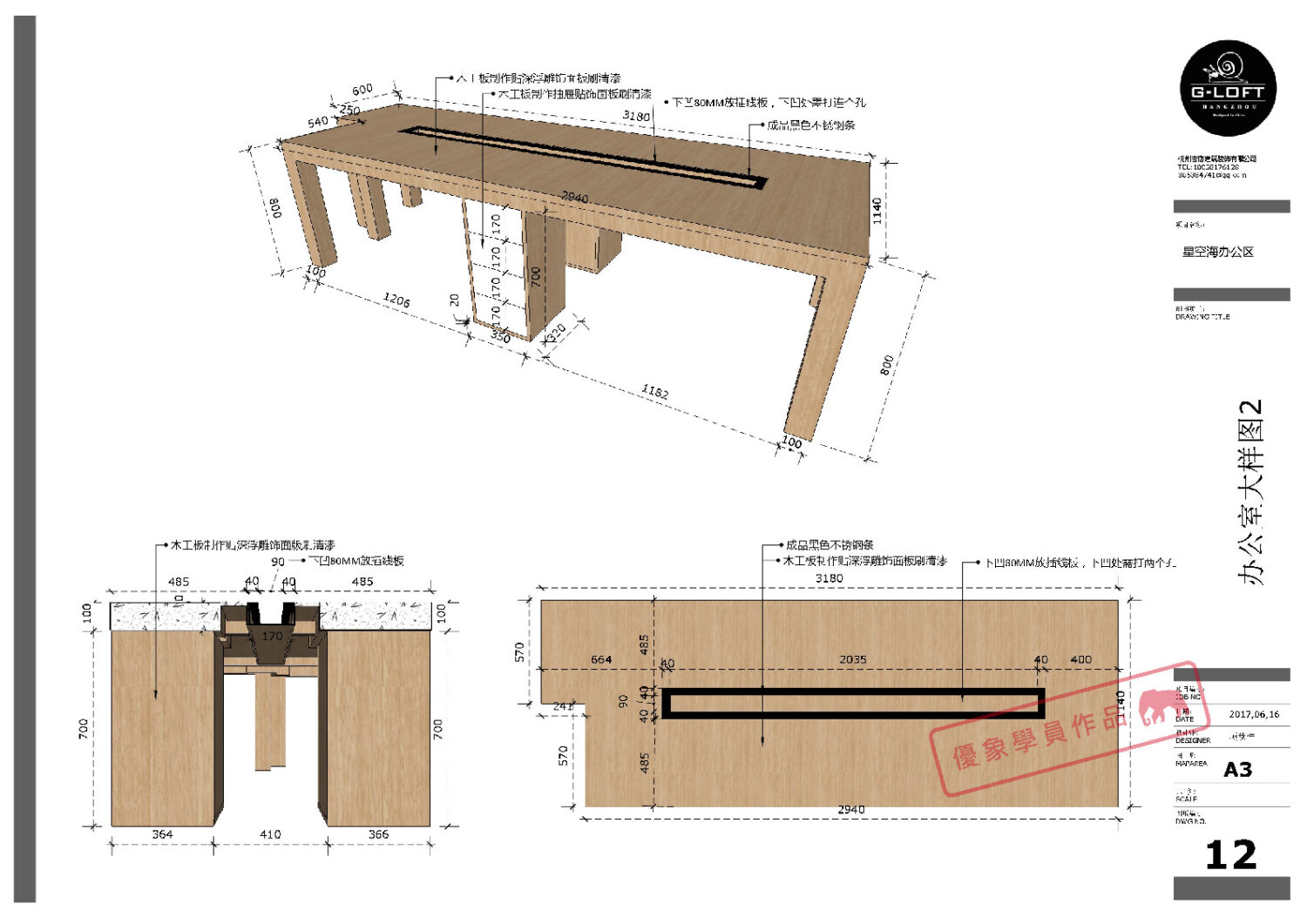
并且设计师对部分造型需要单独说明的,进行了图纸的输出表现,更加清晰说明单独构件的制作要求和尺寸。
项目五:办公室装修设计
模型做好之后,可以马上出图,设计师不需要依赖绘图员也可以单独进行图纸输出。
设计师和绘图员直接的沟通成本是巨大的,特别是外包出图的图纸,沟通过程也很痛苦。
以这个案例为例,设计师自己完成了模型的设计,花费1个小时,就可以输出接下来的所有图纸了,足够应付甲方的需要。
项目六:高爾夫深化设计方案
这个项目在出图前,学员使用了Enscape完成了效果图的方案制作,确定方案之后,模型的利用价值就很高了,直接拿来使用输出LayOut图纸,一个人独立完成从设计建模、效果图、施工图全过程。
其中LayOut的图纸绘制比较简陋,对于课程要求来信息量和美观程度是不足够的。但是为什么我学员还是这样做?
学员觉得,这样的深度已经足够应付自己的甲方,就不花费更多的精力做更好了,腾出更多的时间做其他项目,合理使用工具,无法和别人对比,符合自己的业务需求为首要任务。
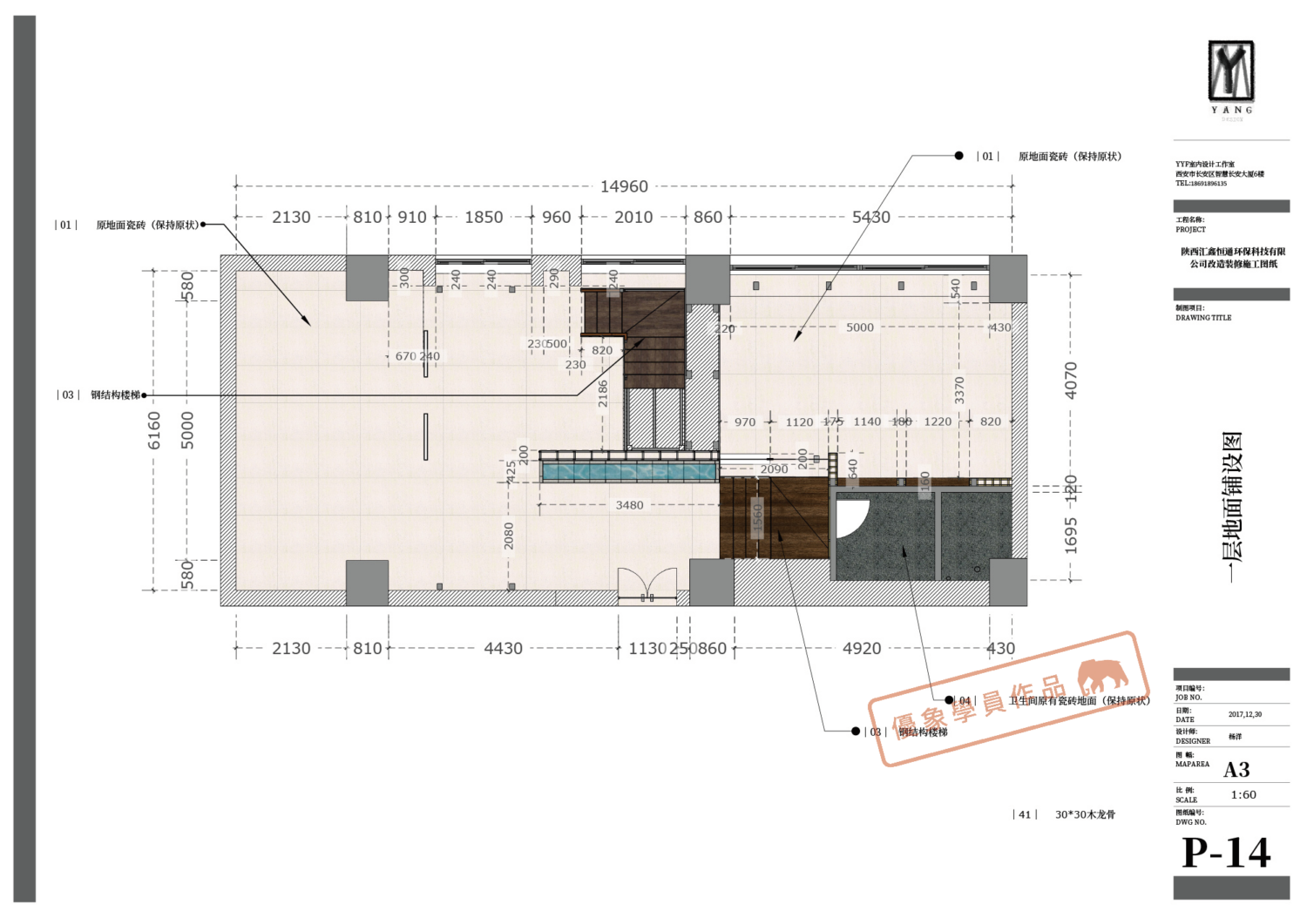
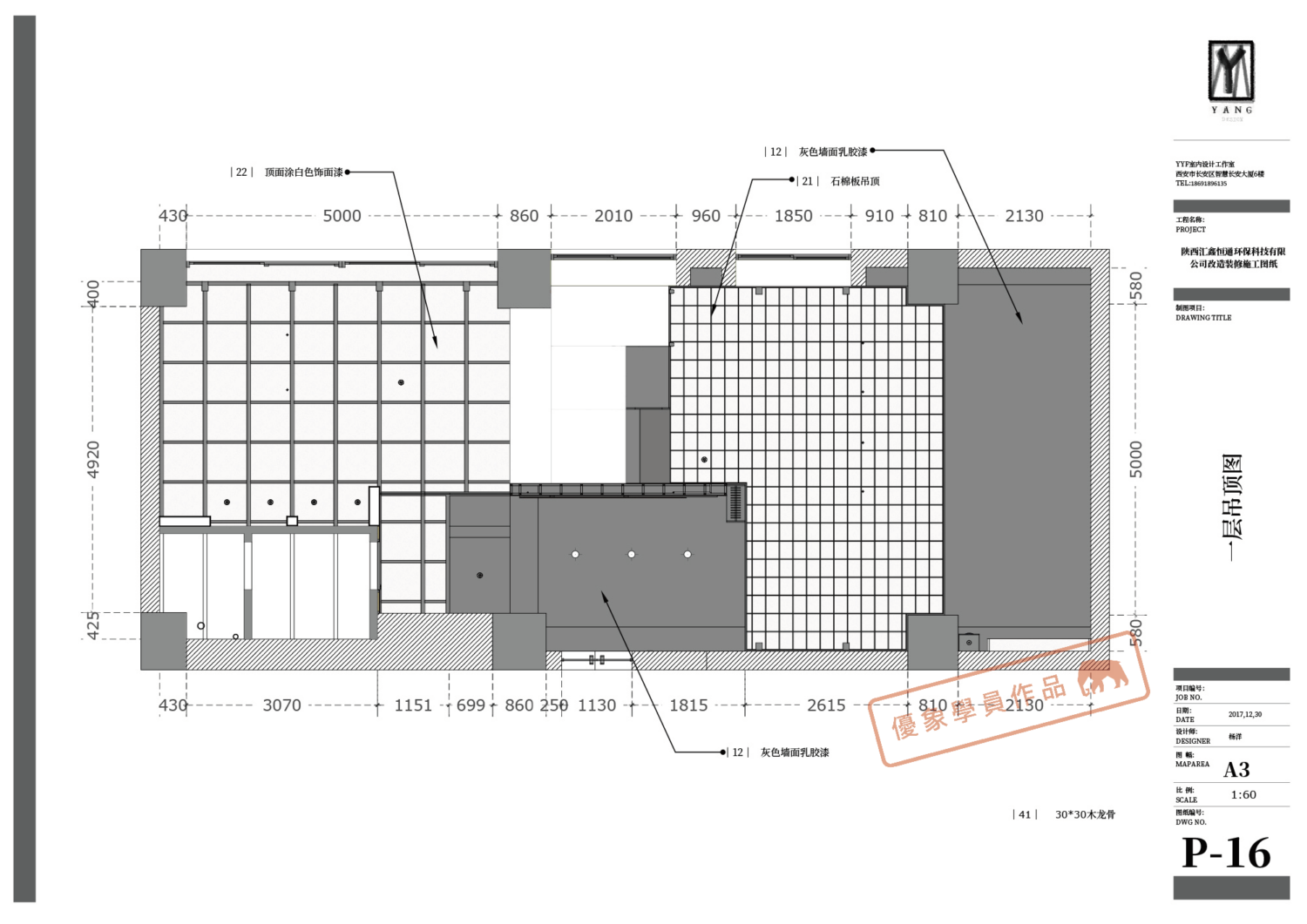
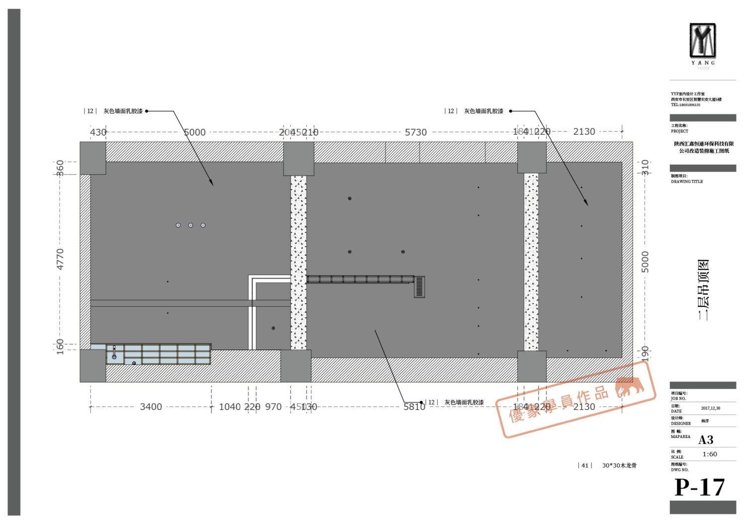
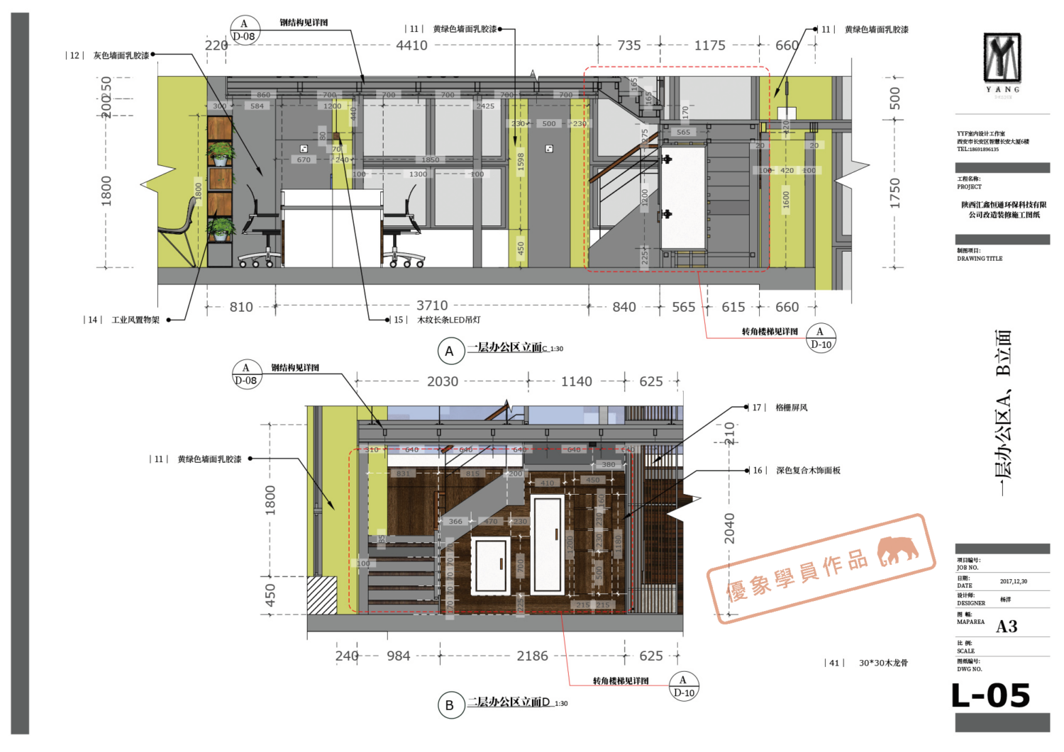
项目七:办公室改造装修设计
学员尝试使用一个面积不大的项目来尝试整套的LayOut出图,获得的效果十分满意。
整套图纸的信息量很丰富,特别对后面几个图纸的细节表达,楼梯的结构图纸、节点的表达等,以上图纸使用CAD达到同样的效果将会花费更多的工作量。
在CAD中,当然没有必然做多余的工作来这样表达,但是在LayOut中是理想当然的简单,因为模型已经做了出来!像拿取模型中的一小块去标注尺寸一样的简单。
项目八:单身公寓的员工宿舍设计
设计师要求快速的进行图纸输出,全程使用了SketchUp进行方案设计并进行设计沟通。
为了降低出图成本和沟通成本,使用了LayOut进行了图纸绘制。
起初我们对模型的建模规范、深度都做了一对一的指导,并多次远程会议告诉如何进行解决,最后帮助学员完成了这套图纸,算是学员第一个的实践案例。
LayOut是什么?
在安装完草图大师SketchUp之后,桌面上会出现三个app,分别是SKetchUP、LayOut、StyleBuilder,其中LayOut可以获取SketchUp模型来制作施工指导图纸。
LayOut教程
优象推出了国内首套的LayOut施工图系统性案例培训教程,能够把做好的SketchUp模型直接输出LayOut图纸。快速了解LayOut,学习优象的LayOut公开课(链接)


















































































































































































































































