详细介绍
【08】LayOut比赛作品
【08】LayOut学员作品
学员:
锋启
作品的项目信息:
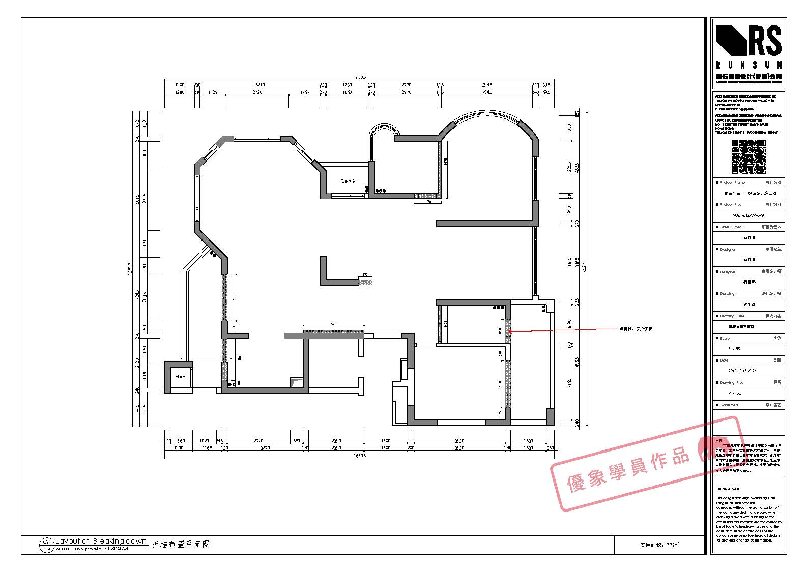
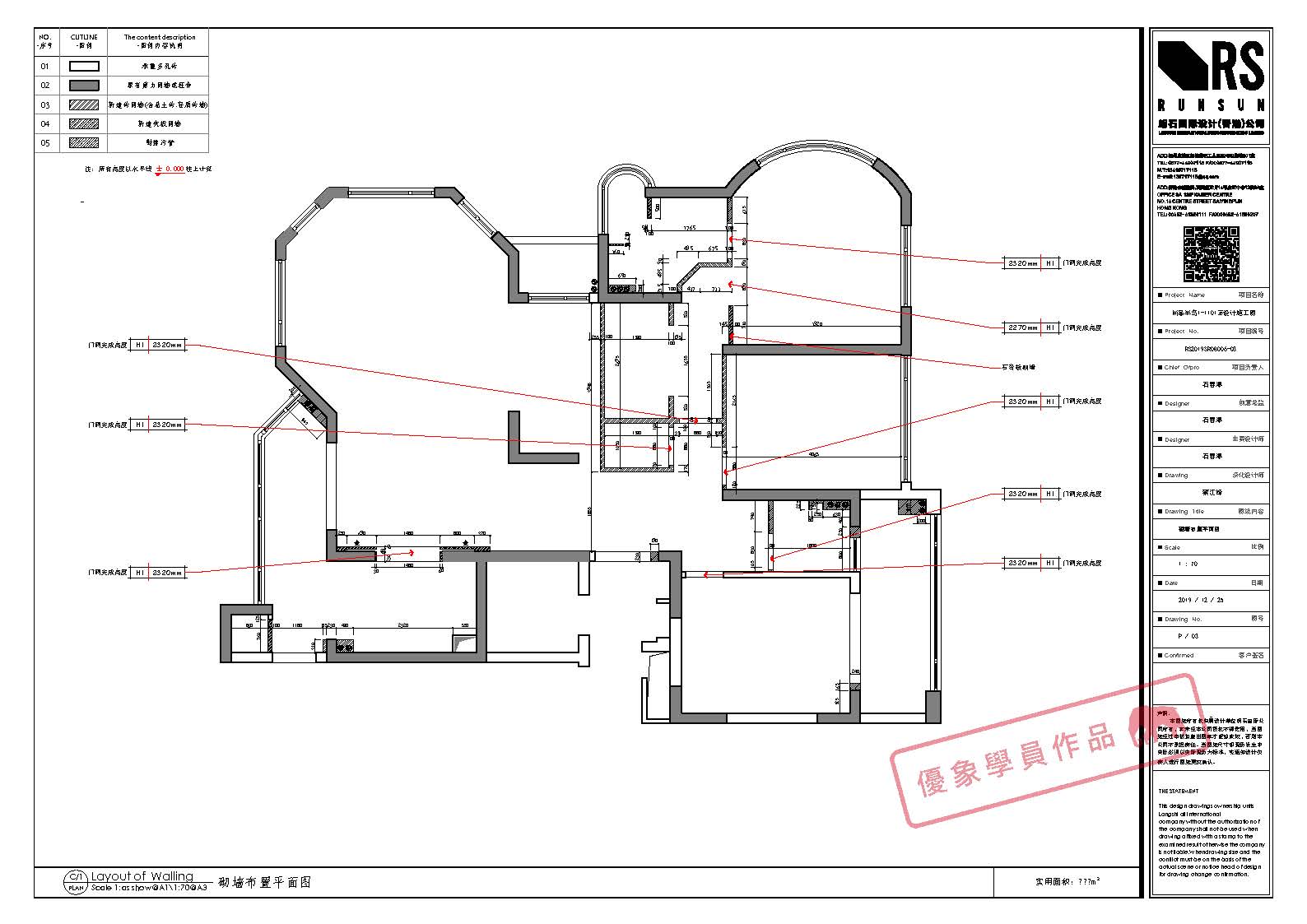
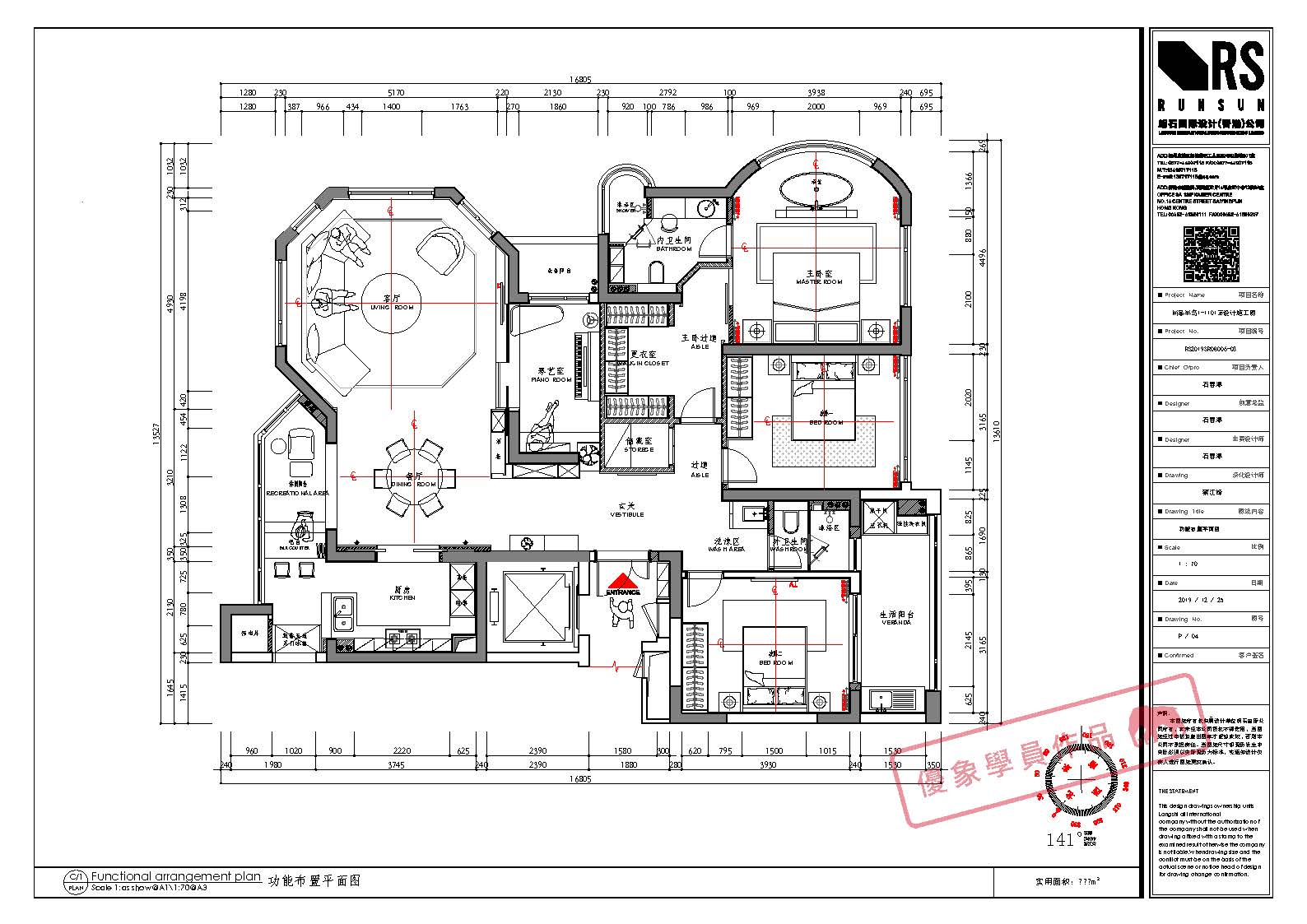
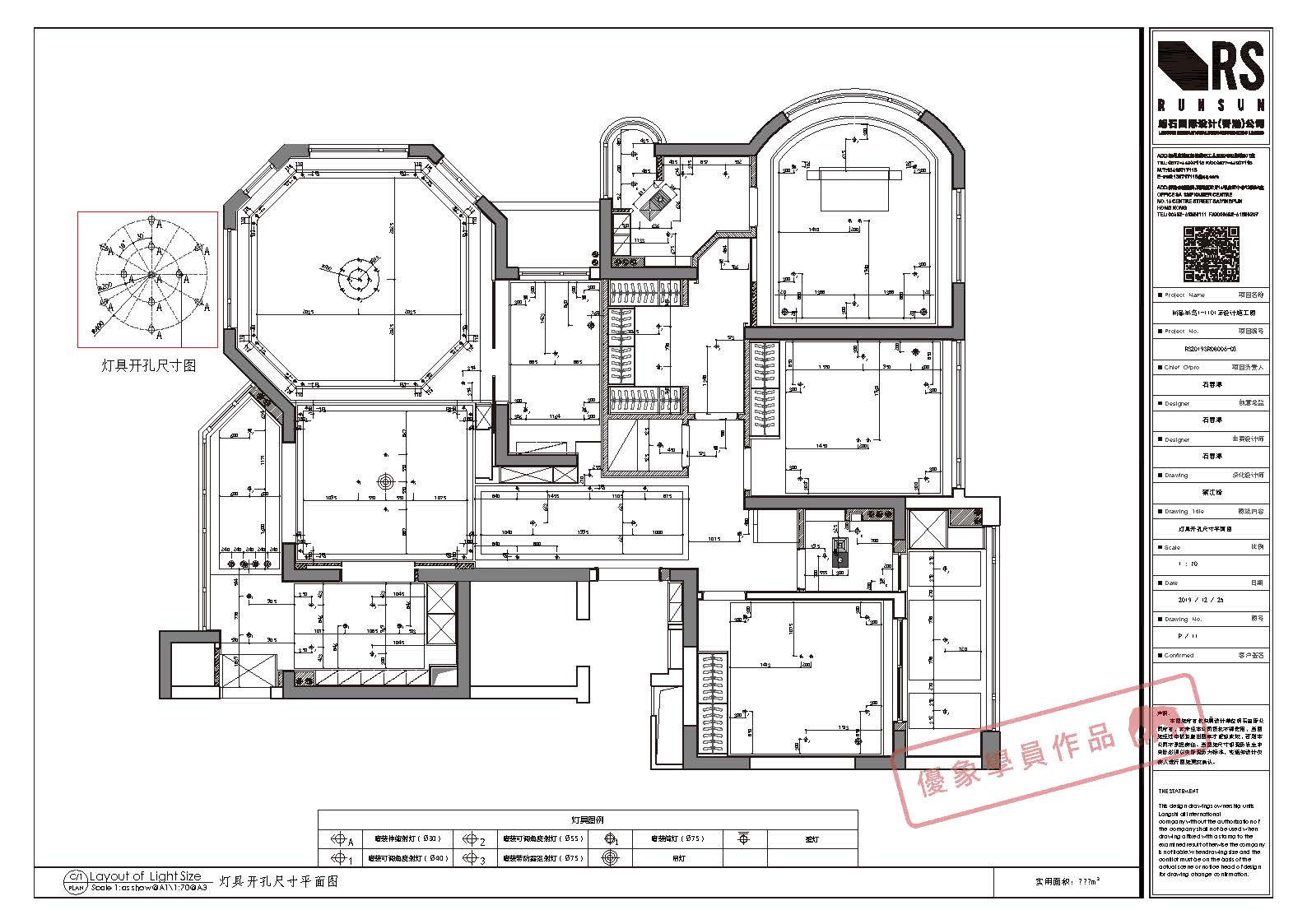
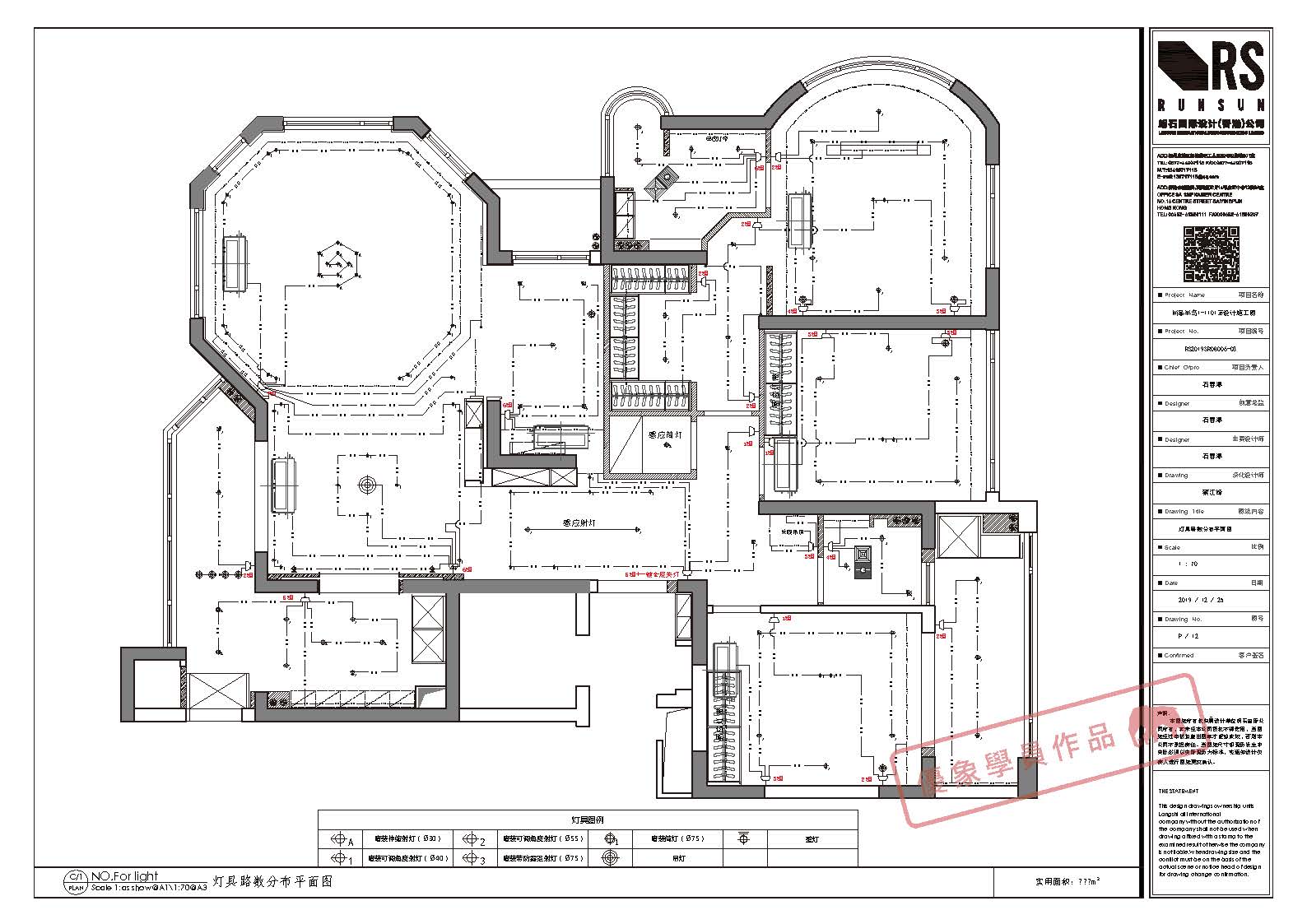
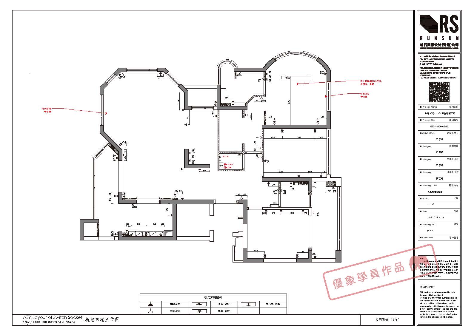
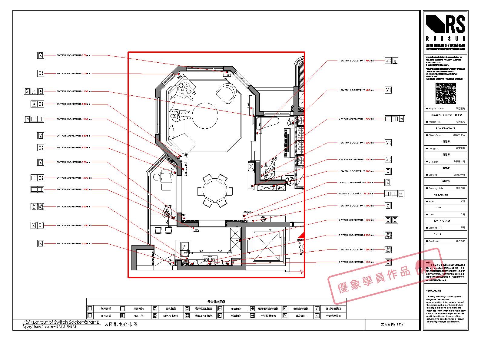
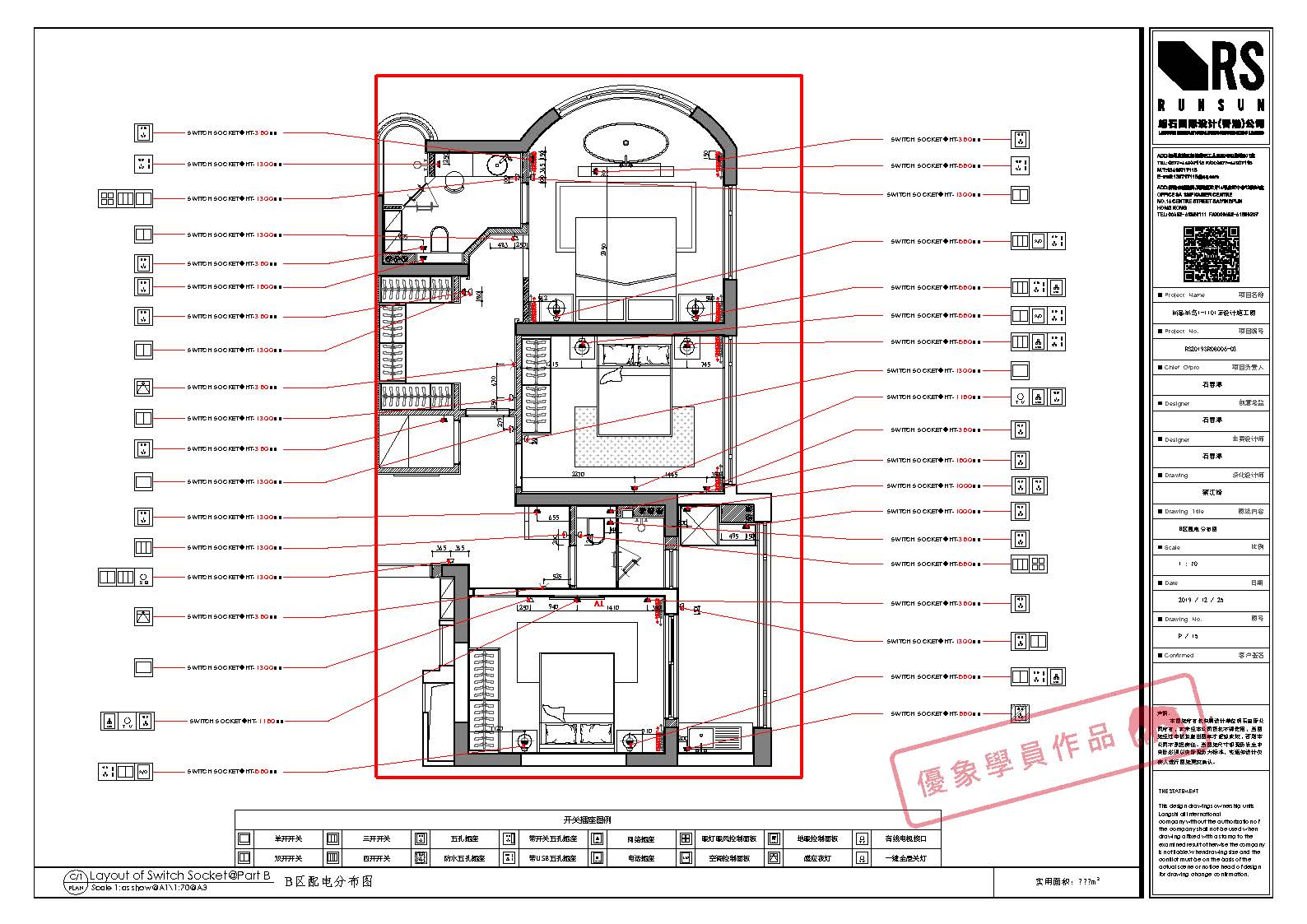
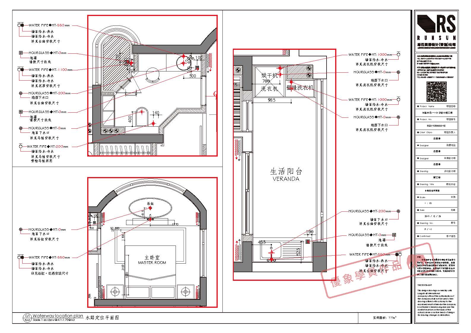
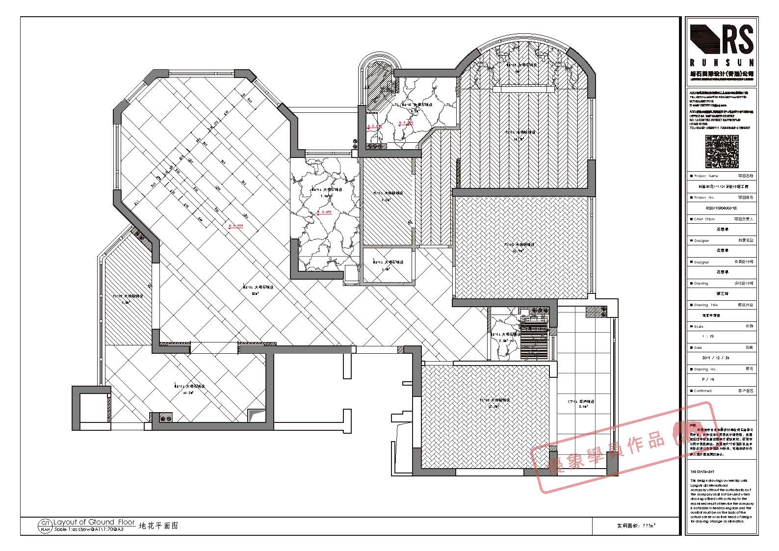
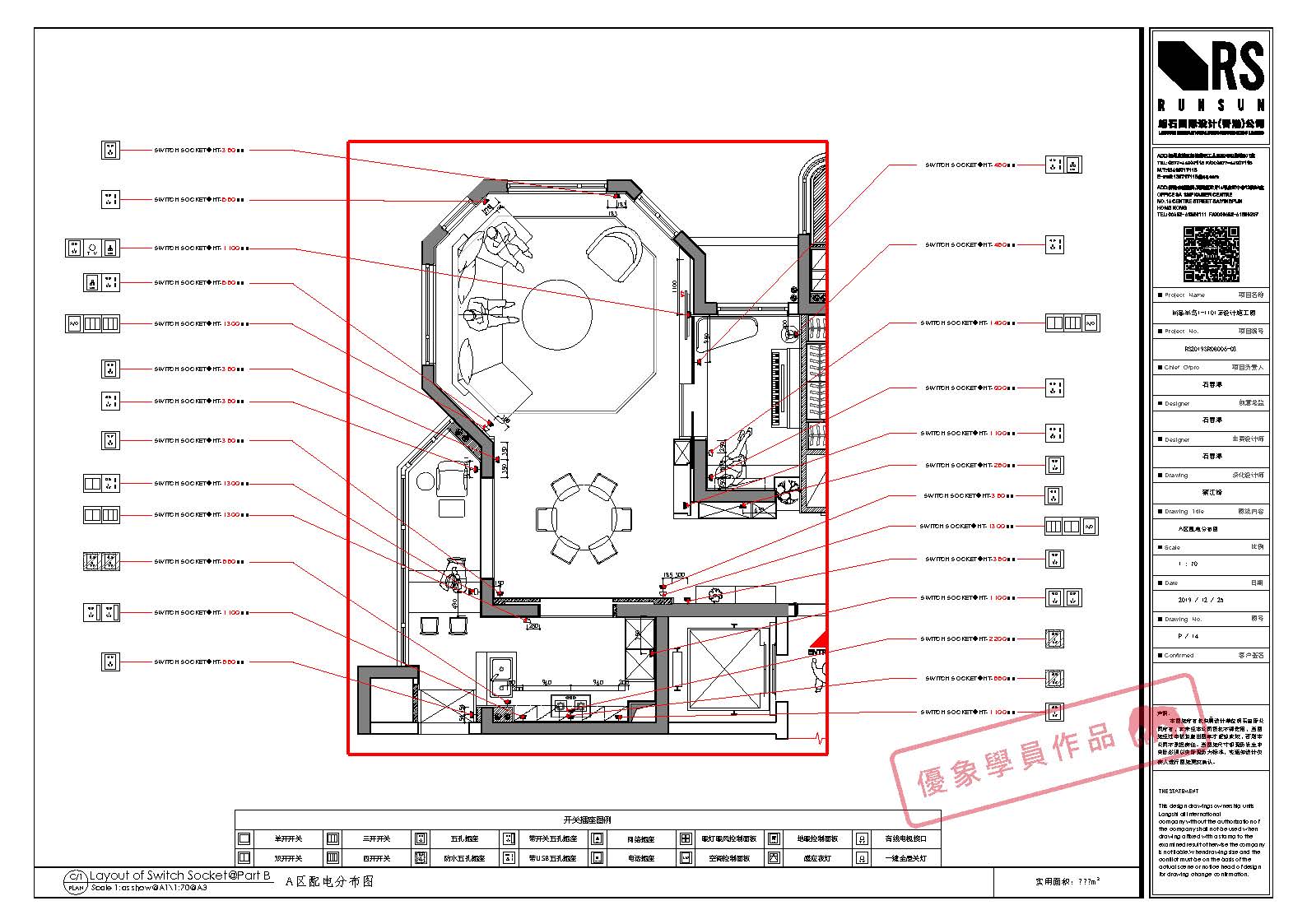
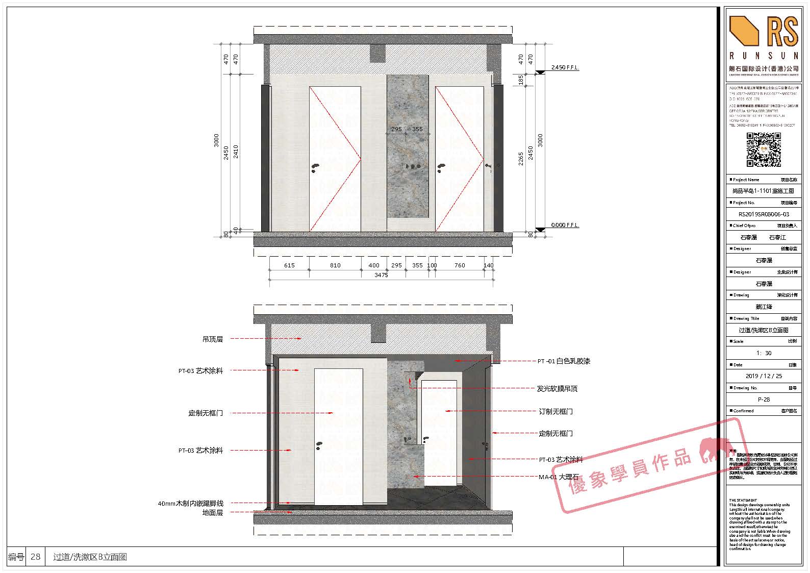
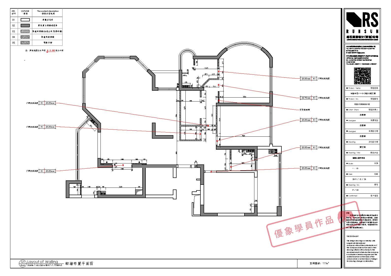
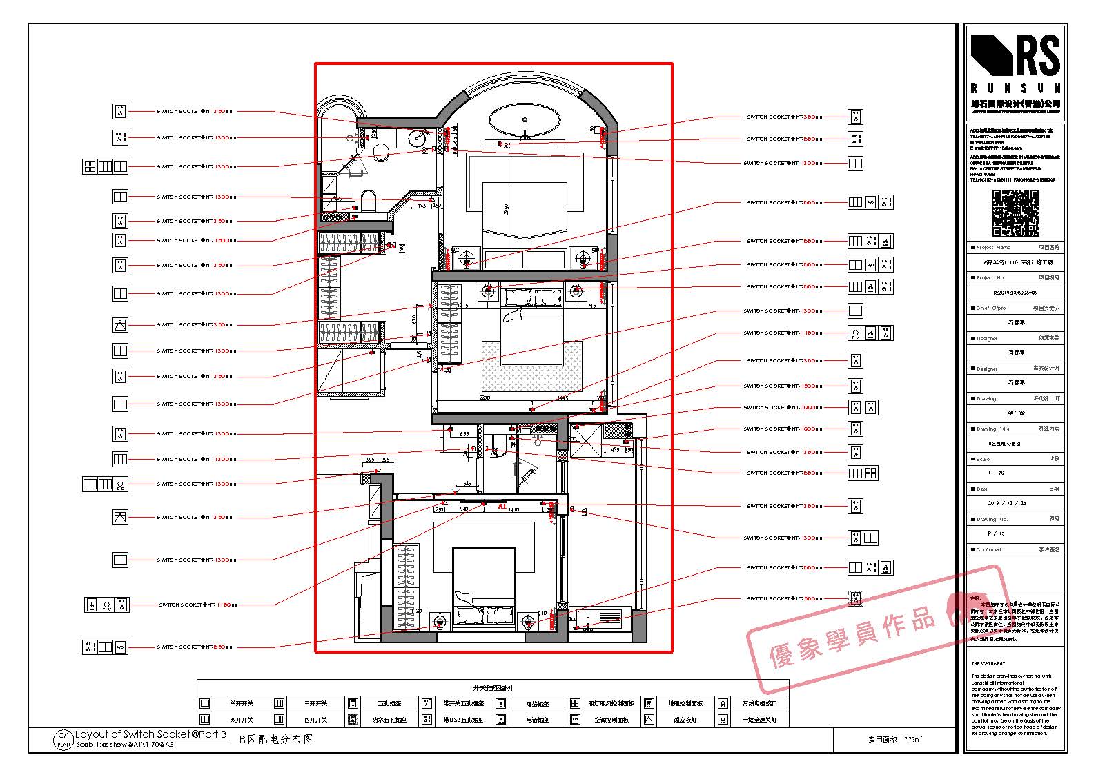
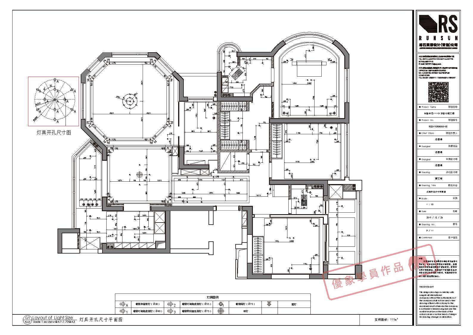
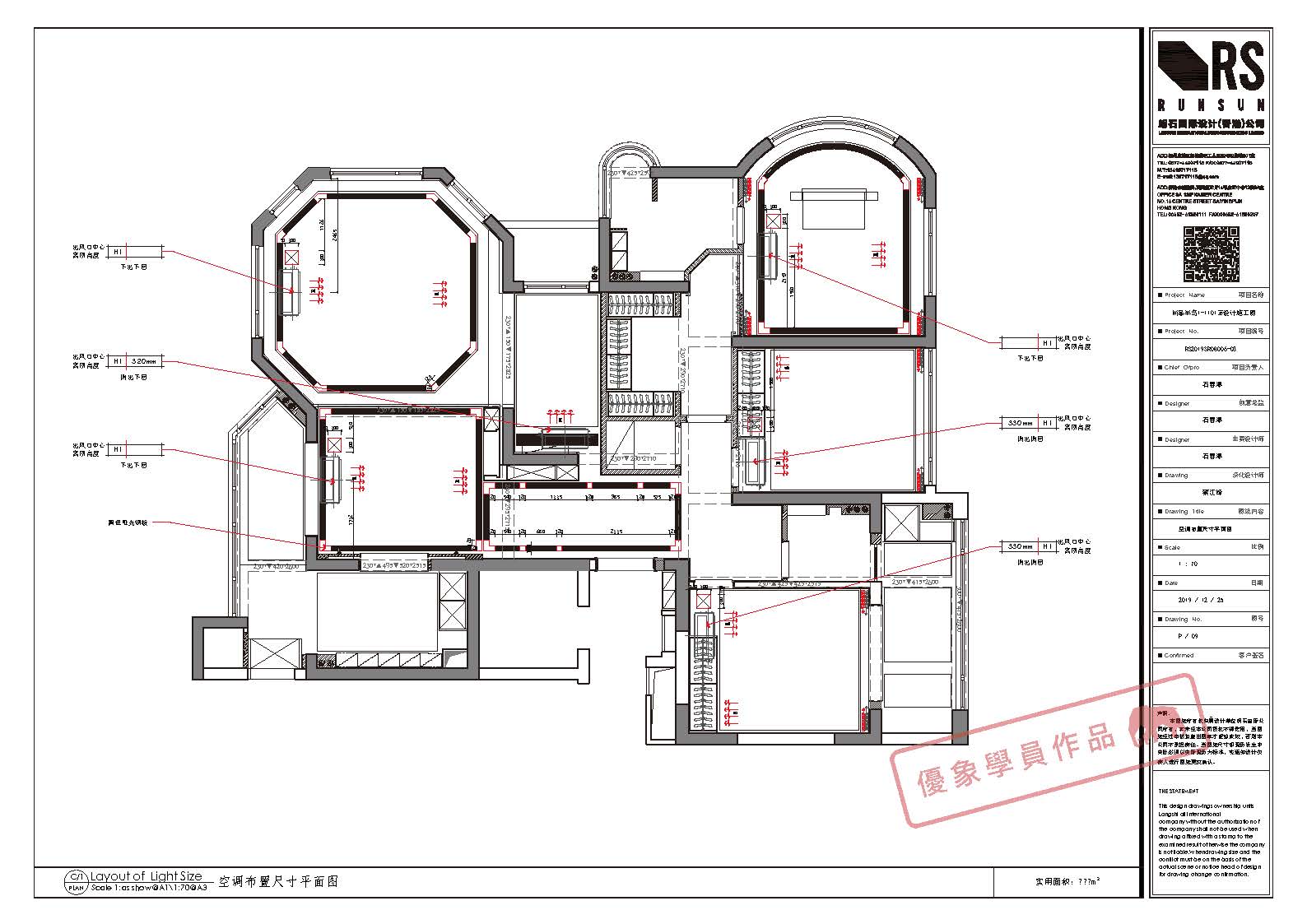
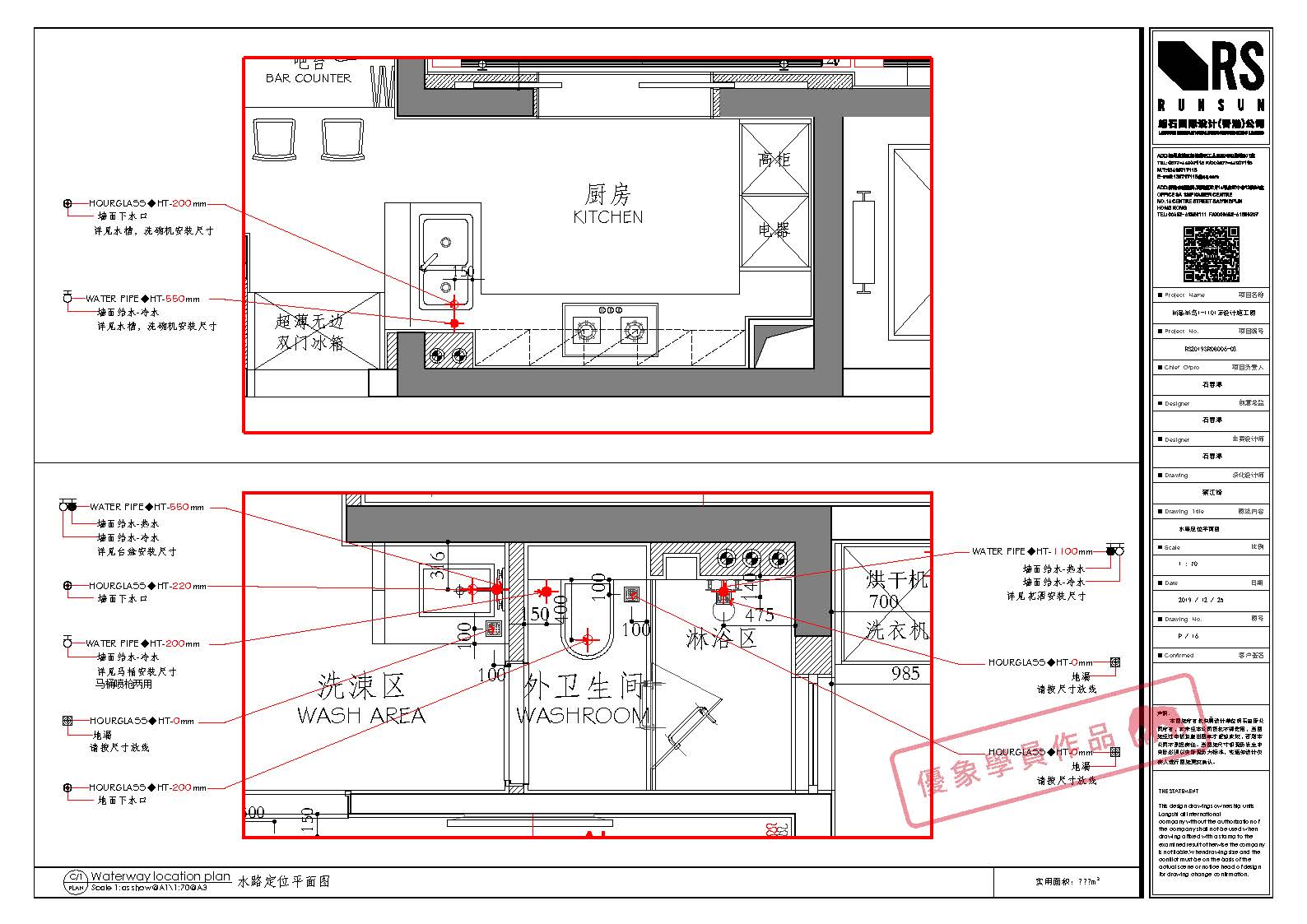
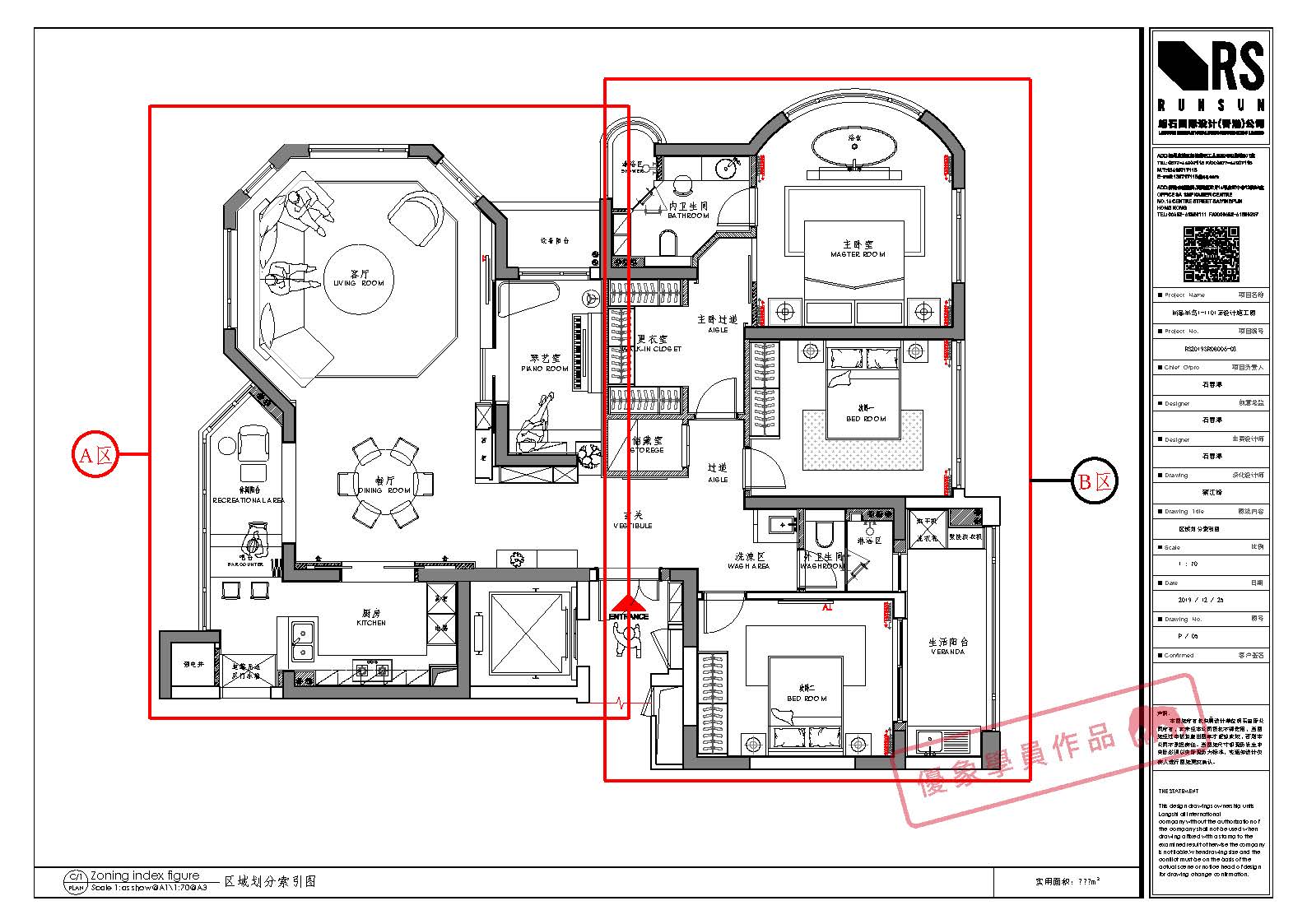
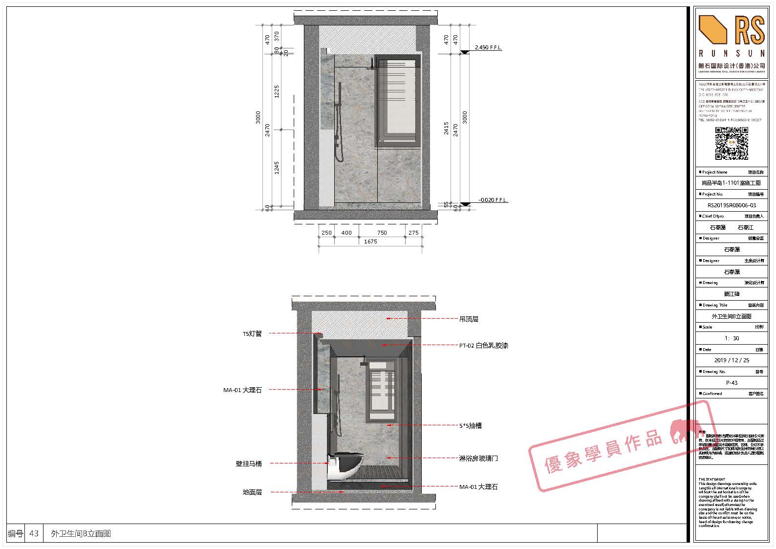
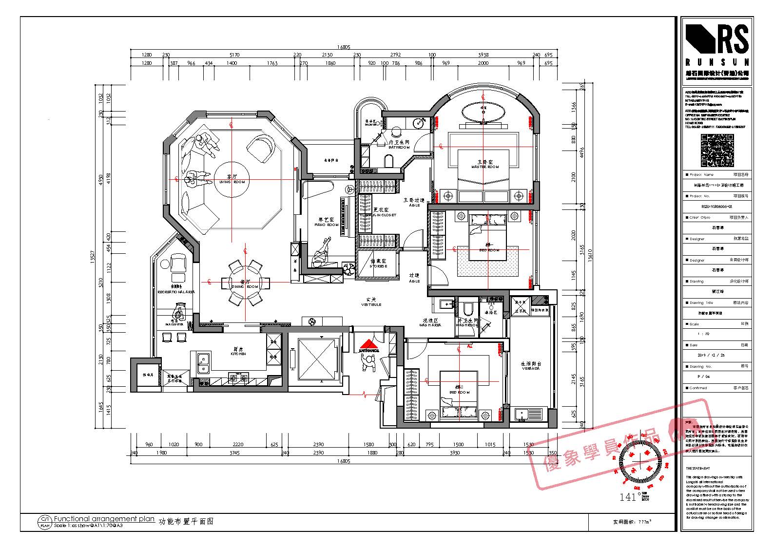
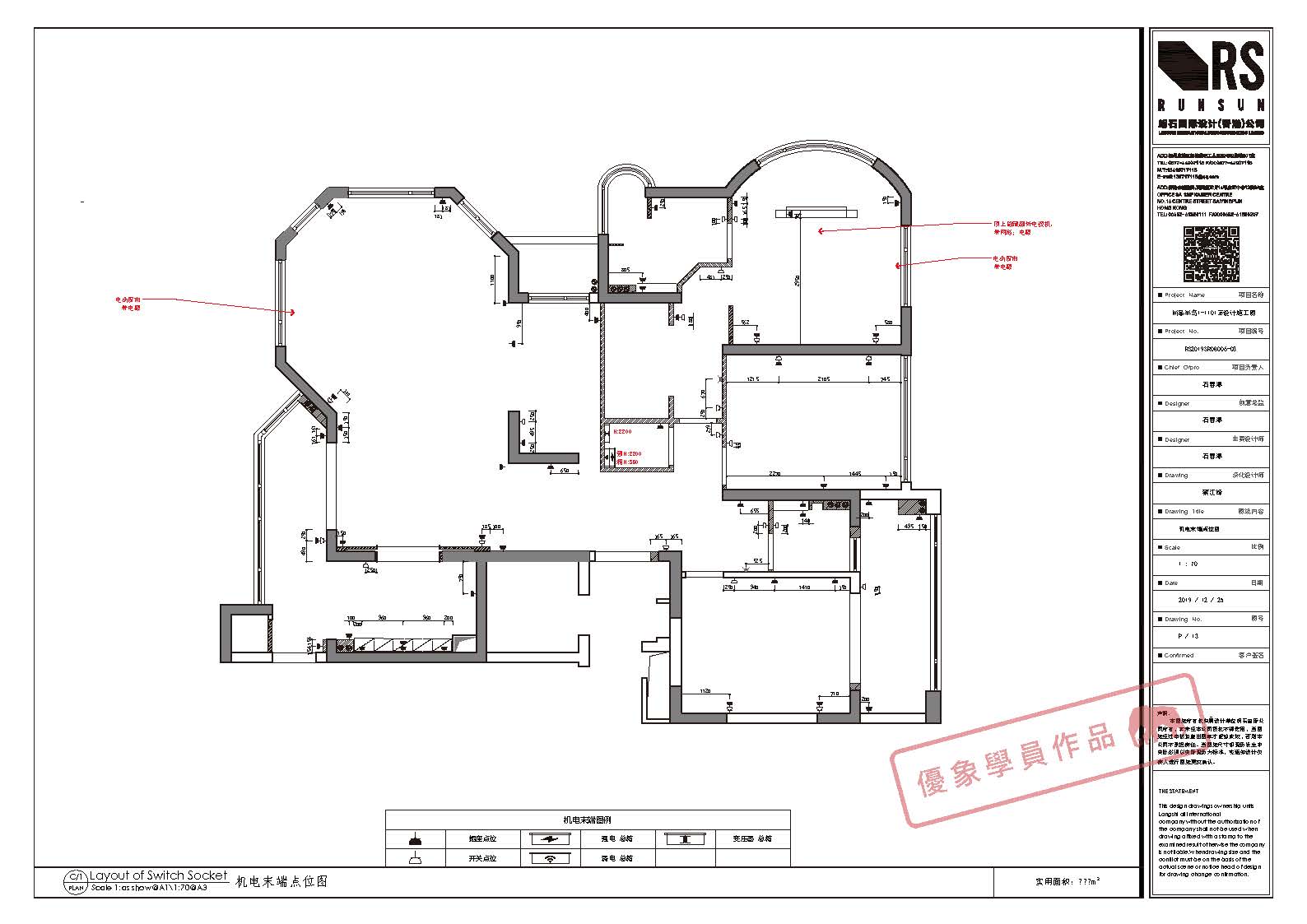
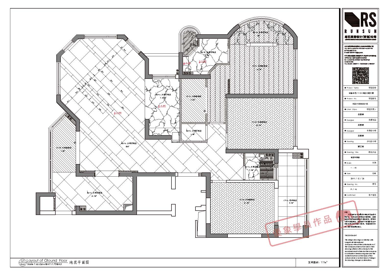
项目地点:温州市尚品半岛1-1101室
类型:家装平层
面积:160㎡
特点说明:
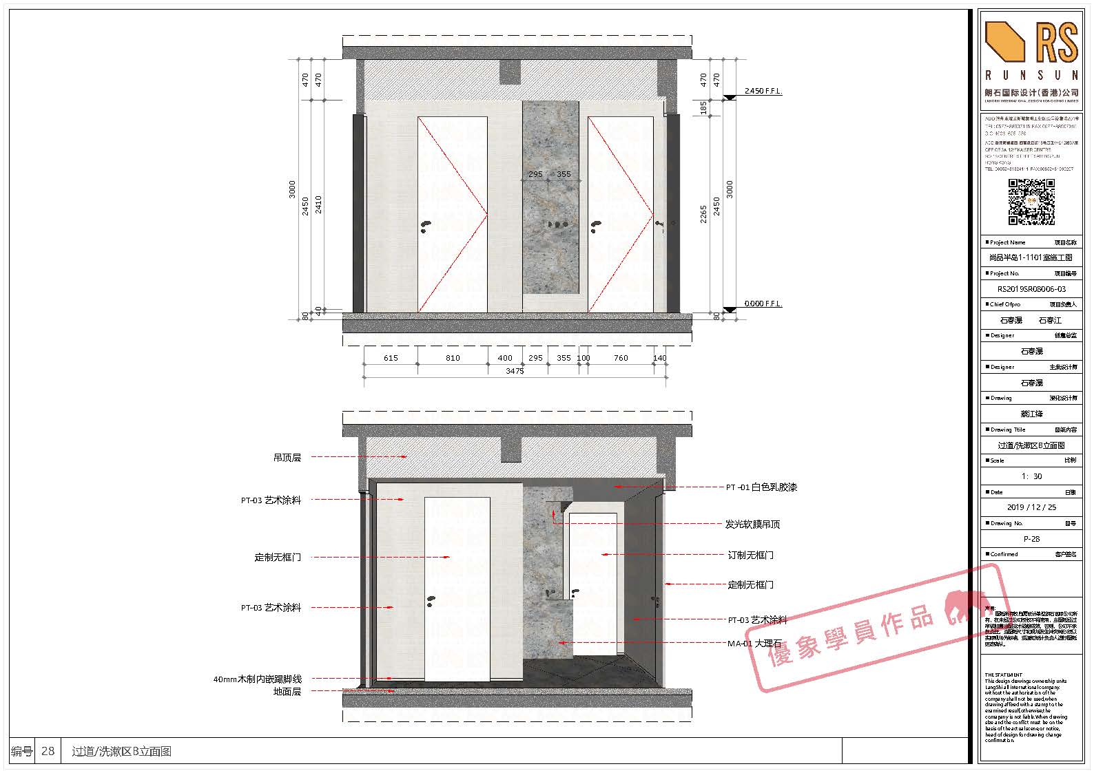
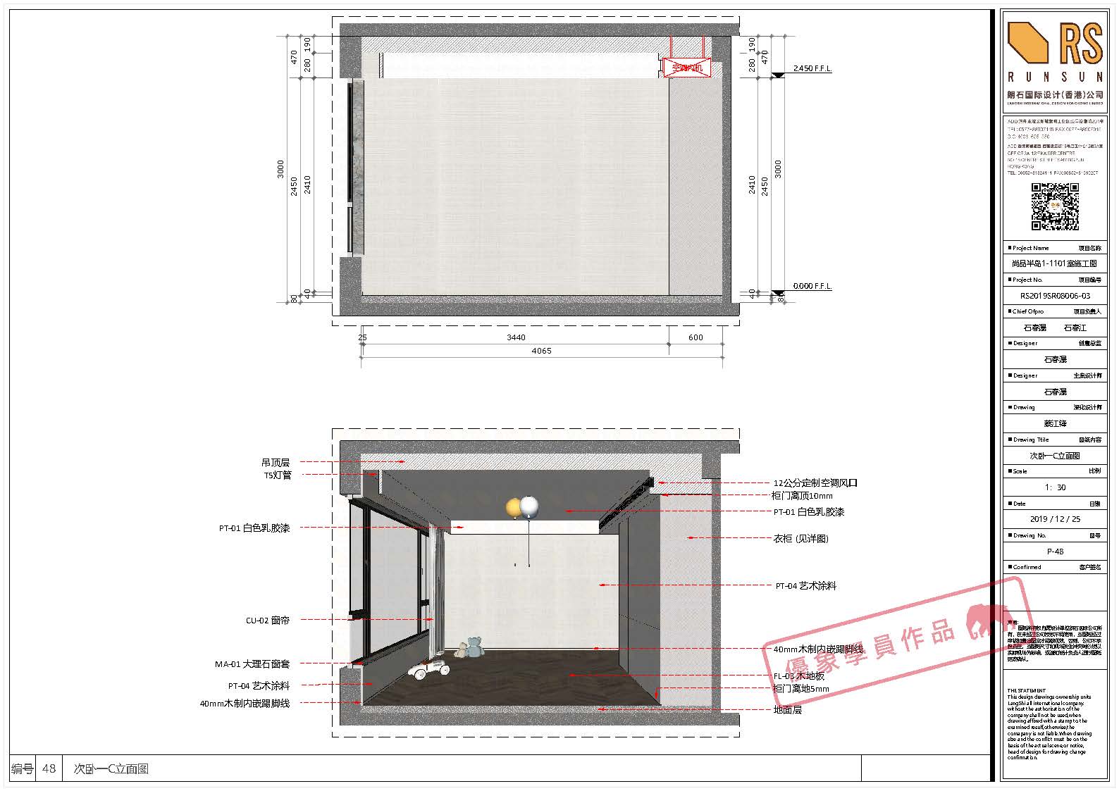
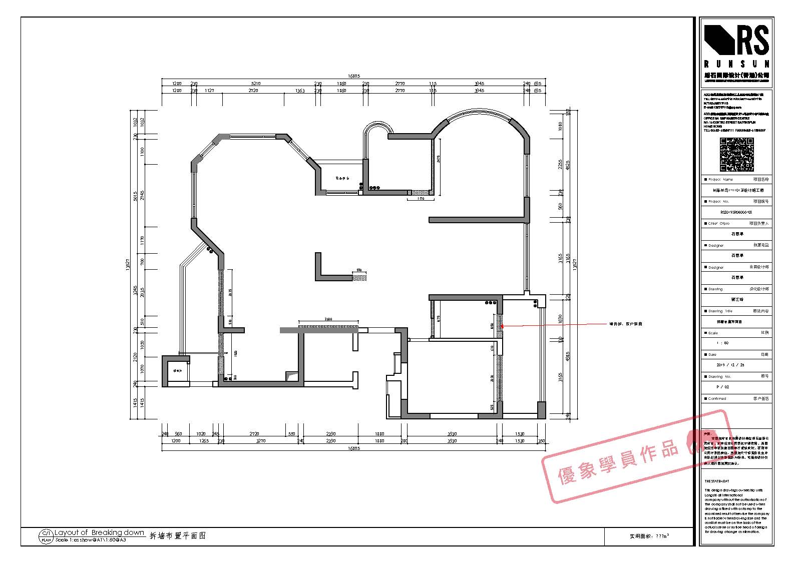
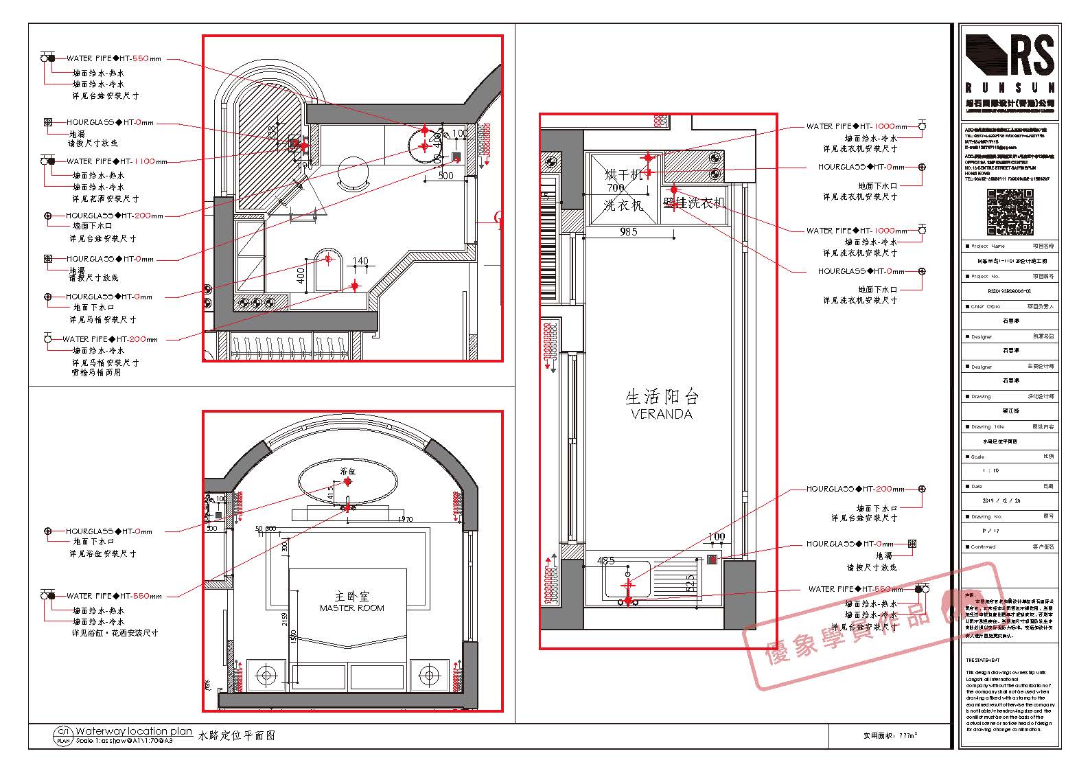
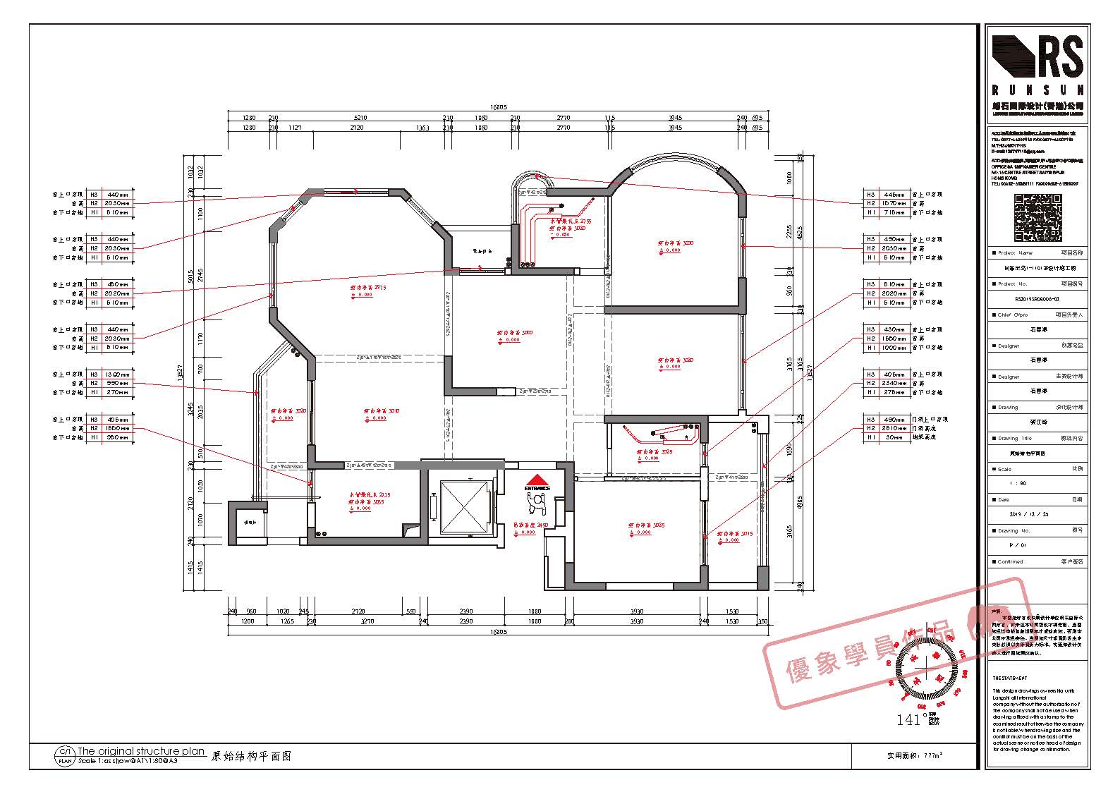
由于市场上大部分设计公司和配套商还是以CAD为主。所以我保留了平面CAD图纸,然后又想到需要跟其它设计公司拉开距离。就琢磨出了这样的立面施工图,平行投影以硬装尺寸为主,三维视图以工程完工效果为主。这样工人更容易理解这个项目,使项目的完整落地更接近了一步。
…
学员:
锋启
作品的项目信息:
项目地点:温州市尚品半岛1-1101室
类型:家装平层
面积:160㎡
特点说明:
由于市场上大部分设计公司和配套商还是以CAD为主。所以我保留了平面CAD图纸,然后又想到需要跟其它设计公司拉开距离。就琢磨出了这样的立面施工图,平行投影以硬装尺寸为主,三维视图以工程完工效果为主。这样工人更容易理解这个项目,使项目的完整落地更接近了一步。
…





















































































