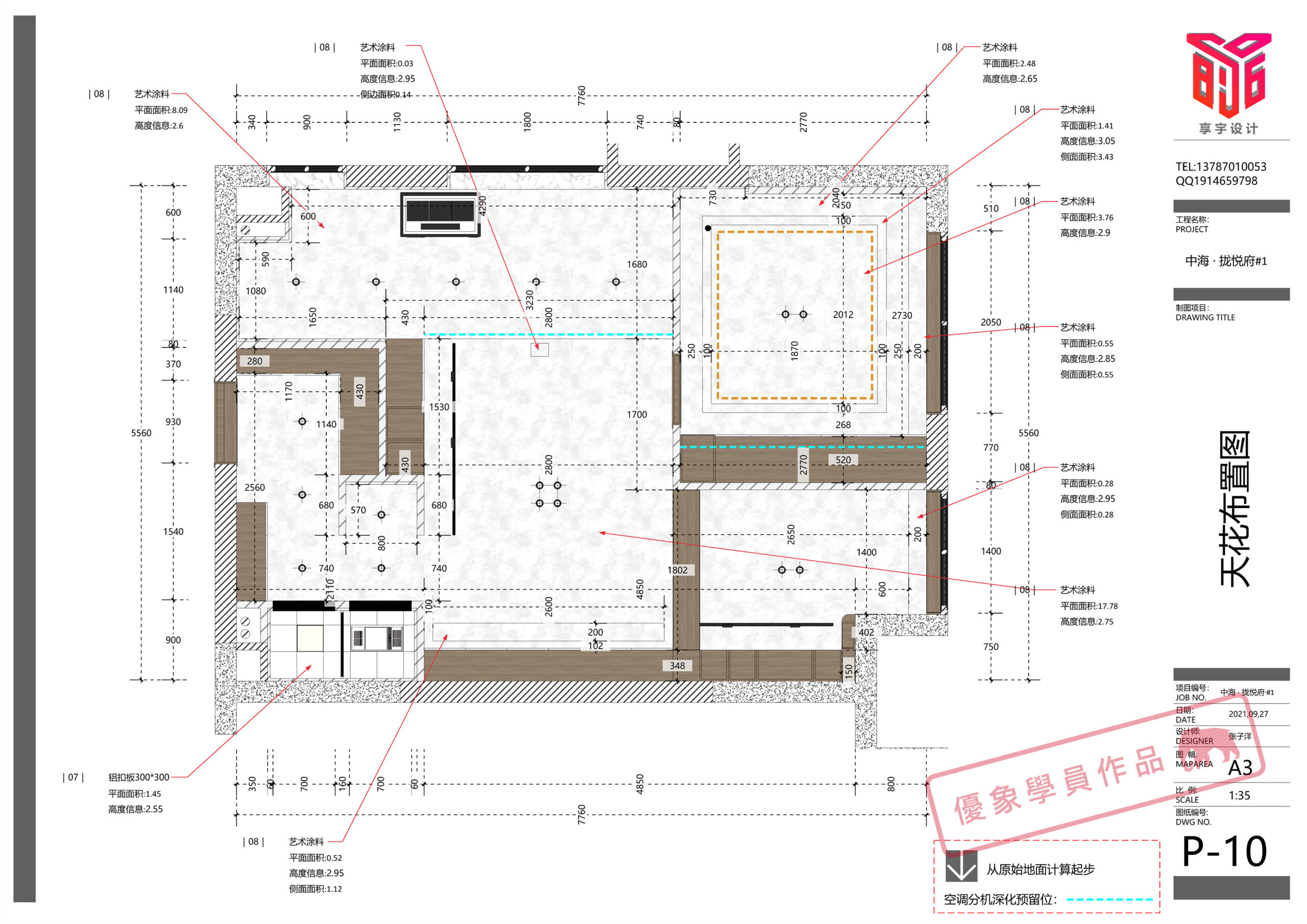
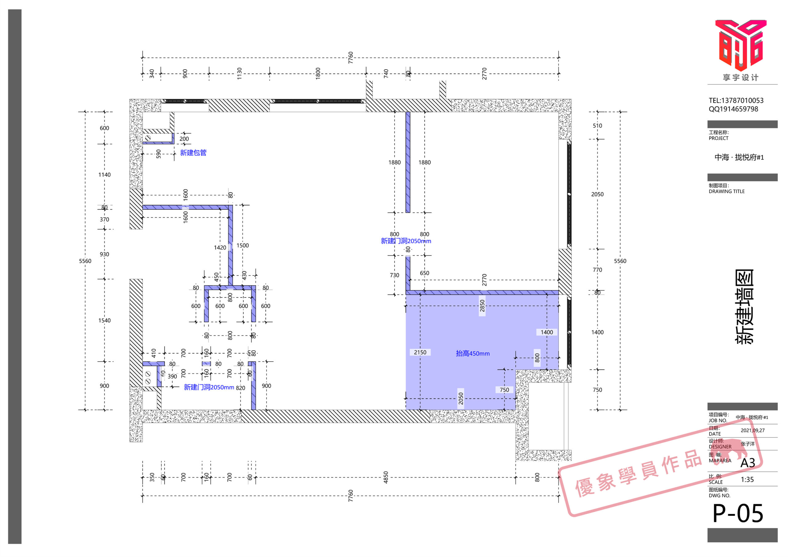
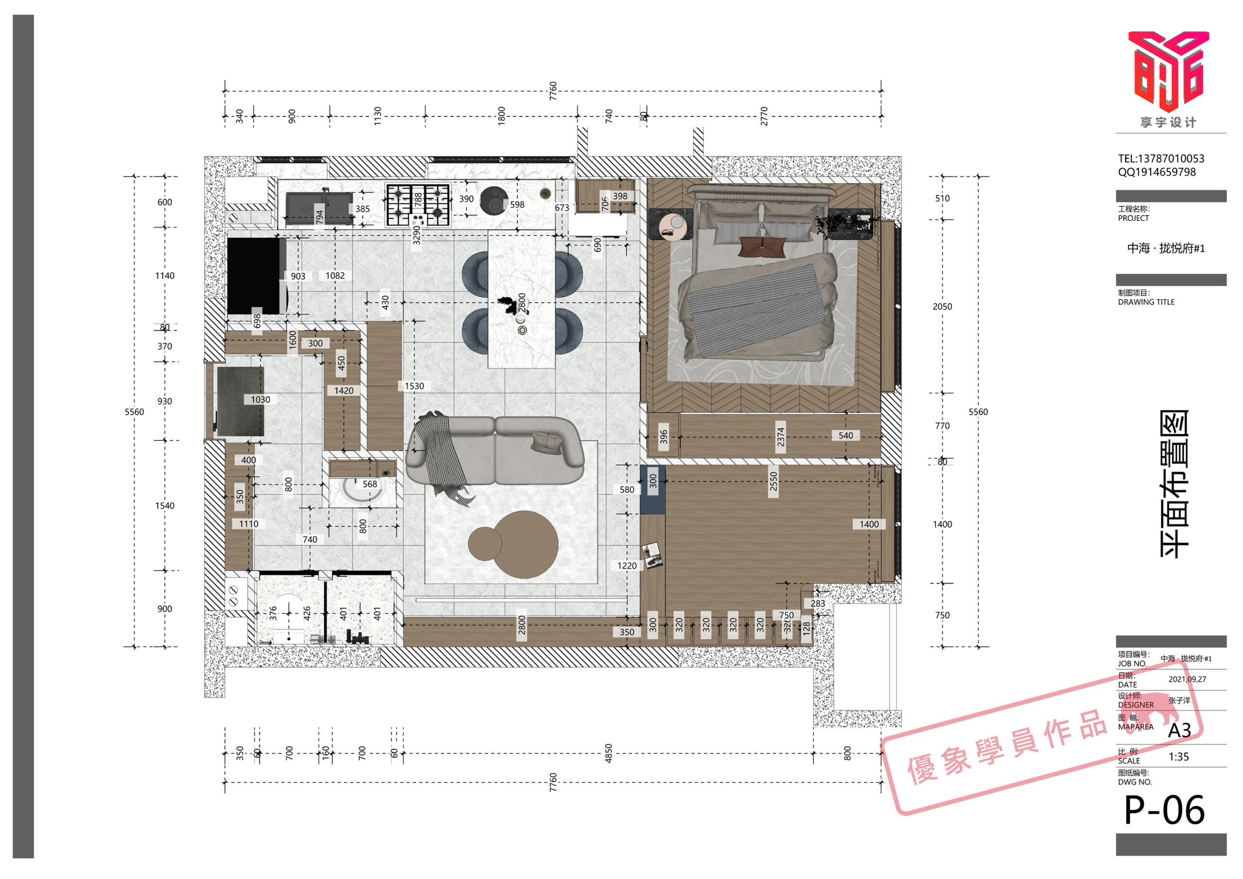
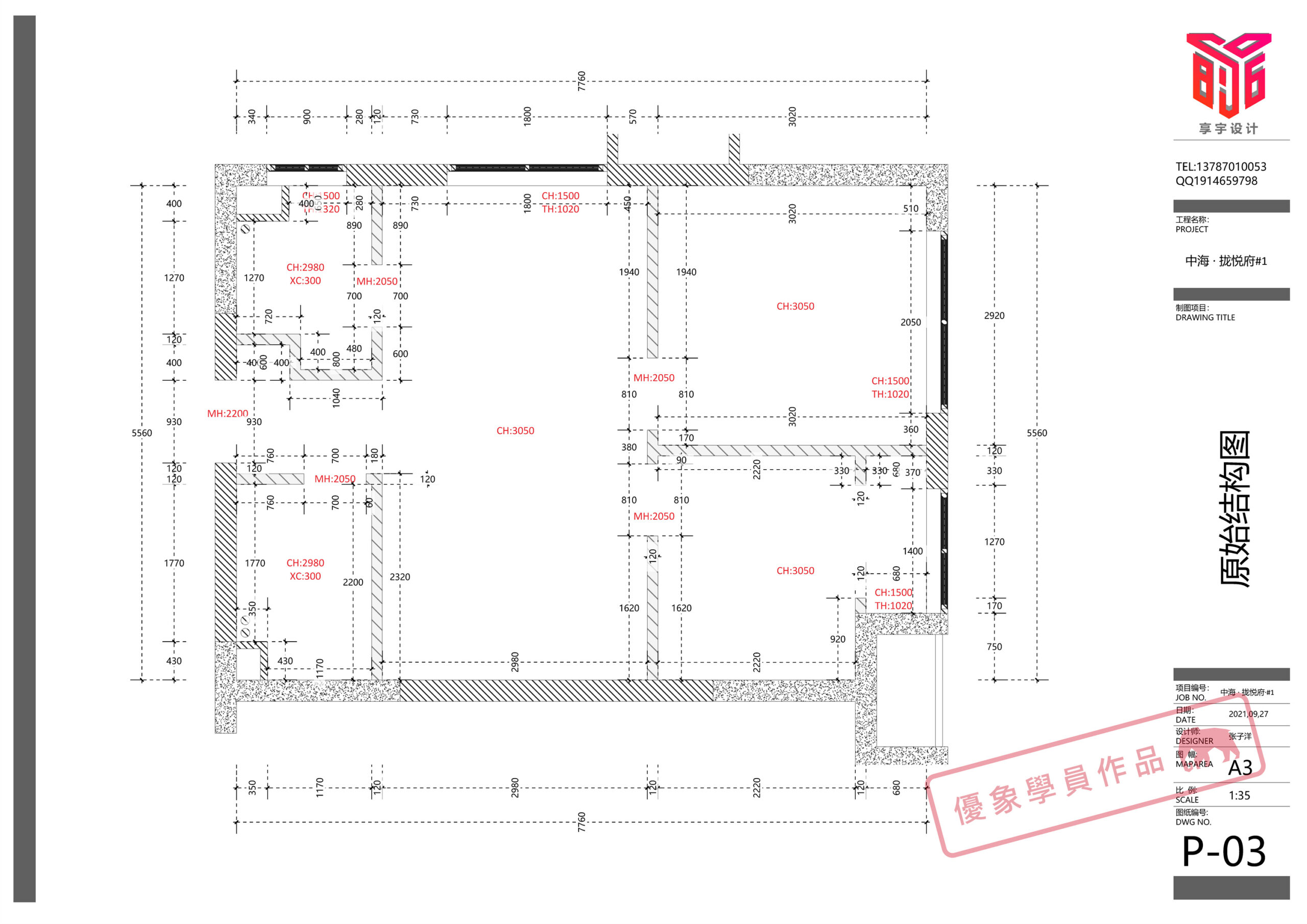
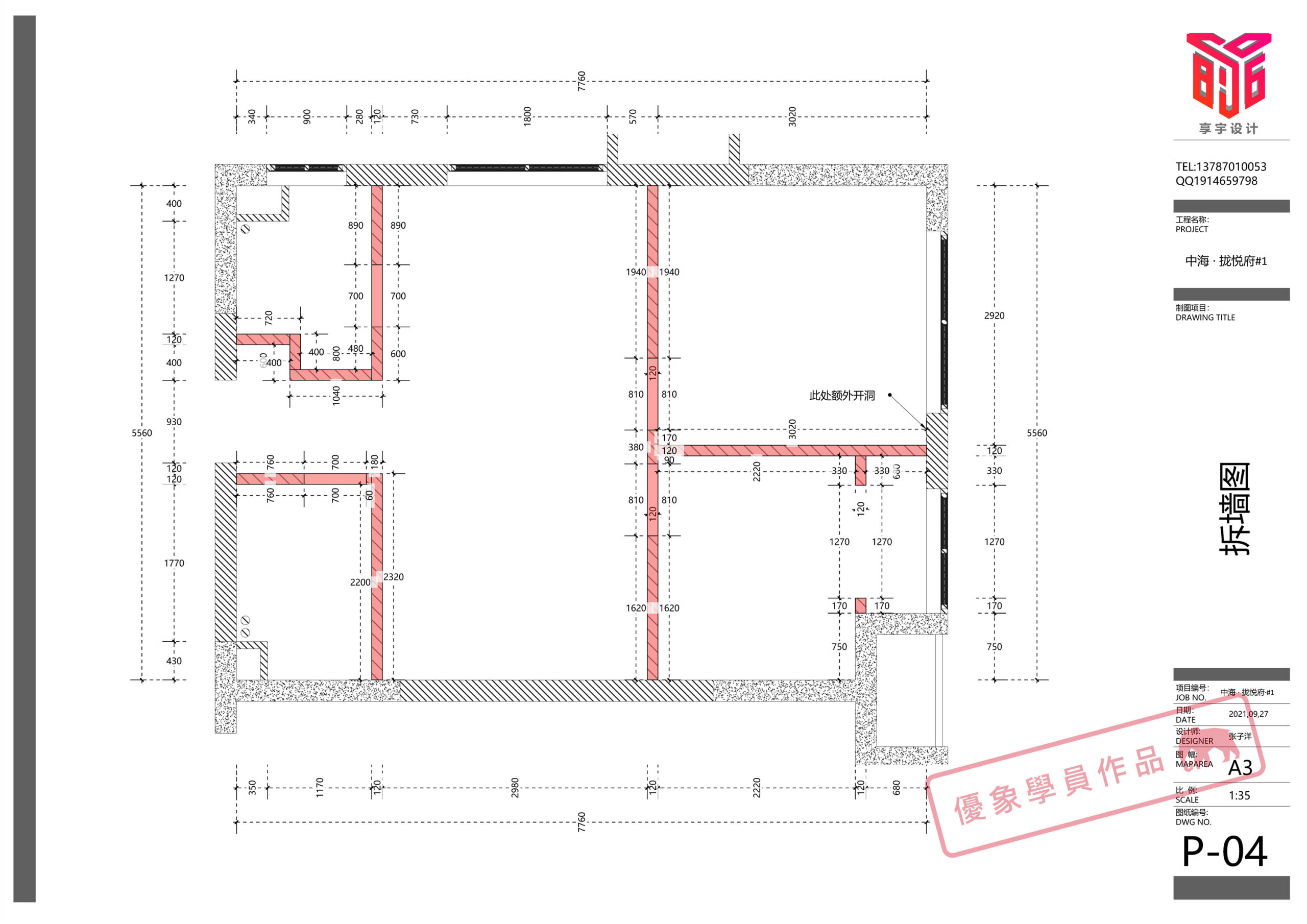
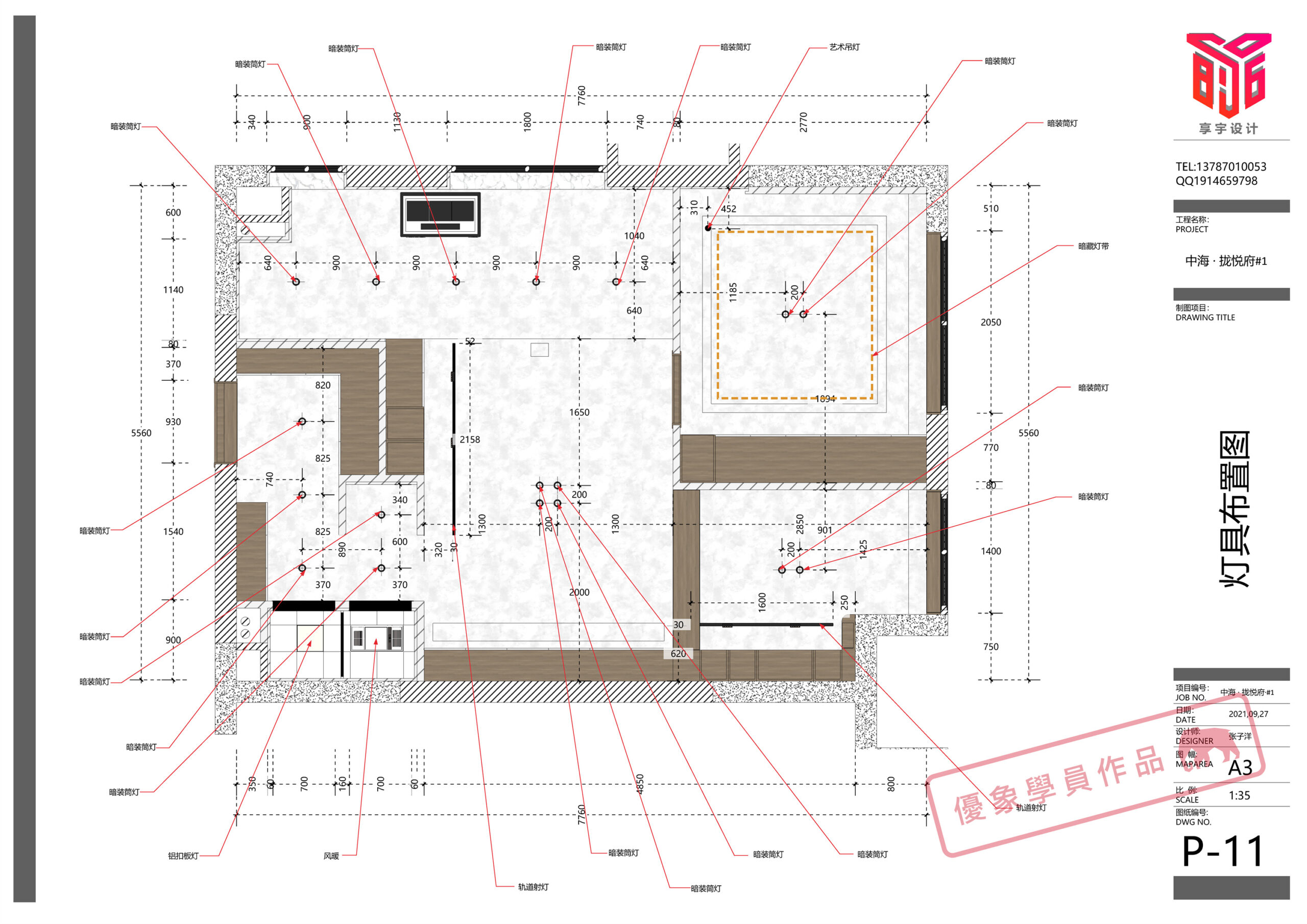
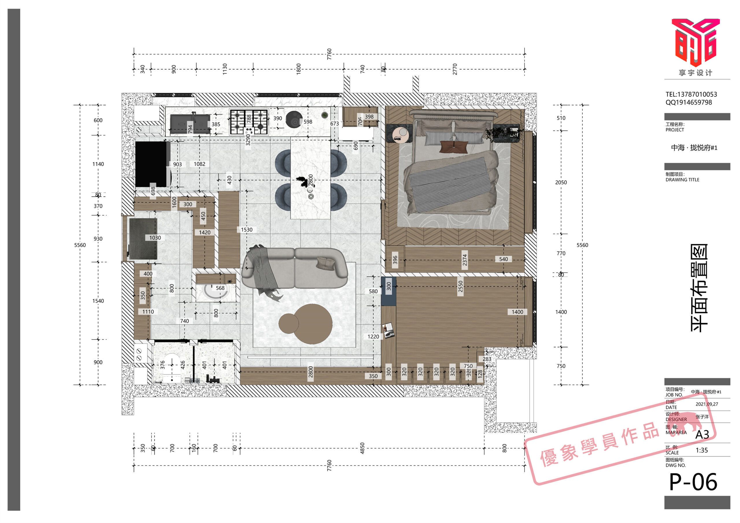
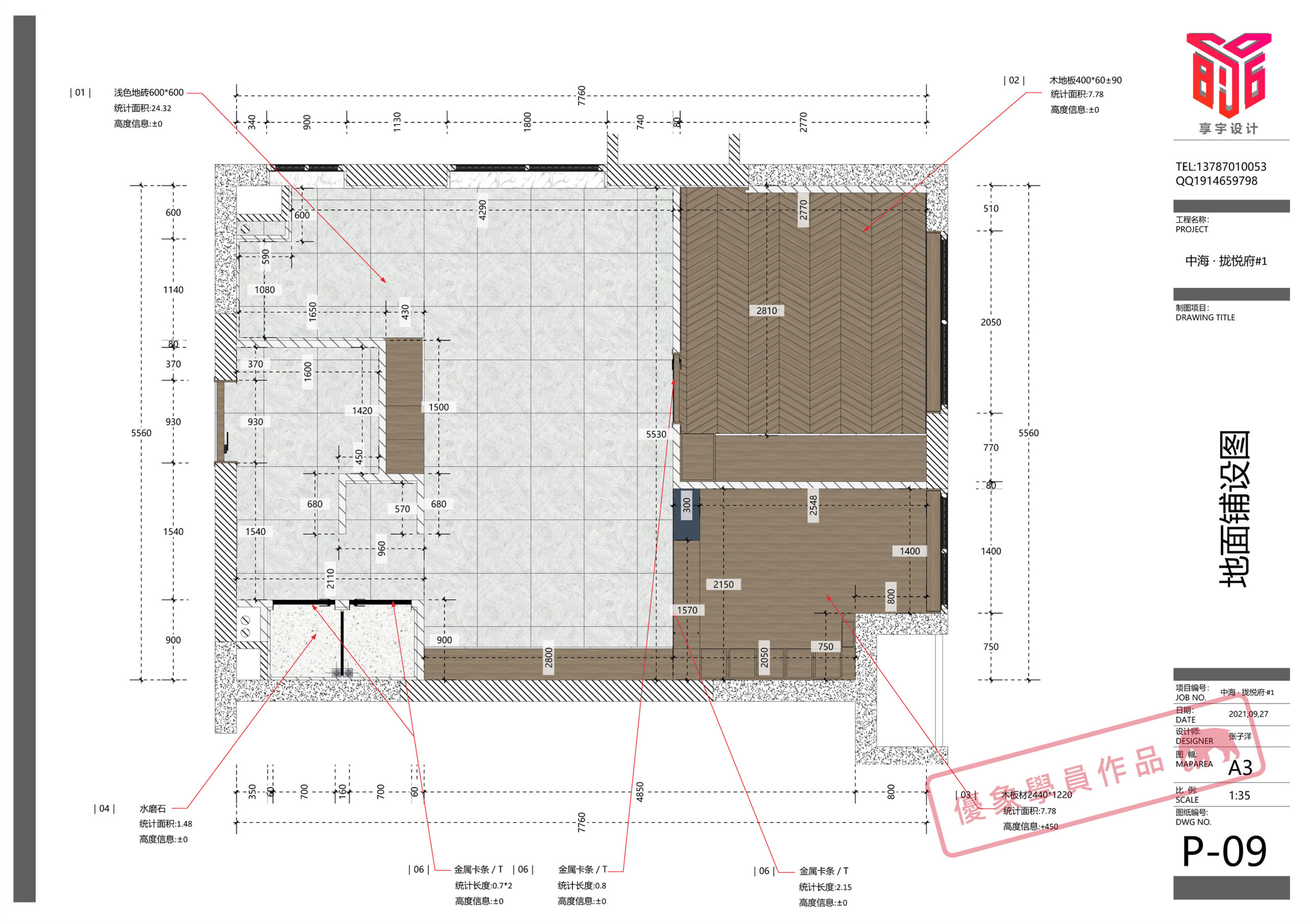
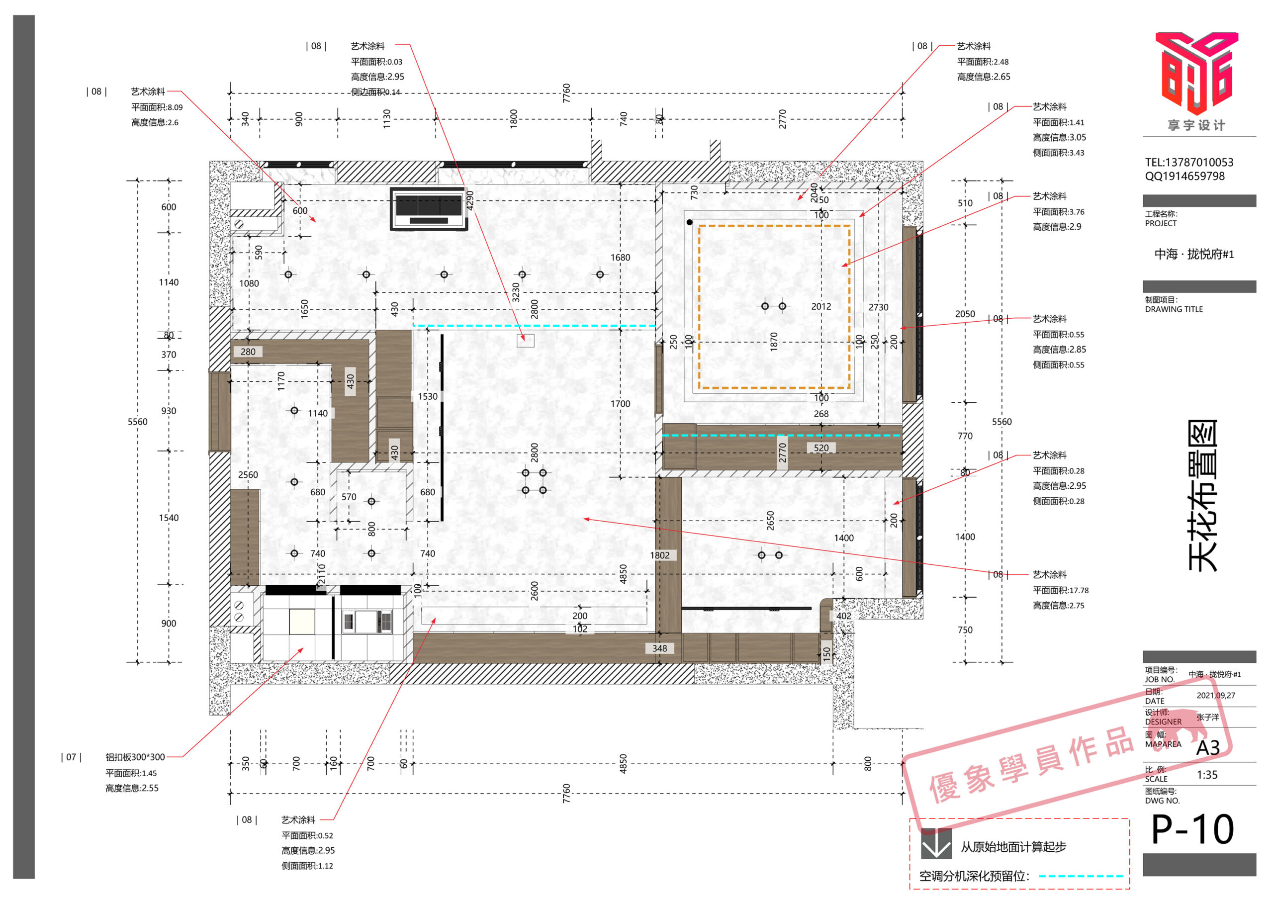
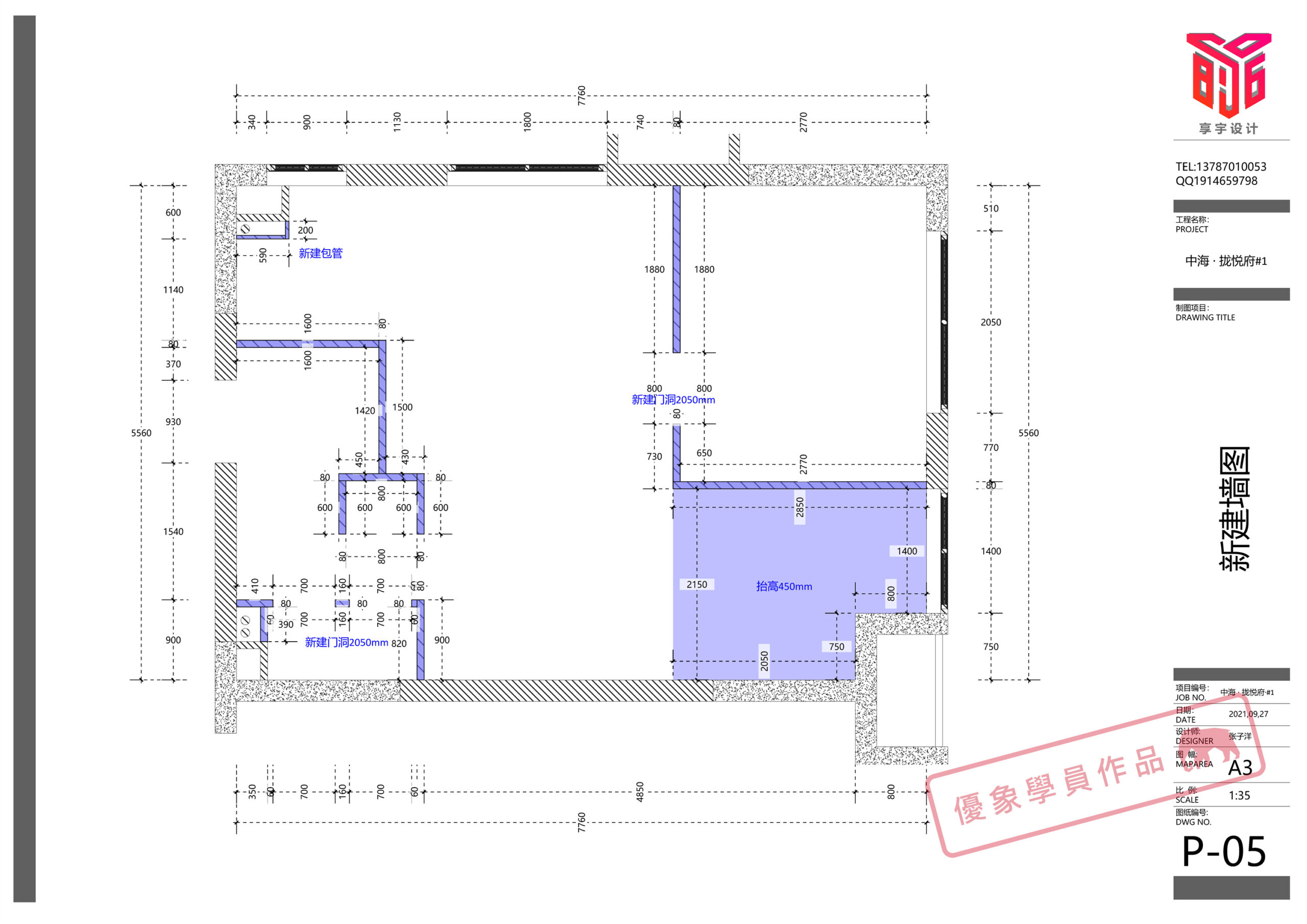
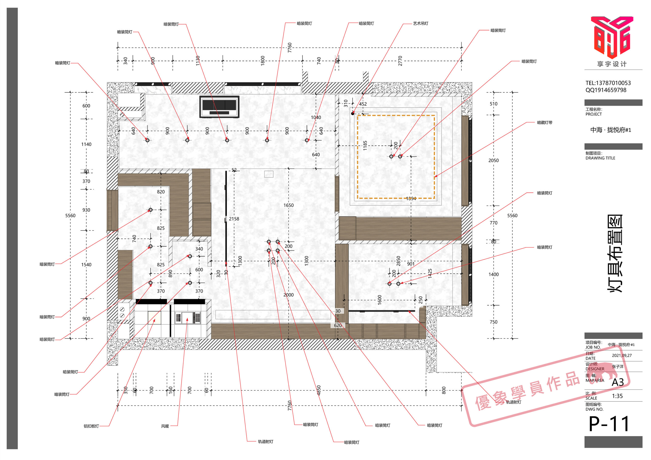
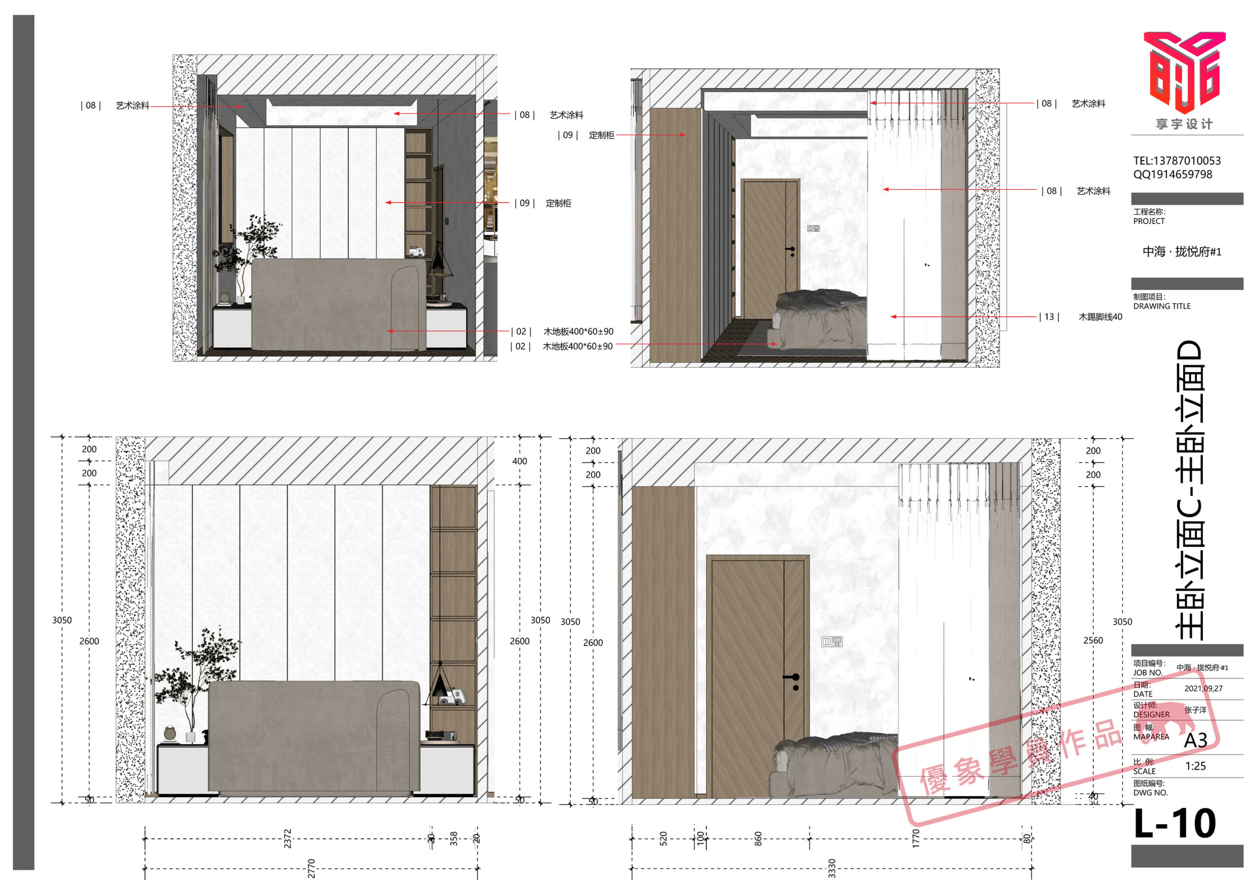
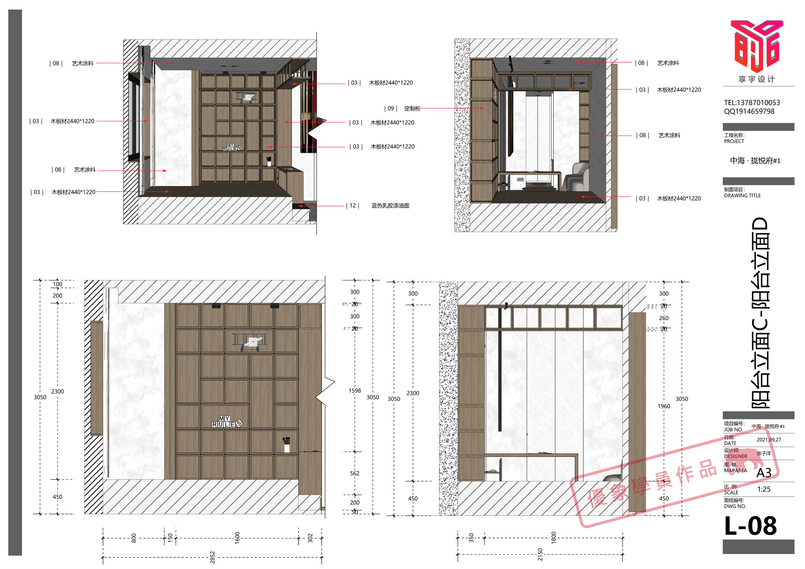
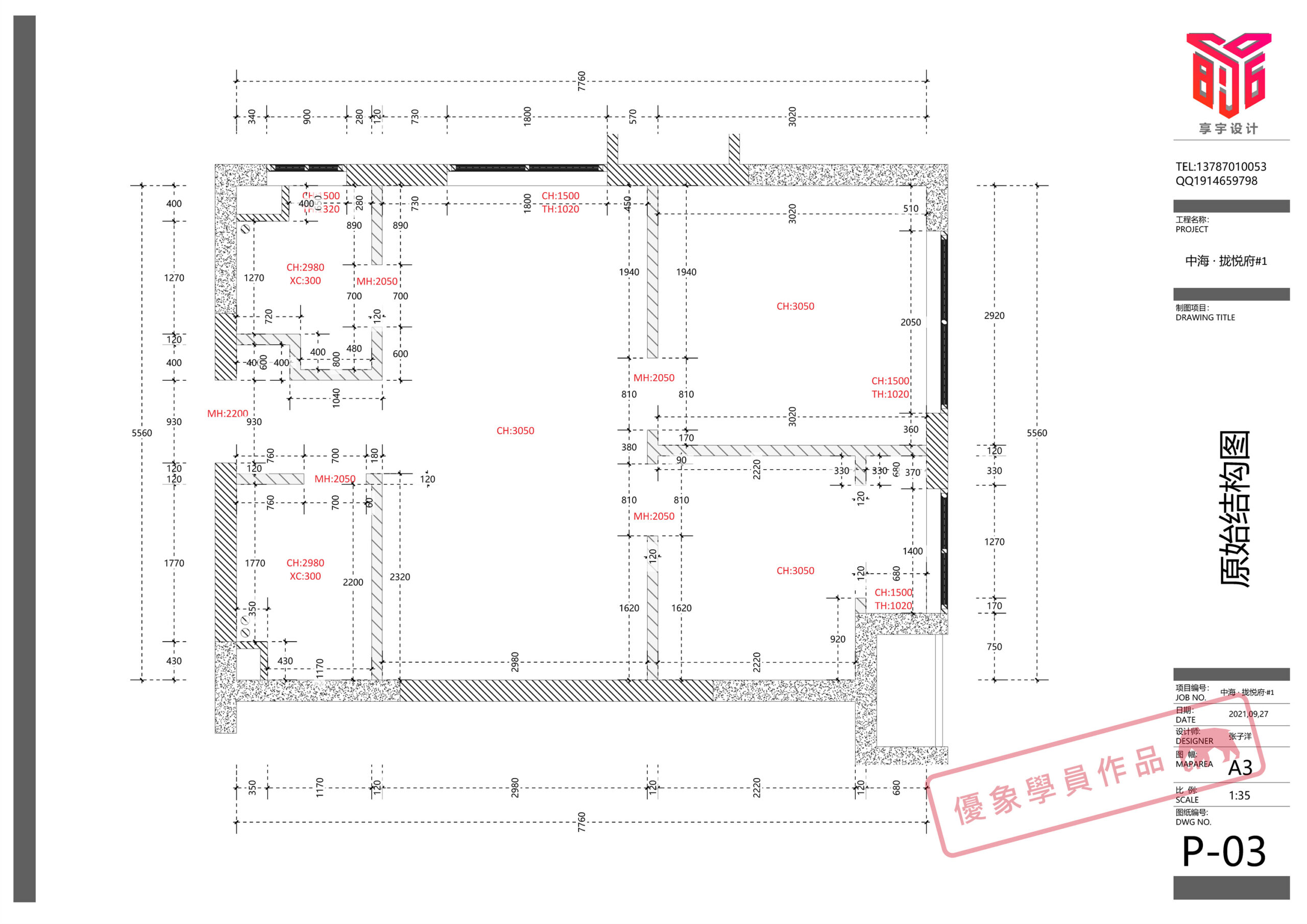
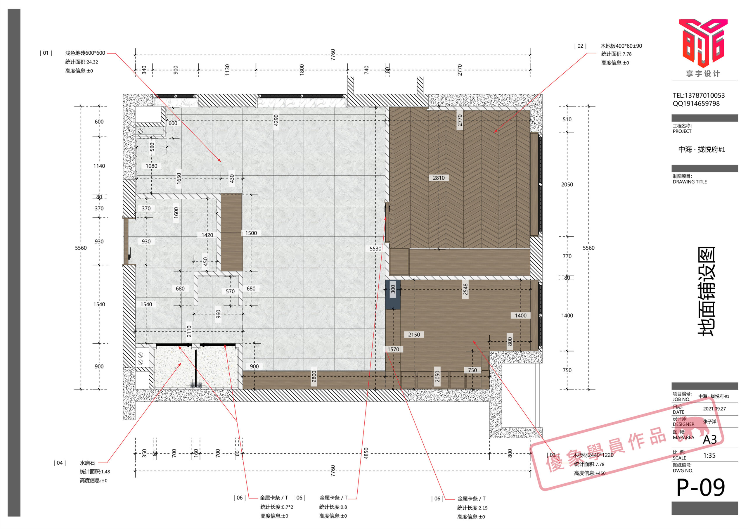
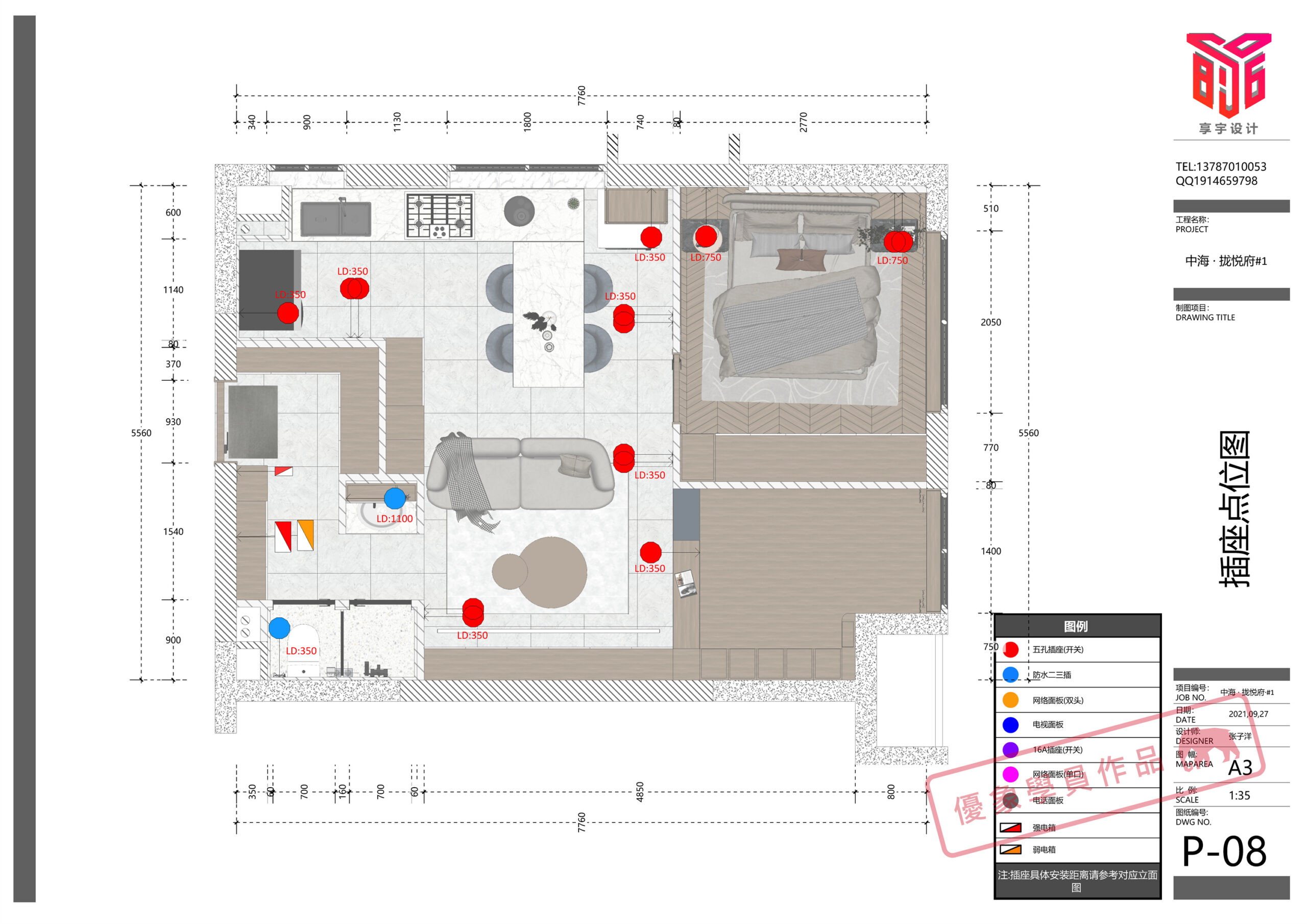
【06】LayOut比赛作品 【06】Layout学员作品 学员: 张子洋 作品的项目信息: 长沙 · 中海 · 拢悦府,平层60²,含layout和enscape展示。 特点说明: 量房,su出方案,su初步沟通修改磨合,ens做表现,layout做施工图。 https://static.yooox.net/wp-content/uploads/Enscape比赛作品【12】.mp4 以下LayOut彩色施工图的更多学习资料,有兴趣的同学可以进行了解: LayOut图纸案例 LayOut公开课 LayOut课程介绍