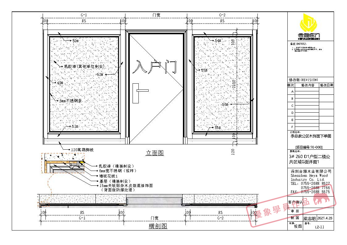
详细介绍
【04】LayOut学员作品
【04】LayOut学员作品
学员:
梁志明
作品的项目信息:
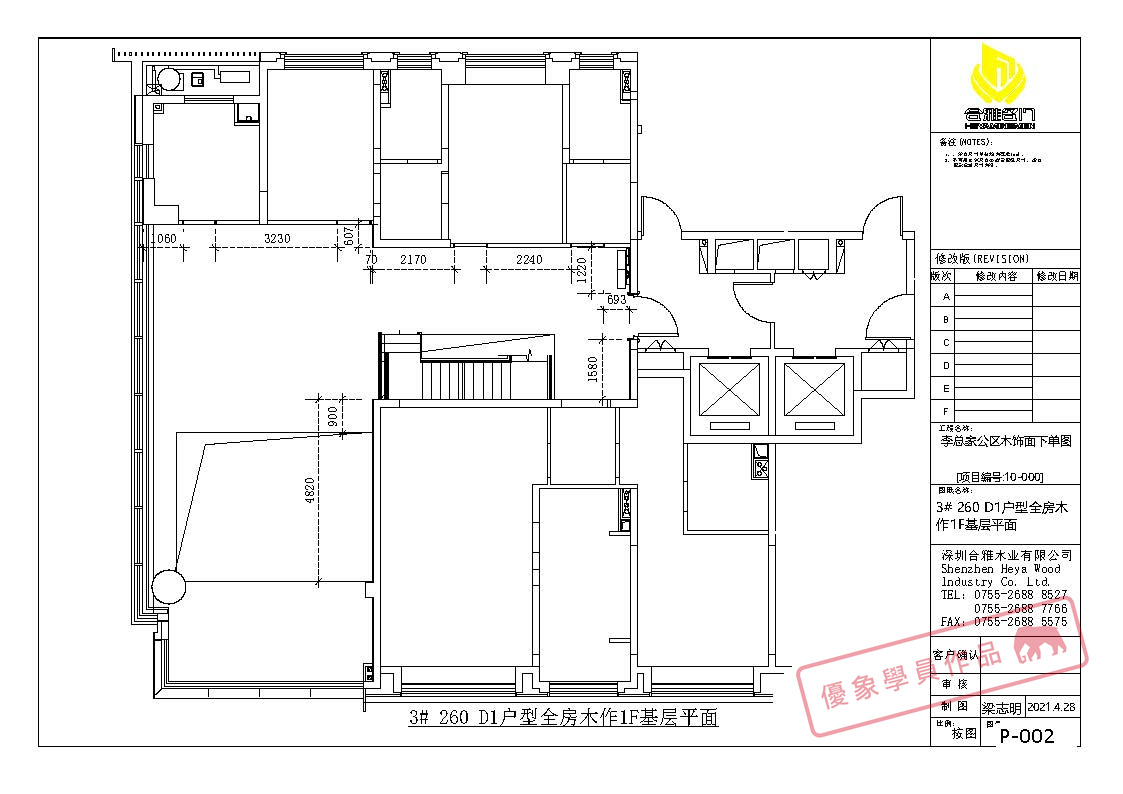
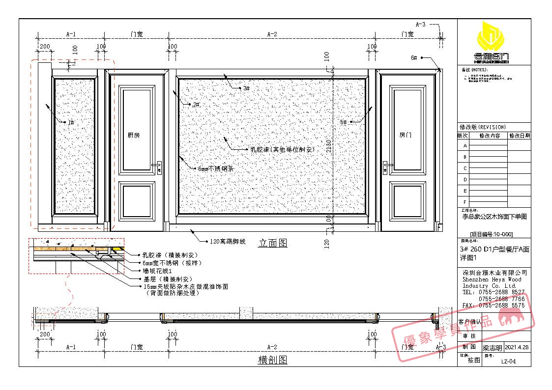
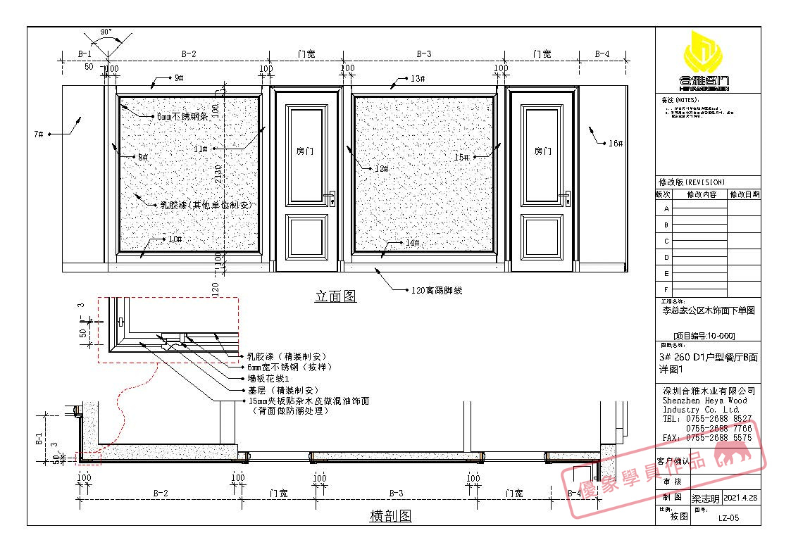
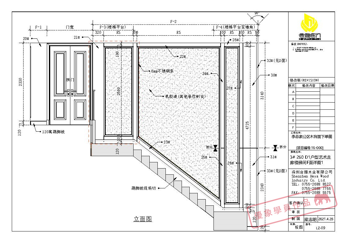
温州市鹿城区,木墙板/木饰面,260平
特点说明:
这个小单当时出图时间比较充裕反正出图下单都是我,就尝试直接用SU来深化,目前使用感受就是深化图阶段比CAD会慢一些,基本是SU出图时间比CAD多3分之一,但是到了下单阶段CAD人工算墙板,线条,钢条各种小配件可能要花1个多小时,用SU深化的图算量只要10分钟左右,户型越多的单下单的效率提升越明显,SU还是有很大潜力的。
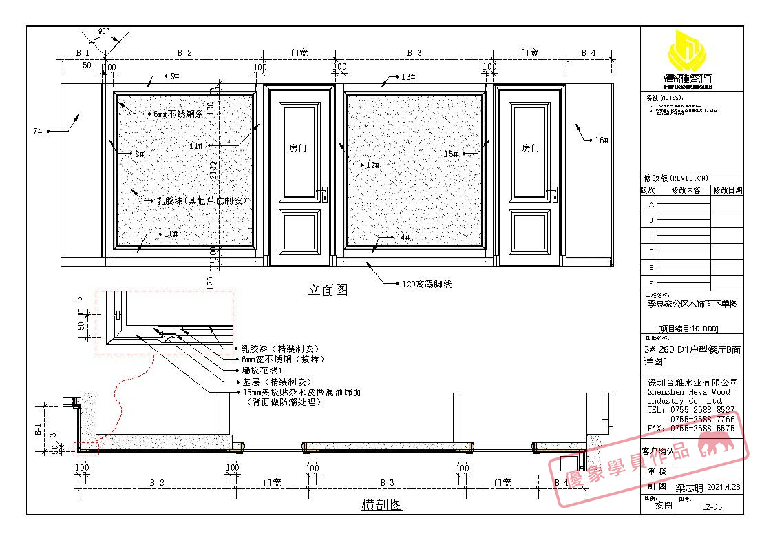
学员:
梁志明
作品的项目信息:
温州市鹿城区,木墙板/木饰面,260平
特点说明:
这个小单当时出图时间比较充裕反正出图下单都是我,就尝试直接用SU来深化,目前使用感受就是深化图阶段比CAD会慢一些,基本是SU出图时间比CAD多3分之一,但是到了下单阶段CAD人工算墙板,线条,钢条各种小配件可能要花1个多小时,用SU深化的图算量只要10分钟左右,户型越多的单下单的效率提升越明显,SU还是有很大潜力的。


















