详细介绍
【03】LayOut学员作品
【03】Layout学员作品
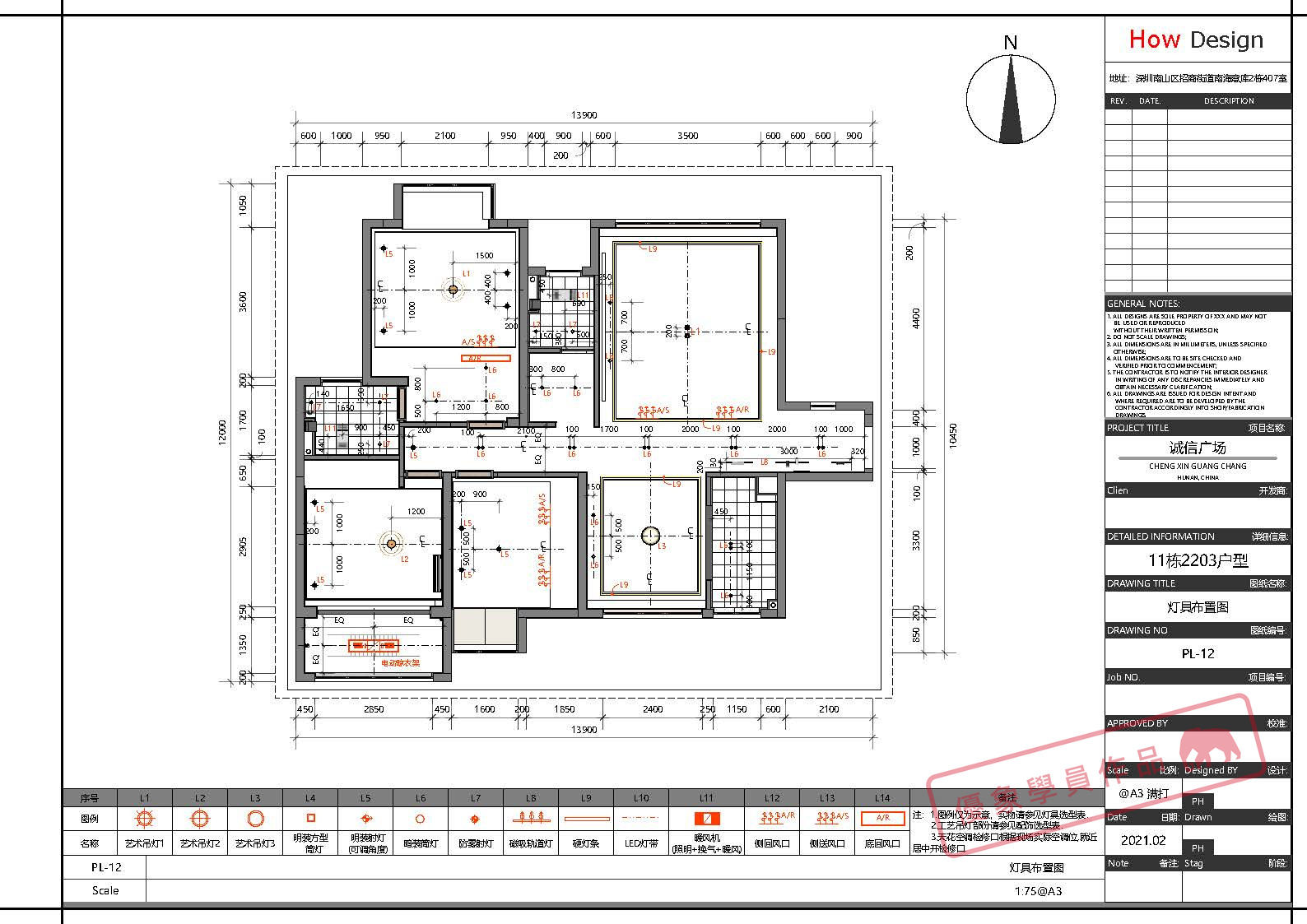
学员:
胡佳
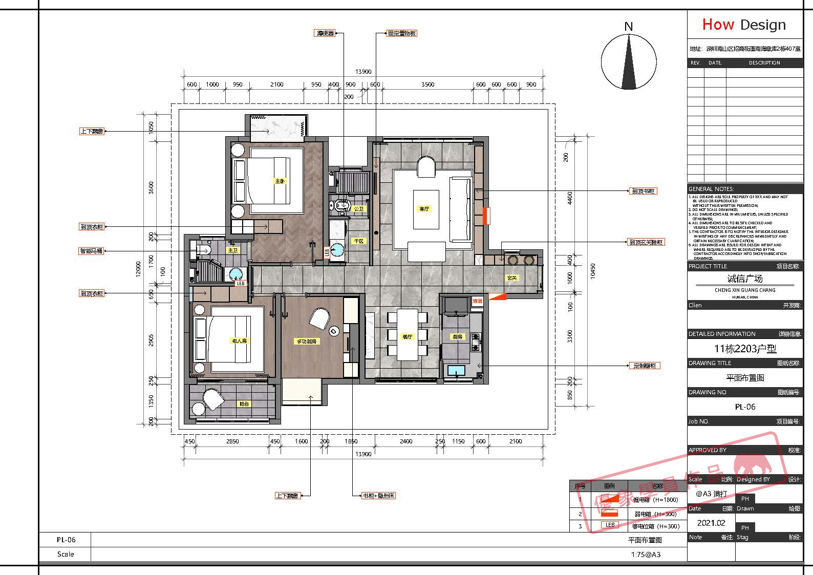
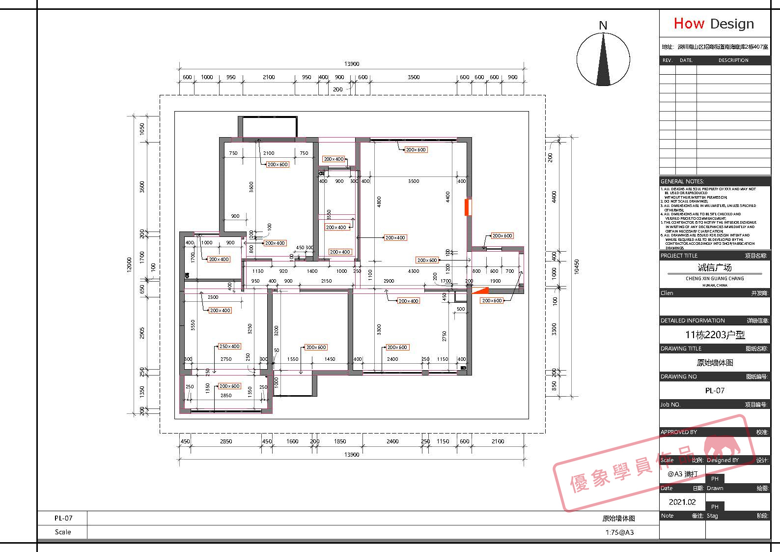
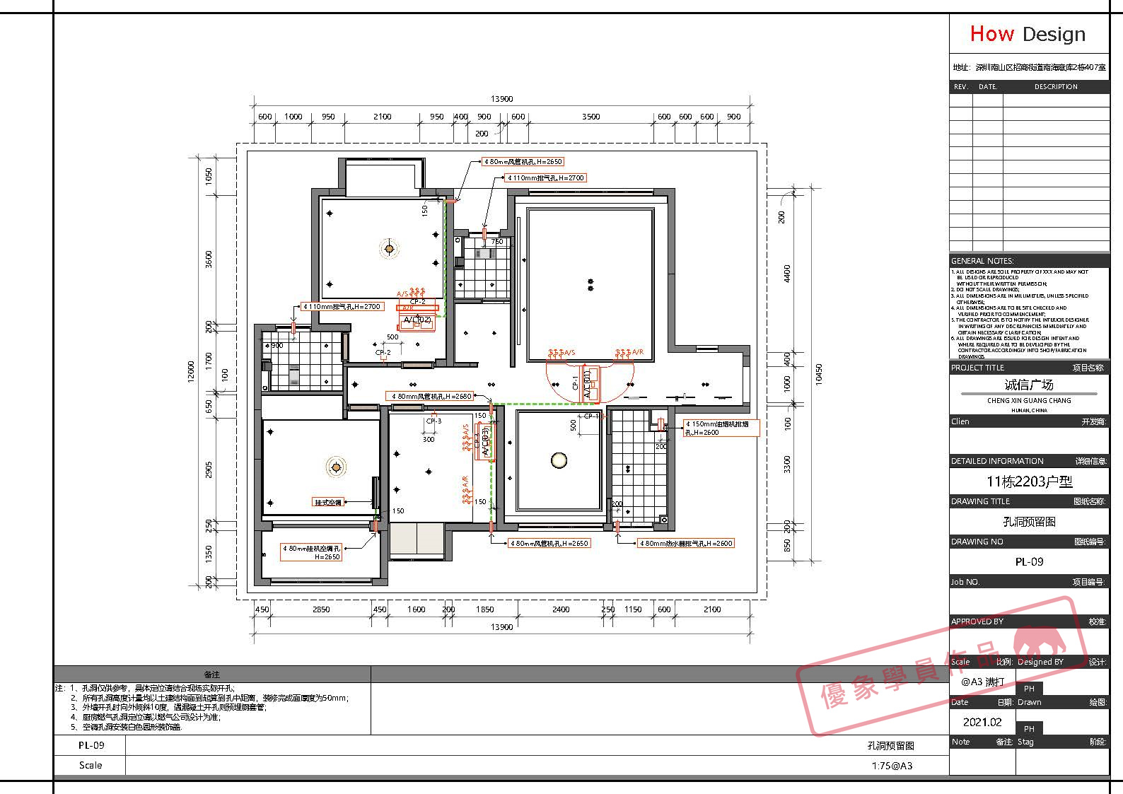
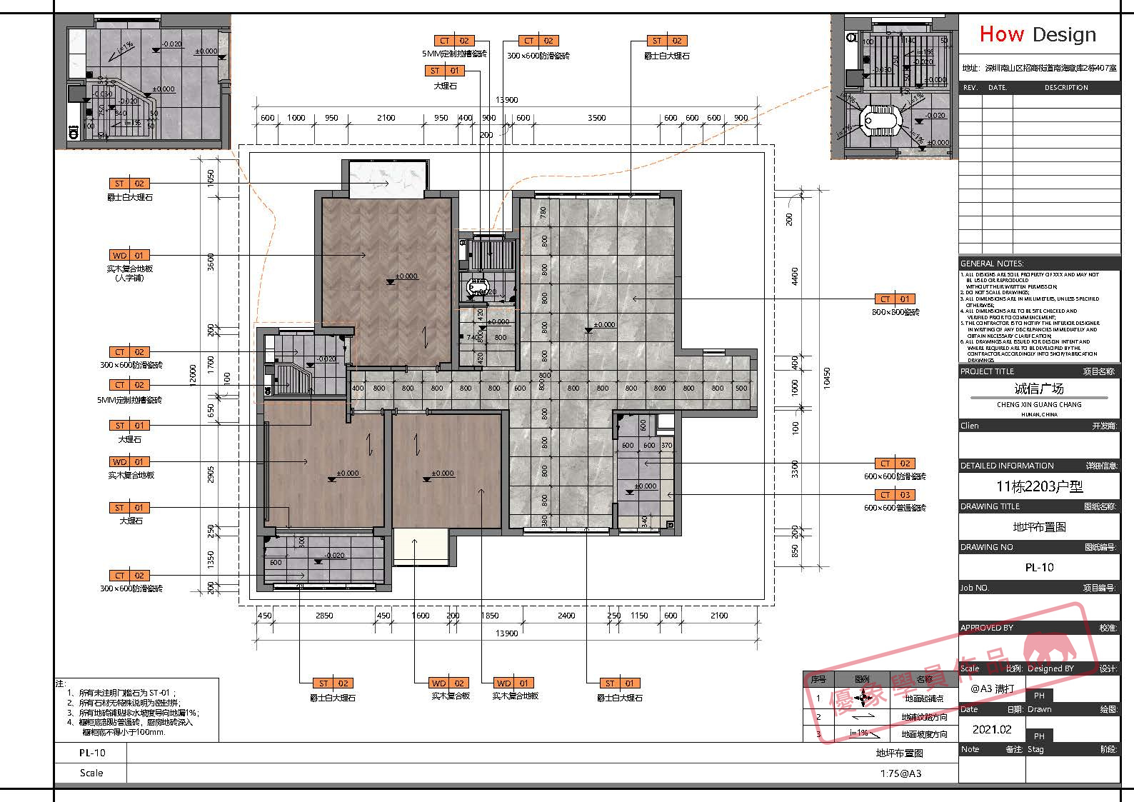
作品的项目信息:
项目地点:湖南常德
类型:家装
面积:132m²
特点说明:
家装的个性化程度比较高,能够更直观的给客户呈现设计成果,图纸不再是冰冷冷的黑白灰,给图纸加一点颜色,给生活多一份点色彩。
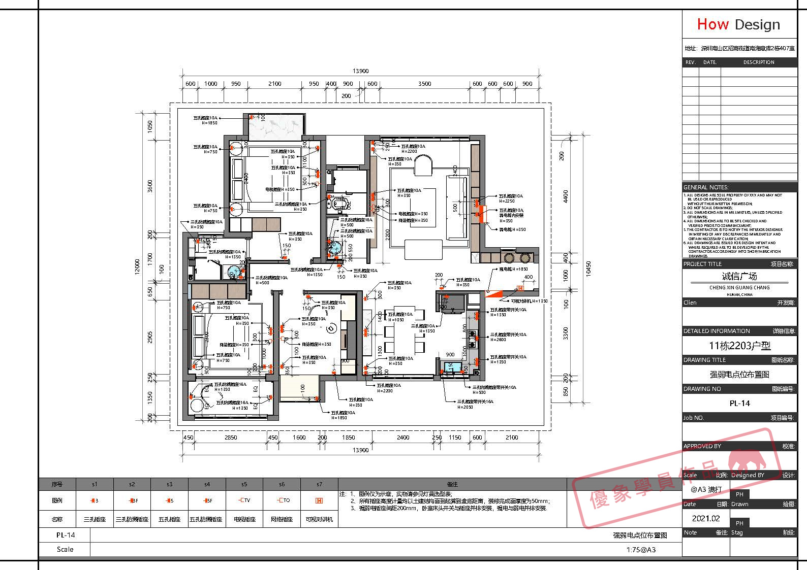
学员:
胡佳
作品的项目信息:
项目地点:湖南常德
类型:家装
面积:132m²
特点说明:
家装的个性化程度比较高,能够更直观的给客户呈现设计成果,图纸不再是冰冷冷的黑白灰,给图纸加一点颜色,给生活多一份点色彩。
















