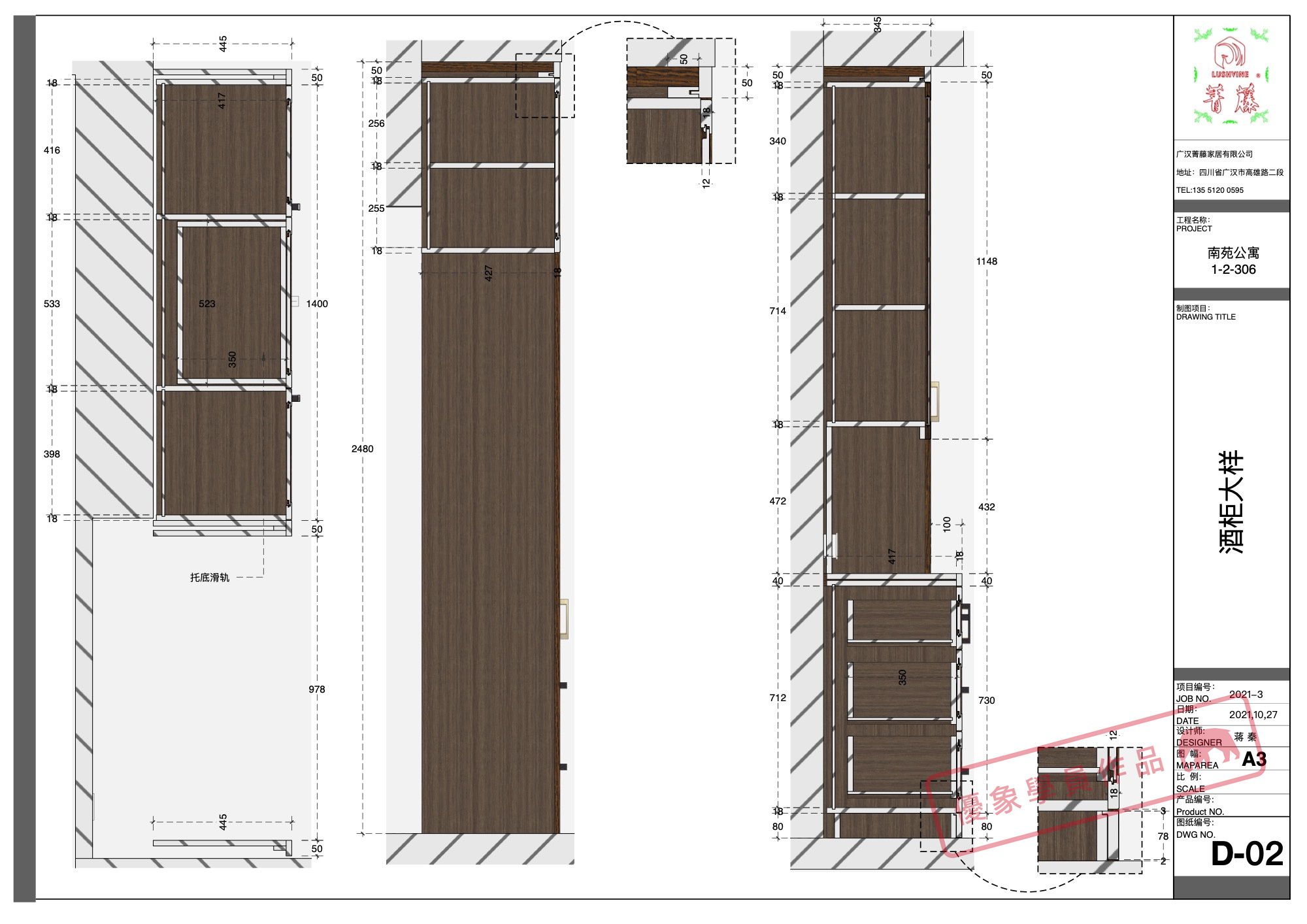
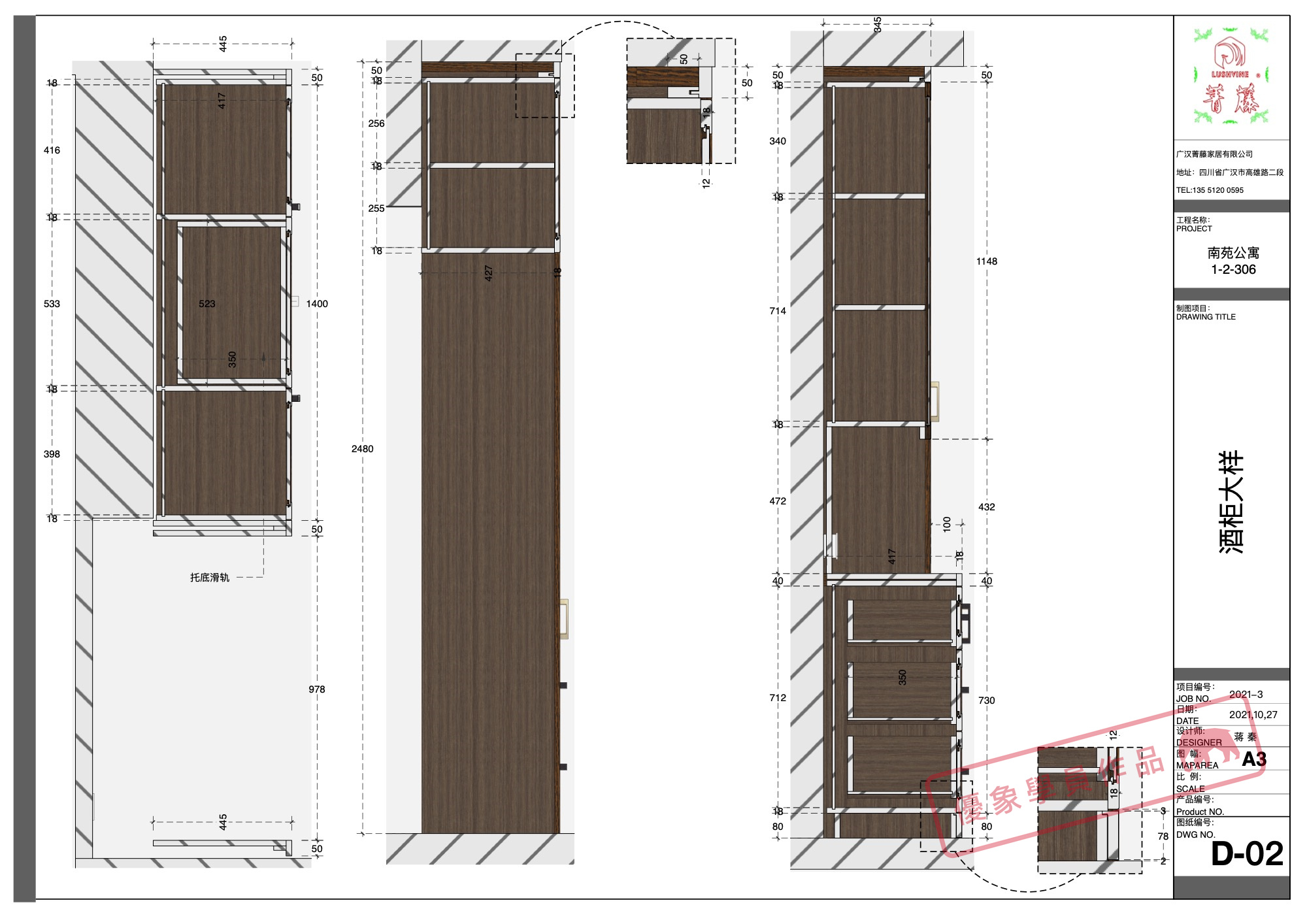
【01】LayOut学员作品 【01】LayOut学员作品 学员: 蒋秦 作品的项目信息: 成都、家装、90平方。 特点说明: 客户非专业人士,无法看懂CAD深化图纸,同时公司为了提高设计表达能力,所以使用了su。 以下LayOut彩色施工图的更多学习资料,有兴趣的同学可以进行了解: LayOut图纸案例 LayOut公开课 LayOut课程介绍