详细介绍
Enscape+LayOut工作流学员案例
Enscape+LayOut工作流学员案例
这个一个用SKetchUp设计制作的庭院设计项目,全程使用ENSCAPE渲染做动画漫游,整个渲染过程只需要20分钟,就可以输出高清的4K画质,当然在设计表现上没有使用效果图,动画相对效果图来说更能够表现设计意图。
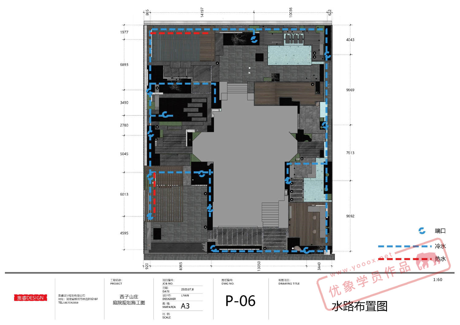
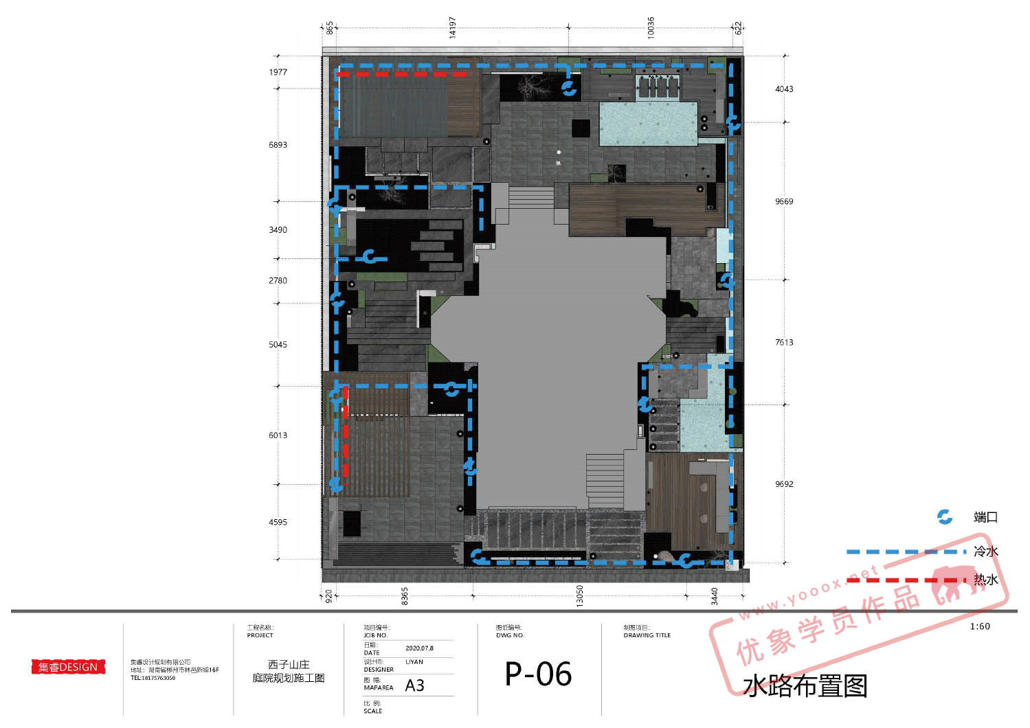
当方案完整之后,无需输出CAD施工图这个烦恼的过程,直接用SketchUp输出三维彩色图纸,更加直观和高效,并可以和模型进行实时联动修改,这个流程是以前无法体验的。
这个一个用SKetchUp设计制作的庭院设计项目,全程使用ENSCAPE渲染做动画漫游,整个渲染过程只需要20分钟,就可以输出高清的4K画质,当然在设计表现上没有使用效果图,动画相对效果图来说更能够表现设计意图。
当方案完整之后,无需输出CAD施工图这个烦恼的过程,直接用SketchUp输出三维彩色图纸,更加直观和高效,并可以和模型进行实时联动修改,这个流程是以前无法体验的。

































