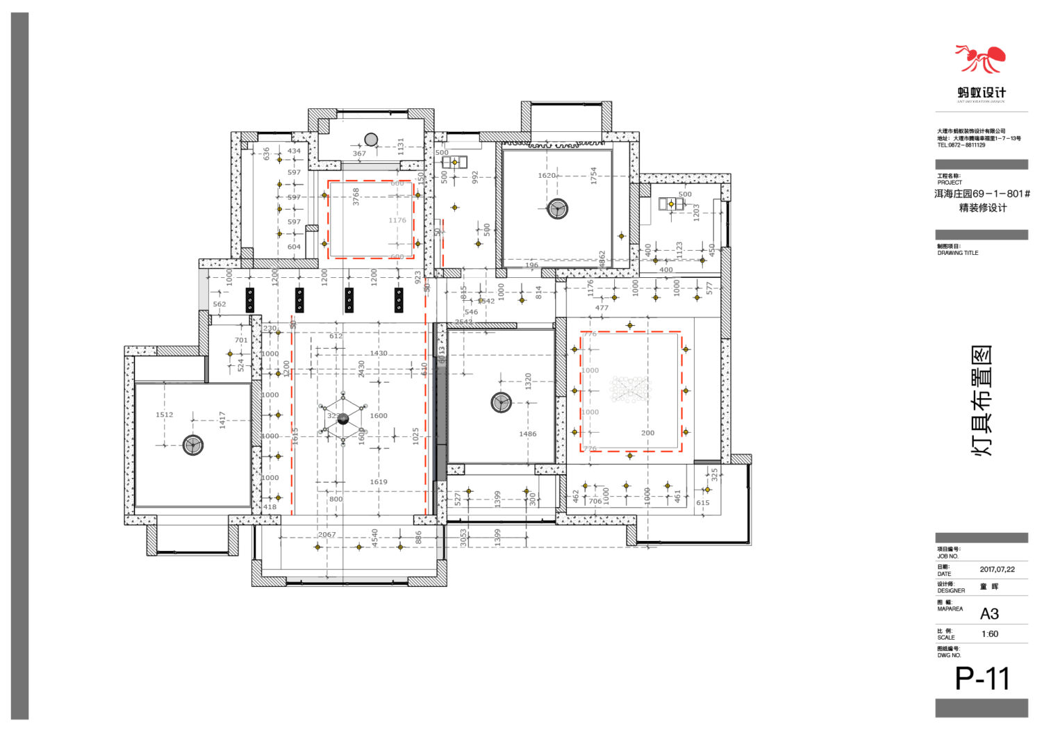
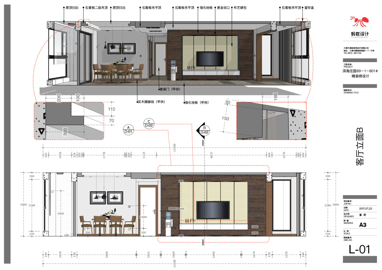
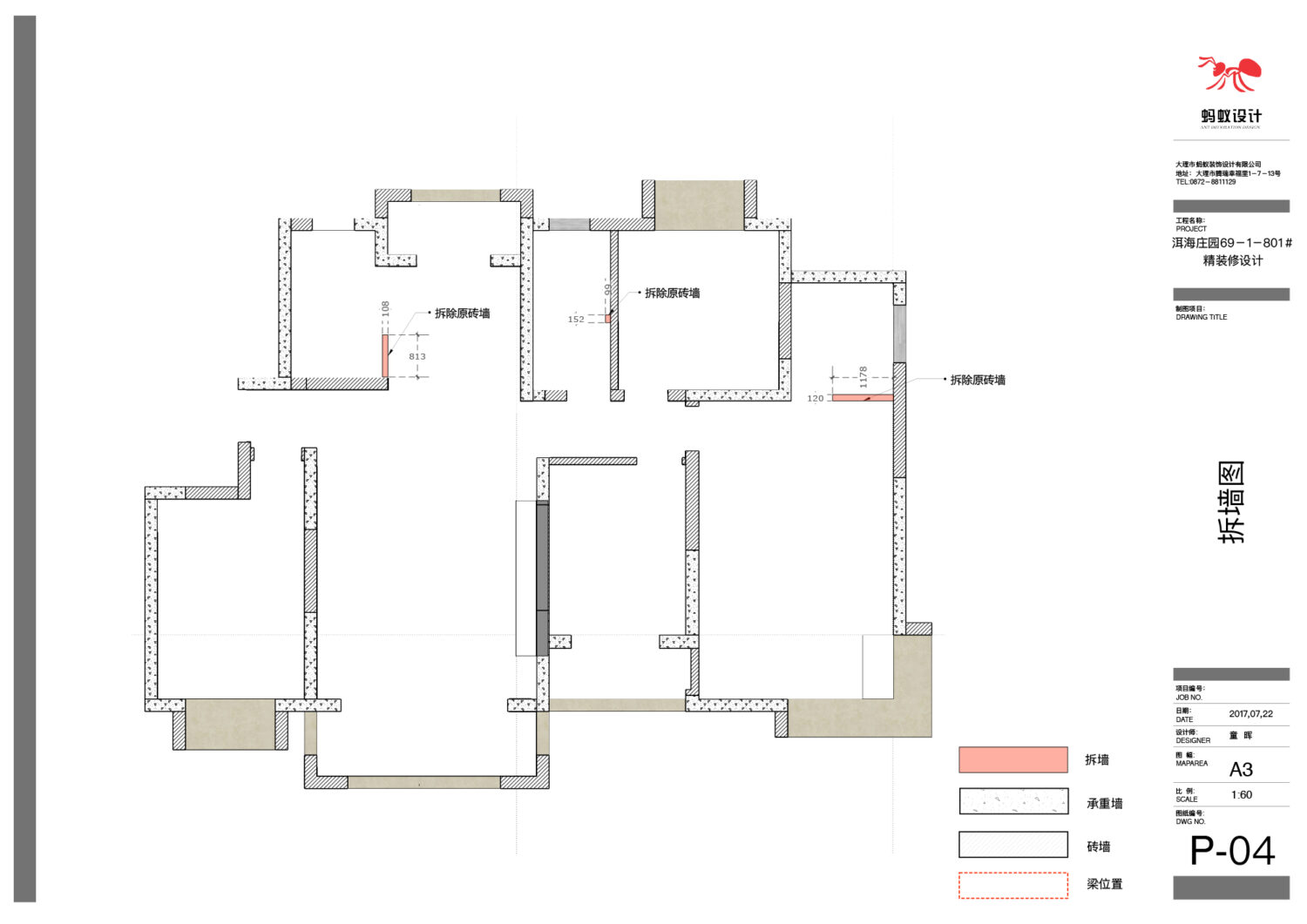
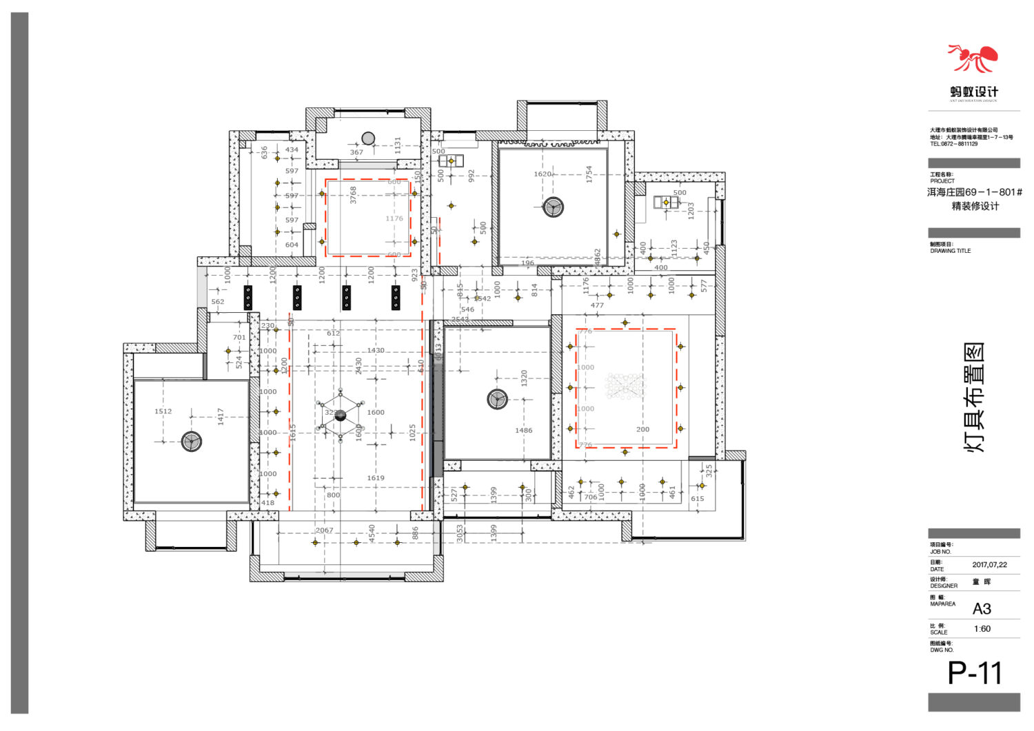
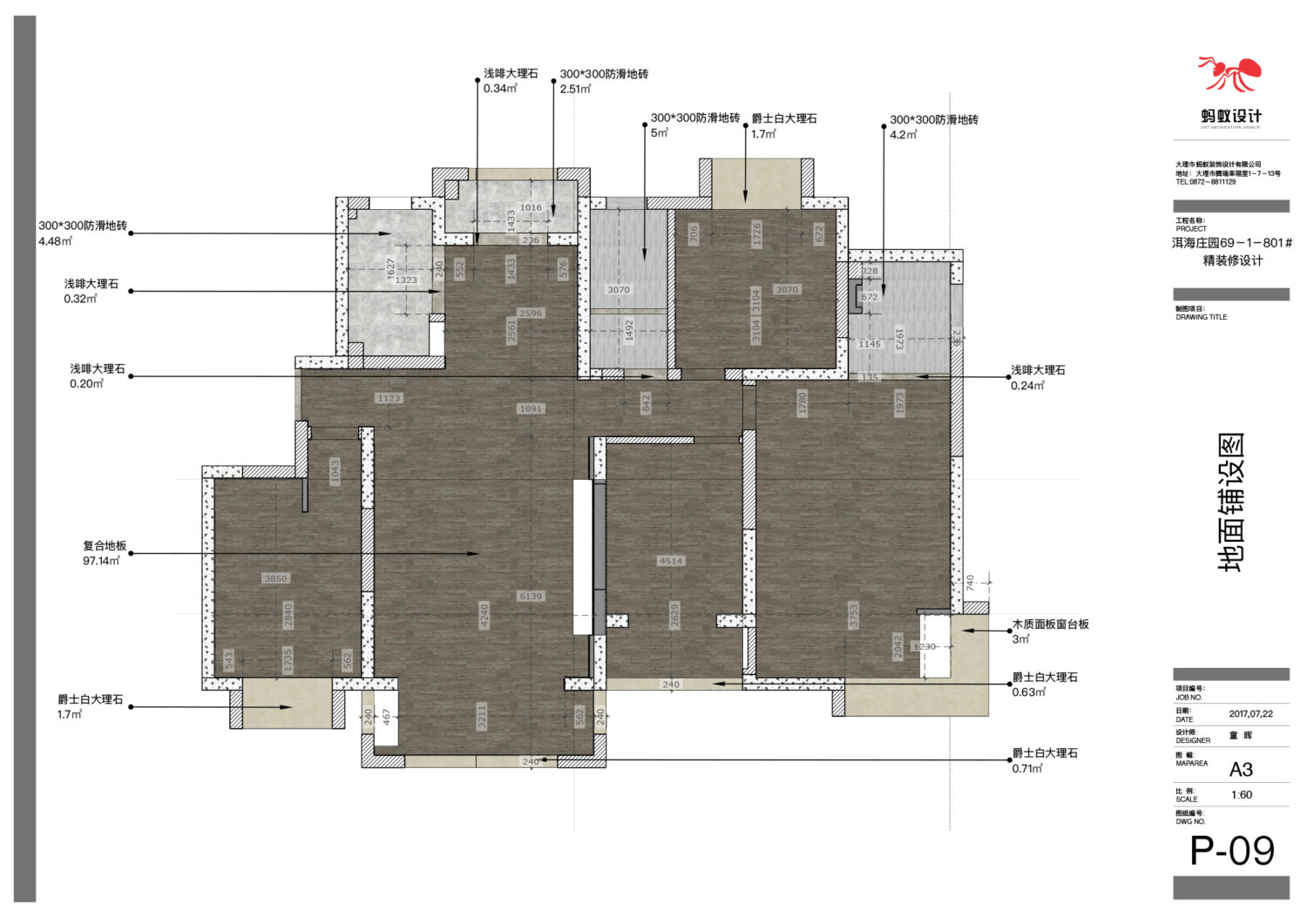
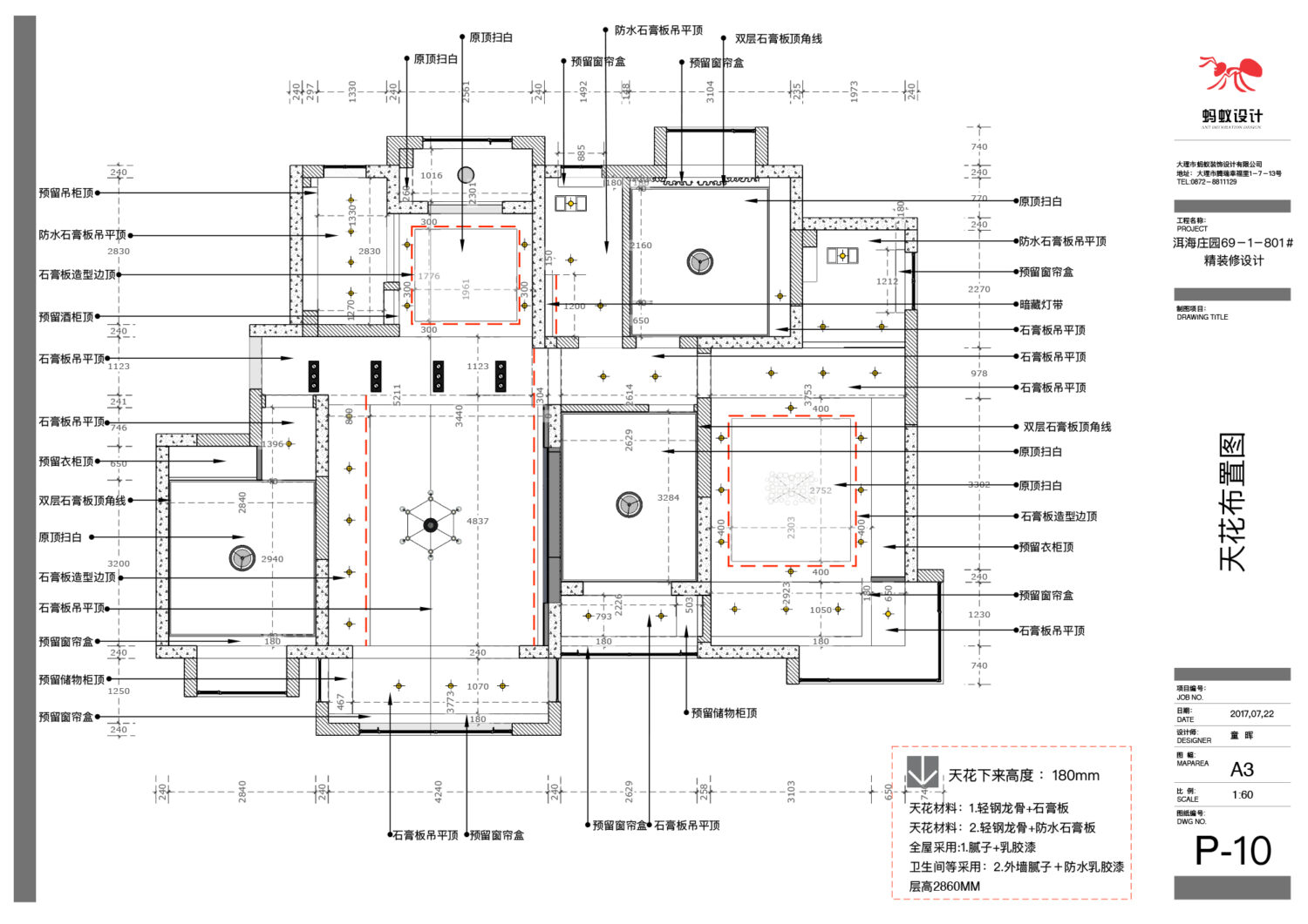
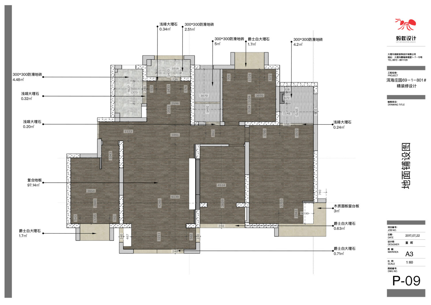
(学员)家装施工图

版权问题:学员有作品图纸的版权,未经过学员本人允许不可将相关图纸用于其他用途 以下LayOut彩色施工图的更多 […]

详细介绍

(学员)家装施工图

版权问题:学员有作品图纸的版权,未经过学员本人允许不可将相关图纸用于其他用途

版权问题:学员有作品图纸的版权,未经过学员本人允许不可将相关图纸用于其他用途

以下LayOut彩色施工图的更多学习资料,有兴趣的同学可以进行了解:

用户登录