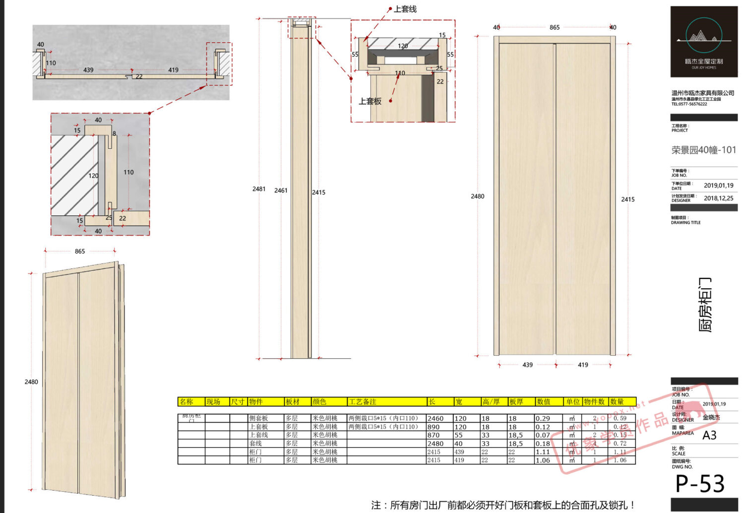
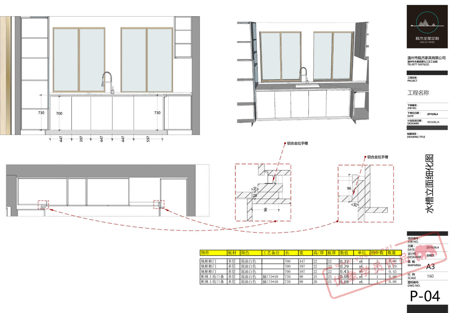
详细介绍
Layout学员作品:LayOut全屋定制施工图
SU作为设计软件的优势就在于快捷简单,
而对接生产势必要为简单的构件加上一层繁琐的设置,
你会发现也许你的SU有一天变成了三维家或者圆方。
我并不排斥SU对接生产,
也认为如果SU打通前后端将会比三维家,酷家乐之流要好用的多。
但我们设计师下单之后,如果有拆单员,
有可能帮助我们检查出-些我们的纰漏或者认知错误。
而软件直接对接机器了,设计师要负起100%的责任,
看似工作负担轻了,可是一旦哪天大意马虎,精神压力随之而来。
工作负担真的轻了吗?
还是做一样的工作,
而且要更加小心翼翼的做。
…
而对接生产势必要为简单的构件加上一层繁琐的设置,
你会发现也许你的SU有一天变成了三维家或者圆方。
我并不排斥SU对接生产,
也认为如果SU打通前后端将会比三维家,酷家乐之流要好用的多。
但我们设计师下单之后,如果有拆单员,
有可能帮助我们检查出-些我们的纰漏或者认知错误。
而软件直接对接机器了,设计师要负起100%的责任,
看似工作负担轻了,可是一旦哪天大意马虎,精神压力随之而来。
工作负担真的轻了吗?
还是做一样的工作,
而且要更加小心翼翼的做。
…









































-1-拷贝_副本-1500x857.jpg??imageMogr2/format/webp)
-2-拷贝_副本-1500x1147.jpg??imageMogr2/format/webp)
-3-拷贝_副本-1500x1025.jpg??imageMogr2/format/webp)
-4-拷贝_副本-1500x1042.jpg??imageMogr2/format/webp)
-5-拷贝_副本-1500x1042.jpg??imageMogr2/format/webp)
-6-拷贝_副本-1500x1042.jpg??imageMogr2/format/webp)
-7-拷贝_副本-1500x1063.jpg??imageMogr2/format/webp)
-8-拷贝_副本-1500x1042.jpg??imageMogr2/format/webp)
-1-拷贝_副本-1500x1047.jpg??imageMogr2/format/webp)
-2-拷贝_副本-1500x1047.jpg??imageMogr2/format/webp)
-3-拷贝_副本-1500x1035.jpg??imageMogr2/format/webp)
-4-拷贝_副本-1500x1038.jpg??imageMogr2/format/webp)
-5-拷贝_副本-1500x1037.jpg??imageMogr2/format/webp)
-6-拷贝_副本-1500x1045.jpg??imageMogr2/format/webp)
-7-拷贝_副本-1500x1035.jpg??imageMogr2/format/webp)
-8-拷贝_副本-1500x1035.jpg??imageMogr2/format/webp)
-9-拷贝_副本-1500x1035.jpg??imageMogr2/format/webp)
-10-拷贝_副本-1500x1035.jpg??imageMogr2/format/webp)
-1-拷贝-1500x1034.jpg??imageMogr2/format/webp)
-2-拷贝-1500x1034.jpg??imageMogr2/format/webp)
-3-拷贝-1500x1034.jpg??imageMogr2/format/webp)
-4-拷贝-1500x1034.jpg??imageMogr2/format/webp)
-5-拷贝-1500x1034.jpg??imageMogr2/format/webp)
-1-拷贝-1500x1039.jpg??imageMogr2/format/webp)
-2-拷贝-1500x1035.jpg??imageMogr2/format/webp)
-3-拷贝-1500x1039.jpg??imageMogr2/format/webp)
-4-拷贝-1500x1035.jpg??imageMogr2/format/webp)
-5-拷贝-1500x1035.jpg??imageMogr2/format/webp)
-6-拷贝-1500x1035.jpg??imageMogr2/format/webp)
-7-拷贝-1500x1035.jpg??imageMogr2/format/webp)
-8-拷贝-1500x1035.jpg??imageMogr2/format/webp)
-9-拷贝-1500x1035.jpg??imageMogr2/format/webp)
-10-拷贝-1500x1054.jpg??imageMogr2/format/webp)
-11-拷贝-1500x1035.jpg??imageMogr2/format/webp)
