详细介绍
LayOut学员作品——住宅装修案施工图
LayOut学员作品
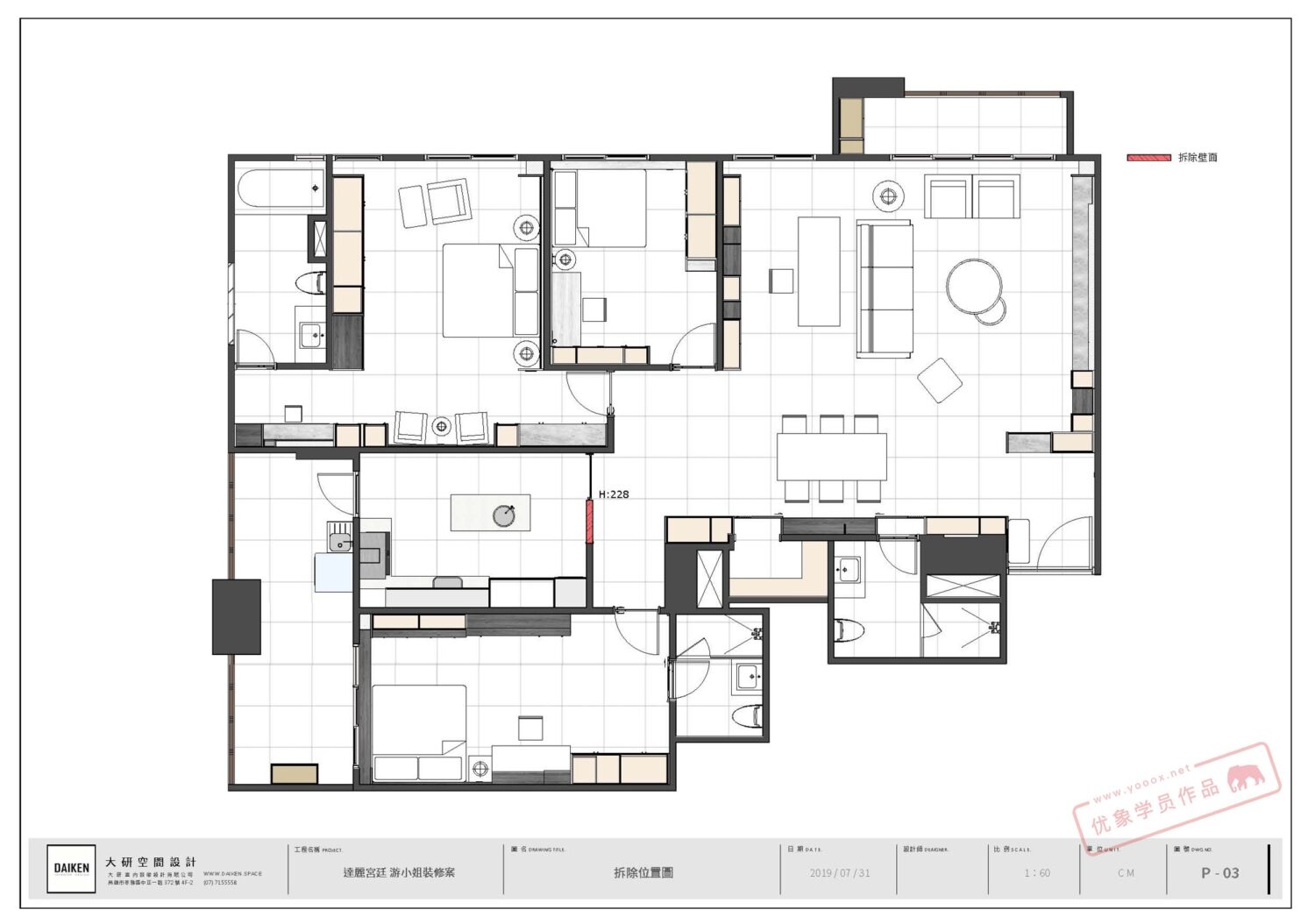
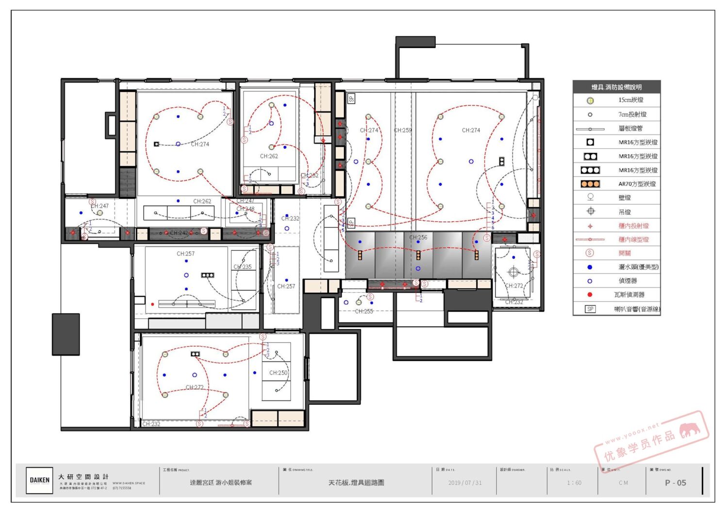
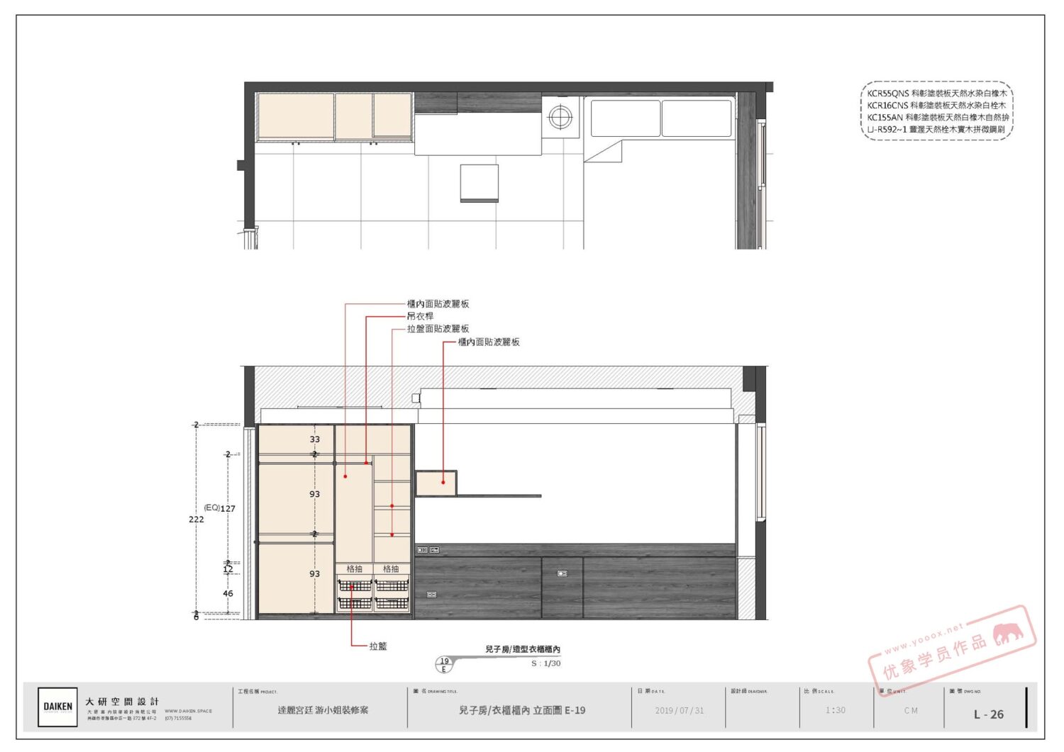
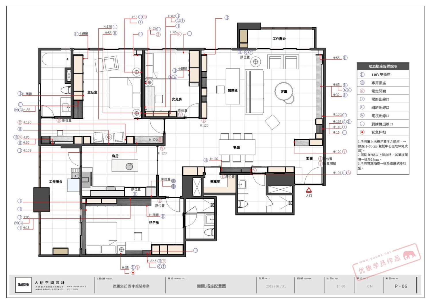
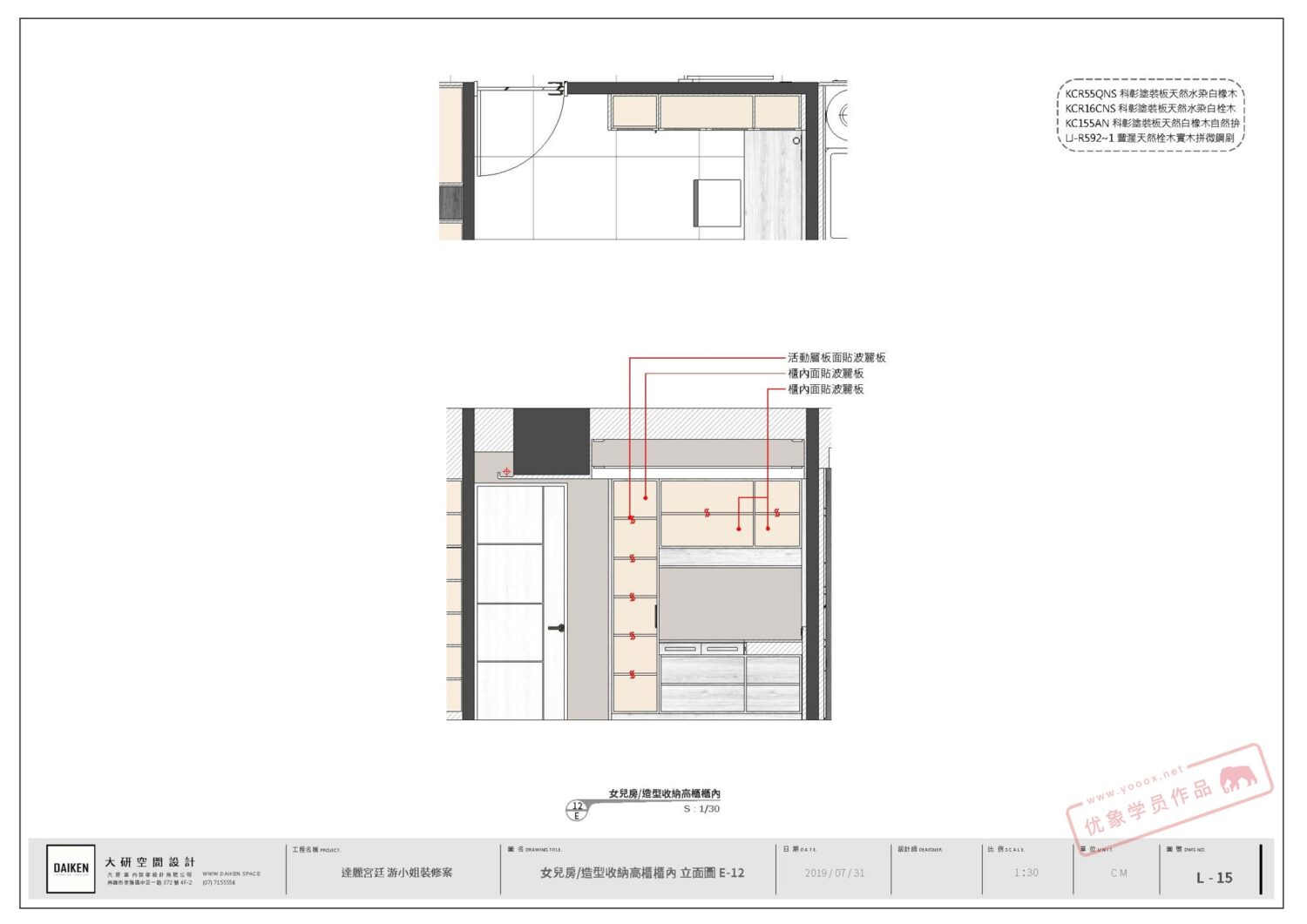
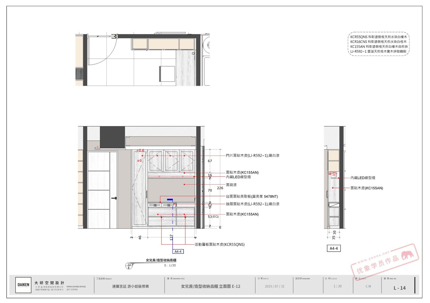
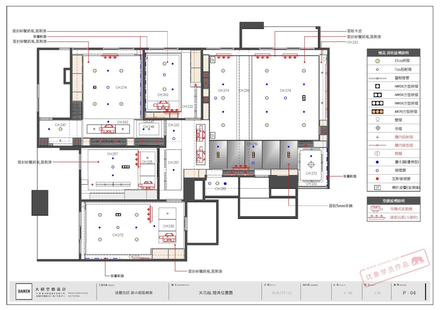
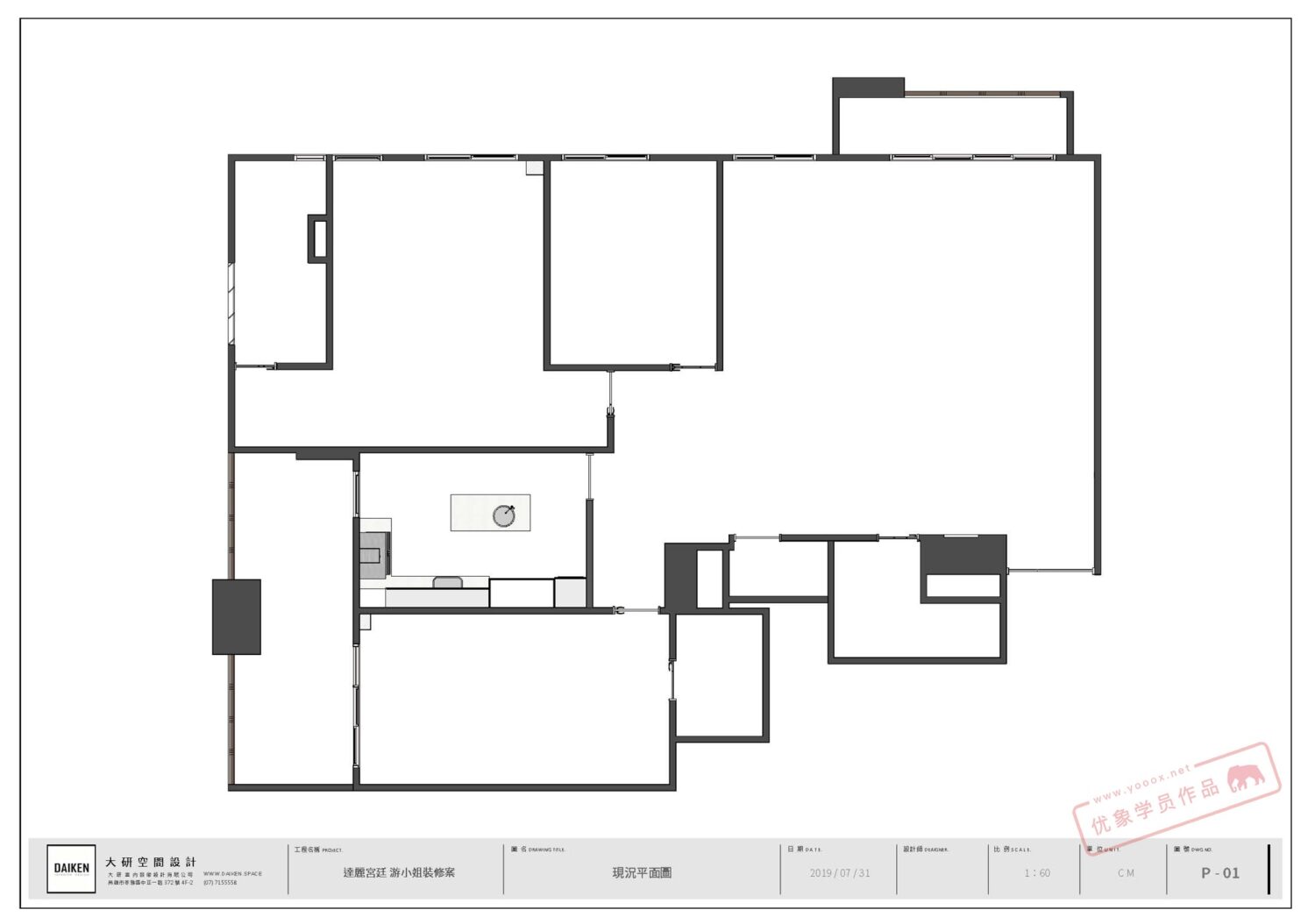
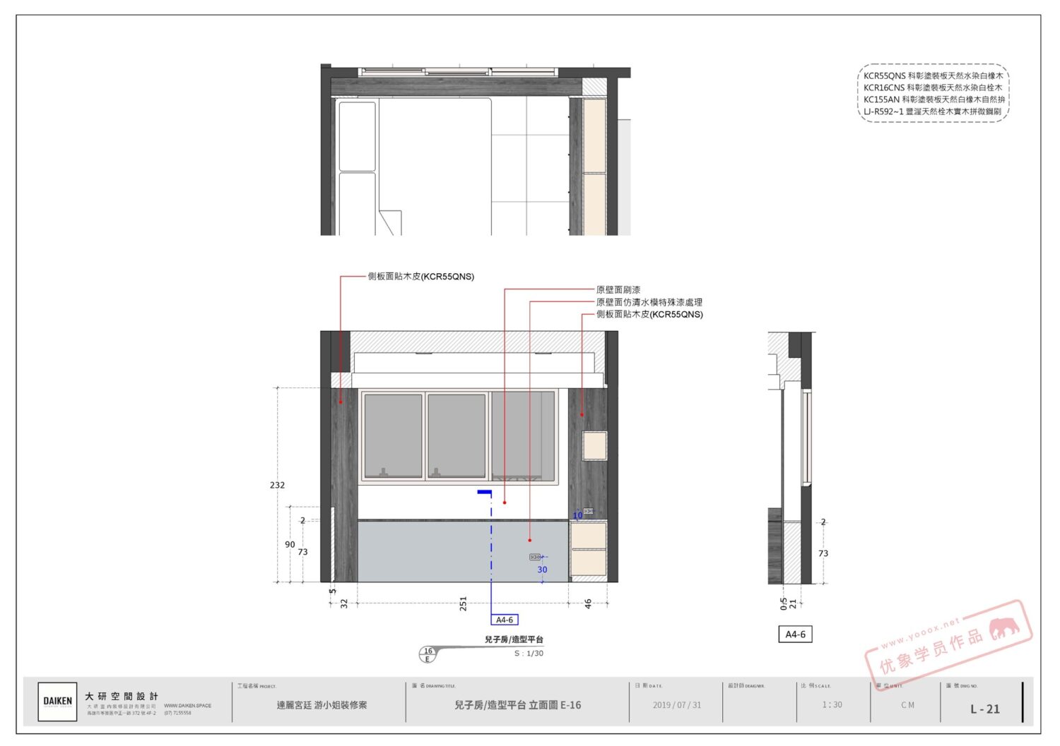
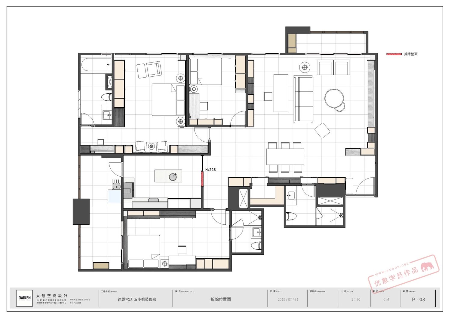
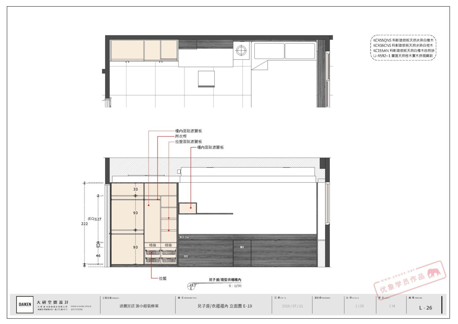
台湾_達麗宮廷裝修案施工圖
学员录语:
以前没用LayOut的时候,我们用SketchUp做设计推敲空间感觉与形体的组合关系,然后又要从头开始用AutoCAD重新开始画施工图,造成了模型的使用效率不高。
现在掌握了LayOut工作流程,做一套施工图只要一天就可以搞定。整个过程,最花时间的是前期做SketchUp设计推敲的阶段,实际上,到输出LayOut施工图的时候是很快的。
LayOut是什么?
在安装完草图大师SketchUp之后,桌面上会出现三个app,分别是SKetchUP、LayOut、StyleBuilder,其中LayOut可以获取SketchUp模型来制作施工指导图纸。
LayOut教程
优象推出了国内首套的LayOut施工图系统性案例培训教程,能够把做好的SketchUp模型直接输出LayOut图纸。快速了解LayOut,学习优象的LayOut公开课(链接)
LayOut学员案例
将图片拖放到这里添加至 Eagle
台湾_達麗宮廷裝修案施工圖
学员录语:
以前没用LayOut的时候,我们用SketchUp做设计推敲空间感觉与形体的组合关系,然后又要从头开始用AutoCAD重新开始画施工图,造成了模型的使用效率不高。
现在掌握了LayOut工作流程,做一套施工图只要一天就可以搞定。整个过程,最花时间的是前期做SketchUp设计推敲的阶段,实际上,到输出LayOut施工图的时候是很快的。
LayOut是什么?
在安装完草图大师SketchUp之后,桌面上会出现三个app,分别是SKetchUP、LayOut、StyleBuilder,其中LayOut可以获取SketchUp模型来制作施工指导图纸。
LayOut教程
优象推出了国内首套的LayOut施工图系统性案例培训教程,能够把做好的SketchUp模型直接输出LayOut图纸。快速了解LayOut,学习优象的LayOut公开课(链接)
LayOut学员案例
将图片拖放到这里添加至 Eagle
LayOut是什么?
在安装完草图大师SketchUp之后,桌面上会出现三个app,分别是SKetchUP、LayOut、StyleBuilder,其中LayOut可以获取SketchUp模型来制作施工指导图纸。
LayOut教程
优象推出了国内首套的LayOut施工图系统性案例培训教程,能够把做好的SketchUp模型直接输出LayOut图纸。快速了解LayOut,学习优象的LayOut公开课(链接)



































