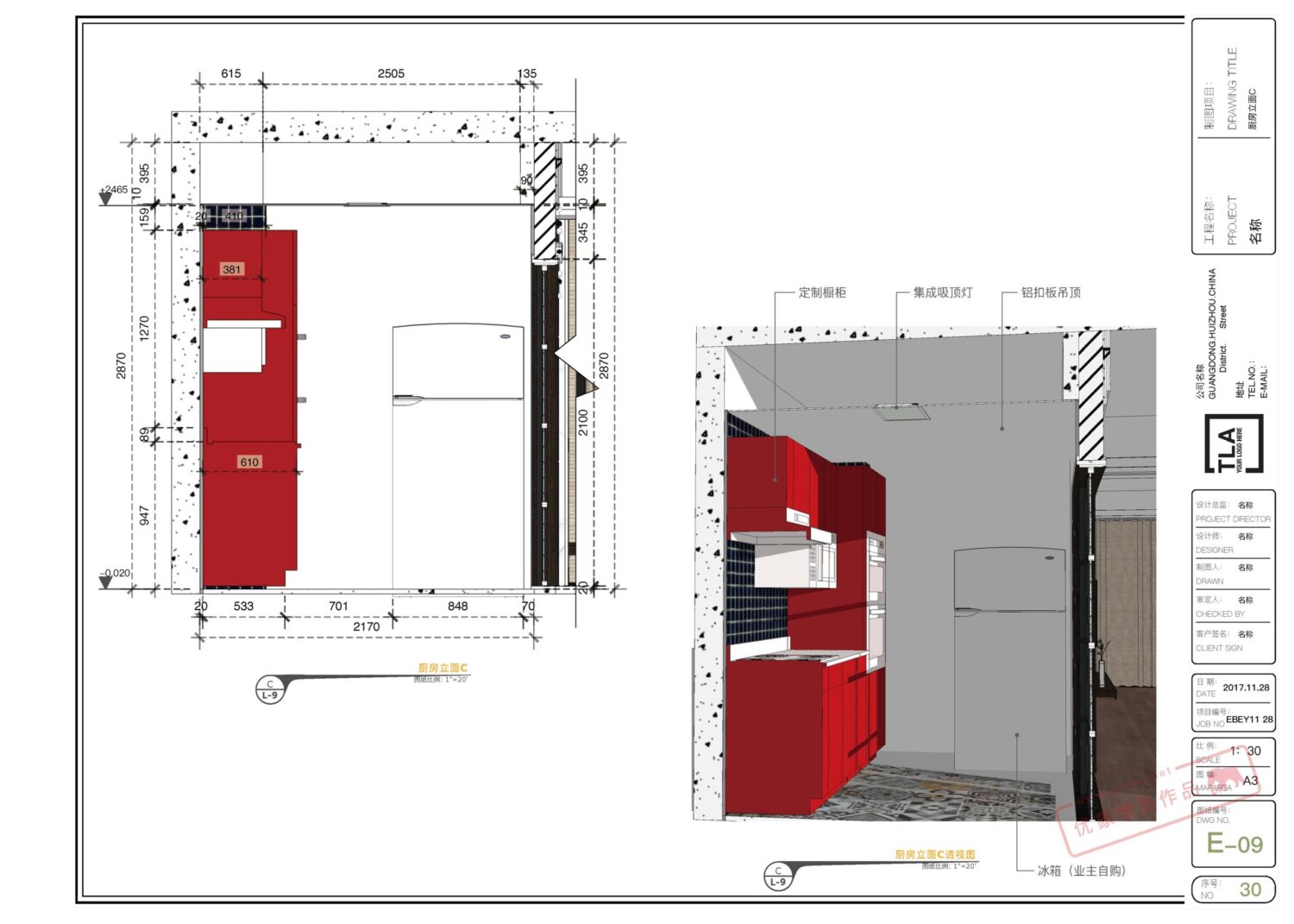
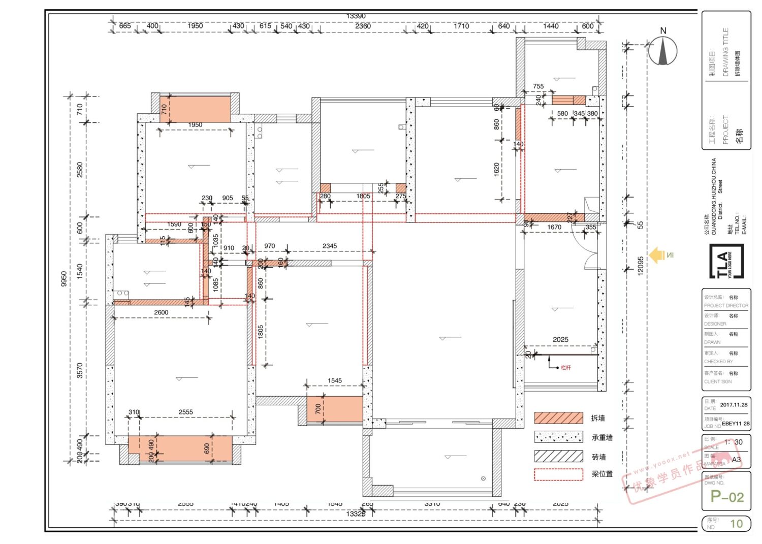
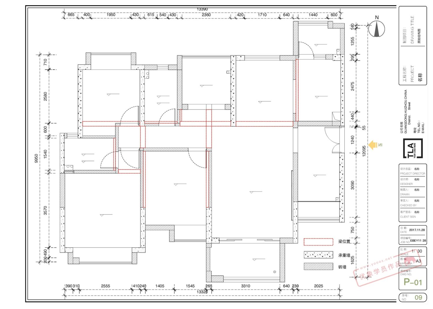
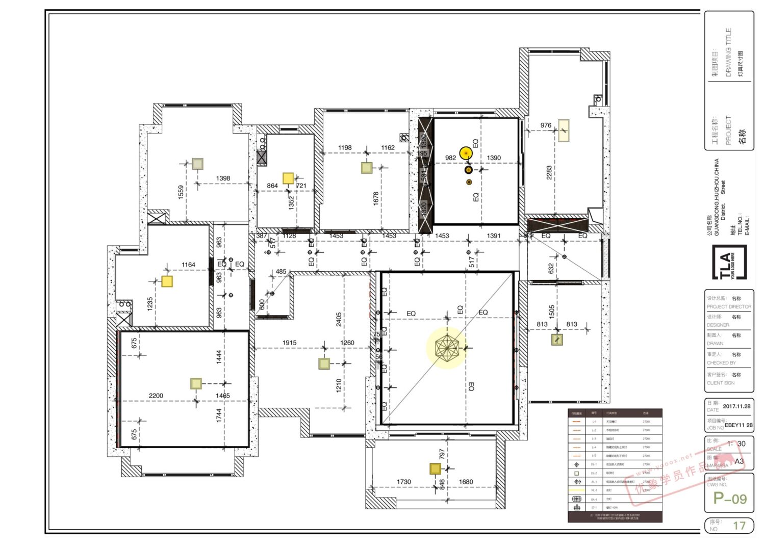
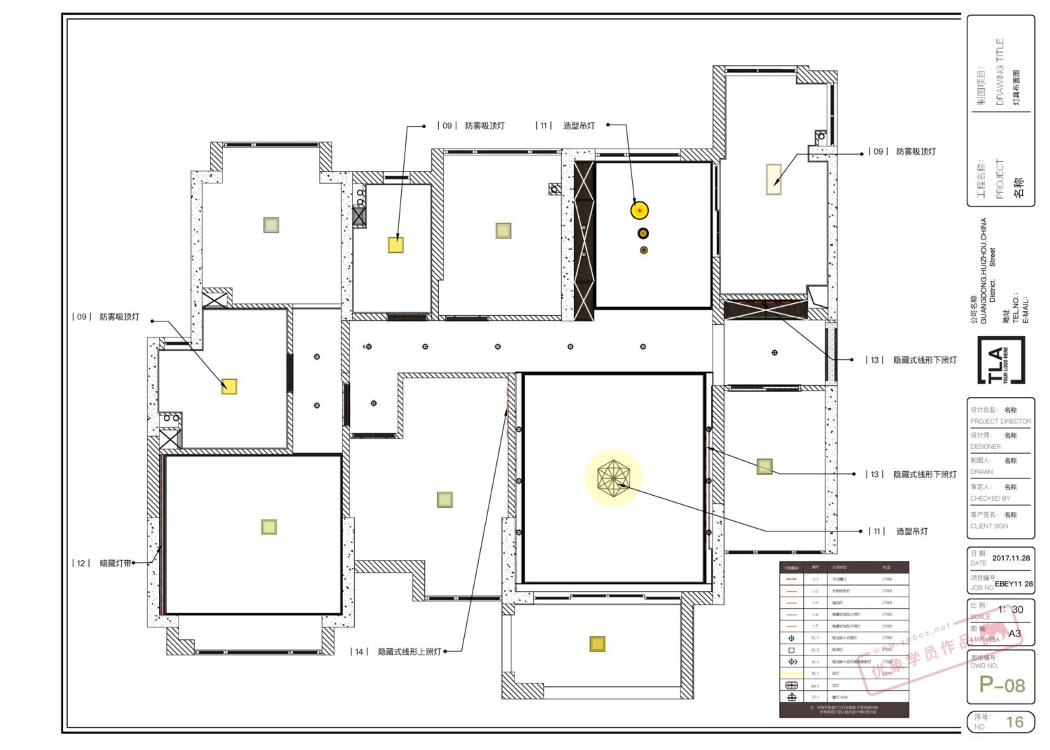
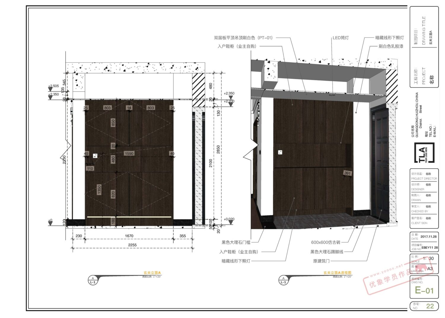
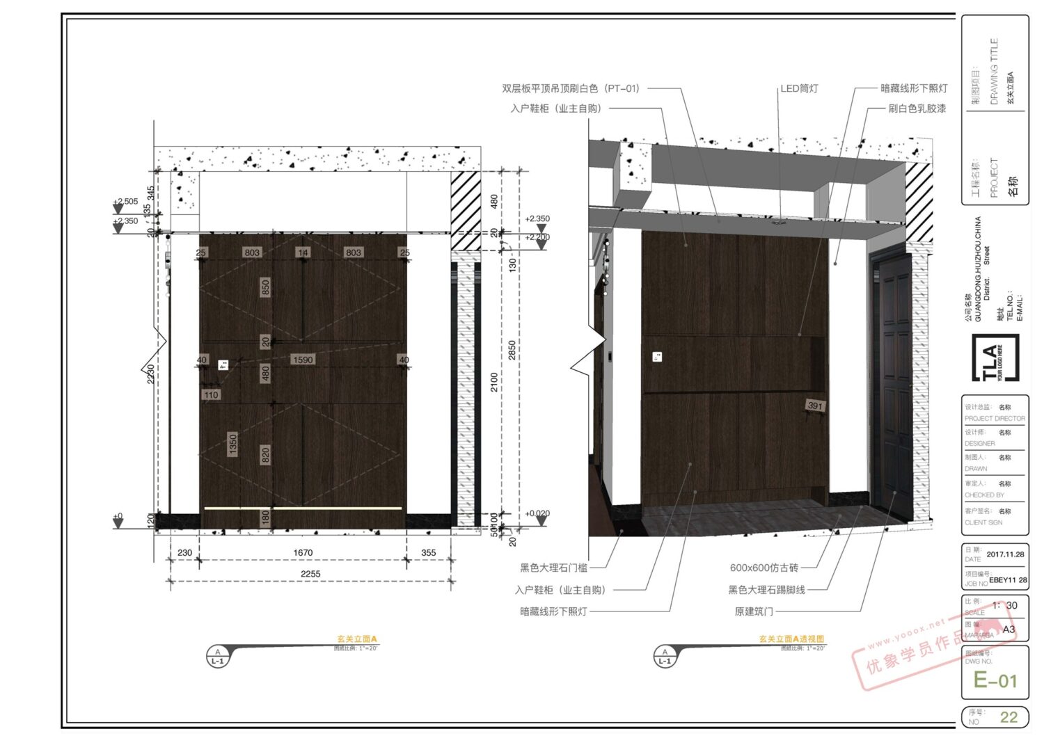
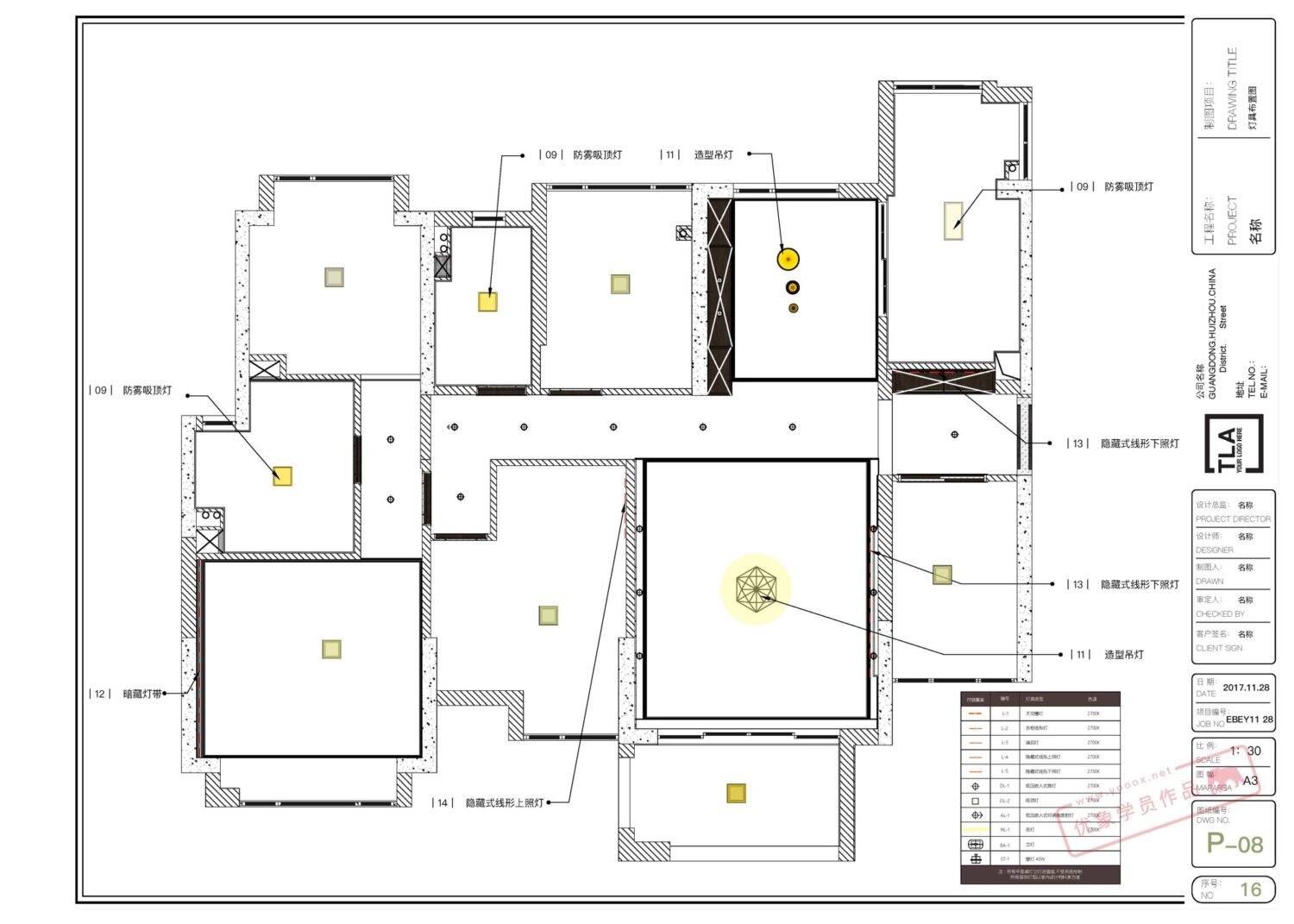
LayOut学员作品——方直君御施工图纸 课程介绍|更多学员案例| 报名咨询 LayOut学员作品 方直君御施工图纸 以下LayOut彩色施工图的更多学习资料,有兴趣的同学可以进行了解: LayOut图纸案例 LayOut公开课 LayOut课程介绍