用SketchUp的LAYOUT出图节省出图时间

用SketchUp出图节省出图时间

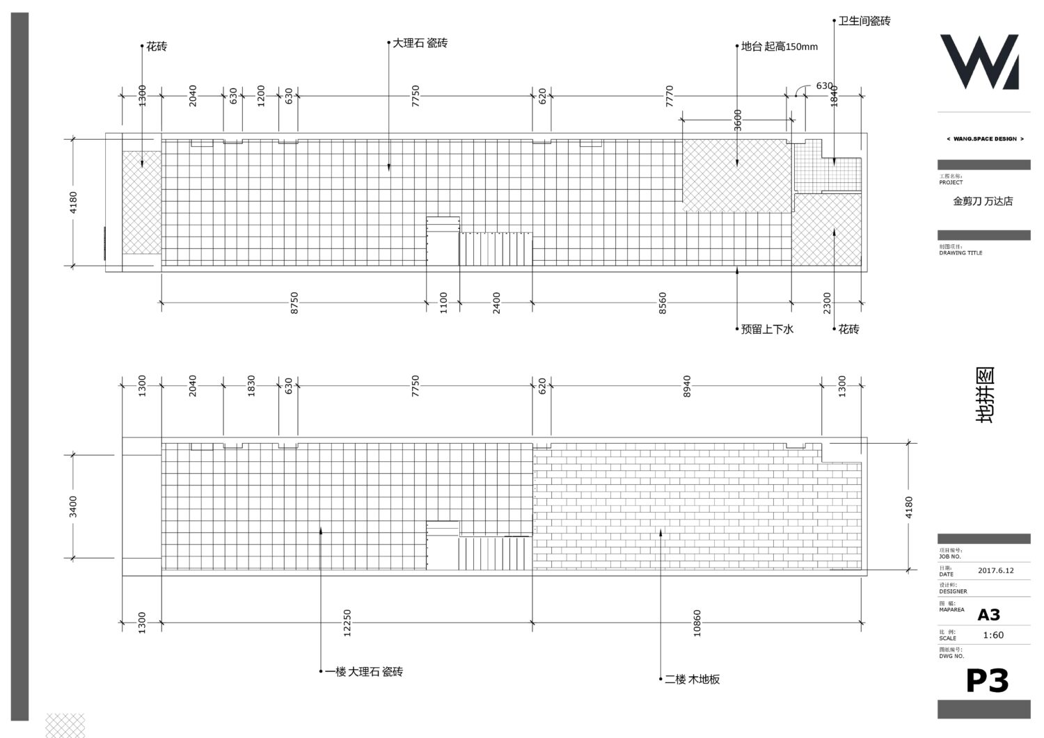
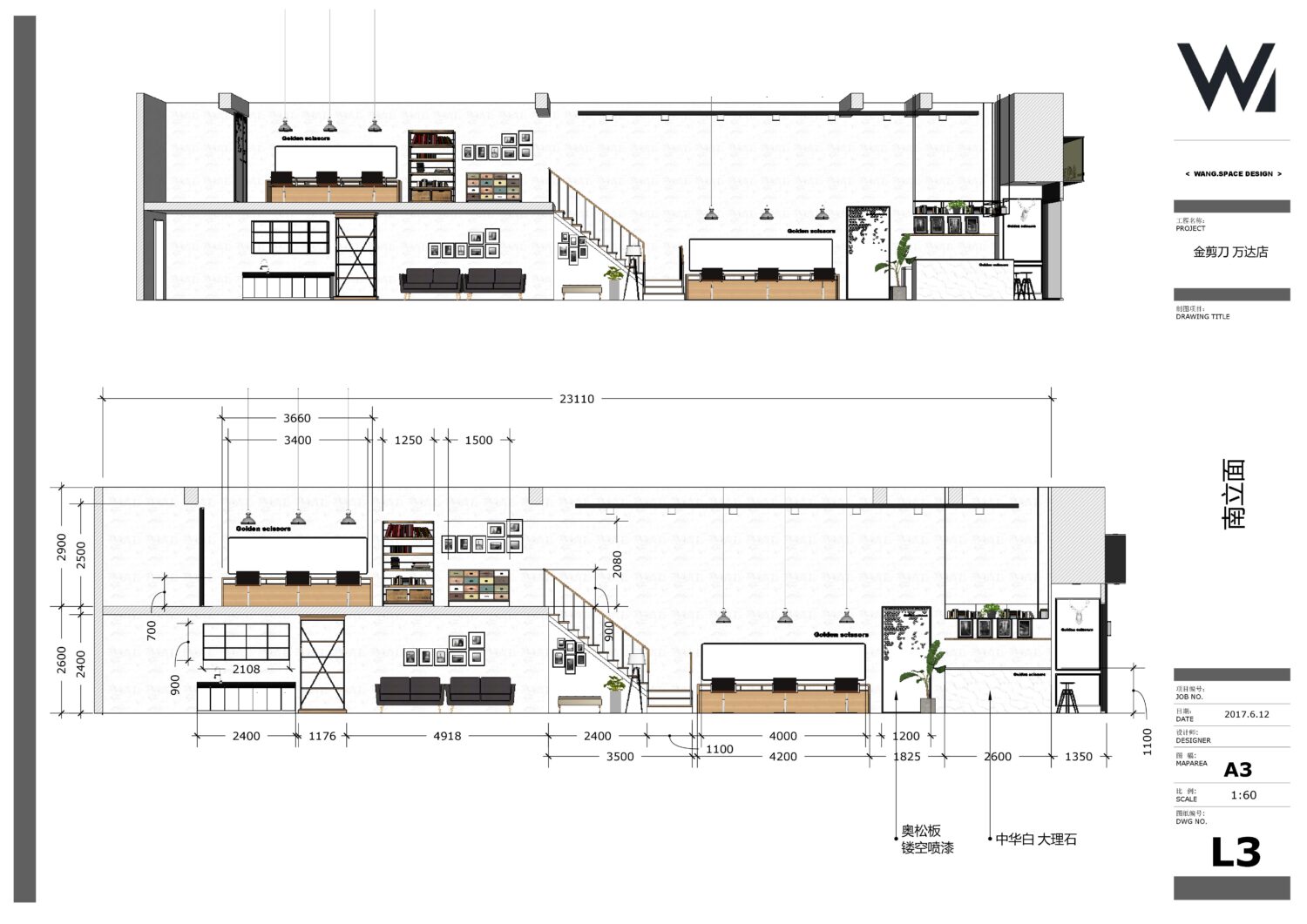
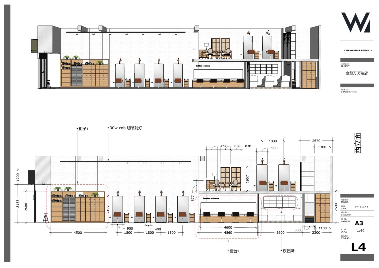
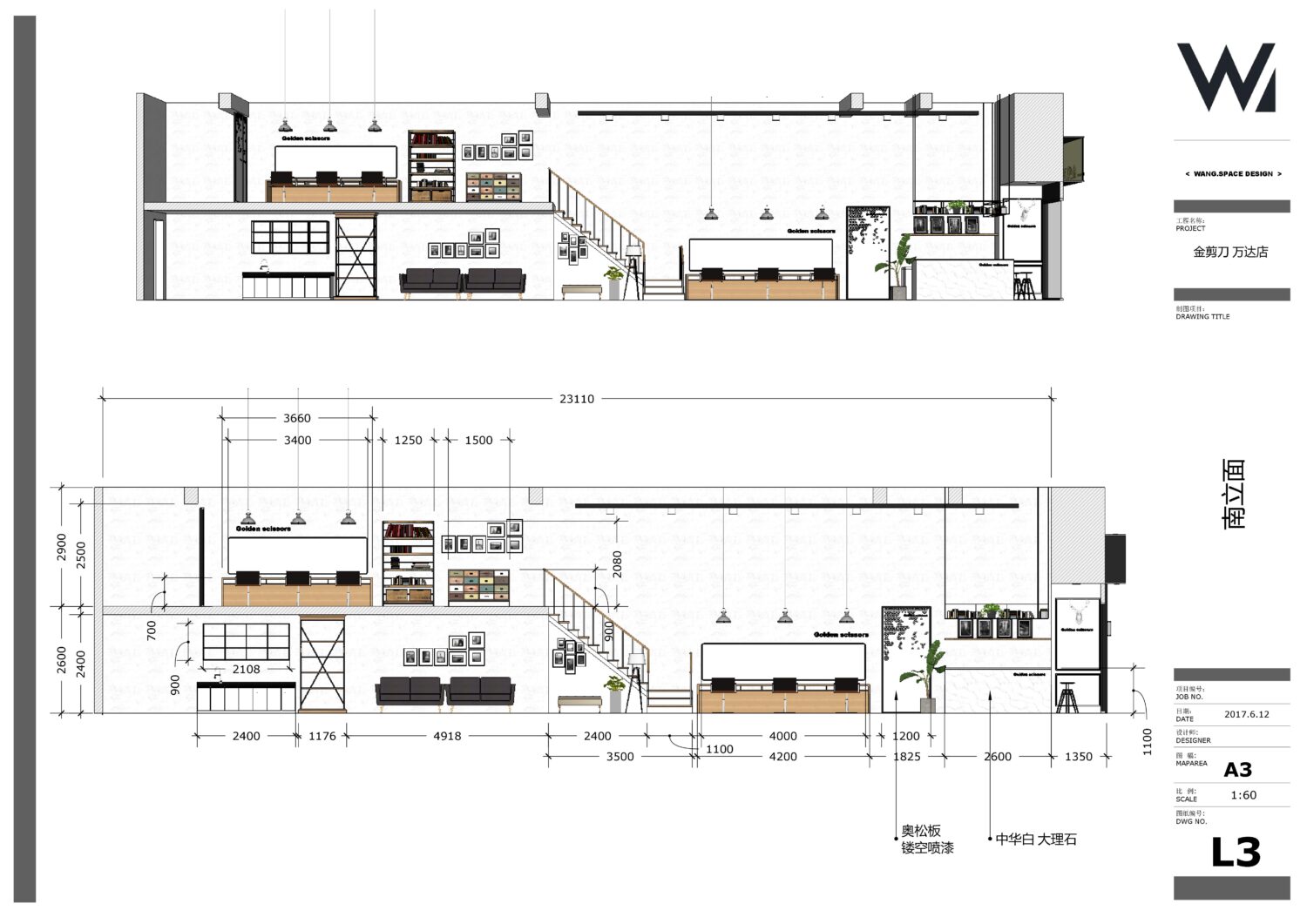
这是一个用SketchUp做的理发店项目

我们用照片建模的技术,把室内室外整个模型绘制了出来

并快速输出了大量的三维彩色图纸

包括必须要用到的门头外立面图

平面布置图,室内一二层连贯的立面图

天花灯具图,地面图

所有的图纸都可以直接通过模型进行快速输出

让设计师避免了改图所浪费的大量时间


以下LayOut彩色施工图的更多学习资料,有兴趣的同学可以进行了解:

发表回复

此站点使用Akismet来减少垃圾评论。了解我们如何处理您的评论数据