系统课程 效率插件

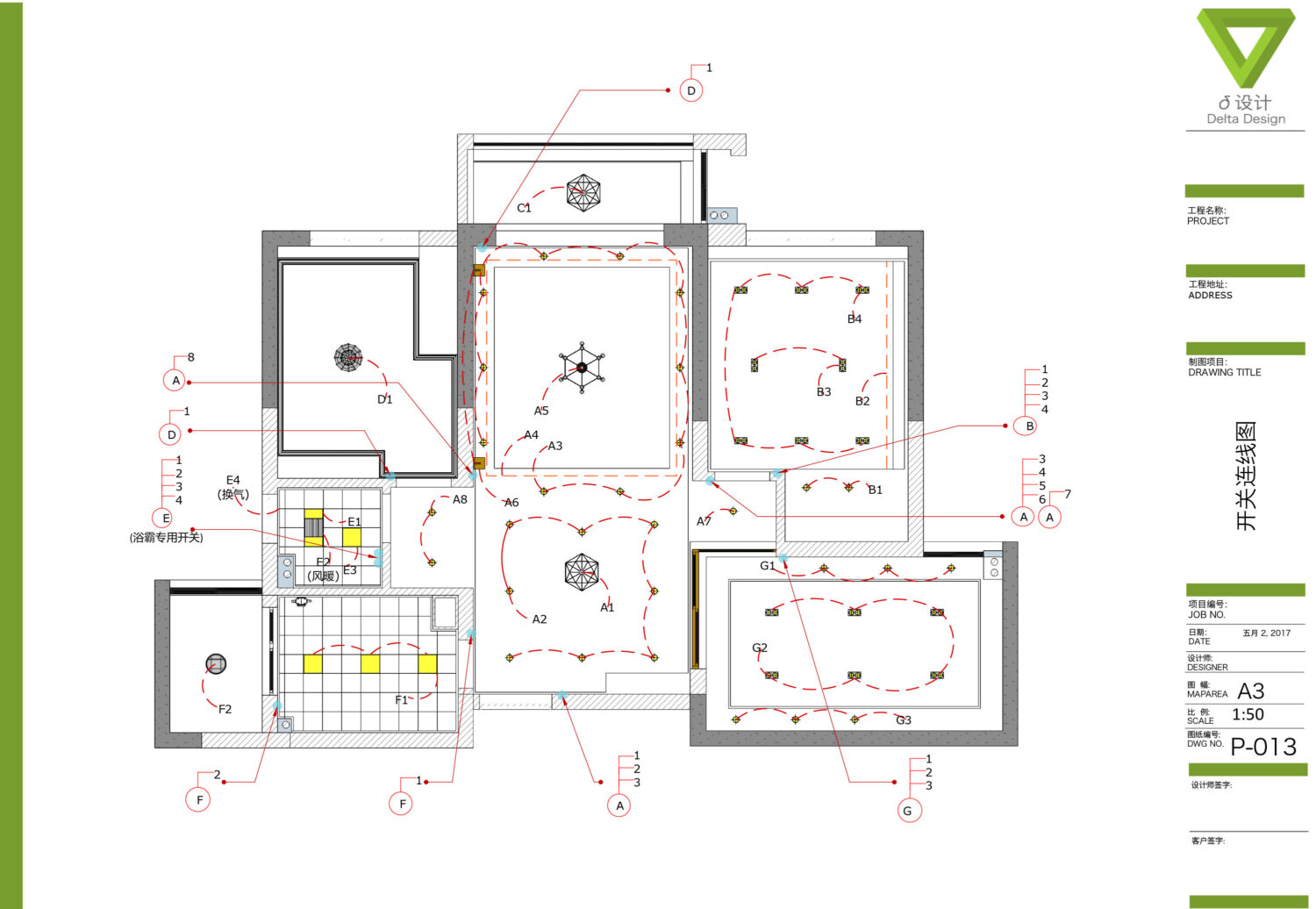
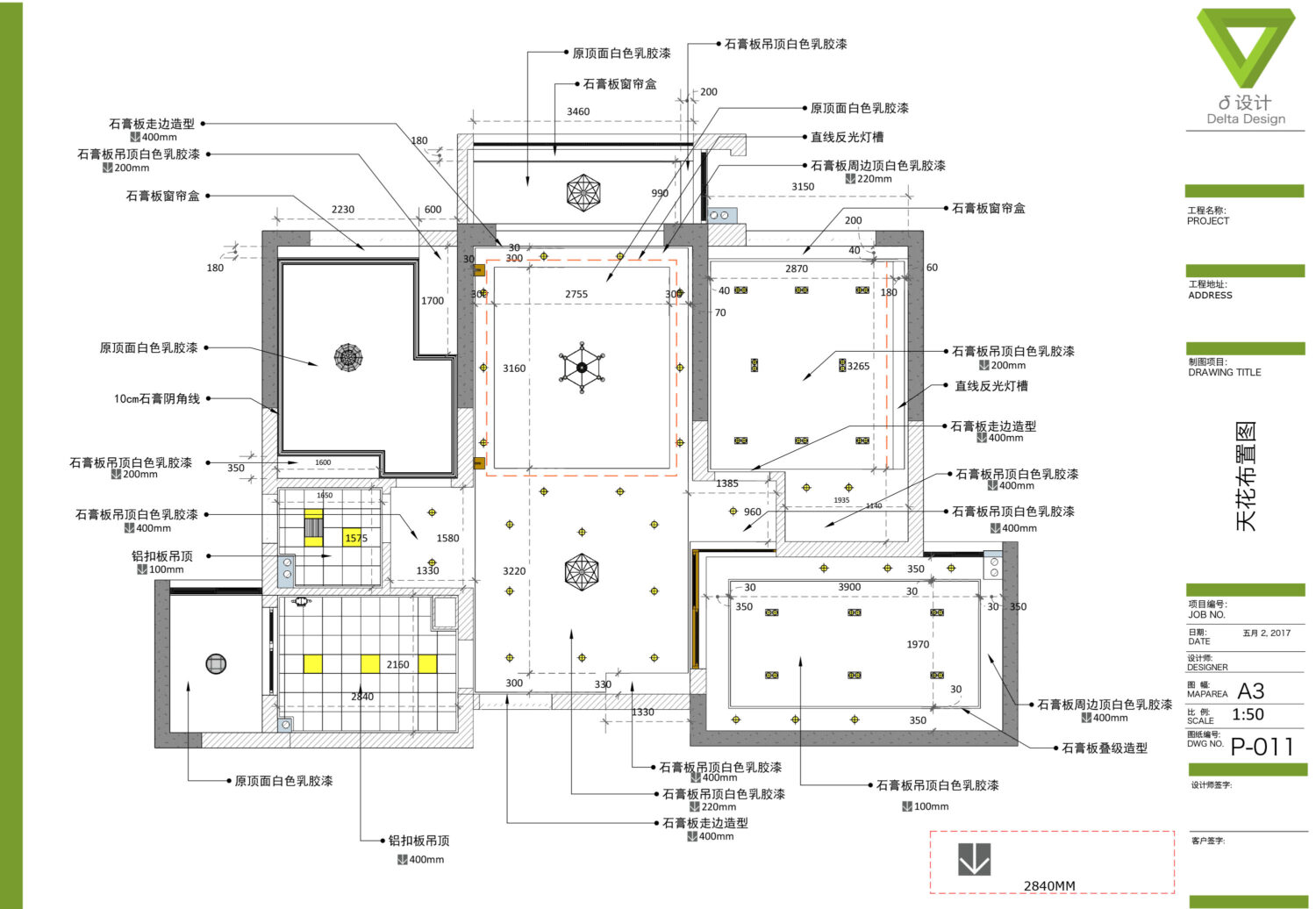
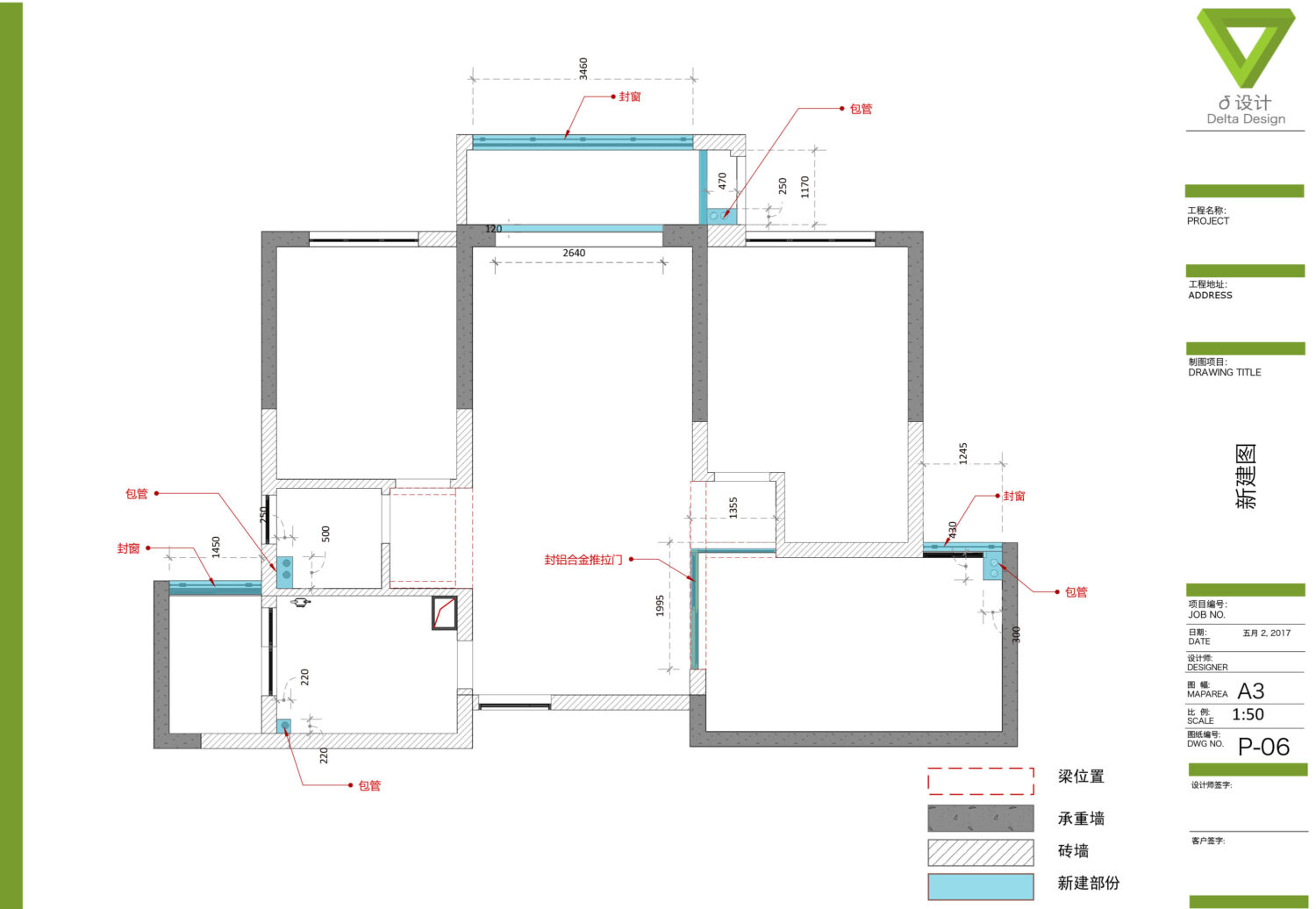
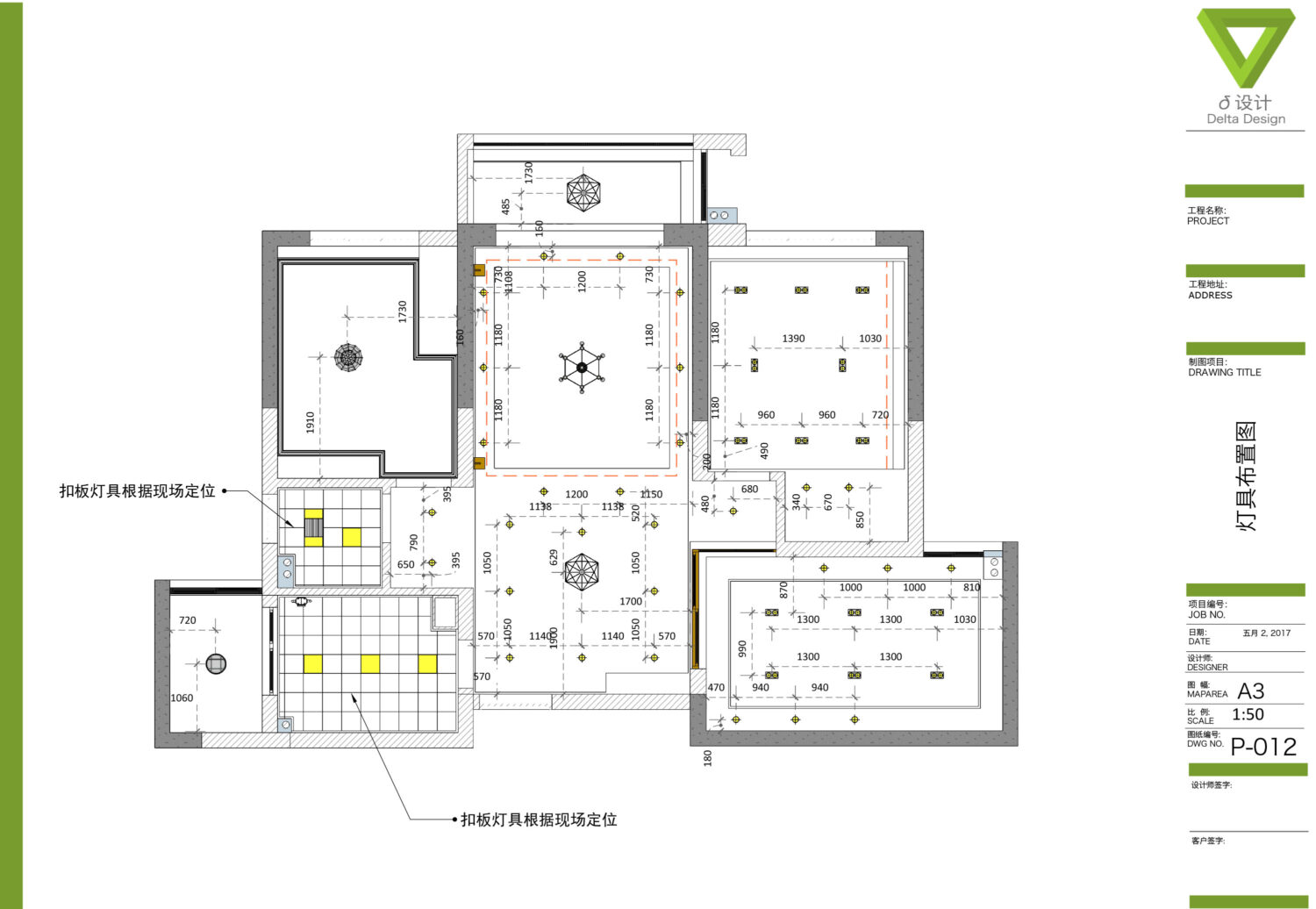
保利凤凰湾

课程介绍|更多学员案例| 报名咨询 以下LayOut彩色施工图的更多学习资料,有兴趣的同学可以进行了解: La […]

详细介绍

以下LayOut彩色施工图的更多学习资料,有兴趣的同学可以进行了解:

用户登录